Раскладка плит перекрытия в коттедже: План плит перекрытия панельного дома
Тонкости укладки плит перекрытий — Проекты домов Z500
В первой части нашего рассказа мы обсудили вопросы производства железобетонных сборных плит перекрытия, их характеристики и отличия. В этой статье мы подробно расскажем о том, как необходимо выполнять их монтаж.
Если вы решили реализовать проект обычного кирпичного дома и подошли к стадии укладки перекрытий, то важно предварительно ознакомиться с важными нюансами их монтажа.
1. Монтажная конфигурация плит
- плиты ПК реализуются с наличием монтажных петель,
- плиты ПБ могут быть ими дополнены за дополнительную стоимость, но в стандартном варианте их не имеют. Это нередко создаёт сложности при погрузо-разгрузочных работах и монтаже.
2. Способ строповки
ВАЖНО! Часто при строповке плит ПБ рабочие используют торцевые пустотные отверстия. Это делать категорически запрещается!
Во-первых, крепление крюка ненадежно, он может соскользнуть, приведя к падению плиты.
Во-вторых, эта нагрузка может вызвать разрушение торцов плиты. Также не рекомендуется пользоваться методом протаскивания арматуры или лома сквозь пустотные отверстия и креплением крюков за его концы.
Приспособлениями для монтажа плит перекрытий марки ПБ являются траверсы или мягкие чалки! При этом в процессе монтажа важно выдерживать между плитами расстояние в 2 см для возможности выдергивания из-под нее чалки и последующего сдвигания плиты ломом к крайней плите.
3. Вопросы опирания плит
Любой проект 2 этажного кирпичного дома (или из других кладочных материалов) указывает допустимые величины минимальной глубины опирания перекрытий. В процессе монтажа важно соблюдать указанные условия. Каждый план, проект кирпичного дома, например, будет иметь индивидуальные значения этого показателя. Именно этот факт определяет невозможность ориентирования в этом важном вопросе на опыт знакомых, родственников или другие источники.
Особенностью монтажа сборных железобетонных перекрытий является максимальная глубина опирания в 200 мм.
При превышении этого порога плиты выступают в роли защемленных балок, в результате чего могут образоваться трещины.
Если ваш коттедж предполагает использование пено-газоблочных кладочных материалов, то для возможности опирания плит перекрытия важно выполнить устройство арматурного железобетонного пояса.
4. Способы защиты торцов плит
Перед тем, как осуществлять монтаж железобетонных сборных перекрытий, важно заделать пустотные отверстия в торцах плит. Во-первых, это защищает плиты от проникновения влаги, во-вторых, увеличивыет прочностные показатели торцов. Это важно скорее для ПК-типа при установке на них несущих перегородок. Способом защиты в большинстве случаев является заделка отверстий ломаным кирпичем и бетонной смесью. При этом глубина заделки составляет не менее 120-150 мм.
При попадании в пустоты влаги важно её удалить. Делается это путем сверление в дне плиты в пустотном отверстии канала, по которому вода стечет из плиты. Данная мера обязательна и важна для ситуаций, при которых консервация строительства на зиму пришлась на этап укладки плит перекрытия без устройства кровли.
Этот способ поможет избежать повреждения плиты в результате расширения замерзшей в пустотах воды.
5. Выбор погрузочно-разгрузочной техники
Перед осуществлением разгрузки плит на объекте важно убедиться в том, что грузоподъемность крана соответствует требуемой. Необходимо выбрать такую модель, которая будет отвечать требованиям к максимальному вылету стрелы, массе груза и необходимым подъездным путям. Удобнее, если разгрузка материалов будет происходить с двух сторон дома.
6. Требования к опорной поверхности и хитрости укладки плит
Укладывать плиты можно на ровную и очищенную от мусора поверхность. Перед укладкой плит выполняется устройство растворной «постели» толщиной 20 мм из цементной смеси. Благодаря этому слою значительно улучшается сцепление плиты и опорной поверхности.
По слою цемента можно пустить арматуру толщиной 10-12 мм. Применение этой методики обеспечивает контроль над вертикальностью плит перекрытия в процессе их укладки, поскольку стержень фиксирует нижнее положение плит и предотвращает полное выдавливание цементного раствора собственным весом.
Запрещается ступенчатая установка плит и разбег торцов в зависимости от длины плит более 8-12 мм. Нарушением технологии является случай опирания перекрытия на три стены при перекрытии сразу двух пролетов одной плитой.
Такая ситуация способствует возникновению непредусмотренных армированием нагрузок, в определенных случаях, приводящих к повреждению плиты. Если же план расположения комнат в доме определяет необходимость именно такой раскладки, можно избежать излишнего напряжения, пропилив поверх плиты болгаркой штрабу над средней перегородкой.
7. Правила анкеровки плит
Этот технологический этап выполняется после монтажа плит. Для этого используется гладкая арматура 240С диаметром 10 мм. После этого выполняется заделка рустов цементом. После крепления анкера к монтажной проушине плит ПК, выполняется заделка пустот цементом во избежание намокания или забивания отверстий строительным мусором.
8. Особенности перекрытия лестничных пролетов
Если лестничный пролет лежит между плитами перекрытия, то перекрыть его можно следующим образом.
Устраиваются направляющие из двух швеллеров параллельно плитам, перевязываются третьим поперек. Выполняется вязка арматурного каркаса сеткой с ячейками в 200 мм по краям проема с использованием арматуры 8 мм. Устанавливается опалубка и заливается монолитный участок. При этом необязательна подвязка швеллера к плитам. Этот способ позволяет создать оптимальные условия для опирания плиты на короткие стороны и исключение нагрузок от лестничного пролета.
9. Размещение плит на приобъектном складе
Самым благоприятным вариантом считается монтаж плит непосредственно после доставки. Если же монтаж требуется отложить, хранение плит важно организовать грамотно. Для этого потребуется заранее подготовленная ровная поверхность. Укладка плит на землю не допускается ввиду неравномерного распределения нагрузки на нижнюю плиту от верхних и возможности её повреждения.
Укладка плит в штабель выполняется по 8-10 шт. Брус 200*200 мм обычно является прокладкой под нижний ряд. Прокладкой для последующих рядов служит доска-дюймовка, имеющая толщину 25 мм.
Положение прокладок не должно удаляться от торцов плит далее, чем на 45 см с соблюдением вертикальности друг над другом. Эти правила обеспечат равномерность распределения нагрузки на штабель.
Итак, соблюдая все эти правила хранения, раскладки и монтажа плит перекрытия, вы обеспечите всей конструкции надежность!
ПРИСОЕДИНЯЙТЕСЬ К НАМ В СОЦИАЛЬНЫХ СЕТЯХ
И УЗНАВАЙТЕ НОВОСТИ ПЕРВЫМИ
План перекрытий проекта дома — расчет и черчение
Просмотров: 94844
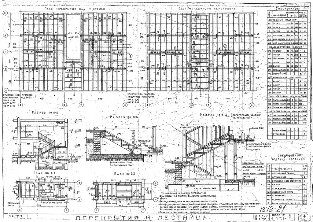
План перекрытий – графическое изображение горизонтальных конструкцию, выполняющих несущую и ограждающую функцию. Непосредственным назначением перекрытий является разделение здания на этажи для увеличения полезной площади сооружения, которую можно было бы использовать, к примеру, для размещения жилых помещений.
Чтобы составить план перекрытий, необходимо определить, какие несущие конструкции будут применены — это также входит в проектирование домов (железобетонные сборные или монолитные; балочные железобетонные, деревянные или металлические и др.
).
Как чертить план перекрытий и покрытий
Первое, что необходимо для того чтобы чертить план перекрытий и покрытий, за основу нужно взять план здания без перегородок, внутренних размеров и других элементов. Далее необходимо разместить несущие элементы перекрытий на несущих стенах в соответствии с существующими нормами, к примеру, сборные плиты перекрытий необходимо опирать на две несущие стены с перекрытием в 15 см на каждой стене.
При раскладке несущих элементов перекрытия, вы увидите, что подбор их ширины также важен, как и длины. Используя разные по ширине плиты, можно избежать образования больших участков недоборов.
Дело проще обстоит с монолитными перекрытиями, так как под них нет необходимости выбирать плиты из сортаментов сборных элементов. Однако при их использовании необходимо производить расчет арматуры, а также подбирать нужную марку бетона.
По окончании расположения несущих элементов на стенах здания переходят к нанесению обозначений и размеров.
К первым можно отнести обозначения монолитных участков, наименование сборных плит перекрытия, выпуски арматуры и другое. Наносимые размеры существенно не отличаются от размеров на плане дома. Они показывают расстояние между осями, габаритные размеры и расстояние по контурам.
Шаги черчения плана перекрытия и покрытия
Обратите внимание на план несущих стен, предоставленный снизу. Мы видим, что все стены не без проемов. Это важный момент. На этом этапе уже у здания должны быть перемычки над проемами.
Использование плана здания без перемычек затруднит процесс раскладки плит перекрытий.
Раскладку плит перекрытий на план дома необходимо начинать с одного из краев. Целесообразность того или иного варианта раскладки необходимо определять по количеству монолитных участков — их должно быть как можно меньше.
Доходя до мест, где невозможно установить плиты, необходимо остановиться и продолжить раскладку непосредственно после этого участка плана перекрытий (на чертеже снизу обозначен красной вертикальной линией).
Участки недоборов, то есть, участки, которые остались незакрытыми плитами перекрытий, необходимо замоноличивать.
После того, как плиты перекрытий установлены над одной из частей плана, необходимо переходить к другой и так далее, до полного завершения составления плана перекрытий.
Вычерчивание планов перекрытия с балочными перекрытиями, монолитными железобетонными, панельными имеют общую последовательность с составлением плана перекрытий, указанного выше.
Планы домов с плитным фундаментом
ХЭЛЛОУИНСКАЯ РАСПРОДАЖА | СКИДКА 15% НА ВСЕ ПЛАНЫ ДОМА | Введите промокод SPOOKY при оформлении заказа!
Телефон 800-482-0464
- Домашний
- План дома
- План дома с плитным фундаментом
Форма поиска
План этажа 2 3 4
План 51981
2373 Кв.фут с подогревом
70’6 Ш x 66’10 Г
кровать: 4 — ванна: 2,5
Сравнение
План 41438
1924 Нагреть SQFT
61’7 W X 61’8 D
Кровать: 3 — 2.
5 2.5 2.5 2.5 2.5 2.5 2.5 2.5 2.5 2.5 2.5.
Сравнить
План 41841
2030 Кв.фут с подогревом
50’0 Ш x 64’0 Г
Кровать:
5 — 3 Ванна:
2Сравнить
План 80523
988 кв.фут с подогревом
38’0 Ш x 32’0 Г
Кровать: 2 — Ванна: 2
Сравнить
План 80523
988 Кв.фут с подогревом
38’0 Ш x 32’0 Г
7
20 Кровать
Вань: 2 Сравнение
План 80801
2454 Огрев SQFT
76’0 W x 70’8 D
Кровать: 3 — ванна: 2,5
— 2,5 .0007 План 77400
1311 С подогревом, кв.фут
46’0 Ш x 42’6 Г
Кровать: 3 —
Bath: 2
Compare
Plan 41445
2085 Heated SqFt
67’10 W x 74’7 D
Bed: 3 — Bath: 2.
5
Compare
План 42698
3952 Кв.фут с подогревом
76’10 Ш x 78’2 Г
Кровать: 4 —
Баня: 4
Сравнить
План 56705
1416 Кв.фут с подогревом
51’0 Ш x 47’0 Г
7
24 Кровать: 3 9 000024
Bath: 2 Compare
Plan 41413
2290 Heated SqFt
80’10 W x 62’2 D
Bed: 3 — Bath: 2.5
Compare
План 80833
2428 Кв.фут с подогревом
81’10 Ш x 70’0 Г
кровать: 3 — ванна: 2,5
Сравнение
План 51997
1398 Нагреть SQFT
52’4 W x 47’10 D
Кровать: 3 -4 -4 W x 47’10 D
: 3 -4 -4 W x 47’10 D
: 3 9000-4-
Bath: 2
Compare
Plan 56716
3086 Heated SqFt
85’8 W x 69’0 D
Bed: 4 — Bath: 3.
5
Compare
План 77407
1611 Кв.фут с подогревом
56’0 Ш x 52’0 Г
Кровать: 3 —
Ванная: 2
Сравнение
План 41418
2400 Огрев SQFT
77’10 W X 78’1 D
Кровать: 4 — ванна: 3,5
777779777777777777777777777777777797777797777977779777797777977779777977797779777977797797797797797797779779779779779779779779 План 73931
384 Кв.фут с подогревом
16’0 Ш x 24’0 Г
Кровать: 1 —
Ванна: 1
Сравнить
План 80818
1599 Огрев SQFT
61’6 W X 44’6 D
Кровать: 3 — ванна: 2,5
ПЛАНИЯ 41439
9
41439
41439
60’1 Ш x 51’4 Г
Кровать: 3 —
Ванна: 2
Сравнить
План 75167
1742 Кв.
ф.0004 2.5
Сравнить
FHP Гарантия низкой цены
Если вы найдете точно такой же план на веб-сайте конкурента по более низкой цене, объявленной ИЛИ по специальной цене РАСПРОДАЖИ, мы снизим цену конкурента на 5% от цены всего, а не только 5% разницы! Чтобы воспользоваться нашей гарантией, позвоните нам по телефону 800-482-0464 или напишите нам на веб-сайт и номер плана, когда будете готовы сделать заказ. Наша гарантия распространяется до 4 недель после покупки, поэтому вы можете быть уверены, что можете купить прямо сейчас.
Номер страницы результатов
Планы домов и этажей плитного фундамента
Планы дома Драммонда
По коллекции
Планы по типу фундамента
План плавающего плитного фундамента
В этой коллекции представлены все проекты домов, изначально предназначенных для строительства на плавающем плитном фундаменте.
5 Compare
Plan 41413
2290 Heated SqFt
80’10 W x 62’2 D
Bed: 3 — Bath: 2.5
Compare
План 80833
2428 Кв.фут с подогревом
81’10 Ш x 70’0 Г
кровать: 3 — ванна: 2,5
Сравнение
План 51997
1398 Нагреть SQFT
52’4 W x 47’10 D
Кровать: 3 -4 -4 W x 47’10 D
: 3 -4 -4 W x 47’10 D
: 3 9000-4- Bath: 2
Compare
Plan 56716
3086 Heated SqFt
85’8 W x 69’0 D
Bed: 4 — Bath: 3.
5
Compare
План 77407
1611 Кв.фут с подогревом
56’0 Ш x 52’0 Г
Кровать: 3 — Ванная: 2
Сравнение
План 41418
2400 Огрев SQFT
77’10 W X 78’1 D
Кровать: 4 — ванна: 3,5
777779777777777777777777777777777797777797777977779777797777977779777977797779777977797797797797797797779779779779779779779779План 73931
384 Кв.фут с подогревом
16’0 Ш x 24’0 Г
Кровать: 1 — Ванна: 1
Сравнить
План 80818
1599 Огрев SQFT
61’6 W X 44’6 D
Кровать: 3 — ванна: 2,5
ПЛАНИЯ 41439
9
41439
41439
60’1 Ш x 51’4 Г
Кровать: 3 — Ванна: 2
Сравнить
План 75167
1742 Кв.
ф.0004 2.5
Сравнить
FHP Гарантия низкой цены
Если вы найдете точно такой же план на веб-сайте конкурента по более низкой цене, объявленной ИЛИ по специальной цене РАСПРОДАЖИ, мы снизим цену конкурента на 5% от цены всего, а не только 5% разницы! Чтобы воспользоваться нашей гарантией, позвоните нам по телефону 800-482-0464 или напишите нам на веб-сайт и номер плана, когда будете готовы сделать заказ. Наша гарантия распространяется до 4 недель после покупки, поэтому вы можете быть уверены, что можете купить прямо сейчас.
Номер страницы результатов
Планы домов и этажей плитного фундамента
Планы дома Драммонда
По коллекции
Планы по типу фундамента
План плавающего плитного фундамента
В этой коллекции представлены все проекты домов, изначально предназначенных для строительства на плавающем плитном фундаменте.
