Проекты баня из газоблока: Проект современной бани из газобетона с террасой ГБ-034
Строительство бани из газобетонного блока
Какое излюбленное место всех дачников и владельцев частных домов? Где больше всего времени вы проводите с друзьями или просто отдыхаете после тяжелых будней? Конечно же, это баня. Собственная баня с парилкой, помывочной, комнатой отдыха, а если еще и бассейн есть, то вообще мечта.
Но баня – это не только место для отдыха и чистоты, но и полноценное пространство для оздоровительных процедур. Целебный пар очищает поры, улучшает кровообращение придает жизненные силы.
Поэтому перед хозяевами, планирующими создание такого полезного «комплекса», неизбежно встает вопрос: «Из чего лучше строить баню, чтобы в ней можно было в любое время года и без лишних затрат создать и поддерживать оптимальный микроклимат?».
Кроме того, правильно выбранный материал является залогом здоровья и долговечности этого строения. В обязательном порядке требуется учитывать то, что внутренние поверхности стен будут постоянно подвергаться воздействию влажного горячего воздуха и перепадам температур.
К счастью, мы живем в современном мире. Технологии, новации появляются с высокой скоростью во всех сферах жизни человека.
Материал, из которого строят дома, бани, также совершенствуется.
Необходимо знать, что требования, предъявляемые к строениям бани, гораздо жестче, чем к домам, в которых предусмотрено газовое отопление.
Этот момент связан с тем, что частные бани практически всегда отапливаются от дровяных печей.
3 основных критерия к материалу для возведения бани:
- Он должен быть прочным, как и для любых капитальных стен;
- Хорошего термоизоляционного качества для поддержания требуемого температурного режима;
- Устойчив к значительным перепадам температур и повышенной влажности.
Если вы проигнорируете хоть один критерий, то баня не станет функционировать должным образом. Не будет давать ожидаемого эффекта при ее использовании или же ее эксплуатация получится крайне неудобной и дорогостоящей.
Долой традиции
Традиционным материалом для возведения стен бани всегда считалась древесина.
Ранее это были только сруб из бревна, затем им «на помощь» пришел брус и оцилиндрованное бревно. Но в последние десятилетия на рынке появились новые материалы, вытеснившие дерево. Один из которых — блок из газобетона.
Современный мир всегда стремится к комфорту и безопасности.
Люди проводят в баню водопровод, канализацию в моечном отделении, устанавливают душ, раковину, что влечет за собой необходимость отапливать помещение.
Влага и тепло очень неблагоприятно сказываются на сроке службы древесины. Через 4 года приходят в негодность полы от влаги в моечном отделении, через 5-6 лет наступает очередь замены нижних венцов сруба. Затраты на эксплуатационные расходы растут.
Конечно, можно сразу сделать все максимально качественно обработать все антисептиком, но это все придется делать с периодичностью и время от времени просушивать дерево на солнце. На это все нужно время и деньги. А деньги любят счет.
С недавнего времени появились реализованные проекты бань из газобетонного блока, которые потеснили рынок дерева.
Почему баня из газобетонных блоков – это выгодно?
- Собрать коробку из газобетона выходит в 2-3 раза дешевле. Сравнивая с кирпичной кладкой, один ряд равняется 1,5 рядам кирпича;
- Хороший уровень теплоизоляции. Баня из газобетона будет прогреваться быстрее, чем кирпичная, она не нуждается в использовании дополнительных утеплителей;
- По твердости и плотности блоки не уступают кирпичу и дереву, а работать с ними проще. Распилить или отпилить кусок можно своими руками при помощи подручного инструмента;
- Пожаробезопасность. Газобетон по этому показателю надежнее дерева, он не горит и не поддерживает процесс горения;
- Говоря о деревянных конструкциях бани, мы предполагаем экологичность. Но газоблоки тоже состоят из натуральных материалов. При нагревании они не выделяют ядовитых элементов;
- Не гниют, хорошо переносят механические и химические воздействия;
- Мыши, насекомые и микроорганизмы не станут селиться в газоблоке;
- Собрать стену из блоков быстрее, чем из кирпича или дерева;
- Благодаря пористой текстуре блоки имеют небольшой вес.

Работы можно осуществлять без привлечения техники; - Материал легкий, поэтому не нужно делать массивную конструкцию фундамента, как под кирпичную стену;
- Перекрытие можно сделать из Ж/Б плит – пожаробезопасное;
- Отсутствие усадки. Можно не беспокоиться о том, что внутренняя отделка бани испортится или деформируется, использовать парную можно сразу после завершения строительных работ; в моечном отделении можно использовать плитку для отделки стен;
- Большой срок службы материала. Низкие эксплуатационные расходы.
Сэкономить на строительстве бани вполне возможно, если возвести ее из газобетонных блоков. При правильной отделке, гидроизоляции и устройстве вентиляции находиться в помещении парилки из газобетонных блоков будет достаточно комфортно.
Минусы построения бани из газобетона
Баня из газоблоков только немногим уступает строению из бруса.
- Основным и наиболее существенным недостатком является высокая пористость этого материала.
Он интенсивно впитывает влагу. Именно по этой причине крайне важно уделить особое внимание гидроизоляции. - По сравнению с баней из древесины, баня из газобетонных блоков требует обязательной внутренней отделки помещения, а также устройства высокоэффективной вентиляционной системы.
Это два основных недостатка построении бани из газобетонного блока.
Если вы сделаете все качественно, при помощи профессионалов, у вас не будет проблем при эксплуатации.
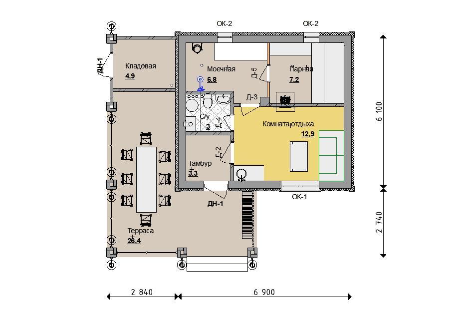
Должны вам сказать, что не менее важным при строительстве бани из газобетона является разработка типового проекта.
Проект будущей бани
Если вы приняли решение приступить к строительству, разумно будет обзавестись проектом.
Можно использовать типовой проект, который вы найдете в журнале по строительству или в интернете, но, если вы хотите, чтобы ваша баня была неповторимой — разработайте свой индивидуальный проект.
Чтобы это сделать максимально грамотно и правильно. Советуем вам учесть следующее:
- Четко знайте планировку будущего здания, размер и количество помещений;
- Определите места для подвода электропитания, а также заранее продумайте расположение водопровода и канализации;
- Обратите особое внимание на свойства грунта при закладке фундамента бани;
- Заранее предусмотрите расходы на внешнюю и внутреннюю отделку помещений;
- Гидроизоляция и утепление фасада должны обеспечивать эффективную защиту кладки блоков от избытка влаги;
- Оконные и дверные проёмы бань из газобетона должны быть, по возможности, герметичны;
- Заранее выберите разновидность печи для отопления парилки.

В заключении хотим сказать, что бани из газобетонного блока — отличная альтернатива дереву и кирпичу.
Отрицательных отзывов о таких постройках очень мало, и в большинстве случаев они связаны не с материалом, а с нарушениями в строительстве бани на том или ином этапе.
Доверьтесь профессионалам и отдыхайте с удовольствием!
Баня из газоблока, керамзитобетонных блоков и пеноблоков недорого под ключ Иркутск
Компания «Иркутск-ДОМостроево» выполнит строительство бани из различных видов автоклавного бетона: газоблока (газосиликатных блоков), пеноблока, керамзитобетонных блоков, шлакоблоков и т.д. с облицовкой кирпичом и дополнительным утеплением. С нами вы построите бани из газобетона недорого, «под ключ» со всеми коммуникациями и печью. Также возможно строительство бань из арболитовых блоков в Иркутске.
Цены на бани из газоблока и пеноблока под ключ
Мы предлагаем не только качественные бани под ключ из газоблока и пеноблока, но и уникальные сервисные условия, доступные цены и внимание к каждому клиенту!
Итак, если вы решили построить собственную баню на даче или на участке ИЖС и что она должна быть надежная и долговечная, то вам отлично подойдет такой стеновой материал как газобетон, пенобетон, шлакоблок, арболитовые блоки или телоблоки.
- Негорючий — газобетон и пенобетон не воспламеняется, что в бане очень важно!
- Теплый — стены из газобетона и пенобетона в 3-5 раз теплее кирпича;
- Экологичный — автоклавных бетон изготовлен из природных материалов без применения химических добавок;
- Не боится воды — газобетон и пенобетон состоит из водонерастворимого материала;
- Долговечный — искусственный камень не горит и не гниет обладает высокой морозостойкостью F100;
- Технологичный — газоблок и пеноблок легко обрабатывается, имеет хорошие геометрические показатели;
- Прочный — из газоблока и пеноблока можно возводить дома до 5 этажей.
Мы ценим ваше время и создаём для вас максимально комфортные условия, мы разработали специальный сервисный пакет для строительства бани:
- Консультация и расчет материала
Наши специалисты проконсультируют вас по строительству бани бесплатно, ознакомят с услугами, а также рассчитают смету на строительство бани БЕСПЛАТНО.
- Индивидуальное проектирование
Специально для вас мы предоставляем возможность проектирования бани под ваши удобства с учетом современных тенденций и требований. - Собственная техника
Имеем парк собственной строительной техники, что позволяет сэкономить до 40% на их землянных работах. - Выезд технического специалиста на объект
Наши специалисты выедут к вам на строительную площадку для обсуждения технический части строительства в день обращения!
Выполняем строительство бани из следующих блоков: Инси-Блок, AEROC, XELLA, UDK, ЛСР, ЕВРОАЭРОБЕТОН, YTONG, СТОУНЛАЙТ, СИБИТ.
Реконструкция ванной комнаты без беспорядка за один день | Bath Fitter
Добро пожаловать в Bath Fitter®. Наш единственный в своем роде процесс реконструкции подходит для вашей жизни.
С сотнями нестандартных дизайнов мы вписываемся в ваш стиль.
Благодаря нашей уникальной установке ванны на ванну всего за один день, мы вписываемся в ваш график. Благодаря пожизненной гарантии качества мы соответствуем вашим высоким стандартам. Почему более 2 миллионов довольных клиентов доверили ремонт ванны Bath Fitter®? Это просто подходит ™.
Какие мы разные!
Сборщик ванн, лучший способ
812D0486-46AD-4335-A093-108F525EC467Создано с помощью Sketchtool. Установка за один день
Завершите день с ванной, которая лучше той, с которой вы проснулись. Всего за 24 часа мы установим новую ванну или вкладыш для душа, чтобы они выглядели так, как вам нравится. Ванная комната вашей мечты ближе, чем вы думаете.
812D0486-46AD-4335-A093-108F525EC467Создано с помощью SketchTool. Без сноса, без беспорядка
Мы верим в созидание, а не в разрушение. Наши элегантные акриловые ванны изготавливаются по индивидуальному заказу, чтобы установить их прямо над вашей существующей ванной, чтобы не было сноса и беспорядка.
Это обновление ванной комнаты без головной боли с ремонтом.812D0486-46AD-4335-A093-108F525EC467Создано с помощью Sketchtool.Пожизненная гарантия
Ваша новая ванная комната выдержит испытание временем. Вот почему на всю продукцию Bath Fitter предоставляется пожизненная гарантия.
812D0486-46AD-4335-A093-108F525EC467Created with sketchtool.Design A Custom Bath
Воспользуйтесь нашим интерактивным инструментом для создания ванной комнаты своей мечты. Настройте свою реконструкцию, выбрав стиль ванны, цвет, тип стены, насадку для душа и многое другое. Попробуйте сотни уникальных комбинаций, чтобы найти нужный внешний вид и ощущения.
812D0486-46AD-4335-A093-108F525EC467Создано с помощью Sketchtool. Миллионы довольных клиентов
Мы преображаем дома уже более 35 лет, за плечами миллионы установок. Вы можете с уверенностью переделывать, зная, что мы усовершенствовали наш процесс, чтобы предоставить вам наилучший ремонт ванной комнаты.

Узнайте больше о программе Bath Fitter Advantage
Воспользуйтесь нашим интерактивным инструментом
Представьте себе все возможности
Дизайн собственной ванной комнаты еще никогда не был таким простым!
Найдите специалиста по монтажу ванн рядом с вами
Каждое место работает на местном уровне, чтобы удовлетворить уникальные потребности вашего района, и опирается на более чем 35-летний опыт работы мастера по ремонту ванн. Наши местные эксперты будут рады ответить на вопросы, изучить идеи дизайна и помочь вам сделать следующий шаг к вашей идеальной ванной комнате.
Найдите ближайший к вам магазин
С сотнями офисов в США и Канаде легко найти ближайший к вам магазин.
До и После
Эти преображения в ванной реальны, а не из реалити-шоу. И все установки заняли всего один день, без беспорядка сноса. Убедитесь сами, что может сделать Bath Fitter.
или просмотрите всю галерею
BeforeAfter
Вдохновитесь
Ваша идеальная ванна готова.
Изучите нашу галерею дизайна, чтобы найти вдохновение для ремонта.Посмотреть полную галерею вдохновения
Не могу сказать достаточно хороших слов о качестве изготовления…
Наша ванна/душ только что была преобразована в душ компанией Bath Fitter в Форт-Майерсе. , Флорида. Я не могу сказать достаточно хороших слов о качестве изготовления, а также о знаниях и профессионализме нашего установщика, Майкла Х. Я без колебаний рекомендую эту компанию и их продукт.
Элейн Сташак
Форт-Майерс, Флорида
Нам нравится наша новая комбинация душа и ванны!
«Наш установщик, Аллен, был очень профессионален и информировал нас на протяжении всего процесса. Он очень хорошо объяснял шаги, которые он будет выполнять, и спрашивал нас, как мы хотим, чтобы конечный продукт выглядел.
Нам очень нравится наша новая комбинация душ/ванна! Спасибо!»Джон Шупп
Северные Сиракузы, Нью-Йорк
Всем рекомендую
Сантехник
Знаю.Мой установщик Пол был очень профессиональным и эффективным. Он проделал исключительную работу. Моя ванная комната стала чище и намного опрятнее, чем она была у меня. Все в офисе были такими приятными и такими легкими в работе. Я буду рекомендовать Bath Fitter всем своим знакомым.
Кешия Джонсон
Уэст-Палм-Бич, Флорида,
Красивый цвет и потрясающие монтажники.
Питер Д. и Джастин С. из компании Bath Fitter Scarborough переоборудовали ванну в душ в доме моих родителей. Они были вежливы, быстры, чисты и очень просты в общении. Общий результат оказался намного лучше, чем я себе представлял, и выглядит потрясающе. Это даже делает ванную комнату больше.
Спасибо!Сандра Сантос
Скарборо, Онтарио
Выполнено за 7 часов без проблем.
Бренден превратил мою уродливую розовую душевую кабину в великолепный блестящий белый душ и ванну. Сделали за 7 часов без проблем. Это того стоит и гарантия на всю жизнь! Бренден был лучшим! Шум сведен к минимуму и не осталось ни пылинки. Наверное, лучший специалист, который работал у меня дома.
Dawn Puglisi
Cheektowaga, NY
Готовы поговорить с экспертом по установке ванн?
Закажите БЕСПЛАТНУЮ консультацию, позвонив нам по телефону 1 (800) 892-2847 или используя ссылку ниже, чтобы забронировать желаемую дату и время!
Проекты по замене — Columbia Gas of Ohio
Проекты по замене
Обновление COVID-19 В свете пандемии COVID-19 мы предпринимаем активные шаги для обеспечения безопасности наших клиентов, сотрудников и партнеров-подрядчиков.
Если нам нужно проникнуть в ваш дом или на работу для выполнения важной работы, знайте, что наши сотрудники и подрядчики следуют государственным распоряжениям и рекомендациям Центров по контролю и профилактике заболеваний.
Возможно, мы модернизируем газопроводы в вашем районе. Эта работа принесет вам долгосрочные выгоды, в том числе:
- Улучшенные функции безопасности
- Надежность службы на долгие годы
- Меньше ремонтных работ в вашем районе в будущем
- Системная поддержка таких удобств, как кострища, уличные грили, нагреватели для бассейнов
Посмотреть проект в действии
Посмотреть расшифровку
Существует множество различных компаний, предоставляющих услуги, связанные с природным газом. Вот где мы вписываемся в Columbia Gas.
Мы обязаны поставлять природный газ для обогрева вашего дома, подогрева воды и приготовления пищи. И для обслуживания газовых линий, используемых для доставки этого газа в ваш дом или бизнес.
Для доставки природного газа во многие дома, школы, больницы, магазины, предприятия и фабрики в вашем районе и по всему штату в нашей системе есть тысячи миль газопроводов.
Эти газопроводы являются важной частью нашей современной инфраструктуры, и, как и в случае с другими типами инфраструктуры, такими как дороги, плотины и мосты, со временем они изнашиваются, и в конечном итоге требуется ремонт или замена. Для многих газопроводов это время пришло. Старые газопроводы, проложенные в вашем районе несколько поколений назад, хорошо служили нам, но теперь их можно вывести из эксплуатации.
Вот почему мы запустили масштабную программу замены линий природного газа. Если мы ничего не предпримем, стоимость обслуживания и ремонта этих старых газопроводов будет выше, чем стоимость их замены. Это было бы бессмысленно, поэтому сейчас мы предпринимаем активные шаги, чтобы снизить затраты для клиентов.
Благодаря достижениям в области технологий с тех пор, как эти старые газовые линии были впервые введены в эксплуатацию, мы теперь устанавливаем специально разработанные, долговечные линии, более подходящие для подземного использования.
Они сжимаются и расширяются при изменении температуры и изгибаются по контуру земли вокруг них. В результате эти новые газопроводы не только прослужат дольше, но и потребуют меньше обслуживания. Все это экономит деньги и позволяет нам поддерживать безопасную, надежную и эффективную службу доставки природного газа, на которую вы в настоящее время рассчитываете каждый день.
Как и любой другой проект по улучшению инфраструктуры, модернизация нашей системы доставки природного газа может привести к временным неудобствам во время проведения работ. Если в вашем районе ведутся работы, мы благодарим вас за терпение и просим вас помнить о долгосрочных преимуществах. Вы получите уведомление в виде письма, а также дверной вешалки или личного визита сотрудника или подрядчика Columbia Gas задолго до начала каких-либо работ на вашей собственности или рядом с ней. Когда вы видите флаги и маркировку краской, обозначающую расположение подземных газопроводов и других инженерных сетей, скорее всего, скоро начнутся работы.
Мы часто используем новаторские методы замены канатов, чтобы ограничить объем необходимых копаний. При обновлении вашей линии обслуживания мы можем переместить ваш газовый счетчик на улицу, если он в настоящее время находится в вашем доме. Наша цель — свести к минимуму перерывы в обслуживании. Вы будете заранее уведомлены о любом временном прерывании обслуживания, которое обычно длится всего несколько часов. Внимательность и осторожность проявляются на протяжении всего процесса, обеспечивая вашу безопасность и ограничивая любые неудобства.
После замены газопровода мы полностью восстанавливаем помещение до его первоначального или лучшего состояния. Мы делаем все возможное, чтобы координировать наши работы по замене природного газа с другими инфраструктурными проектами, чтобы свести к минимуму неудобства. Общественная собственность, такая как улицы и тротуары, перестраивается в соответствии с требованиями местных органов власти. Ремонт может включать в себя новые тротуары, дороги со свежим покрытием и бордюры, соответствующие Закону об американцах-инвалидах, в зависимости от местоположения проекта и местных постановлений.
В Columbia Gas мы рассматриваем нашу программу замены линий природного газа как инвестиции в сообщества, которым мы служим. Модернизация, которую мы делаем сейчас, является частью нашего постоянного обязательства по надежной, безопасной и эффективной доставке вашего природного газа для будущих поколений.
Найдите ближайший к вам проект
Проекты планируются по всему штату. Чтобы узнать больше о ключевых проектах в вашем регионе, нажмите на области ниже.
Колумбус и Спрингфилд
См. Колумбус и Спрингфилд Проекты
Толедо и Северо -Западный Огайо
См. Проекты Толедо и Северо -Западный Огайо
Северо -восток и северо -центральный Огайо
Searh и северо -северный Огайо. См. Проекты Восточного и Южного Огайо
Получите ответы
Здесь представлены часто задаваемые вопросы о нашей работе.
Могу ли я получить природный газ или добавить дополнительные приборы?
Узнайте, есть ли в вашем доме газ, или позвоните нам по телефону 1-800-440-6111 .
Мы будем делиться любыми скидками или программами поощрения, доступными для добавления или модернизации оборудования, работающего на природном газе.
Спасибо за ответ.
Было ли это полезно?
я не покупатель; пострадает ли мой дом или бизнес?
Если вы получите от нас сообщение о проекте в вашем районе, ваш дом или бизнес могут быть затронуты строительными работами в вашем районе.
Спасибо за ответ.
Было ли это полезно?
Откуда мне знать, что все будет восстановлено до прежнего состояния?
В начале проекта мы документируем текущее состояние вашей недвижимости.
Мы можем даже снимать фотографии или видеоматериалы.
Спасибо за ответ.
Было ли это полезно?
Вы перекроете мою улицу или подъезд?
Мы можем временно заблокировать доступ к целой улице, переулку или даже подъездной дорожке. Если вам нужен доступ к подъездной дорожке, сообщите об этом нашим бригадам. Когда это будет безопасно, они выполнят вашу просьбу. Большая часть наших копаний будет проводиться в травянистой части общественных полос и дворов, но часто наше оборудование находится на улице, пока мы работаем. Мы будем работать с соседями, чтобы свести к минимуму перекрытие дорог и заторов, но, пожалуйста, будьте бдительны и соблюдайте осторожность в наших рабочих зонах.
Спасибо за ответ.
Было ли это полезно?
Придется ли мне доплачивать за этот проект?
Нет, вам не придется платить конкретно за этот проект благоустройства в вашем районе.
Затраты на строительство, техническое обслуживание и модернизацию нашей газопроводной системы распределяются между всеми клиентами и являются частью вашего ежемесячного счета.
Спасибо за ответ.
Было ли это полезно?
Когда и на какой срок отключат газ?
Ваша газовая служба будет временно отключена, когда мы приступим к работе с вашим счетчиком. Если ваш счетчик уже находится снаружи, ваше газоснабжение может быть отключено, когда мы подсоединим вашу сервисную линию к магистральной газопроводу. Это отключение будет кратковременным, обычно от 2 до 4 часов. После того, как мы закончим, нам нужно будет вернуться в ваш дом или на работу, чтобы мы могли провести проверку безопасности ваших газовых приборов и внутренних газовых линий, включить газ и снова зажечь ваши приборы.
Примечание : Кто-то в возрасте 18 лет и старше должен находиться в вашем доме или на работе, а домашние животные должны быть в безопасности, когда мы будем там, чтобы починить ваш счетчик и снова включить газ.
Спасибо за ответ.
Было ли это полезно?
Как этот проект повлияет на мой исторический район?
Мы будем координировать свои действия с местными официальными лицами по сохранению исторических памятников, чтобы наша работа соответствовала местным правилам, ограничениям и разрешительным требованиям.
Спасибо за ответ.
Было ли это полезно?
Почему вы заменяете линии природного газа в моем районе?
Мы стремимся предоставлять безопасные и надежные услуги у вас дома или в офисе.
Хотя нынешняя система хорошо зарекомендовала себя, пришло время заменить газопроводы более новыми материалами, которые будут служить вашему сообществу долгие годы.
Спасибо за ответ.
Было ли это полезно?
Что я могу ожидать?
Сначала вы заметите, что наши представители проводят предварительную работу, чтобы гарантировать, что трубопроводы будут проложены наименее инвазивным способом. Это будет включать в себя поиск и маркировку всех подземных коммуникаций, таких как водопровод и кабель. Затем мы обычно заменяем или добавляем основные линии вдоль улицы или полосы отчуждения. Затем мы строим линии обслуживания, которые соединяют сеть с домами или предприятиями. В качестве меры безопасности мы также можем заменить старые внутренние счетчики газа на новые наружные счетчики.
Спасибо за ответ.
Было ли это полезно?
Прервется ли мое газоснабжение?
Эта работа может ненадолго прервать вашу газовую службу. Если это так, мы свяжемся с вами, чтобы запланировать работу и принять меры для проверки ваших домашних линий, проверки безопасности и восстановления вашего обслуживания.
Спасибо за ответ.
Было ли это полезно?
В какое время суток обычно проводится работа?
Строительство в основном будет проходить примерно с 8:30 до 17:30. С понедельника до пятницы.
Спасибо за ответ.
Было ли это полезно?
Как я могу идентифицировать ваших сотрудников и подрядчиков?
Всех наших сотрудников и подрядчиков можно узнать по маркированным автомобилям.
У них также есть удостоверение личности с фотографией.
Спасибо за ответ.
Было ли это полезно?
Вам нужно будет перекопать мой двор, тротуар или подъездную дорожку, и если придется, то кто будет это чинить?
Поскольку все трубопроводы природного газа заглублены, потребуются некоторые земляные работы. Мы постараемся свести к минимуму объем необходимых копаний. Если мы потревожим ваш двор, тротуар и/или подъездную дорожку, мы отремонтируем поврежденные участки, как только позволит погода. Первоначальная реставрация, такая как выравнивание поверхностей, будет завершена по мере реализации проекта.
Спасибо за ответ.
Было ли это полезно?
Сколько времени это займет?
Многие факторы, в том числе погода, могут повлиять на график строительства наших проектов.


Он интенсивно впитывает влагу. Именно по этой причине крайне важно уделить особое внимание гидроизоляции.

Это обновление ванной комнаты без головной боли с ремонтом.
Нам очень нравится наша новая комбинация душ/ванна! Спасибо!»
Спасибо!