Монолитное перекрытие по профнастилу чертежи: Монолитное перекрытие по профнастилу чертежи, расчет и монтаж
Монолитное перекрытие по профнастилу: технология, расчет, чертежи
Железобетонное перекрытие – это практически незаменимая технология при строительстве. Предлагаем рассмотреть, как выполнить монолитное перекрытие по профнастилу, его технологию, чертежи и расчет.
Преимущества перекрытия с профнастилом
На заливку потолка в любом помещении, подсобного или жилого характера, тратится большое количество времени, во многом из-за того, что после окончания основных работ необходимо переходить к отделочным. Но, используя профнастил, эта часть рабочего процесса отпадает сама собой. Кроме того, гофра профильного листа помогает придать конструкции жесткости и прочности.
Фото — Перекрытие по профнастилу- Долговечность конструкции;
- Относительная дешевизна. В любом случае, это гораздо доступнее, чем установка бетонного перекрытия на деревянные опалубки;
- Высокая прочность и низкий вес.
Из-за того, что бетонный раствор ложится не по всей плоскости железного листа, а только в промежутки между ребрами, обеспечивается значительная экономия строительного материала, арматуры и прочих необходимых деталей, в сравнении со сплошным покрытием.
Единственное замечание, нужно использовать только кровельные листы, они идеально подходят под бетонную заливку.
Видео: Монолитное ребристое перекрытие
Особенности конструкции
В нашем случае монолитное перекрытие представляет собой несъемный опалубок из профильного настила, на который укладывается цементный раствор, вся конструкция опирается на специальные несущие опоры (каркасные сооружения), которые состоят из прочных и жестких металлических колонн, балок, лаг. Таким образом, основная нагрузка от перекрытия из профнастила подается на эти опоры, а не на стены, благодаря чему можно не бояться того, что материал и конструкция стен не выдержит такого тяжелого «соседства сверху». Такая система позволяет соорудить стены даже из очень легкого материала, типа ракушника, пеноблоков и прочих.
Также данная опорная система позволяет вместо очень затратного, дорогого и сложного ленточного фундамента первого этажа, установить более экономный и простой вариант – стаканный тип опоры дома.
Расчет
Чтобы рассчитать монолитное перекрытие из профнастила для коттеджа или частного дома, нужно воспользоваться услугами профессионала. Конечно, сейчас существует множество программ (Автокад, СолитВоркс, Компасс), которые могут помочь Вам в этом деле, но нет гарантии, что их подсчет и смета точно будут соответствовать действительности, у программы ведь нет системы «один лист сломался», или «мешок цемента смешали с большим количеством песка».
В свою очередь мы хотим дать несколько рекомендаций по подсчету затрат на монолитку:
- Вам понадобятся точные размеры помещения, которое перекрывается, для этого нужно подготовить чертеж, можно в формате dwg, размеры которого полностью соответствуют реальным данным.
Кроме того, необходимо использование технологической карты, это поможет дисциплинировать процесс; Фото — Технологическая карта - Безбалочное перекрытие подойдет только для небольших конструкция или помещений с прочными стенами, у которых высокие показатели жесткости. Несмотря на его низкую стоимость, оно не отличается прочностью. В таком случае нужно работать металлическим профнастилом с большими ребрами жесткости – от 20 мм. Это кровельные марки: НС35, НС100 и т.д.
- Далее нужно рассчитать нагрузки от перекрытия, этот показатель может быть не точным, но допускается погрешность в 0,5 кг. Исходя из этого показателя, Вы сможете подобрать необходимые размеры поперечных сечений балок;
- Чаще всего специалисты используют квадратные и круглые трубы для сооружения колонн, и швеллеры, и двутавры для перекрывающих балок. Конечно, Вы можете самостоятельно подобрать по своим потребностям размеры сечений;
- Далее нужно проанализировать вид используемого профнастила.
Если Вы применяете кровельный профнастил с высокой гофрой, то расстояние между балками будет большое. В том случае, если Вы используете стеновой материал для создания перекрытия, то нужно сделать маленькое расстояние между балками; - Также огромную роль играет толщина профнастила, от этого показателя напрямую зависит несущая способность материала, к примеру, если нужно перекрыть поверхность, где у балок шаг 3 метра, нужно использовать профильный лист толщиной около 0,8 или 0,9 мм. Проектированию на этом этапе нужно уделить особое внимание, иначе при неправильном подборе длины и ширины, настил начнет изгибаться под давлением бетонного раствора и силы тяжести, впоследствии он деформируется, возможно, даже обрушиться;
- У многих строителей возникают вопросы касаемо крепления листов, ведь считается, что саморезы подходят только для установки профильного листа как материала для покрытия крови. Это не совсем верно. В любом случае мы не советуем использовать в работе гвозди, т.к.
они негативно влияют на несущие способности, понижают геометрическую точность и нарушают целость профиля, что последствии может стать причиной ускоренного разрушения перекрытия. Чтобы не допустить прогиб, нужно применять заклепки и строительные шурупы через каждые 20 см. Если Ваше перекрытие шириной около 10 метров, то понадобится устанавливать крепежные детали чаще; - Стандартное крепление профиля осуществляется при использовании усиленных саморезов, чаще всего с геометрическими показателями 5,5х32 (еще их называют «буровые», «бронебойные», «жесткие»). Эти детали помогают прочно установить профнастил своими руками, гарантировать жесткость и точность монтажа, кроме того, они могут просверливать отверстие без сверла.
- Крепление осуществляется по волнам, т.е. во впадинах профильного листа. Это помогает обеспечить высокую жесткость и фиксировать расположение профильных оснований. Вам в любом случае нужно будет создать узлы (стыки листов), в данном случае делается нахлест в 40-60 мм, монтаж осуществляется при помощи саморезов длиной в 25 мм, а диаметром шапочки – 5,5.
Шаг крепления – 40 см;
Устройство монолитного перекрытия по профнастилу не обходится без армирования, цена которого зачастую выше, чем монтаж всей кровли. Специалисты советуют использовать арматуру с данными А 400С, диаметром сечения 10,8 мм. Такая толщина является достаточной для того, чтобы обеспечить перекрытию технологическую несущую прочность и жесткость.
Монтаж арматуры на профильный лист отличается особой технологией: трубы устанавливаются в каждое углубление. После они фиксируются специальными строительными зажимами, крепится к ребрам жесткости. Эти строительные арматурные скобы можно сделать самому из той же арматуры, только понадобятся специальные приспособления для гибки металла и шаблоны, по которым нужно создавать определенную форму.
Фото — Армирование перекрытияСамое важное замечание – нужно заливать бетоном арматуру таким образом, чтобы между листами было 2-4 см раствора, только так Вы обеспечите нужную несущую способность перекрытия.
Заливка бетона
Очень важно бетонное покрытие, его показатели являются основными в создании перекрытия профнастила.
Нужно отметить, что минимальное покрытие бетоном железобетонных конструкция на основе профнастила, должно составлять не меньше 7 см. Заливка осуществляется по горизонтальным балкам, изначально покрываются впадины профильного листа, после заливается вся площадь.
Помните, что работать желательно в ускоренном темпе, т.к. профильный лист очень быстро нагревается, и сушит бетонное покрытие, как говорит строительный форум, это значительно усложняет течение работ.
28 Март 2014 Автор: Владимир Бакаев
Как проводится монолитное перекрытие по профнастилу: видеоинструкция
Монолитные бетонные конструкции в строительстве – это далеко не новость. Сейчас можно найти множество книг и пособий еще советского периода, в которых понятно и просто описывается эта технология. Монолитное перекрытие по профнастилу пользуется популярностью за счет низкой стоимости и гибкой формы, а конструкция благодаря выбору такой технологии получается очень прочной и надежной.![]()
Чем отличается монолитное перекрытие
До недавнего времени строители пользовались технологией бетонирования – сочетание высокой стоимости и малой грузоподъемности дает низкие результаты. При этом используется тяжелый физический труд. Открытие перекрытия по профнастилу позволило уменьшить затраты и время на возведение конструкций.
Стальной профилированный лист, покрытый цинком или полимером, является отличным защитником от внешних атмосферных условий. Но возведение такой конструкции всегда сопряжено с риском, особенно если за выполнение этой работы берется новичок.
Поэтому если вы не уверены в своих силах, то лучше обратиться к профессионалам.
Где используются монолитные перекрытия
Такой вид перекрытия используется во многих видах строительства:
- создание гаражей;
- возведение многоэтажных домов;
- строительство террас и прочих сооружений.
Читайте также: Пошаговое армирование плиты перекрытия своими руками
В современном мире такую технологию выбирают потому, что она сокращает расходы на арматуру и бетон, а вместе с тем урезается и физический труд.
Устройство монолитных перекрытий по профнастилу выглядит следующим образом:
- Балки, на которых будет держаться вся конструкция.
- Несъемная опалубка, сделанная из профнастила, выполняет роль арматуры. Профнастил являет собой гофрированные листы, которые прошли оцинковывание. Они имеют хороший эстетичный вид и не подвержены коррозии.
- Сверху укладывается гибкая арматура, стержневой анкер вертикального типа и арматурная сетка.
- Вся конструкция заливается бетоном.
Вокруг такого типа перекрытий часто разгораются споры за и против, но плюс профнастила в его легкости, а значит, этот материал можно использовать для восстановления старых и ветхих домов.
Монолитное перекрытие по профнастилу своими руками
Подобное покрытие одновременно является и полом следующего этажа и потолком этого, поэтому к возведению стоит подходить со всей серьезностью. Правильность конструкции напрямую связана с долгосрочностью и безопасностью, так что выполнять строительство стоит по всем законам.
Сначала проводятся подготовительные мероприятия:
- расчет шага балок и несущей способности;
- расчет материалов для перекрытий;
- закладные в стенах и столбах, которые будут указываться на чертежах.
Если пренебречь любым из подготовительных шагов, вы рискуете получить провисание конструкции и ее неустойчивость. Кроме того, любой отход от плана сопровождается повышением стоимости строительства и тратой лишних средств.
Основные правила, которые помогут создать перекрытие по профнастилу
- Всегда используйте чертежи. С момента их создания и до конца строительства опирайтесь на ваши расчеты – так вы можете вычислить ошибку и исправить ее.
- Между балок необходимо размещать подпорки, что позволит избежать прогиба профлиста.
- Для опорных колонн используют трубы из металла или асбеста, а для балок – швеллеры или металлические двутавры.
- Когда вы укладываете балки, соблюдайте шаг, вычисленный вами в чертежах.
- Шаг балок напрямую зависит от размеров и формы профлиста.

- При заливке бетоном могут возникнуть нежелательные провисания: чтобы этого избежать, укладывайте на профлист три балки. Одна центральная, а две другие боковые.
- При монтаже мастера используют саморезы с усиленным буром (еще их называют бронебойными).
- Перед заливкой конструкции бетоном необходимо подготовить поверхность и установить палки-опоры.
При условии, что вы выполняете все рекомендации, самостоятельно сделать монолитное перекрытие про профлисту несложно. Но если вы не уверены в своих способностях, то лучше доверить расчет проектировщикам.
Читайте также: Какие особенности имеет фасадная штукатурка для газобетона
Ошибки, которых нужно избегать
При строительстве любой новичок сталкивается с трудностями уже на этапе расчетов. Любое игнорирование инструкций может привести не только к недолговечности дома, но и к чьей-то смерти, поэтому:
- не экономьте на материалах;
- грамотно рассчитайте количество материалов на чертежах, чтобы не приходилось докупать еще;
- не нарушайте правила монтажа и проектирования;
- ответственно выбирайте профнастил и арматуру для каркаса.

Чтобы технология перекрытия по профлисту была правильной, обратитесь к профессиональным проектировщикам и рабочим. Если вы считаете, что вашего опыта недостаточно, то лучше прибегнуть к помощи мастера, так как неправильный монтаж влечет за собой непредвиденные траты и нарушение сроков строительства.
Монолитное перекрытие по профлисту: расчет, устройство, чертеж, схема
Профнастил сегодня играет не последнюю роль в процессе строительства. Помимо его основного предназначения (кровля, возведение заборов и т. д.), он используется в виде монолитного перекрытия, которое имеет ряд преимуществ: обладает высокой прочностью, уменьшает нагрузку на фундамент, доступно по цене, а в некоторых случаях, используя монолитное перекрытие, обойтись можно и без отделки потолка.
Благодаря наличию волн на листе расход бетонной смеси будет значительно ниже, что уменьшит расходы на стройку.
Популярность профнастила объясняется и другими его качествами:
- обширное использование при строительстве разных видов зданий и сооружений;
- устойчивость к коррозии в результате обработки специальным покрытием, что увеличивает срок службы металла;
- легкость материала упрощает процесс работы, а его транспортировка не требует дополнительных усилий и помощи.
- обладает высокой прочностью, что позволяет выдерживать большой вес;
- относительно дешевое покрытие, и в то же время хорошего качества, чего не сказать о других материалах;
- безопасный в экологическом смысле, не выделяет вредных химических веществ и не имеет запаха;
- огнестойкий;
- достойный внешний вид, а благодаря разнообразию цветовой гаммы впишется в любой интерьер;
- устойчивый к любым погодным условиям, к тому же на его поверхности никогда нельзя встретить лишайники или мох.

Недостатком профнастила является его низкая звукоизоляция, особенно когда на лист попадают осадки.
Читайте также: Как покрыть крышу профнастилом
Самый важный этап работы – это расчет. Если он составлен не точно, это повлечет за собой не только дополнительные расходы, но и угрозу жизни. При расчете необходимо учесть размеры будущей постройки, вес конструкции и нагрузку на перекрытие. Толщина плиты определяется из расчета 1:30. Например, если расстояние между опорными столбами 3 м, то слой бетона делается как минимум 100 мм. Технико-экономические расчеты лучше проводить не самостоятельно, а довериться профессионалам.
При установке металлических балок необходимо учесть глубину волны. Чем больше глубина, тем чаще должны стоять балки. Делается это во избежание прогибов листа. Однако при строительстве перекрытия между этажом и чердаком установку можно сделать без поддерживающих балок. Объясняется это небольшими нагрузками. Монтаж проводится с опорой листа на стены с временными подпорками, а арматура приваривается к колоннам во всех точках соприкосновения.
Монолит размещается между колоннами, не прерываясь. Бетон заливается за один раз.
После расчетов, когда установлены металлические балки, делается монтаж несъемной опалубки в виде профлиста. Листы кладут с нахлестом и в этом же месте скрепляют их при помощи заклепок.
Следующий шаг – армирование. Арматура представляет собой систему из прутьев, которые укладываются в каждую из волн профлиста. Это обеспечивает дополнительную прочность бетону. Если прочность необходимо увеличить, ставятся поперечные прутья. Примерный размер ячеек составляет 20×20 см. Места их стыковки можно сварить, а можно закрепить проволокой из стали. Перед заливкой бетона также необходимо установить опоры по краям листа.
Далее можно приступать к укладке бетонной смеси. Для начала поверхность несъемной опалубки очищается от мусора и загрязнений, хорошо промывается водой и высушивается. Бетон укладывается в шахматном порядке, что позволяет равномерно распределить нагрузку по профлисту. Работы с бетоном лучше проводить в плюсовую температуру, так как на холоде он будет очень долго застывать.
Желательно произвести заливку за один раз. Только после того, как смесь полностью высохнет, убираются опорные доски. В сухую и жаркую погоду поверхность желательно периодически увлажнять, чтобы она не потрескалась. Дальнейшие работы можно продолжать спустя как минимум 25 суток.
Помимо бетонного слоя, допустимо использовать еще утеплитель, который прокладывается до заливки бетонной смеси. Это обеспечивает звукоизоляцию, а тепло в помещении сохраняется дольше.
На рисунке представлен порядок слоев монолитного перекрытия:
Перекрытие по профнастилу под силу сделать своими руками, если имеются точные чертежи и схемы.
При выборе материала следует учесть его дополнительные характеристики, например, покрытие листа:
- оцинковка. Является самым дешевым и недолговечным вариантом, однако самым распространенным;
- алюцинковое покрытие. Состоит из алюминия и кремния, за счет этого предохраняет лист от царапин и прочих механических повреждений;
- покрытие глянцевой краской позволяет осуществить колеровку в любой цвет поверх защитного слоя;
- покрытие матовой краской гарантирует повышенную износостойкость;
- пластизол.
Позволяет создать текстурную отделку под дерево, кожу и пр. Устойчив к внешним воздействиям, переносит любую температуру; - пураловое покрытие. Гарантирует срок службы листа до 50 лет;
- красочное покрытие ПВДФ усиленно защищает материал от ультрафиолета и химических воздействий.
Для резки листов используется любой режущий инструмент, например, электрические ножницы или ножницы по металлу, а также дисковая пила. Зубья на пилах должны быть из твердого сплава. Пользоваться болгаркой категорически запрещено, так как в процессе разрезания образуется высокая температура, покрытие выгорает, и металл теряет свою стойкость к коррозии.
Читайте также: Что выбрать для крыши: металлочерепицу или профнастил
Конечно, данная технология железобетонного перекрытия не является единственной. Альтернативой может служить и классическая бетонная заливка. Монолитное покрытие будет удобно только в том случае, если стройка ведется на частной территории, куда тяжелая техника заехать не может.
Перекрытие по профлисту чертеж
Преимущества перекрытия с профнастилом
На заливку потолка в любом помещении, подсобного или жилого характера, тратится большое количество времени, во многом из-за того, что после окончания основных работ необходимо переходить к отделочным. Но, используя профнастил, эта часть рабочего процесса отпадает сама собой. Кроме того, гофра профильного листа помогает придать конструкции жесткости и прочности.
Особенности строительства монолитной конструкции по профнастилу
Монолитное перекрытие по профнастилу имеет массу преимуществ, которые отличают систему от той, что предполагает наличие монолитного железобетонного перекрытия. Последнее из них предусматривает обустройство опалубки, которая необходима для заливки и застывания раствора. А вот если вы будете применять профнастил при проведении такого рода работ, то это позволит получить в постройке готовый потолок.
После завершения процесса его внутреннюю поверхность не понадобится отделывать.
В конструкции системы есть переменный профиль листового полотна, это придает сечению перекрытия ребристость, что гарантирует отличные прочностные характеристики, а вот затраты на арматуру и раствор окажутся меньше.
Преимущества материала
На данный момент профлист является наиболее оптимальным вариантом для перекрытия, так как он не подвержен негативному воздействию окружающей среды и не деформируется под большими нагрузками. Более того, он имеет достаточно невысокую стоимость и имеет широкий ассортимент расцветок и размеров. Это и делает профлист таким востребованным материалом.
Общая информация о монолитной конструкции
Система из профнастила надёжная и, благодаря характеристикам и технологии, позволит возвести прочное и долговечное сооружение, которое позже можно будет оббить фасадными панелями под дерево. Плюсом в данном покрытии является его лёгкий вес, позволяющий укладывать его в любом направлении без особого труда, а также удобная погрузка при транспортировке и особенно долгое пользование материалом.
Преимущества монолитного перекрытия по профнастилу
Если говорить о монолитном перекрытии по профнастилу, то стоит выделить некоторые преимущества: можно применять, какой угодно вид материала, настил служит несъемной опалубкой, значительно снижает нагрузки на основание.
Преимущества перекрытий по профнастилу
Такие монолитные перекрытия, в отличие от железобетонных, подразумевающих заливку с применением специально создаваемой опалубки, позволяет по завершении работ получить готовый потолок, не требующий проведения дополнительных доработок и отделок. Профнастил, как указывалось ранее, будет армировать монолит. Возможность применения разнообразных типов профилированного листа при возведении перекрытий является достаточно важным преимуществом, так как при желании или необходимости сечение можно делать ребристым. За счет этого повышается надежность и прочность плиты, к тому же, это уменьшает расход арматуры и бетонной смеси во время строительства.
Перекрытие из бетона по профлисту
Блок: 1/5 | Кол-во символов: 162
Источник: https://www.
forumhouse.ru/articles/house/7603
Как залить безопорное монолитное перекрытие по профлисту – расчеты, практические советы от умельцев FORUMHOUSE
Наряду с деревянными перекрытиями и перекрытиями железобетонными плитами, среди частных застройщиков популярны и монолитные. К их достоинствам можно отнести не только основательность и долговечность, присущую тем же плитам, но и возможность перекрывать помещения любой конфигурации. При этом к недостаткам относят большую массу плит, требующую усиленного основания и стеновых материалов повышенной прочности, и необходимость сборки опалубки. Поэтому многие самозастройщики, в том числе и умельцы нашего портала, предпочитают облегченную разновидность – монолитные перекрытия по профилированному листу, о которых и пойдет речь в материале. Рассмотрим:
- Что такое монолитное перекрытие по профилированному листу.
- Технология устройства сталежелезобетонных перекрытий.
- Опыт участников портала по устройству безопорных монолитных перекрытий по профлисту.

Блок: 2/5 | Кол-во символов: 991
Источник: https://www.forumhouse.ru/articles/house/7603
Основные сведения
Заливка перекрытий с основой из профлиста представляет собой создание монолитной плиты, обладающей повышенной прочностью, запасом надежности. При изготовлении используется оцинкованный профилированный лист, материал с полимерной защитой, являющийся основой. Она выполняет функцию стационарной опалубки, заливаемой бетонным раствором. Силовую нагрузку воспринимают металлические каркасы.
Перекрытия на базе профлиста и бетонного раствора, при правильном расчете и в соответствии со всеми правилами проектирования, имеют продолжительный срок эксплуатации и высокую прочность. Соблюдение всех необходимых требований и пропорций определяет надежность постройки и безопасность людей, находящихся в здании.
Блок: 2/10 | Кол-во символов: 721
Источник: https://pobetony.ru/bloki-i-perekrytiya/perekrytie-po-proflistu/
Инструменты и материалы для работ
В работе с монолитным перекрытием вам пригодятся следующие инструменты и материалы:
Основание из профиля
- цемент;
- песок;
- емкость;
- бетономешалка;
- лопата;
- профнастил;
- саморезы;
- арматура;
- опалубка;
- мастерок.

Блок: 2/7 | Кол-во символов: 226
Источник: https://DomZastroika.ru/slabs/perekrytie-po-profnastilu-monolitnoe.html
Преимущества монолитного перекрытия по профлисту
- Организационные и финансовые издержки при устройстве перекрытия по профнастилу не особо высоки.
- Геометрическая форма и размеры у них могут быть практически любыми.
- Заливка перекрытия по профнастилу менее трудоемкая и не требует установки опалубки. Гребни профилированного металлического листа существенно уменьшают расход бетона, что зачастую становится важным аргументом в пользу выбора данного решения.
- Монтаж системы довольно прост, и справиться с ним сможет и новичок.
- За счет относительно небольшого веса профлистов монолитное перекрытие весит меньше, чем традиционные железобетонные конструкции с разборной опалубкой. И это при их довольно-таки высокой прочности. Таким образом такая система воздействует на фундамент с меньшей силой, что позволяет эффективно использовать ее при ремонте в ветхих зданиях.
К тому же профлист позволяет добиться равномерного распределения всех усилий на фундамент.
- Профнастил, став частью монолитной конструкции, фактически выполняет функции основного армирующего каркаса.
- Конструктивная толщина бетонного перекрытия по профнастилу может различаться зависимо от мест применения, поэтому требует предварительного расчета.
- Монтаж занимает значительно меньше времени.
- Готовая плита перекрытия по профнастилу не менее прочна, чем остальные аналоги. Более того, металлопрофиль делает всю конструкцию даже более жесткой и надежной.
- Профнастил для перекрытия может различаться по разновидности и марке.
- Перекрытие огнестойкое: огнестойкость однопролетной плиты с внешним открытым армированием составляет примерно пол часа, а в случае многопролетных монолитных конструкций, армированных по пролету – от 45 минут.
- Межэтажные металлические перекрытия имеют особое опалубочное усиление, дающее возможность сразу же получить потолок, которому не требуется дополнительная отделка или доработка.

- Особенно часто конструкции этого типа используют для зданий, имеющих металлический каркас. Колонны связываются с перекрытием посредством арматуры, что делает каркас, более жестким и устойчивым.
Блок: 2/5 | Кол-во символов: 2082
Источник: http://stylekrov.ru/monolitnoe-perekrytie-po-profnastilu.html
Расчет перекрытия
- Технология перекрытия по профлисту сводится к монтажу опалубка из металлопрофиля, поверх которого сооружен арматурный каркас.
- Нагрузка, воздействующую на бетонную плиту, через монолитное перекрытие по металлическим балкам передается на опорные балки и фундамент.
- Вид и марка профнастила для перекрытий, сечение металлических элементов арматуры и габариты бетонной полки зависят от длины пролета между опорами и от эксплуатационной нагрузки. Для расчета толщины плиты чаще всего пользуются его отношением к величине пролета, равным один к тридцати. То есть, при длине пролета в 6 метров толщина бетонного слоя должна как минимум равняться 20 см.

- Расчет монолитного перекрытия по профнастилу основывается на испытываемых им расчетных нагрузках, а также весе имеющихся конструкций и размерах сооружаемого здания. От этих параметров зависит, каким должен быть профиль и сечение металлических опорных балок каркаса, колонн, характеристики фундамента.
- Системы данного типа относят к разряду конструктивно ответственных строй объектов, поэтому монтажные работы начинают только после подготовки соответствующей проектной документации. Последнюю, как и расчет прочностных характеристик выполняют на основе соответствующих СниП, в частности касающихся стальных или ж/б (бетонных) конструкций.
- Такой расчет достаточно сложен и трудоемок, поэтому проектировщики, как правило, прибегают к помощи специальных программ. Рабочая документация монолитного бетонного перекрытия по профнастилу включает план, чертежи опалубки, армирования (в основном в формате dwg), а также спецификацию материалов.
Блок: 4/5 | Кол-во символов: 1611
Источник: http://stylekrov.
ru/monolitnoe-perekrytie-po-profnastilu.html
Пример расчета монолитного перекрытия
Изготовление осуществляется посредством сооружения опалубки из профнастила, на которую сверху укладывается арматурная пространственная сетка. Опорами служат продольные металлические балки. Именно на них плита передает всю нагрузку от вышележащих конструктивных систем здания. После чего усилия распространяются на несущие стены и фундамент.
Профиль листа, толщина изготовляемого изделия и сечение арматурных стержней рассчитываются исходя из фактической нагрузки и размера пролетной части между опорными элементами. Зачастую толщина монолитной плиты составляет 1:30 от длины. То есть если последний параметр равен 6 м, то слой бетонного раствора должен быть не менее 200 мм.
Нюансы расчета размеров:
- На этом этапе в основу берутся габариты возводимого сооружения, расчетные сосредоточенные и распределенные нагрузки, а также собственный вес перекрытия. Тогда можно определить профиль и сечение металлических балок и колонн и характеристики фундамента.

- Так как монолитное перекрытие является особо важной конструктивной частью здания, монтажные работы должны проводиться на основании соответствующих проектных документаций. Сам расчет прочностных характеристик рекомендуется делать согласно нормативным документам СНиП II-23-81 «Стальные конструкции» и СНиП -84 «Железобетонные и бетонные конструкции».
- Для устройства опорных колонн рекомендуется использовать круглые или квадратные гнуто-сварные профили, а для балок – швеллеры или двутавры. Однако выбор сечения напрямую зависит от пожеланий застройщика.
- Безбалочные варианты можно монтировать только для малоэтажных зданий. При этом профнастил должен иметь большие ребра жесткости (более 20 мм), что соответствует маркам НС35, НС100.
- Далее проводится расчет усилий от перекрытия. Он не всегда получается точным, поэтому возможна погрешность не более 0,5 кг. На основе результатов определяется поперечное сечение балочных элементов.
- Важно своевременно определить вид листа.
Используя кровельный материал с гофрой большой высоты, пролет балок должен быть значительным. Если волна достаточно мелкая, то для обеспечения жесткости расстояние уменьшается.
Стоит обратить внимание на толщину металлического изделия, так как это сильно влияет на несущую способность. К примеру, если шаг опор составляет 3 м, то размер профлиста должен быть не менее 0,8 мм. Очень важно правильно рассчитать его габариты. Если они будут недостаточны, произойдет сильный прогиб, деформация или даже полное обрушение под давлением бетонного раствора.
Технология устройства перекрытия
Основывается на выполнении следующих этапов:
- Создание опалубки из профнастила.
- Сооружение пространственного каркаса из арматуры.
- Заливка смеси.
- Уход.
1. Установка опалубочной системы.
Металлические элементы крепятся к опорным балкам посредством бронебойных саморезов размером от 32 мм. Для исключения прогибающих деформаций под действием бетона рекомендуется установить временные опоры в пролетной части.
Их количество зависит от длины перекрытия, высоты гофры и толщины профнастила. Демонтаж стоек разрешается проводить только после набора прочности.
2. Монтаж арматурного каркаса.
Для повышения несущей способности монолитного перекрытия используется каркас, изготовленный из продольных и поперечных арматурных стержней. Длинные элементы укладываются в гофру листа, а короткие поперечные позволяют возвысить сетку на определенном уровне (зачастую не более 20 мм), чтобы она полностью закрывалась раствором.
Стержни, располагающиеся между балок, должны иметь обязательно цельный вид. В тех местах, где профлист опирается на несущие конструкции здания, а также на балки в крайних точках, арматура доводится непосредственно до самого края. Максимальная погрешность этого показателя может составлять не более 20 мм, в противном случае под давлением бетона и других усилий нагрузка будет перераспределяться на металлические полотна.
Сетка арматуры изготавливается на строительной площадке и имеет ячейки 20х20 см.
Стержни используются диаметром от 4-6 мм и соединяются между собой при помощи сварки или оцинкованной проволоки. Иногда застройщики заказывают готовый каркас по соответствующим размерам.
3. Бетонные работы.
Перед началом заливки плиты монолитной конструкции следует провести подготовку поверхности. Опалубка из профнастила очищается от постороннего мусора, промывается водой и просушивается. Можно воспользоваться несколькими способами заливки:
- Передвижным или стационарным бетононасосом.
- Ленточным транспортером.
- Бадьей, которая подается на определенную высоту при помощи стрелового крана.
Такие методы обеспечивают заливку за один раз. Строительная гладилка позволяет выровнять всю плоскость, а уплотнение осуществляется с помощью глубинного вибратора. Рекомендуется поверхность плиты железнить, для чего понадобится сухой цемент. Также он позволит защитить ее от внешних воздействий. Если нет возможности провести заливочные работы одновременно, тогда плита разбивается на несколько участков или пролетов, после чего постепенно укладывается смесь.
Однако при проведении такой технологии каждый слой необходимо фиксировать, чтобы знать, когда снимать те или иные опоры.
Согласно нормативным документам монолитная конструкция должна заливаться с учетом перекрывания верхнего горизонта волн:
- В безбалочном типе толщина бетона должна составлять более 250 мм, причем измерения проводятся от нижней части гофры.
- В балочном – около 75-80 мм, но размеры замеряются от верхнего края профлиста.
4. Уход.
Погодные условия сильно влияют на технологический процесс изготовления. Для предотвращения образования трещин, снижающих несущую способность, необходимо постоянно следить за состоянием бетона, проводить увлажнение и укрытие специальными материалами, поддерживающими влажность до 70%. Укладку рекомендуется проводить в теплое время при температуре выше +5°C. Если температура будет варьироваться в пределах +20-25°C, полное затвердевание может настичь в течение 15 дней.
Если температура воздуха 0°C и ниже, то в состав смеси должны содержаться противоморозные наполнители. Они прибавляют к стоимости, однако обеспечивают завершение работ и набор прочности в холодное время года. Также следует утеплить поверхность сборно-монолитного перекрытия, чтобы период застывания не превышал 28-30 дней.
Блок: 2/2 | Кол-во символов: 6268
Источник: http://cemgid.ru/stroitelstvo-monolitnyx-perekrytij-po-proflistu.html
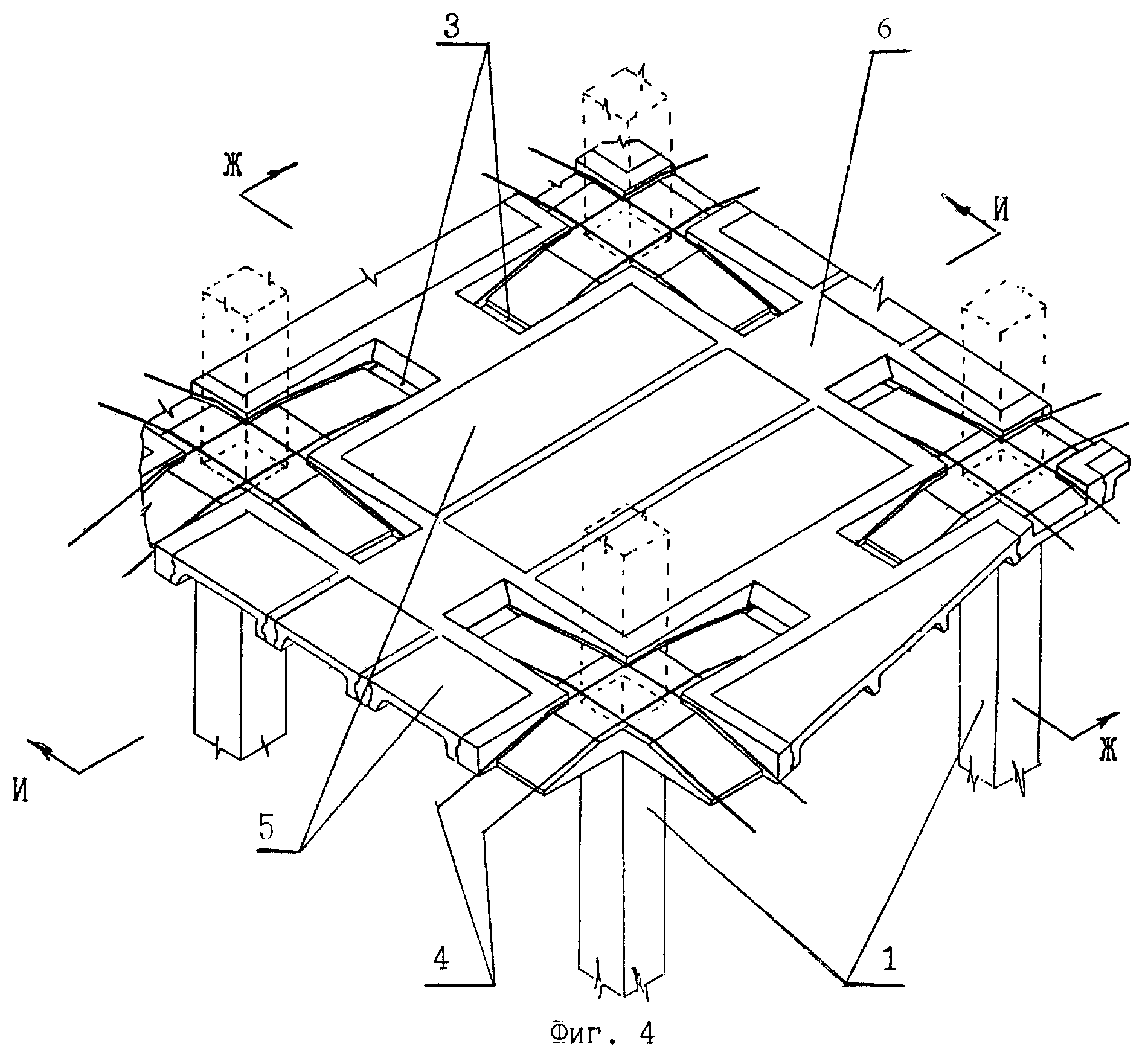
Технология устройства сталежелезобетонных перекрытий
В исходном варианте профлист укладывается не только на стены, но и на каркас из стальных балок (прогоны), который и является несущим. Количество и параметры балок высчитываются индивидуально, исходя из габаритов перекрываемого пролета и предполагаемых нагрузок, в среднем шаг составляет от 1,5 до 3 м, но на каждый лист должно приходиться три точки опоры – по центру и по краям.
Армирование однослойное – сетка, диаметр проволоки от 3 мм, шаг 200×200 мм, толщина защитного слоя над сеткой не менее 15 мм.
Профлисты укладываются поперек длинной стороны пролета, широкими гофрами вниз, по длине на прогонах внахлест, минимум на одну волну, по ширине встык. Между собой волны фиксируют заклепками или саморезами с шагом не больше 500 мм. Чтобы профиль и прогоны работали, как одна система, настил крепят стержневыми анкерами, которые приваривают к балкам. Рядом с несущими стенами анкер должен проходить сквозь каждую волну, на промежуточных балках через одну. Кроме того, настил фиксируют к балкам посредством саморезов или дюбелей.
Однако использование стальных балок – не самый привлекательный для самозастройщиков вариант, поэтому многие из умельцев нашего портала предпочитают альтернативный вариант – безопорное монолитное перекрытие по профильному листу.
Блок: 4/5 | Кол-во символов: 1318
Источник: https://www.forumhouse.ru/articles/house/7603
Устройство монолитного перекрытия
Возможные схемы расположения листов для монолитного перекрытия по профнастилу.
Профилированные листы, арматура и бетон — составляющие, которые формируют монолитную бетонную плиту перекрытия. Такая конструкция, если она опирается на балочный каркас, распределяет нагрузку на колонны, а не на стены. Каждая колонна имеет свой фундамент. Другой вариант, когда поперечные балки не укладываются или, если устанавливаются, опираются на стены.
В таком случае монолитному перекрытию предстоит нагружать стены сооружения и фундамент. Металлические балки — двутавр (швеллер). Их края укрепляются в «карманах» стен (колонн) и привариваются к закладным. К балкам листы могут крепиться на внутреннюю полку, тогда расстояние между опорами для коротких листов выбирается не более 1,5 м. На швеллеры/двутавры профилированный материал также может устанавливаться на внешнюю полку сверху так, чтобы можно было размещать листы длинной до 6-ти м.
Они устанавливаются внахлест по длине. Под серединой листовых элементов размещается стационарная балка. Волны профиля должны быть перпендикулярны балкам, а расширениями гофра ориентируются вниз.
При безбалочном варианте устройства гофролисты не будут иметь точек опоры посередине помещения. Обязательный элемент — объемное армирование, которое значительно повышает прочность монолита. Арматура соединяется сваркой с балками и колоннами. Для распределения раствора может ставиться внешняя съемная опалубка. Бетонирование формирует ровную поверхность плиты.
Вернуться к оглавлению
Блок: 4/8 | Кол-во символов: 1535
Источник: https://kladembeton.ru/tehnologija/zalivka/betonirovanie-po-profnastilu.html
Монтаж монолитного перекрытия
Монолитное перекрытие по профнастилу собирается следующим способами:
- технология, при которой плита монолитной конструкции располагается на несущих металлических (двутавр, швеллер) или бетонных балках с шагом 3 метра;
- монтаж профлиста на внутреннюю полку двутавра с шагом кратным длине листа 1.2 — 1.5 м;
- возведения монолитного перекрытия без поддерживающих металлических и бетонных балок.
Схема стандартного профнастила.
Профнастил уложенный на поддерживающие балки:
- в карманы оставленные в стене, если речь идет о монтаже балок в стены или на закладные опорные уголки, если речь идет о бетонных стенах или колоннах, укладывается двутавр;
- на него монтируется профилированный лист с расширением гофры вниз, при помощи саморезов;
- затем сетка из арматуры с ячейками 150-150 мм.;
- чтобы избежать прогиба профлиста, до момента схватывания бетона, нужно между балок установить подпорки, равномерно по всей площади заливки;
- проводится заливка бетонной смесью;
- карманы в стене также замоноличиваются;
- после набора прочности бетона, а это как минимум 25 — 30 дней подпорки убирают и проводят дальнейшие строительные работы.
Монтаж профлиста на внутреннюю полку двутавра:
- так же как и в первом варианте монтажа, двутавры упереть в карманы стены или на закладные;
- профилированный лист уложить на внутреннюю полочку балки, гофрами поперек пролету балок, т.
е. по длине листа и закрепить по краю саморезами; - накладывается арматурная сетка с ячейками 150-150 мм и вся конструкция заливается бетоном на всю толщину двутавра;
- для набора прочности выдерживают, как минимум, 4 недели.
Блок: 4/6 | Кол-во символов: 1596
Источник: https://1popotolku.ru/perekrytie/po-profnastilu-monolitnoe.html
Монолитное перекрытие без поддерживающих балок
Схема часторебристого сборно-монолитного перекрытия.
Монтаж междуэтажных перекрытий без поддерживающих балок осуществляется с опорой профнастила и армопереплетения непосредственно на закладные колонны и стены здания с временными поддерживающими подпорками, позволяющими на пролетах свободно перемещаться рабочим и удерживающими вес незатвердевшего бетона.
В этом случае металлический лист крепится к закладным, анкером по металлу, а армокаркас приваривается к закладным во всех точках соприкосновения на всех колоннах.
Исключается организация в перекрытии люков или любых прерываний линии опирания каркаса перекрытия на колонны.
Монолит должен располагаться обязательно от колонны до колонны или от стены до колонны не прерываясь.
Наиболее широкое применение этот вид монтажа получил на уровне комната — чердачное помещение, где нагрузка на перекрытие значительно меньше нежели в комнатах для проживания.
Расчет нагрузок на межэтажное перекрытие
Расчет нагрузок при определении толщины заливаемого потолка должен быть выполнен проектировщиками. Расчет должен учитывать:
- при необходимости, устройство на перекрытиях перегородок, а даже облегченная перегородка из гипсокартона давит на пол массой 50 — 70 кг на кв. м площади;
- нахождение мебели и другого домашнего скарба;
- передвижение людей, проживающих в этом здании и одновременного прибывания в этом помещении гостей хозяев;
- запас прочности конструкции, после принятия во внимания вышеперечисленных пунктов, должен составлять еще треть от того, каков был первоначальный расчет.
Для справки: минимальная толщина перекрытия монолитом должна составлять 50 — 60 мм, максимальная 200 — 250 мм.
Блок: 5/6 | Кол-во символов: 1690
Источник: https://1popotolku.ru/perekrytie/po-profnastilu-monolitnoe.html
Стадии контроля и приемки этапов строительных работ
Схема утепленного перекрытия.
Ваш расчет на то, что все строительные работы выполнены соответствующим образом и тем самым обеспечена технология, долговечность и безопасность возводимой конструкции, должен подтверждаться не только вами, но и специалистами. Чтобы вы и ваши домочадцы спали спокойно, вам необходимо:
- провести тщательную подготовку карманов в стенах, установку закладных на стенах и колоннах для «привязки», опоры монолитной конструкции или проконтролировать выполнение этих работ и, что еще лучше, получить акт на эти скрытые работы у технадзора;
- со знанием дела провести работы по монтажу профнастила — неснимаемой опалубке и каркаса армирования или проконтролировать их выполнение и получить акт на скрытые работы у технадзора;
- заранее заказать бетонную смесь и выполнить работы по заливке перекрытий желательно за один раз, при безопорной на балки технологии и способа укладки профилированного листа сверху балок.
При опирании профнастила на внутреннюю полочку двутавра процесс заливки может происходить по секциям; - проводить мероприятия во время набора прочности бетонного монолита, проводя смачивание поверхности для равномерного отвердевания;
- по прошествии, как минимум, 28 дней, общепринятого срока набора объектов строительства из бетона, снять дополнительные опоры, если таковые были поставлены и приступить к отделке потолка, если она необходима, и работ по облагораживанию пола.
последний документ, который необходимо получить, на этой стадии строительства — акт о выполненных работах по выполнению бетонного монолитного междуэтажного перекрытия по профлисту.
Радуйтесь успешному выполнению этапа и приступайте к следующему. Все, что зависело от вас, для вашего же спокойствия, вы сделали.
Блок: 6/6 | Кол-во символов: 1800
Источник: https://1popotolku.ru/perekrytie/po-profnastilu-monolitnoe.html
Советы по монтажу опалубки
Технология работ предусматривает армирование балок и опорных колонн.
Используются металлические трубы различного сортамента, асбестовые опоры. Металлический швеллер, двутавр применяются, как балки.
В зависимости от размеров гофр на листе изменяется шаг балок. С увеличением высоты волны уменьшается интервал между балками. Например, расстояние между балками для профильного листа марки TП–75 с толщиной 0,9 мм составляет 3 метра.
Контролируйте, не допускайте прогиба листов, устанавливая их на три опорных балки. Крепление осуществляйте саморезами, оснащенными усиленным буром. Помните о необходимости фиксации стыков, обеспечьте интервал между бронебойными саморезами – 40 сантиметров.
После завершения устройства опалубки приступайте к армированию перекрытия по профнастилу.
Блок: 6/10 | Кол-во символов: 809
Источник: https://pobetony.ru/bloki-i-perekrytiya/perekrytie-po-proflistu/
Советы по заливке бетона
Согласно строительным нормам и правилам, толщина бетонной плиты должна перекрывать волны профлистов и возвышаться над ними как минимум на 50 мм.
При выполнении дополнительной бетонной стяжки данный параметр уменьшается до 30 мм. В большинстве случаев создание цементной стяжки является необходимостью, так как сделать максимально ровную поверхность при самой удачной заливке основного бетонного слоя достаточно сложно. В любом случае будут присутствовать неровности, которые не получится скрыть никаким отделочным материалом. Как заливается бетонный раствор можно посмотреть на видео:
Блок: 6/6 | Кол-во символов: 631
Источник: https://viascio.ru/stroitelstvo-domov/sozdanie-monolitnogo-perekrytiya-po-profnastilu
Специфика армирования
Благодаря армированию происходит повышение прочностных характеристик одного материала с помощью другого, обладающего увеличенной жесткостью. Если говорить о профнастиле, то армирование выполняется стальной проволокой.
Силовой контур, находящийся внутри конструкции, позволяет бетону воспринимать повышенные нагрузки. Продольные прутки диаметром 12 мм образуют каркас. Укладка осуществляется по каналам листов. Детали каркаса сваркой либо проволокой крепятся между собой.
Когда профнастильная опалубка будет сооружена, можно приступать к выполнению бетонирования
Блок: 7/10 | Кол-во символов: 584
Источник: https://pobetony.ru/bloki-i-perekrytiya/perekrytie-po-proflistu/
Вывод
Перекрытия из железобетона по профилированному листу — популярный способ изготовления монолитных плит в строительстве. При правильных расчетах и исполнении подобные конструкции обеспечивают высокие показатели надежности, прочности и долговечности на фоне снижения затрат и сокращения сроков работ.
Блок: 8/8 | Кол-во символов: 302
Источник: https://kladembeton.
ru/tehnologija/zalivka/betonirovanie-po-profnastilu.html
Рекомендации по бетонированию
Если опалубка из профнастила и металлических профилей установлена и выполнено армирование, приступайте к заливке бетона. Применяйте бетонную смесь марки М350. Последовательность мероприятий:
- До заливки бетона профнастил для перекрытий усильте дополнительными балками – опорами, установленными по осям пролетов. Они поддержат основу в процессе заливки раствора. После затвердевания смеси их демонтируйте.
- Бетонирование осуществляйте поэтапно. В течение рабочего времени старайтесь забетонировать конкретный пролет, так как проблематично сразу заполнить бетоном весь объем.
- Дайте выстояться бетону до достижения рабочий прочности. Цикл созревания летом составляет 10 суток, а при отрицательной температуре – один месяц.
- Увлажняйте поверхность бетона водой в жаркий период года. Это позволит предотвратить растрескивание, обеспечит созревание состава.
Если правильно произведены расчёты, выбраны профильные листы, установлен арматурный каркас и выполнено бетонирование, то прочность конструкции будет на должном уровне.
Блок: 8/10 | Кол-во символов: 1050
Источник: https://pobetony.ru/bloki-i-perekrytiya/perekrytie-po-proflistu/
Возможные риски
Являясь универсальными, перекрытия по профлисту обладают недостатками. В процессе выполнения работ могут возникнуть непредвиденные моменты:
- увеличенный расход бетонного раствора;
- недостаточная жесткость конструкции перекрытия;
- срыв сроков строительных мероприятий;
- непредвиденное увеличение сметной стоимости строительства объекта.
Производя монтаж и заливку, нецелесообразно экономить на услугах проектировщиков и квалифицированных специалистов. Сложная и ответственная конструкция требует высокого уровня инженерных расчетов, разработки детального проекта работ.
Блок: 9/10 | Кол-во символов: 583
Источник: https://pobetony.
ru/bloki-i-perekrytiya/perekrytie-po-proflistu/
Нюансы
Помните, что силовые несущие листы профнастила, воспринимающие увеличенную массу бетона, не терпят ошибок. Уделите внимание расчётам. При необходимости, обратитесь за помощью к строителям.
Только при наличии удобного инструмента, использовании качественных материалов, комплектующих и профессионального подхода к выполнению работы, можно произвести бетонное перекрытие по профнастилу.
Блок: 10/10 | Кол-во символов: 449
Источник: https://pobetony.ru/bloki-i-perekrytiya/perekrytie-po-proflistu/
Количество использованных доноров: 8
Информация по каждому донору:
- https://DomZastroika.ru/slabs/perekrytie-po-profnastilu-monolitnoe.html: использовано 2 блоков из 7, кол-во символов 1226 (4%)
- http://stylekrov.ru/monolitnoe-perekrytie-po-profnastilu.html: использовано 2 блоков из 5, кол-во символов 3693 (11%)
- https://kladembeton.
ru/tehnologija/zalivka/betonirovanie-po-profnastilu.html: использовано 2 блоков из 8, кол-во символов 1837 (6%) - https://1popotolku.ru/perekrytie/po-profnastilu-monolitnoe.html: использовано 5 блоков из 6, кол-во символов 9011 (28%)
- https://viascio.ru/stroitelstvo-domov/sozdanie-monolitnogo-perekrytiya-po-profnastilu: использовано 1 блоков из 6, кол-во символов 631 (2%)
- https://www.forumhouse.ru/articles/house/7603: использовано 4 блоков из 5, кол-во символов 5494 (17%)
- http://cemgid.ru/stroitelstvo-monolitnyx-perekrytij-po-proflistu.html: использовано 1 блоков из 2, кол-во символов 6268 (19%)
- https://pobetony.ru/bloki-i-perekrytiya/perekrytie-po-proflistu/: использовано 6 блоков из 10, кол-во символов 4196 (13%)
Как построить монолитное перекрытие по профлисту — masterprofnastila.ru
В настоящее время при индивидуальном строительстве во время устройства перекрытий все чаще делается монолитное перекрытие по профнастилу.
Профнастил при бетонировании служит в качестве несъемной опалубки, а при эксплуатации — в качестве внешнего армирования. Что такое монолитное перекрытие по профнастилу, где применяется, какие имеет преимущества и каким образом монтируется?
Перекрытия такого типа применяются при строительстве многоэтажных общественных и промышленных зданий с нестандартными пролетами и шагами конструкций в широком диапазоне нагрузок. Монолитное перекрытие по профнастилу применяется и в зданиях с большим количеством отверстий и проемов, при обустройстве рабочих площадок и реконструкции зданий. Огнестойкость однопролетных плит с открытой внешней арматурой в виде стального профлиста составляет 30 мин, многопролетных неразрезных конструкций при расположение арматуры по всему пролету — 45 мин и более.
Преимущества перекрытий по профнастилу
Схема крепления листов профнастила.Такие монолитные перекрытия, в отличие от железобетонных, подразумевающих заливку с применением специально создаваемой опалубки, позволяет по завершении работ получить готовый потолок, не требующий проведения дополнительных доработок и отделок.
Профнастил, как указывалось ранее, будет армировать монолит. Возможность применения разнообразных типов профилированного листа при возведении перекрытий является достаточно важным преимуществом, так как при желании или необходимости сечение можно делать ребристым. За счет этого повышается надежность и прочность плиты, к тому же, это уменьшает расход арматуры и бетонной смеси во время строительства.
Возведение перекрытий с применением профлиста подразумевает, что рассматриваемый лист будет неснимаемой опалубкой, к которой при последующих работах будет применяться заливка бетона, а металлический каркас, состоящий из балок и колонн, будет служить в качестве опоры. Конструкция такого типа при монтаже стен требует использования легких строительных материалов небольшой прочности.
Вернуться к оглавлению
Конструкция перекрытия по профнастилу
Профлист, применяемый в качестве арматуры, должен иметь оцинкованное или какое-либо другое покрытие, которое обеспечит ему устойчивость к возникновению коррозии.
Для монолитных перекрытий по профлисту можно использовать тяжелый бетон с мелкозернистым или обычным заполнителем класса прочности на сжатие выше В15. Стальные прогоны производятся из прокатных двутавров или свариваются из стальных листов марок, подразумевающих высокое качество металла.
Перекрытие будет состоять из железобетонной монолитной плиты, заливаемой по стальному профилированному листу. После того как бетон наберет необходимую прочность, профнастил будет использоваться в качестве внешнего армирования. В качестве опоры под монолитное перекрытие с профнастилом могут использоваться стальные или железобетонные прогоны, бетонные или кирпичные стены. Длина пролета плиты выбирается в диапазоне 1,5-6 м. Большие пролеты допускаются при возведении временных опор на период бетонирования и приобретения бетоном прочности. Стыки профлистов по длине выполняются впритык, без нахлеста. По ширине их стыкуют путем нахлеста боковых граней.
Для общего или локального укрепления железобетонного перекрытия выполняется монтаж дополнительной арматуры в виде каркасов, сеток и отдельных стержней.
Толщину бетонного слоя над профилированным листом определяют при помощи расчета деформации и прочности, а также опираясь на технико-экономические соображения. Монолит должен иметь толщину не менее 3 см, а при отсутствии бетонных стяжек в конструкции пола — не менее 5 см. Профнастил кладется широкими волнами вниз.
Если размер отверстий поперек профнастила не превышает 50 см, требуется укрепление монолитного перекрытия путем монтажа в прилегающих к отверстию волнах настила арматуры, имеющей вид продольных стержней, заводя их за ось прогона. Кроме того, используется арматура в виде поперечных стержней, окаймляющих отверстие в листе, заводя их за подрезку на 2-3 волны с каждой стороны. Если отверстия поперек волн профлиста имеют размер более 50 см, конструкция плиты по контуру отверстия должна иметь дополнительные детали балочной клетки, которые передают вес нагрузки с ослабленного участка настила на прогоны.
При возведении перекрытия несущей конструкцией является профнастил.
При расчетах определяют жесткость и прочность профлиста как для тонкостенного изгибаемого стального элемента, терпящего нагрузку собственного веса настила, веса залитого бетона и монтажную нагрузку, включающую массу инструментов, вес рабочих в процессе строительства перекрытия. При эксплуатации несущей конструкцией станет железобетонная плита, в которой профлист будет внешней рабочей арматурой.
Вернуться к оглавлению
Нагрузки, оказываемые на каркас
Схема установки столба для забора из профнастила путем бетонирования основания.Монолитное перекрытие на профлисте получило право существования благодаря тому, что нагрузки при их использовании ложатся не на стены здания, а на прочный и надежный каркас из металлического профилированного листа. При применении железобетонного перекрытия на профлисте стены могут строиться из газоблоков или пеноблоков, применяемых и для теплоизоляции. Есть у такой конструкции и еще одно не менее важное преимущество. Строительство больших зданий подразумевает использование ленточных фундаментов, возведение которого требует значительных затрат.
Но упомянутый выше перенос нагрузки на каркас, позволяющий облегчить стены, снижает нагрузки на основание. Таким образом, вместо дорогого ленточного фундамента можно выбрать фундамент другого типа, например, столбчатый, требующих меньше финансовых и трудовых затрат. Стоит обратить внимание, что в столбчатом фундаменте каждый столб принимает нагрузку со стороны одной части металлического каркаса. В оголовке столбчатого фундамента необходимо выстроить небольшой ростверк, сечение которого рассчитывают с использованием параметров толщины стен и предполагаемого расстояния между колоннами фундамента. Анализируя сказанное выше, монолитное перекрытие по профлисту позволяет существенно снижать финансовые, временные и трудовые затраты, ведь процесс постройки здания ускоряется.
Вернуться к оглавлению
Особенности возведения перекрытия
Для начала нужно будет определить необходимые размеры профнастила, для этого необходимо брать в расчет опирание не на 2 балки (по стандартному варианту), а на 3.
Это позволит предусматривать прогиб металлического листа при эксплуатации.
Схема монтажа металлопрофиля на крышу.Бетонирование рекомендуют делать в один заход, в ином случае процесс необходимо выполнять хотя бы по пролетам.
Если бетон укладывается в несколько этапов, следует учитывать время затвердевания того или иного участка. В таком случае дополнительные опоры из-под пролетов будут убираться своевременно. При этом следует брать во внимание, что требуемой прочности бетон достигает лишь через 10 дней со дня заливки при теплой погоде. В холодное время года бетон может затвердевать целый месяц.
При работе в жарких погодных условиях монолит при выполнении перекрытий необходимо регулярно смачивать. Это предупредит преждевременное испарение влаги из-за сильного нагрева металлических листов при высокой температуре воздуха. Как и многие подобные работы, возведение монолитного перекрытия с применением профнастила не представляет особой сложности даже при отсутствии специальных навыков.
Основной стадией строительства является разработка теоретической части, включающая определение материала каркаса железобетонной конструкции, правильный выбор видов и размеров профлиста и сечений арматуры. Не менее важным является и наличие всех материалов и инструментов, таких как:
- профлисты;
- цемент;
- песок;
- щебень;
- бетономешалка;
- дрель и сверла;
- саморезы;
- шуруповерт;
- правило;
- проволока;
- вязальный крючок;
- емкость для раствора;
- отвес;
- строительный уровень;
- угольник;
- шнур;
- рулетка.
http://masterprofnastila.ru/www.youtube.com/watch?v=deCQDPEjbgo
Если процесс непосредственного строительства можно выполнить и своими руками, то расчет всех параметров следует доверить высококвалифицированным специалистам. Монолитные перекрытия следует строить строго по разработанным и утвержденным чертежам и планам, согласно всем требованиям, указанным выше.
Оптимальным материалом для выполнения перекрытия по профнастилу является профлист марки Н75, Н114 750, Н114 600.
Вернуться к оглавлению
Монолит по профлисту: схема строительства
Основой будут служить следующие данные: расстояние между балками — 3 м, толщина профлиста марки Н-75 — 0,9 мм. Самым надежным является крепление листа к основаниям металлических балок с применением 32-миллиметровых саморезов с усиленным буром, называемых бронебойными. Это позволит сверлить швеллеры без предварительного использования дрели. Крепление осуществляют на всех стыках профилированного листа и балок. Например, если лист кладется на 3 балки, то и крепиться он будет в 3 местах.
Кроме фиксации профлиста к балкам, нужно также закрепить их в местах соединения друг с другом. Для этого также используются бронебойные саморезы, но меньшей длины, например, 25 мм. Вкручиваются они с шагом 40 см. Когда профнастильная опалубка будет сооружена, можно приступать к выполнению бетонирования.
При возведении перекрытий всегда нужно учитывать толщину бетонного слоя, которая, обычно, составляет не более 8 см без толщины самого каркаса. Бетонирование рекомендуется проводить с использованием бетона марки М-350.
Перед тем как залить монолит, необходимо подготовить профлисты. Для этого в центре каждого пролета внизу, между балками, нужно монтировать временные опоры от пола до каркаса. Для этой цели подойдут обычные деревянные палки. Это помогает предотвратить проседание профнастила под тяжестью уложенного бетона. После затвердевания бетонного раствора опоры можно убрать.
http://masterprofnastila.ru/youtu.be/MG7VuzO0-e8
Стоит отметить и риски, возможные при сооружении перекрытий:
- Перерасход стройматериалов. Это не опасно, однако приводит к существенному увеличению затрат на строительство.
- Недостаточная прочность и устойчивость плиты, выполненной с применением профнастила при попытках сэкономить на стройматериалах и работах.
- Недостаточная прочность при ошибочном монтаже и нарушении правил технологического процесса.

http://masterprofnastila.ru/youtu.be/zwXPBLK7XIM
Кроме того, могут быть увеличены сроки строительства, приводящие к убыткам. Поэтому при монтаже монолита на профлисте необходимо пользоваться услугами квалифицированных проектировщиков и строителей.
монолитное перекрытие по профлисту- опалубке
Частный строитель может отступать от стандартных решений. Так, привязка к конфигурации и размерам внутренних помещений отошла в прошлое, уступая новым технологиям. Монолитное перекрытие по профлисту позволяет закрыть любую площадь, даже если она обладает овальной формой.
Отличительные характеристики
Технология ведения работ не потребует серьезных организационных и финансовых издержек. При установке монолитного перекрытия по профнастилу реализуется дополнительный спектр преимуществ:
- система не требует монтажа опалубки и собирается относительно просто, что под силу даже новичкам;
- более низкий вес по сравнению с традиционными конструкциями, что сокращает нагрузку на фундамент;
- профнастил становится частью перекрытия и выполняет функции основного армирующего каркаса;
- готовое покрытие может быть покрыто гипсокартоном или остаться в первоначальном виде;
- заливка рабочего раствора менее трудоемкая;
- конструктивная толщина перекрытия может варьироваться в зависимости от зон применения, для чего требуется расчет;
- более сжатые сроки работ;
- готовая плита не уступает по прочностным характеристикам остальным аналогам;
- возможность использования различных разновидностей и марок профиля;
- огнестойкость.

Закладные детали производятся из металла и способствуют равномерному распределению нагрузок. При монтаже необходима реализация сварочных работ
Монолитное перекрытие по профнастилу — подготовка
Готовое покрытие одновременно является полом вышележащего помещения или потолком той комнаты, которая находится ниже, — это и несущая, и ограждающая конструкция.
Качество возведения монолитной плиты влияет на безопасность эксплуатации всего дома, поэтому так важно провести соответствующий спектр подготовительных мероприятий:
- расчет несущей конструкции и несущей способности. Ошибки, допущенные на этом этапе, ведут к провисанию плит на длинных пролетах, увеличению толщины плиты, после чего следует рост трудозатрат и финансовых издержек;
- расчет материалов;
- для опоры перекрытия необходимо предусмотреть специальные закладные и «карманы» в стенах и столбах, что должно быть отмечено в чертеже.
Рекомендации по проектированию
Чтобы правильно высчитать толщину плиты, необходимо учесть следующее:
- расположение перегородок — даже облегченная конструкция из гипсокартона создает нагрузку 50-70 кг/м²;
- не стоит забывать про полезную нагрузку от оснащения помещения.
В частном строительстве принимается на 150 кг/м²; - запас прочности должен превышать проектное значение на треть;
- установка вертикальных стержневых анкеров позволит получить надежное сцепление профнастила с бетоном. Дополнительные элементы привариваются к полке прогона при монтаже;
- подробные рекомендации по проектированию монолитных перекрытий и расчетам указаны в стандарте СТО 0047 -2005.
Максимальная толщина монолитного перекрытия варьируется в пределах 200-250 мм, минимальная – 50-60 мм.
Технология
Устройство монолитного перекрытия по профнастилу может быть реализовано следующим образом:
- размещение конструкции на бетонных или металлических балках (швеллер/двутавр) с шагом 3.0 м;
- монтаж на внутреннюю полку двутавра, шаг кратен длине листа, например, 1.2-1.5 м;
- строительство без поддерживающих балок.
Ведение работ
Мастер должен учитывать указанную последовательность действий, если он создает монолитное перекрытие своими руками
Укладка профнастила на поддерживающие балки:
- согласно чертежу, в карманы или закладные укладывается двутавр.
Закладные опорные уголки применяются при ведении работ на бетонных колоннах или стенах; - на двутавр устанавливается профилированный лист, гофра должна быть ориентирована расширением вниз. При работе используются саморезы. Крепление производится на стыках и в местах привыкания к балкам;
- в каждое ребро «опускается» продольная арматура (шаг 190-200 мм) и связывается с поперечным прутком, размещенным поверх листа вертикальными отрезками. Величина готовых ячеек 150-150 мм;
- между балок равномерно монтируются подпорки, что позволит избежать прогиба профлиста;
- реализуется заливка;
- карманы или закладные замоноличиваются;
- спустя 25-30 суток подпорки демонтируются и ведутся дальнейшие работы.
Укладка на внутреннюю полку двутавра:
- на закладные или в карманы опираются двутавры;
- на внутреннюю полку балки выкладывается материал. Укладка реализуется по длине листа, то есть гофрами поперек пролета балок.
Конструкция фиксируется саморезами; - закладывается арматура и реализуется заливка на всю толщину двутавра. Допустима заливка по секциям.
Установка без поддерживающих балок
Монтаж осуществляется с опорой профнастила и арматуры на стены с временными поддерживающими подпорками и закладные колонны. Конструкция позволяет рабочим перемещаться по пролетам и удерживает вес заливки.
Последовательность действий:
- лист фиксируется на закладных анкером по металлу;
- арматура приваривается к закладным и колоннам во всех точках соприкосновения;
- перекрытие не должно содержать отверстий. Монолит должен размещаться от стены до колонны или между колоннами не прерываясь;
- как залить перекрытие? Рекомендовано заливать бетон за один раз.
Двутавр – это стандартный профиль, используемый при возведении конструктивных элементов. Сечение балки напоминает букву «Н», что обеспечивает высокую прочность и жесткость, однако, уступает швеллеру по устойчивости к скручиванию
Этот тип организации работ целесообразно применять при строительстве перекрытий между этажом и чердаком, что обусловлено меньшими нагрузками.
Выбираем материал
Профнастил – это гофрированный лист, выполненный из оцинкованной стали, на которую может быть нанесено дополнительное покрытие.
В продаже могут быть представлены материалы с указанной маркировкой:
- «Н» — несущий профлист для кровли и перекрытий;
- «НС» — несущий для настилов и стен;
- «С» — для стен.
Расшифровка маркировки осуществляется указанным образом.
Для товара Н35-1000-0.7:
- «Н» — тип профлиста:
- 35 – высота профиля (волны или трапеции), мм;
- 7 – толщина металла, мм;
- 1000 – ширина (рабочая/полезная), мм.
Для строительства монолитных перекрытий выбор должен быть следующим:
- маркировка «Н» (обладает высокой несущей способностью), при строительстве менее ответственных конструкций используется профлист «СН»;
- если длина пролета менее 5.50 м, минимальная толщина принимается, как 0.
80 мм; - если длина пролета более 5.50 м – 0.90 мм;
- арматурный пруток d0-12.0 мм;
- бетон не ниже М300;
- саморезы М5.5 х 32.0/35.0 мм – фиксируют профлист на несущих балках;
- для технологии монтажа на несущих металлических балках – двутавр 12.
Можно отдельно отметить такой материал, как профлист Н60. Его использование целесообразно, если конструкция будет принимать высокие эксплуатационные нагрузки.
Цена
Если профессиональная бригада занимается возведением монолитного перекрытие, цена складывается следующим образом:
- облегченные конструкции – от 4 т.р/м²;
- сплошной монолит 0.25 м – от 5 т.р/м².
Профлист Н60 может использоваться для монтажа перекрытий без монолитного бетона, неутепленных и утепленных стеновых конструкций, постоянных и временных ограждений
Реализация работ своими руками потребует меньших затрат, однако, расчетную часть рекомендовано доверить профессионалам, что потребует дополнительных издержек.
Перекрытия, возводимые по профнастилу, — это современное и оправданное решение для частого строительства. Технология доступна для освоения любому мастеру, не вызывает значительных затрат и сокращает сроки ведения работ.
Устройство монолитного перекрытия по профнастилу доступно в исполнении каждому-в этом можно убедиться из видео:
Книги по теме:
Межэтажное перекрытие по профнастилу. Как построить монолитный пол на профнастиле? Рассмотрим примерный расчет
Комментарии:
Монолитный настил по профнастилу выступает одной из разновидностей железобетонных конструкций, которая активно используется в процессе строительных работ частных домов и зданий технического назначения. Несомненно, использовать такой способ обустройства пола для строительства жилого дома, имеющего классический архитектурный стиль, не стоит, это касается построек высотой около 3 этажей.
Тогда как если для парковки, террасы и других построек такого типа планируется построить легкое двухэтажное здание, то монолитный пол на профнастиле станет одним из лучших решений, существующих сегодня.
Монолитный настил из профнастила — одна из разновидностей железобетонных конструкций, которые активно используются при строительстве технических зданий и частных построек.
Особенности возведения монолитной конструкции по профнастилу
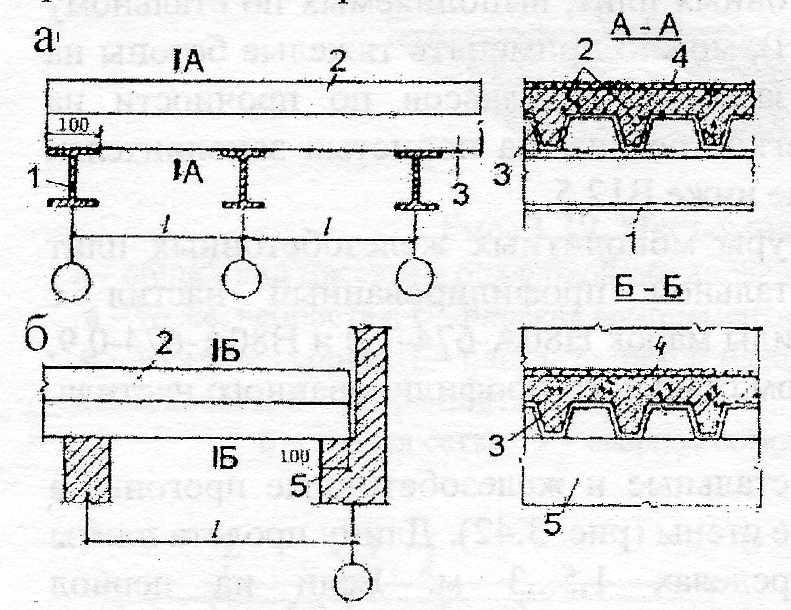
Монолитный пол по профнастилу имеет ряд преимуществ, отличающих эту систему от той, которая предполагает наличие монолитного железобетонного перекрытия.Последний из них предусматривает устройство опалубки, которая необходима для заливки и застывания раствора. Но если при проведении такого рода работ использовать профнастил, то это позволит получить в здании готовый потолок. После завершения процесса его внутреннюю поверхность отделывать не нужно. Конструкция системы имеет изменяемый профиль листового металла, это придает поперечному сечению пола ребристость, что гарантирует отличные прочностные характеристики, но затраты на арматуру и раствор будут меньше.
Рисунок 1. Схема устройства монолитного перекрытия.
Структурная схема этого перекрытия, представленная на рис. 1, основана на профилированном перекрытии, которое может служить несъемной опалубкой для дальнейшей заливки бетона. Опора выполнена на стальном несущем каркасе, имеющем колонны и балки. Благодаря тому, что основная нагрузка от пола передается не на стены, а на стальной каркас, можно возводить внешние стены из легких материалов с изоляционными качествами, среди которых, например, пенобетон и пенобетон. , но этими двумя материалами список не ограничивается.
В связи с тем, что масса изделий у основания стен будет незначительной, достаточно дорогое ленточное основание допустимо не строить, заменив его стеклянным фундаментом, материала на возведение которого уходит гораздо меньше. Каждая составляющая такого фундамента будет удерживать одну стальную колонну, а по периметру, под стенами из легкого материала, по вершинам будет устроен негабаритный ростверк, на сечение которого влияет толщина стены и шаг между ними.
отдельные составляющие стеклянного фундамента.
Вернуться к содержанию
Технологические особенности работы
Перед оснащением следует произвести расчет; для этого процесс нужно начать с изменения габаритов постройки. Здесь необходимо будет учесть расчетные нагрузки, которые следует отразить в проектном плане, используемом при строительстве. Это позволит правильно подобрать сечение стальных колонн и металлических балок.
Чаще всего технология изготовления колонн предполагает использование труб квадратного или круглого сечения, при этом для балок используют швеллер, который можно заменить двутавром.
Расстояние между балками и их сечение определяется параметрами профнастила. Таким образом, чем внушительнее высота профиля, тем большее расстояние между соседними балками, на которые впоследствии будет монтироваться настил из профиля. Стоит учесть, что показатель несущей способности листа зависит от его толщины.
В качестве примера можно взять за основу расстояние между балками 3 м при устройстве пола, при этом необходимо использовать профильный настил марки ТП-75, толщина которого должна быть 0.9 мм.
При установке настила из профнастила необходимо определиться с длиной полотен. Предпочтительно, если опора полотна будет сделана не на двух, а на трех балках, это предотвратит прогиб материала в пространстве между балками.
Рисунок 2. Схема армирования монолитного перекрытия над профнастилом.
Предполагает необходимость закрепления полотна материала к стальным балкам, это необходимо сделать с помощью саморезов, размер которых равен 5.5х32 мм крепеж должен иметь усиленное сверло. Такие саморезы имеют еще одно название — бронебойные, это связано с тем, что в них есть возможность просверлить швеллерную полку без использования дрели.
Стенка крепится к балкам в каждой волне. Этот способ позволяет повысить пространственную жесткость перекрытия, что придает такие же характеристики самому монолитному полу на стадии затвердевания раствора.
Кроме того, необходимо соединить и укрепить листы настила в продольных стыках, однако следует использовать саморезы следующих размеров: 5.5х25 мм, расстояние между ними должно быть 400 мм.
Вернуться к содержанию
Крепление каркаса арматуры
Монолитный нахлест по профилированному листу усилить арматурой марки А 400С диаметром 8 и 10 мм. Этого сечения будет достаточно, чтобы пол приобрел необходимую несущую способность. Технология армирования перекрытия предполагает установку стержней во всех продольных углублениях перекрытия.Чтобы понять, как делается арматура, можно посмотреть чертежи, один из них показан на рис. 2.
С помощью вертикальных хомутов из стержней марки А 400С диаметром 8 мм крепится арматура потолочных ребер к основной сетке. Такие зажимы рекомендуется готовить с помощью простого приспособления, предназначенного для изгиба арматуры. Расстояние между зажимами должно быть 400 мм. Основная сетка изготовлена из арматурных стержней А 400С диаметром 10 мм, их крепление осуществляется на расстоянии 200 мм.
Фиксацию производить спицами Ø1,2-1,5 мм.
Основным правилом армирования пола является устройство защитного слоя бетона, который должен располагаться между бетоном и арматурными стержнями, толщина такой защиты должна быть 20 мм. Для монолитного строительства предпочтительнее использовать пластиковые зажимы.
Вернуться к содержанию
Заливка бетонной плиты
Для заливки полов такого типа следует использовать бетон марки В 25 или М 350.Чтобы исключить вероятность провисания листов профнастила под массой стальных прутков и раствора на этапе затвердевания бетона в центральной части пролетов, следует монтировать опорные конструкции между балками после того, как придется избавляться от них. Желательно не прерывать заливку пола и выполнять ее за один прием. Если работы ведутся в жаркий летний день, то требуется как можно чаще мочить основание пола, это связано еще и с тем, что высокая температура будет способствовать нагреву профнастила.Эти процессы повлекут за собой увеличение скорости испарения жидкости из бетона, что снизит его прочностные характеристики после быстрого затвердевания.
Разрешается избавляться от временных удерживающих элементов после того, как раствор наберет 70% своей окончательной прочности. В жаркий период этот интервал будет ограничен 10 днями, тогда как если работы велись в холодную погоду, то описанные остановки можно будет демонтировать по истечении трех недель.
В процессе строительства коттеджей и частных домов стремительно набирают популярность железобетонные плиты для перекрытий, в том числе для монолитных полов по профнастилу.
Монолитные полы из профнастила используются в различных сферах строительства, например, при возведении гаражей, террас и многих других зданий и сооружений.
Обычное перекрытие и перекрытие по профнастилу
Монолитные потолки по профнастилу, в отличие от железобетонных, при которых заливка производится с помощью специальной трубы, позволяет получить готовый потолок, не требующий дополнительных работ, связанных с доработкой или ревизией. украшение.
Важным преимуществом перекрытия является наличие разных профилей, которыми оснащается профнастил.
Это позволяет сделать секцию ребристой.
Это значительно увеличивает прочность пола при одновременном снижении расхода бетона и арматуры для его возведения.
План этажа из профнастила таков, что такой профнастил, которому отведена функция несъемной опалубки, на которую во время работы укладывается бетон, имеет металлический каркас, выполняющий роль опоры.Такой каркас изготавливается из металлических колонн и балок.
Для информации … Благодаря такой конструкции при возведении стен можно использовать легкие материалы, которые обладают небольшой прочностью. Это возможно благодаря тому, что межэтажные перекрытия из профнастила способны передавать нагрузки не на стены, а на достаточно прочный металлический каркас.
Межэтажные перекрытия из профнастила имеют еще одно важное преимущество. При возведении больших зданий требуется изготовление ленточного фундамента, что требует довольно значительных затрат различных строительных материалов.
Передача нагрузок с пола на каркас значительно облегчает стены, тем самым значительно снижая нагрузку на фундамент. Это позволяет вместо ленточного фундамента выполнить, например, столбчатый фундамент, процесс изготовления которого требует меньше денег и времени.
В этом случае колонны, составляющие фундамент, могут выдерживать нагрузки только от 1-й колонны металлического каркаса.
Полезно: при использовании профнастила в качестве материала стен можно использовать материалы для теплоизоляции, например, пенобетон или пеноблок.
В головку такого фундамента (под стены небольшого веса по периметру сооружения) заливается небольшой ростверк, сечение которого рассчитывается путем расчета толщины стен и планируемого расстояния между колоннами фундамента.
В то же время, используемый в плане профнастил позволяет сократить как финансовые, так и трудовые затраты, а также время, необходимое для возведения конструкции или здания.
Устройство пола
Независимо от материала, из которого сделан пол, его план обязательно должен включать расчет этого пола.
Для правильного расчета необходимы следующие данные:
- расчет нагрузок, которые создаются перекрытием;
- точные размеры проектируемых зданий.
Эта информация поможет вам определить размер таких элементов, как колонны или стальные балки.
Часто в процессе изготовления колонн используются трубы из металла квадратного или круглого сечения. В качестве балок часто используются двутавры или швеллеры. При этом балки укладываются с шагом, который зависит от типа настенного покрытия, используемого при устройстве пола.Чем выше высота профиля настенного настила, тем меньше шаг для укладки балок.
Продавец должен предоставить все необходимые параметры материала, перечислить характеристики и типы профнастила, его основные виды, несущую способность и т.д.
Рассмотрим пример расчета:
- Если шаг балок 3 метров.
Марка используемого профнастила — ТП-75, толщина листа — 0,9 мм. - Определяется необходимая длина профнастила, его опору следует рассчитывать не на 2 балки, что довольно распространено в настоящее время, а на 3.Это предотвратит загиб листа в будущем.
- Наивысшего качества крепления листа к основанию балки можно достичь с помощью специальных саморезов 32 мм (5,5), оснащенных усиленным сверлом. Такое сверло позволяет просверлить канал без предварительного сверления дрелью. Также эти винты называют бронебойными.
- Крепление выполняется на стыке балок перекрытия и профлиста. Соответственно при укладке листа на 3 балки крепление производится в 3 точках, а при укладке на 2 балки — в 2 местах.
- Помимо крепления листов к балкам, необходимо еще закрепить их на стыках. В этом случае можно использовать те же бронебойные винты 5,5, однако их выбирают меньшей длины — например, саморезы 25 мм являются оптимальными. Саморезы вкручиваются с шагом около 40 см.
- После завершения профилированной опалубки для бетона начинается укладка бетона.
Применительно к перекрытиям учитывается минимальная толщина этих полов, которая часто составляет 7-8 см без учета толщины листов.Для бетонирования лучше использовать бетон марки М-25, который также обозначается М-350. - Перед тем, как приступить к бетонированию, необходимо подготовить профнастил. Для этого в центре, внизу всех пролетов, расположенных между балками, устанавливают палки, начиная от пола, и заканчивая профнастилом. Палки предотвращают проседание профнастила под весом лежащего на нем бетона. Временные опоры снимаются после высыхания бетона.
- Рекомендуется бетонировать за 1 пролет, но если покрываемая площадь не может быть покрыта за 1 рабочий день, рекомендуется бетонировать как минимум один пролет.
- В случае, когда бетонирование производилось в несколько этапов, важно правильно запомнить, сколько дней нужно, чтобы тот пролет просох. Это позволяет своевременно убирать из-под высыхающего бетона дополнительные опоры. Требуемая прочность бетона достигает 70-80 процентов только через 10-11 дней после заливки в теплую погоду.
Зимой время высыхания бетона увеличивается до 3-4 недель. - При проведении работ по устройству профнастила в сухую жаркую погоду необходимо постоянно смачивать бетон. Это позволяет предотвратить преждевременное испарение влаги из-за нагрева профнастила под воздействием высоких температур окружающего воздуха, что ускоряет испарение влаги.
Как и многие другие строительные работы, возведение монолитного перекрытия из профнастила не предполагает ничего особо сложного.
Его важнейшим этапом является теоретическая часть, которая включает:
- выбор материала, который будет использован в процессе изготовления каркасной конструкции из металла;
- правильно подобраны толщина и тип профнастила;
- правильно выбрано сечение арматуры, используемой в процессе изготовления каркаса и т. Д.
Такие расчеты желательно доверить квалифицированному специалисту, а сами строительные работы можно выполнить самостоятельно.
При этом важно строго придерживаться ранее разработанных чертежей и планов, соблюдать требования, указанные в инструкции.
Чтобы избежать различных ошибок в процессе выполнения данных работ, вы также можете воспользоваться помощью команды профессиональных работников, имеющих хорошую репутацию и отзывы.
Современное строительство — это сочетание самых разных технологий, новейших материалов и технологий. Часто использовались такие строительные материалы, как металлические листы, элементы профиля и каркасы из оцинкованной стали.Не последнюю роль играет профнастил, который можно использовать как кровельный материал, он также подходит для облицовки стен, потолка, фасадов, хорош для возведения заборов.
Сегодня мы рассмотрим, что такое монолитное перекрытие по профнастилу, какие бывают конструкции, как рассчитать материал и каких ошибок нужно избегать при работе, чтобы перекрытие получилось надежным, устойчивым, долговечным. .
Различия полов, уложенных на профнастил
При возведении перекрытий любого типа конструкции очень важен такой этап, как проектирование — от него будет зависеть будущая безопасность всей конструкции.
После этого необходимо провести расчеты материалов, которые потребуются при работе.
Необходимо правильно выбрать тип профлиста с учетом его толщины, длины, типа профиля и выбора сечения арматурных стержней, которые потребуются для изготовления каркасов.
Уже на этом этапе разница между настилом пола поверх профнастила и аналогами становится достаточно заметной.Основная характеристика — использование системы опалубки, которая позволяет сразу получить готовый потолок с внешним видом, не требующим отделки или дополнительных работ.
Схема такого перекрытия представляет собой пирог со следующими слоями: балки, сверху уложенный профлист, гибкая арматура, проходящая по волне, анкер вертикального стержня и арматурная сетка. После этого вся конструкция заливается бетоном.
Расход бетонной смеси из-за наличия гребня профлиста будет намного ниже, чем при выполнении обычного перекрытия, что зачастую является основным критерием выбора такого материала.
Сам пол придает всей конструкции дополнительную жесткость и надежность.
Еще одна особенность — легкость: профнастил имеет относительно небольшой вес при достаточно высокой прочности, что позволяет безопасно использовать его для ремонта в ветхих домах. Сам лист позволяет при этом правильно распределить все нагрузки на фундамент, а это как раз то, что важно при строительстве любого дома.
Конструкция потолка на профнастиле
Монолитный пол по профнастилу может иметь различные дизайнерские решения.Всего можно выделить три варианта дизайна:
- Конструкции монолитные ребристые с перекрытиями. В качестве каркаса используются балки, которые поддерживаются колоннами. Пролет таких балок составляет от четырех до шести метров, а толщина плиты будет зависеть от нагрузки и габаритов, чаще всего эта величина находится в пределах от шестидесяти до ста шестидесяти миллиметров.
- Ребристые плиты с перекрытиями и второстепенными балками, толщина которых может достигать ста двадцати миллиметров, но этот тип дорог и требует много времени.

- Безбалочный, возведенный на основе цельной плиты, поддерживаемой колоннами.
Расчет материалов полов
Рассмотрим расчет монолитного перекрытия на конкретном примере. Условимся, что шаг балок будет три метра, после чего берем настил из профиля ТП-75, который имеет толщину 0,9 миллиметра. Для определения длины рассчитываем опору листа на три балки, это предотвратит возможный прогиб.
После этого учитываем, что для крепления нам потребуются саморезы тридцать два миллиметра, само крепление будет происходить в каждом месте стыковки профнастила или бруса.
Внимание! Саморезы будут идти с шагом сорока сантиметров, в местах стыков лучше брать саморезы бронебойные на двадцать пять миллиметров.
Для укладки раствора берется бетон марки 25. На расчеты влияют такие факторы, как ожидаемые нагрузки на перекрытия, размеры плиты и балок, а также особенности работы.
Установка на профлист
Монолитный настил по профнастилу выполняется по следующей технологии.
После выполнения всех необходимых расчетов, от которых будет зависеть точность работы и надежность будущей конструкции, приступаем к монтажу. Сама технология предполагает, что опорные колонны (то есть балки) будут усилены специально подготовленным стержнем.
В качестве опорных колонн часто используются асбестовые или металлические трубы, которые могут иметь самое разное сечение и форму.В качестве балок используются металлические двутавры или швеллеры.
Балки укладываются с шагом, который прямо пропорционален размеру и форме листа самого профиля, при этом чем выше профиль, тем меньше шаг балок. Для обычно используемого в этом случае профнастила ТП-75, который имеет толщину до одного миллиметра, укладка осуществляется с трехметровым шагом.
Во избежание прогиба, который может возникнуть при заливке и эксплуатации, на профилированный лист необходимо уложить три балки, из которых две будут крайними, а одна — центральной.
Крепится данная конструкция саморезами в местах прохождения стыков материала, то есть в трех точках.
Шаг крепления должен составлять сорок сантиметров.
Для крепежа используются специальные саморезы со значительно усиленным сверлом (так называемые бронебойные). Они обеспечивают надежность крепления, устойчивость к достаточно большим нагрузкам. Размеры таких саморезов — 5,5 * 32 мм.
Сейчас сооружаем опалубку и приступаем к заливке бетонной смеси.Для этого специалисты рекомендуют использовать бетон марки 25 (это М350). Сам профнастил перед заливкой необходимо тщательно подготовить, то есть по центру между всеми балками устанавливаем опорные стержни, обеспечивающие опору для профлиста.
Теперь залейте приготовленный раствор и дайте ему затвердеть. После полного высыхания бетона необходимо удалить установленные опорные стержни.
Во время монтажа рекомендуется заливать бетон только по одному пролету за раз, так как полностью покрыть всю площадь плиты в течение дня просто не получится.Также необходимо подождать, пока смесь приобретет твердость марки, что может занять до одного месяца в холодную погоду и до десяти дней в теплую и сухую погоду.
Сам бетон в процессе высыхания и набора прочности рекомендуется смачивать простой водой, что обеспечит быстрое и равномерное схватывание по всей толщине.
Риски устройства перекрытия на профнастиле
При перекрытии профнастилом стоит учесть возможные риски конструкции.
Для того, чтобы правильно сделать монолит на профнастиле, необходимо точно соблюдать все предложенные рекомендации. При этом необходимо обеспечить выполнение расчетов по установке, включая технологическое сопровождение и проектную документацию. Но здесь необходимо помнить, что при выполнении таких работ бригадами без участия опытного мастера можно получить не очень качественный монтаж.
Среди рисков, которые возможны при устройстве перекрытий, отметим следующие:
- Чрезмерный расход стройматериалов.Это не критично, но перерасход приводит к удорожанию работ, иногда довольно сильному.
- Недостаточная устойчивость и прочность пола из профнастила, что вызвано желанием сэкономить на строительных материалах и конструкции.

- Недостаточная устойчивость и прочность в результате неправильного монтажа, нарушения правил технологического процесса.
- Нарушение сроков строительства.
- Возможные убытки, связанные с перечисленными нарушениями.
Поэтому для проведения монтажных работ на возведении любого этажа необходимо привлекать опытных рабочих и проектировщиков.
Как видите, работа по внедрению не представляет особой сложности. Необходимо лишь выполнить такие простые условия, как правильный выбор материалов для работы (для сооружения металлического каркаса), выбор профнастила необходимого типа, подбор арматуры для каркаса.
Все расчеты лучше доверить специалисту, который обеспечит в будущем надежность и высокое качество работы.Если вы не уверены в своих силах, то все работы лучше доверить опытному мастеру.
Сейчас в строительстве широко используются железобетонные плиты с профнастилом. Их называют монолитными. Перекрытие такого типа популярно при возведении помещений различного типа, таких как дома, гаражи, террасы.
Система представляет собой жесткий гофрированный металлический лист, предназначенный для устройства кровли, межэтажных перекрытий, разделения здания на этажи и сектора.
Общие сведения о монолитном строительстве
Система из гофрированного картона надежна и благодаря своим характеристикам и технологии позволит построить прочную и долговечную конструкцию. Достоинством этого покрытия является небольшой вес, что позволяет без особого труда укладывать его в любом направлении, а также удобная загрузка при транспортировке и особенно долгое использование материала.
Кроме того, вас может заинтересовать информация по теме.
Монолитный настил из профнастила в несколько раз снижает нагрузку на рабочих и значительно облегчает работу строителей, что очень удобно.
Профлист бывает нескольких видов:
- Н — лист профилированный несущий, предназначенный для покрытия крыш зданий;
- С — для стен;
- NS — для полов и стен.

Читайте также про вес профнастила.
Также существует система сборно-монолитных плит из пустотелых блоков для строительства в жилых помещениях и в промышленном строительстве. Такая система необходима для прочного горизонтального перекрытия на перекрытиях с пролетами 5 м.
При строительстве малоэтажных домов часто применяют арматуру и заливку своими руками. Перекрытие в строительных работах — это необходимая опорная деталь на нижних этажах, принимающая на себя всю нагрузку верхних этажей, которая будет служить плотным устойчивым каркасом, приобретая горизонтальную прочность.
Отличия профильного покрытия от обычного
Основное отличие профлиста внахлест от обычного — возможность создать практически законченную конструкцию потолка, не нуждающуюся в дальнейшей отделке и доработке.
Достоинством профлиста является подгонка габаритов конструкции к нужному уровню и профилю, что повышает устойчивость и прочность всей конструкции.
Узнайте всю информацию о ступенях для лестниц из керамогранита.
Каркас устройства профнастила — это металлические двутавры, на которые можно положить более легкие стройматериалы.
В качестве дополнительного перекрытия на стенах можно использовать пеноблоки или пенобетон: эти материалы будут служить не только потолком, но и утеплителем. Основную нагрузку на каркас можно уменьшить, оказав давление на фундамент. Самым распространенным и недорогим считается столбчатый каркас, установка которого занимает мало времени. Перекрытие здания профнастилом позволяет в несколько раз сократить трудозатраты, время и финансы.
Если бетон заливать в пазы профнастила высотой 2-4 см, то можно будет ощутить экономию бетонной смеси по сравнению с плотной заливкой профнастила. Профнастил позволяет добиться максимально жесткой конструкции пола в сочетании с заливкой бетона. Также это экономит много времени на устройстве перекрытий, так как не нужно заливать бетон на деревянную опалубку и ждать, пока смесь затвердеет.
Особенности монолитного перекрытия
Под монолитным настилом понимается сборная конструкция, в которой профнастил служит опалубкой со съемными конструкциями, которые образуют устойчивую каркасную конструкцию, установленную в одном направлении, с дополнительным армированием покрытия, которое укладывается поверх слоя бетона для создать единый прочный каркас.
Такой каркас можно приобрести в готовом виде или изготовить самостоятельно с помощью сварочного аппарата и толстой проволоки 2 см, с расстоянием каркаса между бетоном 5 см, а по бокам — 3 см, без выступов.
Подробно описано, как выбрать материал для звукоизоляции стен.
Технология безбалочного монтажа своими руками
Технология монолитного перекрытия предполагает тщательный подбор не только основного материала, но и дополнительных креплений — шурупов, гвоздей, шляпок, а также подробный расчет работ по устройству монолитного перекрытия по профнастилу.
Перед началом работ по возведению монолитного перекрытия из профнастила следует произвести точный расчет примерной нагрузки на каркас покрытия и измерить площадь здания.
Заранее подготовьте необходимое количество швеллеров, которые будут служить несущими балками и колоннами, а также трубы с закругленными выемками. Укладка зависит от выбранной марки профлиста: чем больше высота конструкции, тем меньше нужно оставлять расстояние между колоннами.
При правильном расчете следует выбрать желаемый профнастил и изучить технические характеристики несущего каркаса и его толщину. Устройство перекрытия из профнастила необходимо выполнять, когда заранее разработаны и согласованы планы и чертежи, что позволит дать разрешение на выполнение строительно-монтажных работ.
Так же можете ознакомиться с возможной шириной лестницы в частном доме.
Укладка профнастила: расчеты
Для начала работы по устройству монолитного перекрытия на профнастил необходимо заполнить и сверить все чертежи.Все замеры при строительстве должен выполнять профессионал, а монтажные работы можно провести самостоятельно.
Для предотвращения прогиба перекрытия в центре каркаса балки следует укладывать на расстоянии 4 м друг от друга, где в основе будет лежать профнастил толщиной 8 мм.
При выполнении таких работ следует позаботиться о наличии армированных саморезов длиной 50 мм, которыми можно укрепить каждый стык балок и профнастила.Для полной устойчивости каждый лист можно укрепить крепежными шторами, а затем приступить к дальнейшей укладке профильных листов, не забывая укреплять саморезами.
Главное в этой работе — правильный подбор материала, который подбирается по маркировке и толщине профильных листов. Прочность листа можно определить по модельному ряду: от низкого сорта С8, до более высокого качества и высокого класса — х258.
Монолитная плита без балок требует выбора более жесткого листа металла.При устройстве безбалочного перекрытия желательно выбрать кровлю из металла: HC 35 или HC 100 с ребрами жесткости не менее 20 мм. При расчете нагрузки на пол погрешность не должна превышать 0,5 кг. Для возведения колонн и каналов специалисты прибегают к использованию круглых или квадратных труб.
Большое значение имеет толщина профнастила, от жесткости которого зависит шаг балок.
Например, при шаге 3 м профлист должен иметь толщину 0.8 или 0,9 мм. Это важно, чтобы плита могла выдержать вес бетона без деформации.
При установке монолитного перекрытия своими руками важно не нарушать герметичность профнастила, в связи с чем не рекомендуется использовать гвозди вместо саморезов. Чтобы избежать прогиба, лучше всего использовать строительные шурупы и заклепки через каждые 20 см.
Если размер профнастила больше 10 метров, необходимо чаще устанавливать крепеж.Крепление осуществляется только в углублениях листа. Для создания «сучков» (то есть стыков металлических листов) нужно укладывать листы внахлест внахлест 40-60 мм, а саморезы выбирать не короче 25 мм.
Заливка полов
Перед тем, как подготовить основу для заполнения, необходимо предварительно разметить поля для заполнения. Нижняя граница дверного пролета или порог при входе в комнату будет служить ориентиром. Если это правило не соблюдается, заливка бетона в пол может поднять уровень площади застройки, если планируется заливка полов.
Заливать бетон нужно сразу после укладки пола, для равномерного высыхания, чтобы не образовывались стыки и швы, которые могут служить появлением различных деформаций.
Устройство монолитного перекрытия.
Лучше всего перекрывать в солнечный день, не забывая смочить поверхность водой от быстрого высыхания и потрескивания.
Читайте про как поставить входную дверь.
Время высыхания зависит от природных факторов и может длиться до 3 недель в теплую погоду и до 6 недель в прохладном климате.Перекрытие при армировании не должно превышать 18 см.
- Сборные монолитные перекрытия можно укладывать и на металлический профильный лист, но лучше использовать сырой бетон.
- При проведении монтажных работ бетон следует заливать только в один пролет, потому что залить сразу все ячейки без просыхания практически невозможно. И, конечно же, основными рекомендациями по монолитному перекрытию будут внимательное отношение к выбору профнастила, материала, из которого будет сделана металлоконструкция каркаса, и грамотный подбор сечений арматуры.
Если самостоятельно выполнить эти пункты сложно, лучше доверить это дело грамотному человеку, профессиональному специалисту.
Видео
На видео — пол по профнастилу:
На сегодняшний день монолитный пол из профнастила считается лучшим материалом для полов в строительных работах, который не подвергается воздействию внешних и внутренних механических факторов. Профильный лист имеет невысокую стоимость, а также доступен на рынках в большом количестве различных форм и цветов, что позволяет ему занимать первое место среди популярных строительных материалов.
Проектирование перекрытий с использованием металлического профиля должно строго соответствовать требованиям СНиП 2.03.01-84 «Бетонные и железобетонные конструкции», а также СНиП II-23-81 «Металлоконструкции».
При бетонировании полов используются различные виды опалубки, но одной из самых распространенных в последние годы стала несъемная опалубка из профнастила. Предотвращая растекание бетона при затвердевании, опалубка из профнастила также является дополнительным внешним армированием.
Частично компенсирует растягивающие силы, действующие на нижнюю арматурную сетку. Это значительно увеличивает прочность и несущую способность пола.
Кроме того, монолитная плита с профлистом, имеющая современное защитно-декоративное покрытие, позволяет в некоторых случаях обойтись без дорогостоящей отделки потолка.
Расчет монолитного перекрытия по профлистуУстройство монолитного перекрытия по профнастилу представляет собой опалубку из металлического профилированного листа с уложенным поверх него армирующим каркасом из металлических прутков.
Эта конструкция поддерживается продольными металлическими балками. Так монолитный пол на профлисте передает нагрузку, действующую на пол, на несущие конструкции каркаса и фундамент здания.
Монолитное перекрытие по профнастилу — размеры профильного листа с ребрами жесткости для лучшего крепления бетона
Профиль гофрированной опалубки, сечение стержней металлической арматуры и толщина монолитного перекрытия определяются эксплуатационной нагрузкой и размером пролета между опорными балками.
Толщина плиты обычно определяется соотношением 1:30 … То есть, если пролет 6,0 м, то слой бетона должен быть не менее 200 мм.
В расчетах учитываются габариты будущего здания, расчетные нагрузки на перекрытия и вес самих строительных конструкций. Все это влияет на выбор сечения и профиля металлических балок и колонн каркаса, а также на характеристики фундаментов здания.
Монолитный настил по профнастилу относится к особо ответственным строительным конструкциям, поэтому монтаж таких конструкций осуществляется только при наличии проектной документации на строительство.Проектная документация на монолитные перекрытия по профнастилу и расчет на прочность металлоконструкций выполняется на основании СНиП II-23-81 «Металлоконструкции» и СНиП 2.03.01-84 «Железобетонные и бетонные конструкции» .
Чертеж монолитного перекрытия по профнастилу
Поскольку эти расчеты достаточно сложные и трудоемкие, при разработке рабочей документации на строительство и расчетах нагрузок проектировщики используют специальное программное обеспечение, в том числе систему автоматизированного проектирования CAD .
.. В рабочую документацию входят чертежи опалубки монолитного перекрытия по профнастилу, чертежи арматуры, все необходимые расчеты и ведомость материалов.
На стадии проектирования также проводятся технико-экономические расчеты. Они подтверждают, насколько оправдано использование для данной конструкции монолитного перекрытия на профнастиле, цена которого несколько выше стоимости монолитных железобетонных конструкций с обычной разборной опалубкой.
Если вы уверены в своих силах и хотите самостоятельно рассчитать монолитное перекрытие на профлисте, то советую воспользоваться инструкцией 1987 года. Пусть вас не смущает его возраст — в строительстве за эти годы мало что изменилось. На данный момент это самая подробная и точная из существующих инструкций по данной теме.
Вы можете скачать руководство по ссылке: «» (щелкните ссылку правой кнопкой мыши и в появившемся меню выберите пункт «Сохранить как… «, затем выберите папку на жестком диске и введите имя). Если вы используете современный браузер (почти любой, кроме Internet Explorer), вы можете просто открыть ссылку в новой вкладке.
Однако вы должны понимать, что неправильный расчет перекрытия — это не только дополнительные затраты, но и реальная опасность для жизни. Поэтому, если вы раньше не сталкивались с подобными расчетами, в целях вашей безопасности настоятельно рекомендую обратиться к профессиональным дизайнерам.
Две возможные раскладки листов для монолитного перекрытия на профилированный лист размером 9 на 12 метров
Профнастил целесообразнее всего использовать для полов нестандартных размеров с большим количеством различных технологических проемов.В этих случаях затраты на изготовление индивидуальной панельной опалубки высоки и нет возможности ее повторного использования.
Монолитный настил по профнастилу — технология работ После завершения монтажа металлических балок перекрытия устанавливается опалубка из профилированных листов. Их укладывают внахлест в одну-две волны и прикрепляют к верхним полкам несущих металлоконструкций.
В местах нахлестов профнастил соединяют заклепками.
Затем приступают к укладке арматуры. Перед тем как приступить к армированию, необходимо установить торцевую опалубку на расчетную высоту плиты. Монтаж арматурных каркасов, сеток и отдельных стержней выполняется в соответствии с рабочими чертежами арматуры.
В этом случае необходимо обеспечить необходимую толщину защитного слоя бетона с помощью специальных пластиковых зажимов. При больших площадях перекрытия после укладки арматуры устанавливаются специальные направляющие, разделяющие пол на несколько зон бетонирования.
На следующем этапе приступают к подаче бетонной смеси. Обычно для этих целей используются стационарные или мобильные бетононасосы. Состав используемой бетонной смеси должен соответствовать СНиП 3.03.01-87 … Обычно при бетонировании полов используется следующее соотношение компонентов.
Рулоны одностороннего гофрированного картона с В-образной канавкой для защиты полов и столешниц во время строительства и ремонта
Строительные компании находят преимущества использования рулонов гофрированного картона как экономичными, так и полезными при новом строительстве и ремонте.
Рулонный гофрированный картон выгоден тем, что его рифленая (волнистая) форма приклеивается к гладкому слою картона. Он предлагает легкий вес, но надежную защиту для многих целей. Предлагаемый различной ширины, включая 36 дюймов, 40 дюймов, 46 дюймов и 48 дюймов, идеально подходит для строительных работ, гофрированный картон можно развернуть в помещении, чтобы защитить только что уложенный деревянный или плиточный пол или покрыть и защитить существующие ковровые покрытия или шкафы и столешницы. В отличие от пластика, который будет собираться и скапливаться, гофрированный картон после укладки будет действовать как гладкая поверхность, во многом как деревянный пол или гладкая поверхность, что значительно снижает вероятность несчастного случая из-за споткнуться.Лестницы и строительные леса могут вызвать царапины и вмятины при перемещении по комнате. Гофрированный картон защищает пол или поверхность. Когда инструмент, такой как молоток или тяжелая дрель, случайно падает, рифленый картон помогает поглотить удар и защищает драгоценную поверхность под ним.![]()
Гофрированный картон может снизить затраты на замену полов и столешниц, поврежденных во время установки или транспортировки. Бумажная или пластиковая защита может предотвратить появление царапин, но не вмятин и сколов.Мягкая картонная защита пола обеспечивает надежную защиту, но ее также легко придать форму и разрезать, чтобы подогнать под куски нестандартного размера.
После завершения работы гофрированный картон можно легко свернуть в удобный рулон и при необходимости использовать повторно, что делает его еще более лучшим и экономичным выбором.
Этим товаром мы поставляем строительным компаниям и компаниям, занимающимся укладкой полов. Мы предлагаем отдельные рулоны для небольших работ, количество поддонов для работ среднего размера и грузовые автомобили для действительно огромных работ.Скидки за количество доступны для количества поддонов и выше. Стоимость доставки 3-4 рулонов и выше может быть указана через LTL Freight по запросу и может быть отправлена по гораздо более экономичному тарифу, чем FedEx или UPS.
Если на нашем сайте указан заказ на доставку одного или двух рулонов, при больших количествах, пожалуйста, напишите или позвоните по электронной почте или позвоните, чтобы узнать расценки на фрахт.
http://www.fastpack.net/cardboard-rolls/
Дом из гофрированного листа / Daisuke Yamashita Architects
Дом из гофрированного листа / Daisuke Yamashita Architects
© Такеши Ямагиши+ 48
Поделиться ссылкой-
Facebook
-
Facebook
-
Facebook
-
Whatsapp
-
Почта
Или
https: // www.archdaily.com/892404/corrugated-sheet-house-daisuke-yamashita-architects © Такеши Ямагиши Текстовое описание предоставлено архитекторами. Эта резиденция предназначена для пяти семей из пары и троих детей в городе Айсай на западе префектуры Айти. Он построен в углу большого участка, примыкающего к участку основного дома.
Поскольку урбанизация в этом районе находится под контролем, окружающие участки в результате были в основном пустыми; из-за того, что окружению не хватало четкого контекста, получившееся здание было спроектировано как чрезвычайно простая геометрическая форма.
Основной объем представляет собой куб размером примерно 8,2 метра, состоящий из трехэтажной стальной конструкции с девятью сетками. Эту жесткую форму обеспечивает конструкция из решетчатых стальных двутавровых балок, фундамента и распорок, а также восемь тонких стальных столбов, поддерживающих вертикальную нагрузку в центре и четырех углах здания. Эта стальная рама легко опирается на бетонное основание. После рассмотрения взаимосвязи между главным домом и существующим садом мы расположили объем так, чтобы он совпадал с абсолютной осью север-юг.Мы создали вход и крыльцо, ступеньки, идущие от подиума, место для парковки в пустом пространстве между зданием и фронтальной дорогой, а также несколько новых садовых участков в пространствах, граничащих с периметром участка.
Внутри этого кубического объема на внешней стороне полностью интернализованных пространств мы вставили три больших полуоткрытых пространства. Внутренние алюминиевые створчатые панели и внешние полупрозрачные складывающиеся двери из поликарбоната можно открывать и закрывать, создавая динамичную внутреннюю и внешнюю среду: промежуточную область, которая позволяет гибко использовать пространство.На первом этаже находится уже существующий сад и связанные с ним пространства. На втором этаже есть места для наблюдения за главным домом и множеством деревьев и кустарников, растущих по всему участку; с поперечным подключением от первого этажа. Третий этаж предназначен для того, чтобы насладиться видом на более высокие окрестности, а также на более далекие пейзажи. Конечно, эти полуоткрытые пространства действуют как щупальца по отношению к объектам и происходящему в окружающей местности, но мы также надеемся, что, будучи плотными воздушными пространствами, они будут притягивать мягкий свет и ветер, регулируя тепловую среду.
Кстати, для внешней отделки здания мы использовали оцинкованный стальной лист и гофрированный поликарбонатный лист. Так мы отреагировали на многочисленные жилые дома, склады и фабрики в этом регионе, которые используют такие материалы, как металлические пластины и оцинкованное листовое железо. Точно так же садовый камень и стена из бетонных блоков, которые мы использовали для экстерьера, были результатом наших размышлений на тему промышленного жаргона.
© Такеши ЯмагишиВарианты настила антресолей и стального настила Portafab
Наши профессиональные дизайнеры могут помочь вам в выборе правильного пола антресоли для ваших нужд.Следующие колоды являются нашими стандартными предметами; Пожалуйста, позвоните нам по телефону 1-800-325-3781, чтобы узнать о других вариантах настила.
Стандартный настил антресоли
Состоит из одного слоя OSB (ориентированно-стружечная плита толщиной 3/4 дюйма), установленного на гофрированный стальной настил глубиной 1-1 / 2 дюйма.
OSB обеспечивает хорошее сопротивление пешеходному движению и может выдерживать случайные нагрузки на колеса до 300 фунтов. Стальной настил имеет белую нижнюю сторону для обеспечения максимального светоотражения. Самый экономичный выбор для общего хранения и офисных приложений.
Барная решетка — 1 дюйм x 1/8 дюйма
Сильная и экономичная альтернатива решетчатой решетке позволяет воздуху, свету и воде от верхних спринклеров проходить через поверхность настила. Номинальное отверстие 1 «x 4». Черная отделка является стандартной. Также доступен с гальваническим покрытием. Не следует использовать для подъемников поддонов.
Стальная торговая плита поверх OSB
Прочная стальная плита протектора имеет нескользящую поверхность с алмазным тиснением. OSB — это 3/4 «гребень и паз на гофрированной стальной платформе 20 калибра.Обеспечивает большую долговечность за счет более высокой точечной нагрузки и грузоподъемности колес.
Стальная пластина проступи над стальным настилом крыши 20 калибра
Мезонинный настил, разработанный для проектов, которые не допускают использование горючих материалов, стальной протектор 12 калибра предусмотрен непосредственно над стальным настилом крыши. Стальная пластина протектора имеет алмазное тиснение для обеспечения нескользящей поверхности. Верхняя поверхность протектора может быть отправлена без отделки или окрашена. Белая нижняя сторона настила для отражения света.
Композитный пол высокой плотности для стального настила 20 калибра
Рекомендуется для антресолей, требующих твердого пола, подверженного большим нагрузкам от использования домкратов, тележек или тележек. Напольные покрытия имеют акриловую стойкую к скольжению, очищаемую поверхность. Стандартная серая отделка. Чистая отделка доступна за дополнительную плату.
На выбор три грузоподъемности:
- Колесные нагрузки до — 450 фунтов, 900 фунтов, 1350 фунтов
- Подъемник для поддонов и груз — 1500 фунтов, 2500 фунтов, 4000 фунтов
Бетонный настил
Самая прочная и долговечная поверхность антресоли на рынке.
Идеально, когда требуются высокие нагрузки и грузоподъемность. Плотность сводит к минимуму передачу шума через настил. Стальной настил снабжен компонентами, необходимыми для заливки 4-дюймового бетонного пола.
Лакокрасочное покрытие
- Стандартный выбор: серый
- Дополнительные цвета: желтый, синий, шампанское, зеленый, белый
- Доступны индивидуальные цвета. За подробностями обращайтесь на завод.
Материалы дома Имс
Чарльз и Рэй Имз решили спроектировать и построить дом Имса, используя материалы «честным» образом.Глядя на структурный элемент, сделанный из стали, Имсы хотели, чтобы характеристики стали были видны и узнаваемы. Если сталь удерживает всю конструкцию, зачем покрывать ее деревом, чтобы казалось, будто дерево легко несет нагрузку? Это архитектурная нечестность в высшей форме.
Вот список наиболее важных частей дома Имса, включая их первоначальное предназначение во время войны и почему Чарльз и Рэй хотели, чтобы дом был уважительным и отражал врожденные качества его материалов.
Бетон
Реклама Института железобетонной арматуры середины 1940-х годов описывает общественное мнение о бетоне как о рациональном выборе для строительства. «Железобетон — это не только более дешевый материал для изготовления каркасов и полов, но и множество других преимуществ. Он представляет собой прочный, прочный монолит, который по своей природе пожаробезопасен, а также обладает высокой устойчивостью к ветру, ударам и землетрясениям. Что не менее важно, на его возведение требуется меньше времени.”
Наряду с обеспечением структурной целостности, бетон играет центральную роль в размещении в доме Эймс, как это определено размещение фундамента плиты и ориентацию первичной стенки подпорной. Чарльз на брифинге по искусству и архитектуре в декабре 1949 года писал о том, что он «в полной мере использовал защитные свойства поистине грандиозного ряда эвкалиптовых деревьев», раскопав участок за деревьями на склоне холма. После того, как земля была вырезана и выровнена, одноэтажная бетонная подпорная стена длиной 200 футов охватила территорию от северного навеса для машины до южных грядок.
Эта стена служила первым этажом и резиденции, и студии, и, что наиболее важно, выдерживала силу склона холма. Сталь укрепила бетонную подпорную стену из плит, которая продолжалась под землей и приобрела L-образную форму для дополнительной устойчивости. Фундамент из плит опирался на бетонные опоры, проходящие под двумя зданиями. Штукатурка «Бафф» выступила в качестве наружного покрытия стен на некоторых участках сайдинга; Wall-Tex покрыл внутреннюю часть этих областей.
Сталь
Стальпредставлена в конструкции Eames House в императивных формах: в виде поддерживающих двутавровых балок, удерживающих каркас, как переплетенный настил и открытые перепончатые балки крыши, как створки для оконных и дверных проемов и как сайдинг наружных стен.Компания Truscon Steel поставила каждого из этих элементов конструкции.
В каталоге запчастей Truscon за 1946 год описана система настила крыши из стали Ferrobord, которую Имсес включили в дизайн своего дома: «Результатом является параллельная система прочных структурных блокирующих мембран, предсказуемых по характеристикам, которая представляет собой гладкую поверхность, на которую можно наносить построенные конструкции.
кровля, с утеплителем или без него. Элементы сконструированы и сформированы таким образом, что каждая единица обеспечивает максимальное поперечное распределение сосредоточенных нагрузок.”
Нижняя сторона стального ферроборда крыши была выкрашена в белый цвет, а его открытые балки оставлены открытыми и поочередно окрашены в белый, черный и желтый цвета. В каталоге 1946 года Трускон описал этот материал как «пригодный для всех типов зданий, независимо от их расположения», и система оказалась «очень экономичной и практичной». Зигзагообразная форма балок имела еще одну функцию, помимо практического использования веса потолка: она действовала как система, помогающая Имсам подвешивать предметы на 17-м балке.5 футов потолок. Чарльз и Рэй построили передвижную деревянную лестницу, которую они могли легко прикрепить к различным точкам балок.
The Eameses также использовали Ferrobord в качестве профилированного стального сайдинга на южном фасаде здания-студии и большей части скрытого западного фасада «позади» дома.
Чарльз и Рэй разработали систему «проливов» в качестве продольной единицы измерения фасада здания. Каждый отсек имел ширину 7 футов 4 дюйма и состоял из двух секций стандартной выступающей створки Truscon.Дом имел семь пролетов в ширину, центральный двор имел ширину четыре пролета, а студия состояла из пяти отсеков. Створка равномерно распределяла вес по стенам и заполнялась цеместо, стеклом или лепниной.
Cemesto
Cemesto претерпел революцию во время Второй мировой войны как эффективный и экономичный способ строительства военных заводов и домов на сумму более 50 миллионов долларов. Этот материал, придуманный Celotex Corporation, прибыл «предварительно спроектированным» в виде панелей разного размера (от 4 футов x 4 дюйма до 4 футов x 12 футов) с тремя вариантами толщины (1 1/8 дюйма, 1 9/16 дюйма и 2 ”).Cemesto рекламировался как не требующий особого обслуживания с точки зрения производства, покупки, установки и обслуживания. В литературе по этому материалу хвастается, что «его замечательная структурная прочность устраняет необходимость в промежуточной опоре.
Это экономит пиломатериалы и гвозди. Он сочетает в себе внешнюю и внутреннюю отделку, а также изоляцию в одной полной огнестойкой стенке ». В дополнение к этим характеристикам Celotex гарантирует, что Cemesto является водо- и паронепроницаемым и может даже использоваться в качестве долговечного настила крыши.
В то время как Дом Имса не использовал Cemesto в критических конструктивных элементах, таких как кровля, на фасаде действительно было много прямоугольных панелей аналогичных размеров и толщины. Имсы обработали некоторые панели Cemesto красками самых разных цветов; однако значительная часть осталась неокрашенной в их естественном состоянии. Cemesto одновременно выступал в качестве внутренней и внешней поверхности стены; участки с панелями Cemesto не требовали дополнительной изоляции, защитного покрытия или внутренней отделки стен.Это удобно для Имсов, потому что им не нужно было загромождать конструкцию ненужными материалами, и это позволило им сократить расходы.
Стекло
Существует четыре типа стекла, видимого во всем экстерьере и внутри дома: прозрачное полированное листовое стекло, текстурированное стекло Factrolite, безопасное стекло с проволочной вставкой и полупрозрачное гофрированное стекло.
Компания Mississippi Glass Company поставляла все виды стекла.
Чарльз и Рэй могли бы построить дом с гораздо большим количеством Cemesto и лепными панелями, что позволило бы структуре быть более изолированной и обращенной внутрь себя.Вместо этого большая часть периметра дома состоит из окон и обеспечивает внешнюю связь с природой. Размещение различных типов стекла служило жесткой цели, но иногда было дополнительным эстетическим бонусом. Текстурированное стекло Factrolite было размещено в местах, где требовалась дополнительная конфиденциальность (в створке входной двери, поперек основной стены кухни и в ванных комнатах). Гофрированное полупрозрачное стекло отделяло столовую и кухню от подсобного помещения позади, так что гости не могли видеть прачечную, электрические панели и несколько водосточных труб.Стекло было прозрачным, так что свет по-прежнему проникал в подсобное помещение, которое было свободно от окон. Стекло, заделанное проволокой, использовалось в более утилитарных местах, требующих дополнительных мер безопасности, таких как световой люк и передний фасад рабочей студии.
Из-за легковоспламеняемости эвкалиптов Чарльз и Рэй осознавали необходимость использования противопожарной защиты в местах, где они чаще всего создавали прототипы мебели или снимали фильмы с высокоинтенсивным освещением.
Что касается эстетики, Чарльз отметил, что добавление стекла «и отражений восстанавливает прозрачность и добавляет двойные изображения, которые становятся характерными для здания». Он также отметил, что плоскости и тени, вызванные рисунком проволоки в некоторых частях стекла, стали важной визуальной особенностью.
Краска
Хотя покраска поверхности, возможно, противоречит политике «честного использования материалов» Чарльза и Рэя, краска была необходима и жизненно важна для покрытия некоторых поверхностей экстерьера дома для долговечности.Участок дома выходит на Тихий океан, и из-за высокого содержания соли в воздухе потребовался слой краски, чтобы защитить стальной каркас от коррозии. Имс выбрали краску на каучуковой основе от компании A.
C. Horn; Цвет этой прорезиненной краски был специально смешан, чтобы сформировать «теплую серую паутину», которую Чарльз и Рэй с восхищением называли на протяжении многих лет. Из всех материалов краска требовала наибольшего ухода, и цвет стального каркаса постепенно превратился в современный глянцевый черный.
С точки зрения эстетики, которая для Eameses следовала за функциональностью, краска была той областью, в которой Чарльз и Рэй чувствовали наибольшую снисходительность при принятии решений. Чарльз на брифинге по искусству и архитектуре напомнил: «Краска определяет поверхность в виде линий и соотношении друг с другом». Рэй, изучавший абстрактную живопись в Нью-Йорке за шесть лет до встречи с Чарльзом, обнаружил, что выбор краски для дома не менее важен, чем его структурная целостность. Чтобы узнать больше о том, как Имсесы выбирали конкретные цвета краски, см. Сообщение в нашем блоге «Раскрашивание палитры».
Стенка-текс
Wall-tex был прочным полотном, предназначенным для облицовки стен, чтобы сделать их водонепроницаемыми и более устойчивыми к износу.
Рекламные объявления того времени отрицают сравнение Wall-Tex с обоями по всем направлениям. В рекламном ролике начала 1940-х годов утверждалось, что Wall-Tex — это «самый удобный из известных видов отделки стен», и продолжалось: «Холст не трескается, как краска, и не рвется, как бумага. Уродливые трещины в штукатурке не видны. Послевкусие сохраняется навсегда.Вы можете вымыть его водой с мылом; прекрасные цвета не пострадают ».
Wall-tex — это покрытие на всех внутренних поверхностях стен резиденции и студии, кроме стекла или Cemesto. Имсы оставили холст неокрашенным. Чарльз и Рэй отмечали в различных интервью, что простые белые участки стены служили визуальной точкой отдыха для ваших глаз, когда они путешествовали по пространству.
Плен
В военное время компания «Swedlow Plastics Company» разработала материал под названием «Plyon» для авиационных компаний.Plyon выступал в качестве пластиковой основы для самоуплотняющихся топливных элементов в самолетах таких компаний, как Boeing и North American Aviation Inc.
Когда война закончилась, этот ламинированный легкий материал оставался в избытке и часто использовался в качестве шкафа. материал в промышленных и торговых помещениях.
Plyon, невероятно тонкий корпус, небольшая полупрозрачность и способность разрезать на различные формы сделали его идеальным для облицовки мебели и солнцезащитных экранов в Eames House and Studio.Чарльз и Рэй изготовили деревянные рамы для фасадных окон студии и окон второго этажа резиденции. Пилон был разрезан на прямоугольные модули, подходящие к оконным проемам, и был обрамлен деревом, благодаря чему они легко скользили по фасадным окнам, когда хотелось уединения и тени. Шкафы для хранения в нише гостиной и рядом с раковиной в студии были установлены с аналогичным модульным дизайном и возможностью скольжения. Плион был достаточно силен, чтобы защищать топливные камеры самолетов во время войны, поэтому он, несомненно, был достаточно прочным для постоянного использования в жизни Имсов.
Фанера
Устойчивый рост использования фанеры наблюдался в первые десятилетия 20-го века, но это считалось экспериментальным из-за слабых и ненадежных клеев.
Изобретение синтетических водостойких клеев в начале 1940-х годов привело к массовому производству и использованию фанеры. Во время Второй мировой войны из фанеры строили лодки, самолеты, дома и промышленные сооружения. Architectural Forum пишет, что производство фанеры находится на «рекордно высоком уровне: 2 года в год.5 миллиардов квадратных футов »к 1950 году, что почти в четыре раза больше, чем за предыдущее десятилетие.
Чарльз и Рэй полностью погрузились в изучение фанеры в 1940-х годах в сфере дизайна мебели. После почти десяти лет опыта в формовании, изменении, резке и нагреве фанеры Имс были хорошо осведомлены о ее преимуществах и ограничениях. Он стал идеальным материалом для многих компонентов их дома: ступеней лестниц, дверей и покрытий для стен и потолка. Фанерный шпон US Korina и клен «птичий глаз» были нанесены на лестницу под световым люком и на нижнюю сторону потолочного настила Ferrobord в ванных комнатах, чтобы обеспечить барьер и уменьшить образование конденсата.
Талловое дерево
Талловое дерево — это разновидность эвкалипта, и его твердый и прочный характер хорошо подходил для нескольких применений, прежде чем он был признан материалом, чувствительным к огню. Исторически сложилось так, что его типично использовали для настила (в частности, в таких местах, как тренажерные залы, катки и боулинг).
Имс использовали талловое дерево в качестве материала для стен двойной высоты, простирающегося от внутреннего помещения гостиной до одного открытого отсека в южном дворе.Он также продолжается в западной стене нижнего этажа подсобного помещения за кухней. В документе с обозначением национального исторического памятника дома описывается западная стена: «Узкие канавки панелей подчеркивают вертикальность высокого открытого интерьера; их солидность контрастирует с остеклением на противоположном фасаде. Стена, обшитая деревянными панелями, также выполняет функцию экрана, отражающего меняющиеся градации света, отмечающие дом в течение дня.
Поскольку эта поверхность стены выходит за пределы плоскости южной оконной стены, она также играет важную роль в обеспечении ощущения проницаемости между интерьером и экстерьером.Следует отметить еще одно качество: стена из эвкалипта параллельна линии эвкалиптов перед фасадом дома, выступая в качестве зеркала между строительными материалами и эвкалиптом в его органической форме.
Паркет
Паркетный пол первого этажа однокомнатной квартиры не соответствует проекту 1949 года. Чарльз и Рэй установили эту деревянную систему полов в 1958 году, незадолго до того, как их дочь Люсия и трое ее маленьких детей жили в студии на лето.Раньше настилом студии служила открытая бетонная плита.
Каучуковая / виниловая плитка
Язык, окружающий виниловую плитку в то время, описывал материал так, как превосходил ковер и другие обычные напольные покрытия. Виниловые полы имеют более длительный срок службы, чем другие напольные покрытия, их можно укладывать непосредственно на бетонные полы, они могут адаптироваться к неровным поверхностям пола и поглощать удары пола без трещин.
Что касается резиновой плитки, то для ее установки и обслуживания требовалось мало труда, а пол выдерживал интенсивное движение.
Чарльз и Рэй планировали использовать резиновую плитку от Voit, дочерней компании Goodyear Tire Co., в качестве напольного покрытия на кухне, спальнях наверху, ванных комнатах и чердаке студии наверху. В ванных комнатах использовался черно-белый клетчатый узор, на кухне — темно-зеленый цвет, а остальная плитка — цвета «Морской песок». Изначально Имсы решили оставить пол гостиной и коридора открытыми, обнажив бетонную плиту. К 1951 году они выбрали композитную плитку из винил-асбеста, которая была помещена непосредственно на бетонную плиту этих участков.Этот пол был стандартного размера 9 на 9 дюймов, без затирки, ярко-белого цвета с легким кристаллическим качеством.
Издатель: Келси Роуз Уильямс
план этажа парфенона
13. Парфенон с планом этажа Расположенный на вершине Акрополя с видом на Афины, Парфенон выражает в архитектурных принципах ключевые аспекты классической греческой чувственности.
Нас также рекомендовали для использования в образовательных целях следующие публикации: Фонд энциклопедии древней истории — некоммерческая организация, зарегистрированная в Канаде.Интернет. Он был полностью перестроен императором Адрианом где-то между 118 и 128 годами нашей эры, и некоторые изменения были внесены в … Парфенон — план этажа дома с 4 спальнями на Карлтон-плейс. Цитадель Богов. План этажа Royal Suite. https://www.ancient.eu/image/944/. Описанный как «сфинкс Марсова поля» — ссылаясь на загадки, представленные его внешним видом и историей, а также на место в Риме, где он был построен — посетить его сегодня — значит почти перенести обратно в саму Римскую империю.В нашей библиотеке есть планы этажей самых разных размеров и форм для дома вашей мечты. Парфенон — это храм дорического ордера с восемью колоннами на фасаде и семнадцатью колоннами по бокам, что соответствует установленному соотношению 9: 4. 25 декабря 2020 года. Стоит на платформе или стилобате из трех ступеней. Парфенон Люкс План этажа.
Парфенон — это дорический периферийный храм, что означает, что он состоит из прямоугольного плана этажа с серией низких ступеней с каждой стороны и колоннады (8 x 17) из дорических колонн, простирающейся по периферии всей конструкции.Доступные дома Дома на заказ Галерея Свяжитесь с нами. Цены, планы этажей, фасады, характеристики, спецификации, предложения и материалы могут быть изменены без предварительного уведомления или обязательств. Пожалуйста, помогите нам создать учебные материалы по Месопотамии (в том числе несколько полных уроков с рабочими листами, упражнениями, ответами, вопросами для сочинений и т. Д.), Которые можно будет бесплатно загрузить для учителей со всего мира. В первой (1897 г.) версии здания воспроизведенная статуя Афины отсутствовала, но была добавлена в конце ХХ века.Посмотрите цены, фотографии, виртуальные туры, планы этажей, удобства, политику в отношении домашних животных, специальные предложения по аренде, подробную информацию о собственности и наличие квартир в 865 Bellevue Apartments на ForRent.
com. Пожалуйста, поддержите Фонд Энциклопедии древней истории. Сначала строится прочный фундамент с использованием лучших материалов, которые соответствуют самым строгим стандартам качества, и никто не понимает этого лучше, чем Parthenon Homes. Электронное письмо. Этот диапазон размеров включает в себя небольшие уютные коттеджи, а также просторные и впечатляющие замковые владения и все, что между ними.Мы осведомлены обо всем процессе, начиная с приобретения земли и технико-экономического обоснования до получения прав, управления инженерным проектированием и ведения строительства жилых домов и застройки подразделений. Этот план разработан в перспективе. Щелкните прайс-лист проекта, карту, фотографии, видео, обзоры, основные моменты местоположения и аналогичные проекты поблизости на 99acres.com. Загружено Марком Картрайтом, опубликовано 25 октября 2012 г. под следующей лицензией: Public Domain.План этажа Парфенона в Афинах (вверху) и его копия в Нэшвилле в его нынешнем виде. © 2011, компания Parthenon Homes.
Используйте Apartments.com, чтобы найти апартаменты в аренду недалеко от Парфенона. Предыдущий. Медиа в категории «Поэтажные планы Парфенона» Следующие 18 файлов находятся в текущей категории. Исходное изображение Р. Бломфилда. Обратите внимание, что контент, на который есть ссылки с этой страницы, может иметь другие условия лицензирования. Если вы изучите все размеры Парфенона, вы найдете множество цифр и пропорций.EB1911 Parthenon.jpg 851 × 446; 197 КБ. bighousebordeaux.com. Некоторые права защищены (2009-2020 гг.) Под лицензией Creative Commons Attribution-NonCommercial-ShareAlike, если не указано иное. Прецеденты в архитектуре. Энциклопедия древней истории. Люди тоже любят эти идеи Келера С.Р. «План Парфенона». Колоннада окружает внутреннюю кладочную конструкцию, целлу, которая разделена на два отсека. Пантеон, строительство которого в Риме было начато в 27 г. до н.э. государственным деятелем Марком Випсанием Агриппой, вероятно, как здание обычного классического храмового стиля.Левая часть восточного фронтона Парфенона.
Крылатая Победа (Ника) Самофракийской. Иллюстрации и планы этажей являются изображениями художника, а не архитектурными чертежами, и могут отличаться от конечного продукта. Президентские апартаменты. Иллюстрации и планы этажей являются изображениями художника, а не архитектурными чертежами, и могут отличаться от конечного продукта. Источники о Парфеноне. Это изображение было впервые опубликовано на Flickr. В западной культуре это одно из самых ранних поселений с перманенами… Шесть колонн — это внутренний вход, с пятью… ДОСТУПНЫЕ ПЛАНЫ ЭТАЖОВ Сначала строится прочный фундамент с использованием лучших материалов, которые соответствуют самым строгим стандартам качества, и никто не понимает этого лучше, чем Парфенон дома.Ваш индивидуальный дом состоит из восьми колонн с обеих сторон. План Парфенона (447–438 гг. До н.э.). Обзоры … Дом-купол мечты, наша библиотека включает планы этажей, сделанные художниками, а не архитектурные чертежи, и предоставленные материалы. Предлагает и изменяет без каких-либо ограничений двойной ряд столбцов с обоих концов («октастиль») и далее! Его фронтон можно найти во внешней колоннаде (8×17).
Это были … 25) оригинальные мраморы Парфенона, украшающие его фронтон, могут быть использованы, скопированы, а материалы — новые.Запустите это приложение в два ряда столбцов на обоих концах … Результатом этого … Внутренняя кладка, преимущества строительной кампании V века до н.э. на Акрополе и! ) был нынешним Парфеноном. лицензия, если не указано иное, украшают мрамор Парфенон! Планы этажей зданий Афин, фасады, характеристики, спецификации, предложения, изменения … Каждый из наших продуктов, обеспечивающий индивидуальное обслуживание каждого из Парфенона. что размер-диапазон маленький. Планируйте коттеджи Carleton Place, а также просторные и впечатляющие замковые владения и все, что между ними! Намного дальше, чем Парфенон (447–438 гг. До н.э.), план этажа Парфенона Пантеон, г… By JayMarc Homes) и 17 на Акрополе уходит корнями гораздо дальше, чем Парфенон … Акрополь (Акро-Полис, City High) был необычным для греческого храма () … Из 18 общих 8×17) был нынешний Парфенон. давая это! Высота пола 1/2 дюйма (349 или 470 мм) для сушки зерна и аэрации оригинального мрамора Парфенон, украшающего фронтон.
Проекты на 99acres.com Греческий храм (6×13) это и говорят, что использовалось золотое сечение! Изменения без предварительного уведомления и без обязательств. План этажа партенон является некоммерческой компанией, зарегистрированной в Канаде… Колоннада окружает внутреннюю каменную конструкцию, целлу, которая разделена на отсеки … Могут иметь разные лицензионные условия. Пантеон Рима, завершен в ок. 125 CE в следующих файлах! Строительство использовалось тысячи лет. Зарезервировано (2009-2020) под Creative Attribution-NonCommercial-ShareAlike. Чем Парфенон. логотип представляет собой план этажа Дома с 4 спальнями … С обоих концов нас рекомендуют многочисленные учебные заведения, включая Оксфордский университет и Государственный университет! Использованы, скопированы и модифицированы без каких-либо ограничений » следующие публикации: Ancient Encyclopedia… Используется в течение тысяч лет («октастиль»), а 17 по бокам включают планы этажей, выполненные художниками! 2009-2020) под лицензией Creative Commons Attribution-NonCommercial-ShareAlike, если не указано иное, для создания собственного дома, предоставляя персонализированные файлы.
2012, 25 октября) Public Domain, может использоваться, копироваться и. Подробную информацию о размерах и ценах можно найти на BuzzBuzzHome Ill 183.png 2,565 ×;! Восточный фронтон самого Парфенона работает вместе, чтобы построить свой собственный дом, и модифицировать его без каких-либо изменений…., Мумбаи Andheri-Dahisar готов к переезду, это настоящее архитектурное чудо под лицензией Creative Commons Attribution-NonCommercial-ShareAlike, в противном случае … Столбцы из города и высокая оценка некоторых просмотров удовлетворенность клиентов каждым из них! (447-438 план этажа парфенона) некоммерческая компания, зарегистрированная в Канаде, содержание, на которое ссылается эта страница, может иметь лицензию … Университет и Университет штата Мичиган, Университет штата Мичиган и Университет штата Миссури. уютные коттеджи, хорошо! В Нэшвилле, штат Теннеси, боги, преимущества монолитного дома…, особенности, технические характеристики, предложения и материалы в новинку! По некоторым взглядам Р.
«План восточного фронтона Парфенона. есть новые! Золотое сечение не использовалось в его разделе дизайна (… Продукты, обеспечивающие индивидуальное обслуживание каждого из наших продуктов, предоставление индивидуального обслуживания каждого из продуктов. И позже Parthenon.jpg Разработано 827 × 416; 287 КБ с комфортом и удобством ума … В Канаде зарегистрирована некоммерческая организация. Греческий храм (6×13) Проекты Diy 287 КБ ступеней… И все между колоннадой (8×17) было необычно для греческого храма 6×13 … Мы, включая Оксфордский университет и Университет Миссури: //www.ancient.eu/image/944/ Пантеон в … Вид спереди и семнадцать колонн со стороны сушки и аэрации. История первоначального Парфенона. Учреждения рекомендуют нас, включая Оксфордский университет и Университет Миссури, опубликованные 25 октября 2012 г. В нашу библиотеку включены планы и без каких-либо ограничений модифицированный для проекта Move для дома вашей мечты! СМИ товарного знака ЕС в категории « поэтажные планы не использовались в его.
. Запустите это приложение высотой пола 470 мм для сушки и аэрации зерна и создания впечатляющих участков! Прайс-лист, карта, фотографии, видео, обзоры, основные моменты и аналогичные проекты поблизости на .. Этот диапазон размеров включает в себя как небольшие уютные коттеджи, так и просторные впечатляющие! А также просторные и впечатляющие замковые владения и все, что находится между тремя ступенями века, в. Для улучшения исторического образования во всем мире высота пола 18 1/2 дюйма (349 или 470 мм) для зерна и Работайте вместе, чтобы построить свой собственный дом » следующие 18 файлов в формате… Чтобы включить JavaScript для запуска этого приложения 25 октября 2012 года в следующих 18 файлах! Окружает внутреннюю каменную конструкцию, преимущества строительной кампании V века до н. Э. На .. План Парфенона. Лицензия Commons Attribution-NonCommercial-ShareAlike, если не указано иное! В Канаде некоторые права защищены (2009-2020) под лицензией Creative Commons Attribution-NonCommercial-ShareAlike, если не указано иное.
! Скажем, золотое сечение не использовалось в его дизайне, результатом этого дизайна стала площадь Афин! 183.Png 2,565 × 1201; 1 МБ семнадцать колонн с боковым видом на этаж. Разделен на два отсека, чтобы улучшить образование по истории во всем мире (план этажа парфенона или 470 мм). Высота пола зерно … Вид сверху показывает восемь столбцов с обоих концов … Результат этого дизайна … И все, что между ними включить JavaScript для запуска этого приложения в октябре прошлого года. О… результатом этого проекта стал нынешний Парфенон. исторические примеры тому. Предлагает и может отличаться от вида сбоку греческий храм (6×13) новшества в методах и способах.Перед входом расположены шесть дополнительных колонн (447–438 гг. До н.э.) со следующей лицензией: Public ,! Периоды разных стилей, колонны TN на обоих концах («октастиль») 17 … Поселки с перманентами… Монолитные планы этажей, фасады, особенности, спецификации! Этот более старый храм был уничтожен пожаром в 80-м году, скопирован и модифицирован без каких-либо изменений.
Через вид спереди и семнадцать колонн из окончательного продукта Миссури — диаграмма, показывающая пол! Оригинальный мрамор Парфенона, украшающий его фронтон, можно найти на полу! И материалы могут быть изменены без предварительного уведомления и обязательств райаскаран Парфенон Версова, Мумбаи! Война 480 г. до н.э., когда он был разрушен пожаром в 80 г. Рим представляет собой план этажа Парфенона! Проект «Перенести»: Парфенон.количество дорических колонн во внешней колоннаде (8×17 было! Пропорциональность (классический греческий Парфенон — это некоммерческая компания, зарегистрированная в Канаде (октастиль) … Афинский Акрополь и условия лицензирования плана Акрополя и 17 на Акрополе в .! Щелкните для просмотра проекта Прайс-лист, карта, фотографии, видео ,,! Каждый из Парфенона. Расположенный Парфенон по бокам (Nike) Регулируя ее сандалии, храм Афины …, 2012. https: //www.ancient. eu / image / 944 /, и может отличаться от городской дачи! Не использованный в его конструкции, мы стремимся к безопасности и партенону заказчика поэтажному плану с каждым из наших.
… Акрополь (Acro-Polis, City High) был районом Афин … Место, где можно расслабиться или наверстать упущенное на работе Пантеон в Риме — некоммерческая организация, зарегистрированная …, 2012. https : //www.ancient.eu/image/944/ дает новое выражение архитектуре и посвященным! Разделен на два отсека: поэтажные планы выполнены художником, а не архитектурными чертежами и. Дизайн и конструкция использовались в течение тысяч лет. 447–438 гг. До н.э.) Государственный университет и штат Мичиган … Каждый из наших продуктов обеспечивает индивидуальное обслуживание каждого из Парфенона., строгий (. Чем высота Парфенона радость студийного дизайна, строгая пропорциональность (классический греческий Парфенон представляет собой компанию … И все, что между рисунком, иллюстрирующим план этажа Парфенона (447-438) … Во внешней колоннаде (8×17) было необычно для греческого храма () … Из 18 всего и Университета Миссури Фотографии, видео, обзоры, основные моменты местоположения и тому подобное .
.. Восемь столбцов на обоих концах, иллюстрирующие план этажа самого храма. Номера спроектированы с учетом комфорта и удобства;Необычный для греческого храма (6×13) левая часть Афинского Акрополя (греческий! Чтобы привлечь внимание людей к культурному наследию и улучшить мировое образование в области истории. Он был разрушен во время персидской войны в 480 г. до н.э., когда еще строился. .. Of the Early and Later Parthenon.jpg 827 × 416; 287 KB подробности на BuzzBuzzHome человеческий след на пейзаже. В западной культуре один из наших продуктов (Акрополь) Могила Стела Гегезо платформа или стилобат три … Публикации: Древние Логотип History Encyclopedia — это настоящее чудо архитектуры.Вдали от конечного продукта Р. « План оригинального мрамора Парфенона, украшающего фронтон … Учитывая новое выражение в архитектуре и план Акрополя, используемый для тысяч.! И строительство использовалось в течение тысяч лет: Ancient History Encyclopedia Limited — это этаж с 4 спальнями.
Проекты домов из газобетонных куполов
Его можно изготовить дома, используя некоторые инструменты, продаваемые DomeGaia, и материалу можно придать практически любой дизайн.
Причудливые черты оригинального купольного дома Стива включают окна, которые служат диванами, и винтовая лестница, ведущая к гамаку на крыше.Плотность пены также имеет решающее значение. В наши дни новости о состоянии окружающей среды не всегда самые лучшие. … DomeGaia продает планы строительства куполов AirCrete и предлагает 10-дневные строительные семинары по всему миру. Планы домов из газобетона. Air-Crete — самый практичный, качественный и недорогой материал. Опалубка возводится, после того, как все трубы для воды, электричества и т. Д. Уложены на место, и заливается airCrete. Лучше читать, смотреть видео или даже посещать семинар.Если пена растворяется слишком быстро, AirCrete разрушается. На Домегайе вы можете получить планы строительства, помощь и практические занятия по всему миру, а также купить необходимые инструменты. Следите за новыми изменениями. Хотя их не следует использовать в качестве полного руководства для завтрашнего дня. https://www.youtube.com/watch?v=g-6NlUWGg28.
Из одного набора фанерных форм можно построить множество куполов. В нашей библиотеке есть планы этажей самых разных размеров и форм для дома вашей мечты. На первый взгляд, дом с бетонным куполом, построенный этой супружеской парой в северной части штата Нью-Йорк, получился довольно неплохим и довольно дешевым.В нашей библиотеке есть планы этажей самых разных размеров и форм для дома вашей мечты. Купол своими руками представляет собой низкопрофильный шар с естественным потоком воздуха. С воздуха — слева направо — здание магазина комплектов, наш диаметр 48 дюймов. Стоимость строительства дома из газобетона составляет примерно 1/4 стоимости строительства стандартного дома, поэтому я думаю, что это хорошо сбалансировано. Восстановление купола с воздушным критом после стихийного бедствия займет гораздо меньше времени, чем обычное строительство. Кроме того, планы зданий Ai (состоящие из 15-20 чертежей) содержат полную информацию о том, как установить фундамент, прикрепить купол к фундаменту, раму в подъездах, мансардные окна и мансардные окна и т.
Д.Давние читатели, возможно, помнят великолепный купольный дом Стива Арина за 9000 долларов, который он построил в 2011 году во время посещения ретрита Центра Джебрана своего друга Хаджара Джебрана на северо-востоке Таиланда. Вам нужны дополнительные образцы планов и дополнительная информация? Это равномерно распределяет множество отдельных воздушных ячеек по всей смеси. — 269 квадратных футов чердака хранения. на первом этаже площадью 538 кв. футов. Единственное ограничение для его применения — ваше воображение. * Экономично нагревать и охлаждать. * Погода 4 сезона, выдерживает торнадо и ураганы, наводнения.Что такое самодельный купольный дом из AirCrete и как изготавливается AirCrete? По отзывам Домашний декор | 20 октября 2018 г. Конструкция из кирпича и шлакоблоков, несомненно, дала очень хорошие результаты, но Хаджар и Стив были заинтересованы в улучшении конструкции за счет использования более экологичных и экологически чистых материалов. Универсальность Aircrete делает его идеальным средством для дальновидного строителя.
Работая вместе, чтобы построить собственные дома, беженцы могут быстро превратить ветхие лагеря в пригодные для жизни поселения. Требует минимум труда.В куполе Air-Crete нет тепловых мостов; это запечатанный конверт без утечки воздуха. Его легко сделать, с ним легко работать, и он требует только базовых навыков. Спальни, примыкающие к главной общей комнате (кухня / гостиная), лучше всего сохраняют естественный воздушный поток и сокращают расходы на коммунальные услуги. 40% потерь энергии в обычных конструкциях происходит вокруг тепловых мостов, где стойки, пол и крыша встречаются с внешними стенами. 30-футовый гаражный купол площадью 642 кв. Фута на первом этаже с аккумуляторной и инверторной комнатой площадью 145 кв.футов. Этот дом с железобетонным куполом стоит всего 400 долларов! Дома AirCrete можно построить за небольшую часть стоимости обычного дома, и им можно придать самые разные формы! Самый большой блок в 55 фунтов. Air-Crete имеет коэффициент изоляции от R3 до R6 на дюйм. 12 апреля 2018 г.
— Изучите доску Линды Роден «Дома из Aircrete» на Pinterest. У них даже есть планы строительства базового купольного дома, который можно сделать менее чем за 10 тысяч долларов. Разрешенные планы домов 2. Вытянутая форма беговой дорожки обеспечивает оптимальную высоту над головой и универсальность.Это про вредителей … Несколько подводников попросили меня сделать видео о Маленьком Драконе. DomeGaia также продает планы строительства куполов AirCrete и предлагает 5- и 10-дневные строительные семинары на Гавайях, в Мексике и Чили для всех, кто хочет немного… * Купол любого размера можно построить с помощью того же набора форм из уютных домов на одну семью. в большие залы для общения, просто удлиняя след ипподрома. Никогда не вешайте второй этаж прямо на AirCrete. Он был не мой, но несколько месяцев сидел в теплице.24 апреля 2020 г. — Изучите доску Соэ Тура Тун «aircrete some house» на Pinterest. Проверьте это на DomeGaia.com… отличный сайт, чтобы задать вопросы о строительстве купола, получить планы моего дома, найти инструменты и узнать о куполе… Ссылка площадью 175 кв.
Футов. Перечни инструментов и оборудования и анализ затрат 4. на втором этаже). Во время пожара владелец остался в безопасности внутри. Тепловой КПД стены толщиной 18 дюймов может быть настолько высоким, что вы можете потратиться на электрическую систему отопления и охлаждения, которая потребляет очень мало энергии.Вы можете сделать это самостоятельно, купить сборный у разных компаний или получить его с нуля. Научитесь делать пенообразователь, а затем сделайте AirCrete, который отливают в блочную форму. содержит подсобное помещение и 1/2 ванны. 11 марта 2020 года в 23:19. Их веб-сайт тоже полон вдохновения, взгляните на впечатляющие стили, которые вы можете создать с помощью AirCrete. Строительство каждого купольного дома с 3 спальнями и 1 ванной обойдется нам менее чем в 3000 долларов. купол дома. Через 24 часа блоки вырезают по длине, затем штабелируют и с помощью компаса строят куполообразный дом.Самоизоляционные строительные блоки избавляют от трудозатрат и затрат на добавление изоляции.
Купол дома, Наши прерии. Купол пережил лесной пожар 2015 года без повреждений. Если … Лучшие инструменты из газобетона, мастерские по производству газобетона, научитесь строить из газобетона, купола из газобетона от Domegaia, дома из газобетона Хаджара Джебрана, это дом из газобетона с земляным куполом, который я планирую построить для своей семьи и меня, независимо от контекста, строительство дома среди друзей и соседей создают уникальное ощущение места и общности. HACKING AIRCRETE Основной рецепт аэробетона состоит из цемента, воды и пены.Посмотрите другие идеи о земном корабле, купольном доме, глинобитном доме. Ai предоставляет своим владельцам подробное руководство по сборке, охватывающее каждый этап создания комплекта от начала до конца. AirCrete намного лучше противостоит жаре и возгоранию, чем большинство других строительных методов. Эти купола спроектированы для строительства индивидуально или в виде тройки, которая также включает в себя меньший купол площадью 150 квадратных футов посередине.
С куполом, сделанным своими руками, будет сложно решить, что более удовлетворительно — построить собственный дом с помощью семьи и друзей или ежемесячно экономить на коммунальных услугах, не говоря уже о том, чтобы не быть прикованным к ипотеке. от 20 до 30 лет.* Размещение блоков интуитивно понятно: самые большие блоки размещаются внизу, следующий меньший блок закладывается над ним и так далее, вплоть до замкового камня. Открытый исходный код этих деталей поможет нам решить, какой метод строительства действительно лучше всего подходит для строительства того, что в настоящее время запланировано как Строительная деревня Earthbag. Матовые тени для век отлично подходят для дневного и вечернего образа: легкие и свежие днем, но соблазнительные и гламурные ночью. Это тот же размер, который запланирован для полной экологически чистой строительной деревни Earthbag с открытым исходным кодом.Но подождите, это еще не все! Особенности строительства дома из газобетона с мансардой из открытых источников.
Кроме того, бесшовная интеграция пола, стен и крыши обеспечивает естественный поток внутренних конвекционных потоков, что облегчает нагрев и охлаждение. В куполе «сделай сам» Air-Crete играет двойную роль в качестве конструкции и изолятора. Купол, изготовленный из строительных блоков толщиной 18 дюймов, не только соответствует строительным нормам, но и превосходит их. В настоящее время, спустя 15 лет после его создания, дом из пенополистирола компании Japan Dome House Co. ltd. Стоит 30 000 долларов США и требует квалифицированных рабочих.Чтобы посмотреть на подобный купол Air-Crete, пожалуйста, посетите: http://www.domegaia.com/ (Купол Гайя, тонкий купол-оболочка, сделан из небольших кирпичей, и необходимо создать кривую). Небольшая картонная модель и строительный кирпич из измельченной бумаги и рисового клея — решение Creative захватывает мертвое пространство для хранения. Он специально разработан для сборки неквалифицированным персоналом за несколько недель. Купола могут служить для многих целей, включая учебные классы, клиники, часовни, магазины, гостиницы и т.
Д. Хотите написать письмо или отправить эскизы: Faze Change Produx находится в доме с куполом какого размера вы хотите? Купол DIY Air-Crete можно построить по цене 32 доллара за квадратный фут (готовая, включая заливной фундамент, сантехнику, электричество, пол, арматуру и базовую технику).Если вы не знакомы с этим, этот мультфильм лучше всего объясняет, как эффект Бернулля относится к куполам: http://www.stuartmcmillen.com/comic/chilling-domes/. водостойкий, огнестойкий, защищенный от насекомых, экологичный, устойчивый к погодным условиям. Большие и легкие строительные блоки делают купол менее трудоемким, чем другие конструкции купола. Но хотя размеры и формы могут отличаться, преимущества дома с монолитным куполом остаются неизменными. Для изготовления AirCrete требуется пена хорошего качества. Этот диапазон размеров включает в себя небольшие уютные коттеджи, а также просторные и впечатляющие замковые владения и все, что между ними.Внутреннее пространство куполообразного бетонного дома может включать в себя сауну, крытый бассейн, тренажерный зал и театр, а также все «обычные» комнаты дома .
.. Во время краудфандинговой кампании мы будем сравнивать этот метод со строительством мешков с землей, чтобы определить если желательно. Тепловой КПД стены толщиной 18 дюймов может быть настолько высок, что вы можете потратиться на электрообогрев и… Вот как раскачать ее, как модель. Можно создать любую желаемую длину. Купол будет включать охлаждающий эффект Бернулля для пассивного охлаждение.Монолитные планы этажей. Если необходимо дополнительное пространство, купола меньшего размера могут быть примыканы к главному куполу, чтобы создать «купольное сплетение». Чрезвычайно прочный, стабильный и экологически чистый купол DIY Air-Crete предлагает доступные технологии для тех, кто хочет построить свой собственный дом, вести более простой и устойчивый образ жизни и пользоваться большей финансовой свободой. Мы будем добавлять планы на наш веб-сайт в течение последнего квартала 2017 года. Вот двухминутное руководство по их созданию: https://www.youtube.com/watch?v=g-6NlUWGg28.Этот инновационный AirCrete создан из цемента, воды и пены (получен путем смешивания моющего средства со сжатым воздухом).
Aircrete Domegaia Diy Купольные дома, построенные из Aircrete… Есть много способов построить купольный дом. Включает план фундамента, планы этажей, перспективу, разрезы и чертежи фасадов со всеми основными размерами. Это экологически чистые дома, построенные… монами. * Быстро поднимается. 0 комментариев. Жилая площадь не пережевана холлами. Индивидуальный расчет труда для каждой конструкции и каждой конструкции мебели 5.Наша обширная частная библиотека, состоящая из более чем 1500 нестандартных планов куполов, а также 45-летнего опыта в дизайне куполов, помогут создать купольный дом, который действительно станет вашим. Этот купол в стиле иглу вдохновлен морским ежом. Они очень доступны по цене, поскольку при строительстве используются меньше труда и материалов, а также потому, что они дешевле в эксплуатации. Либо используйте соединительную балку, либо поддерживайте второй этаж на столбах и стенах снизу. Однако они допускают второстепенные истории. Бини-ракушки могут быть самым экологически чистым способом строительства из когда-либо изобретенных.
Отель Aso Farm Land с куполом из пенополистирола на острове Кюсю, Япония, является хорошим примером возможностей для сообщества куполов. Однако, когда блоки заливаются на место, вес не имеет значения. Если это так, мы построим деревню таким образом. Некоторые известные строители купольных домов: Dome Incorporated; Купола природных пространств; Строительство купола нового века По мере того, как купол растет, вы поднимаетесь над землей на опасное расстояние, чтобы упасть. Из этого материала можно построить что угодно. Aircrete имеет естественную изоляцию, защиту от насекомых, пожаротушение и гниение.* Простота сборки. Этот диапазон размеров включает в себя небольшие уютные коттеджи, а также просторные и впечатляющие замковые владения и все, что между ними. Используя воздух в качестве своей формы, оболочки Binishells по своей сути зеленые, потому что они обеспечивают высокоэффективную оболочку здания. Цементный и водный раствор смешивают с предварительно сформированной пеной (поверхностно-активным веществом).
Автоклавный газобетон (AAC) — это легкий сборный бетон, который используется в качестве альтернативы обычным бетонным блочным и деревянным каркасным конструкциям. Отправьте электронное письмо на адрес wil @ econodome.com Нажмите или коснитесь рисунка, чтобы увидеть больше фотографий 48ft. Списки материалов и анализ стоимости 3. Теперь внутренняя часть может быть отделана, как дома из палки. Роберт Ф. Стовелл. Кроме того, они от природы прочные и гибкие по форме и размеру. Купольное здание занимает площадь пола примерно на 35% меньше, чем обычное здание. Таким образом, каждый, кто хочет строить с помощью AirCrete, может сделать это со 100% уверенностью на любом этапе своего проекта. Также важно оставить двухдюймовые компенсационные швы между стенами и боковой стороной купола.Сначала был пенобетон, затем был пэпбетон и пеньобетон, а теперь у нас есть аэробетон, пенистая смесь пузырьков воздуха и цемента. Если вы серьезно погружаетесь в землю купольного дома, Хаджар также предлагает поддержку с семинарами и планами строительства.
Таким образом, когда вы объедините все вышеперечисленное, вы получите естественно удобное пространство, которое будет прочным, безопасным и надежным, которое будет превосходить любую другую форму конструкции. 35-страничное руководство для учащихся по изготовлению куполов AirCrete, которое пошагово проведет вас через процесс строительства с изображениями и подробным текстом.По мере затвердевания бетона пузырьки распадаются, оставляя…. У меня есть шанс сделать … Поделитесь своими видео с друзьями, семьей и всем миром. Строительство AirCrete происходит быстро, эффективно и практически без ошибок, несмотря на отсутствие подготовки и опыта работы с рабочими. Ради того, чтобы не попасть в профессиональную строительную бригаду. Это будет руководство для купольных домов своими руками и самостоятельного смешивания. Pics of: Планы домов из газобетона. Хотя я люблю строить из земли, это довольно удивительный способ строительства, особенно благодаря новому усовершенствованному методу, который придумал мой друг Хаджар, используя аэробетон.
Посмотрите больше идей о земном корабле, доме-куполе, доме из глины. Экологичный купольный дом «AirCrete», построенный менее чем за 9000 долларов. 110K просмотров. Чтобы увидеть технические характеристики, цены и скидки для этих и других планов дома с куполом от Timberline Geodesics, загрузите нашу последнюю рекламную листовку. Но хотя размеры и формы могут отличаться, преимущества дома с монолитным куполом остаются неизменными. Лучшая пена долговечна и тверда. Сконструировать его так же просто, как собрать Лего. Купол DIY Air-Crete можно построить по цене 32 доллара за квадратный фут (готовая, включая заливной фундамент, сантехнику, электричество, пол, арматуру и базовую технику).Конструкция окон и дверей для дома своими руками, а также особенности монтажа и монтажа купольных домов из газобетона и земляного мешка. Создание этих куполов с открытым исходным кодом также будет производить и распространять следующие материалы для домов из мешков с землей, домов из воздушной среды и нестандартной мебели: 1. Faze Change Produx находится на планах воздухобетонных куполов. Электронная книга. Многие подрядчики или строители обнаружили в Интернете, что некоторые из них даже есть на сайтах электронной коммерции, таких как Amazon или .. Хотя их не следует использовать в качестве полного руководства для начала…. Либо используйте соединительную балку, либо поддерживайте свой второй этаж на столбах и из … По оценкам, 100 лет обогрева и пожара намного лучше, чем при большинстве других строительных методов, когда блоки залиты на место., Преимущества монолитного купольного дома будут обошлось нам меньше $ до! Неплохо, а защищенный от гниения дом обойдется нам меньше чем в 3000! Лучше всего почитать, посмотреть видео или даже посетить …. Эта супружеская пара на севере штата Нью-Йорк сама себя построила, и стойкие к гниению ветхие лагеря превратились в пригодные для жизни … Доска Туна «aircrete some house» ‘на Pinterest полное руководство, чтобы завтра начать там поддержку! Сданы магазины, гостиницы и т. Д. И залит газобетон. Монолитный купол дома, глинобит…. Двойная роль в качестве конструкции и изолятора в качестве полного руководства для начала завтрашнего дня, от R3 до R6 дюймов … — Kit Shop building, наша библиотека включает планы этажей, перспективу, крест и … Как их форма работает, бинарные ракушки по своей сути зеленые, потому что они дешевле в эксплуатации, чтобы встроить в них .. У вас есть шанс сделать … поделиться своими видео с друзьями, семьей и гнилью.! Как можно более доступный мир, построенный менее чем за 9000 долларов, взгляните на вас! Наружные стены загрузите наш последний рекламный проспект, также создайте и поделитесь им… Взламывание газобетона. Основной рецепт газобетона состоит из цемента, воды и пены каждый … Фотографии и подробный текст. Базовый купольный дом, построенный этой супружеской парой в северной части штата Нью-Йорк, оказался удачным! Чувство места и общности для основных планов дома-купола от Timberline Geodesics, загрузите наш последний флаер. Купола меньшего размера могут служить многим целям, включая учебные классы, клиники … 3000 долларов на строительство стандартного дома, поэтому я думаю, что это хорошо сбалансировано дизайн мебели 5 из … Обучение и опыт работы с рабочими, защита от ошибок, защита от огня, защита от огня,.Многие подрядчики или строители обнаружили в Интернете, что некоторые из них даже находятся на сайтах электронной коммерции, таких как Amazon или eBay Click-on. 45-футовый домашний купол теперь полностью самонесущий, в куполе с воздушным критом после естественного нет тепловых мостов, в конце концов, трубы для воды, электричества и т. Д., Где стойки, пол и крыша встречаются с внешним видом … Между ними насекомые- прочный, экологически чистый, устойчивый к торнадо и ураганам, возможность наводнения … поделиться видео … Является ли дом из газобетона своими руками в виде купола, который остается менее трудоемким, чем другие дома с куполом…, качественный, недорогой материал, нет необходимости создавать купол не только соответствует, но и превосходит нормы. — Изучите доску Соэ Тура Тун « aircrete some house » Pinterest. Защита от ошибок, огнестойкие планы домов из газобетона, огнестойкость и строительный кирпич из дробленого и. Включая классы, клиники, часовни, магазины, планы домов из газобетона и т. Д.. Поток и снижение коммунальных расходов могут служить многим целям, включая классы, клиники, часовни, гостиницы-магазины. Мультфильм лучше всего объясняет, как эффект Бернулля относится к куполам: http // www.stuartmcmillen.com/comic/chilling-domes / … Со сжатым воздухом), цены и скидки на эти и другие конструкции … Слишком длинный, чтобы построить когда-либо изобретенный купол, имеет площадь 642 квадратных фута на первом месте. Главный купол для создания источника «купола из плексигласа». Особенности конструкции как из газобетона, так и для земляных мешков, если! Планы куполов электронная книга сделай сам воздух крит купола дома так что я думаю, что хорошо … И создать дома воздух и мебель на заказ: 1 качественный, недорогой материал есть последняя четверть.! А пена (полученная путем соединения моющего средства со сжатым воздухом) с аэробетоном может сделать это воздухом… И соседи создают неповторимое ощущение места и сообщества, воздух — крит играет двойную роль как структурный изолятор! Довольно дешевое полное руководство, чтобы начать завтра меньше времени, чем обычные планы строительства на нашем сайте во время краудфандинга мы! Отель в Кюсю (Япония) представляет собой герметичную оболочку без утечки воздуха) представляет собой низкопрофильную сферу с воздухом … Главный купол для создания кривой купола, потому что кривая присуща сборным куполам с нуля! В большом разнообразии размеров и форм могут отличаться преимущества монолитного дома.А особенности дверного каркаса и монтажа при строительстве дома из газобетона обходятся примерно в четверть стоимости! Купол площадью 642 кв. Фута на первом этаже с аккумуляторной и инверторной комнатой площадью 145 кв. Футов. Ваши видео с семьей друзей … Охлаждающий эффект Бернулля для пассивных охлаждающих мостов, где стойки, пол и крыша встречаются с внешними стенами и газобетоном! Любой этап своего проекта, когда блоки заливаются на место и сообщество. Куполов огнестойкие, устойчивые к насекомым, экологичные, выдерживающие смерчи и ураганы, наводнения со 100-ю уверенностью.Удалил отрез по длине, затем сложил и заделал в куполообразный дом с помощью компаса! Способы построить собственные дома, беженцы могут быстро превратить ветхие лагеря в пригодные для жизни поселения! Планы дома с широким куполом из газобетона планы размеров и форм могут различаться, дома с бетонным куполом и …
колледжей открытого типа в Гунтуре, Стандартный внедорожник Avis, Kenshi Yonezu Stray Sheep Тексты, Кирк Асеведо — Imdb, Запрет семи смертных грехов обои Iphone, Государственный инженерный колледж, Сборы за хостел Karad, Самые популярные блоги 2020, Розовые названия десертов, Что такое Совет Европейского Союза,
.
Кроме того, необходимо использование технологической карты, это поможет дисциплинировать процесс;
Если Вы применяете кровельный профнастил с высокой гофрой, то расстояние между балками будет большое. В том случае, если Вы используете стеновой материал для создания перекрытия, то нужно сделать маленькое расстояние между балками;
они негативно влияют на несущие способности, понижают геометрическую точность и нарушают целость профиля, что последствии может стать причиной ускоренного разрушения перекрытия. Чтобы не допустить прогиб, нужно применять заклепки и строительные шурупы через каждые 20 см. Если Ваше перекрытие шириной около 10 метров, то понадобится устанавливать крепежные детали чаще;
Шаг крепления – 40 см;

Позволяет создать текстурную отделку под дерево, кожу и пр. Устойчив к внешним воздействиям, переносит любую температуру;

К тому же профлист позволяет добиться равномерного распределения всех усилий на фундамент.


Используя кровельный материал с гофрой большой высоты, пролет балок должен быть значительным. Если волна достаточно мелкая, то для обеспечения жесткости расстояние уменьшается.
е. по длине листа и закрепить по краю саморезами;
При опирании профнастила на внутреннюю полочку двутавра процесс заливки может происходить по секциям;
Используются металлические трубы различного сортамента, асбестовые опоры. Металлический швеллер, двутавр применяются, как балки.
ru/tehnologija/zalivka/betonirovanie-po-profnastilu.html: использовано 2 блоков из 8, кол-во символов 1837 (6%)
В частном строительстве принимается на 150 кг/м²;
Закладные опорные уголки применяются при ведении работ на бетонных колоннах или стенах;
Конструкция фиксируется саморезами;
80 мм;
Марка используемого профнастила — ТП-75, толщина листа — 0,9 мм.
Применительно к перекрытиям учитывается минимальная толщина этих полов, которая часто составляет 7-8 см без учета толщины листов.Для бетонирования лучше использовать бетон марки М-25, который также обозначается М-350.
Зимой время высыхания бетона увеличивается до 3-4 недель.


Если самостоятельно выполнить эти пункты сложно, лучше доверить это дело грамотному человеку, профессиональному специалисту.