Коньковый прогон размеры сечения: Расчёт стропильной системы с несущим коньком
Расчёт стропильной системы с несущим коньком
Калькулятор расчёта двухскатной стропильной системы с несущим коньком выполняет расчёт прочности и прогиба стропил под действием снеговых, ветровых нагрузок и их сочетаний; позволяя подобрать оптимальные сечение и шаг стропил.
Запустить калькуляторДвухскатная стропильная система с несущим коньком
Стропильная система с несущим коньком является одной из самых простых и распространённых схем наслонных стропильных систем для реализации двускатной кровли. При правильном исполнении площадок опирания стропил и конька одним из огромных её преимуществ является фактически полное отсутствие горизонтального распора стропил.
Стропила
В стропилах должны быть выполнены специальные опорные площадки (запилы)
для опирания на мауэрлат (верхнюю обвязку) и конёк. Глубина запилов не
должна превышать 1/4 ширины используемой доски, а получившаяся площадка
опирания должна быть не менее 38 мм.
Конёк
Конёк может быть выполнен самыми различными способами. Основное требование к нему — отсутствие значимого прогиба под действием вертикальных нагрузок, в противном случае появляется горизональный распор стропил.
Несущая стена
При наличии несущей стены по центру дома она может использоваться для восприятия и передачи нагрузок от конька. Коньком может являться смонтированный поверх стены мауэрлат (верхняя обвязка), либо же уложенная горизонтально доска сечением не менее 38×140 уложенная на вертикальные стойки сечением не менее 38×89, установленные с шагом не более 1.2 м.
Коньковые балки
В качестве несущего конька можно использовать коньковые балки
выполненные из различных материалов и имеющие различные конструкции.
При этом необходимо учитывать, что просадка конька под вертакальной
нагрузкой в рассматриваемой стропильной системе неминуемо приводит к
возникновению горизонтальных распорных сил на концах стропил.
В то же
время предельная величина перемещения концов стропил ограничена и
линейно зависит от просадки конька, что позволяет учесть её при
проектировании.
Наиболее просты в исполнении и расчёте коньковые балки, выполненные из трёх и более сплочённых досок. Для исполнения коньковых балок под большие пролёты возможно использование LVL балок и плоских ферм.
Как срастить коньковый прогон? — Строим сами
Соединение стропил в коньке – способы и техника крепления
На опорный каркас крыши ложится большая нагрузка, создающаяся кровельным материалом, слоем термоизоляции и веса снега, лежащего на поверхности скатов. Чтобы конструкция не разрушилась, проектируют стропильную систему с учетом всех потенциально воздействующих на нее сил. В процессе расчета определяют необходимое количество и размер сечения стропильных ног, на которые ложится основной вес кровли. Однако, не менее важно, насколько качественно выполняется соединение стропил в коньке.
Разновидности соединительных узлов
Основа каркаса крыши – стропильные фермы, в которые отдельные элемента, соединятся между собой в конструкции различной геометрической формы, к примеру, треугольной или пятиугольной. Одной из наиболее прочных и устойчивых к внешним воздействиям фигурой является треугольник, именно такой вид имеют фермы двухскатных и полувальмовых, вальмовых и шатровых крыш. Соединительным узлом называют место сращивания или крепления стропил друг с другом, с мауэрлатом, дополнительными опорами. При сооружении стропильной системы используются следующие виды узлов:
- Узел крепления к мауэрлату. Каждая стропильная нога имеет точку крепления к основанию каркаса, называемому мауэрлатым брусом. Его задача – равномерно распределять нагрузку от веса кровли и передавать ее через несущие стены к фундаменту сооружения.
Нарушение целостности мауэрлата снижает его прочность, поэтому соединение выполняю, используя бруски, металлические уголки или делая выпилы на концах стропильных ног.Важно! В процессе строительства стропильного каркаса используют два типа соединительных узлов: жесткие и подвижные. Жесткими называют крепления, когда элементы фиксируются между собой неподвижно. Подвижные соединения имеют возможность изменять свое положение, для них применяют специальные металлические «ползунки».
Способы соединения стропил в коньке
Коньковый узел стропильной системы располагается в верхней точке крыши и образуется за счет соединения между ногами одной стропильной пары. Не этот участок каркаса ложится огромная нагрузка, чтобы конек ее выдержал, опытные кровельщики применяют следующие варианты крепления:
- Встык. Чтобы выполнит соединение стропил встык, один конец досок, используемых для изготовления ног, опиливают под углом таким образом, чтобы при совмещении они образовывали угол.

Внимание! Работа с деревянными домами из бруса и бревна требует особого подхода. Так как натуральное дерево изменяет размер в процессе изменения процента влажности, дом, построенный из этого материала, уседает в первые 5 лет эксплуатации. Чтобы компенсировать усадку, величина которой достигает иногда 20 см, требуются специальные подвижные крепления. Оно представляет собой пластины для фиксации стропил, соединенные металлическим стержнем.
Принципы крепления
Чтобы качественно соединить крепление стропил друг другу в коньковом узле, требуются самые обычные инструменты: карандаш, рулетка, пила, строительный уровень, шуруповерт и крепеж.
Качество выполнения работ зависит от соблюдения следующих правил:
- Тип используемого крепления для каждого соединительного листа определяется при расчете и проектировании стропильной системы. Чтобы не возникло путаницы, эта информация отражается на чертеже.
- Чтобы все узлы крепления имели одинаковый размер и угол, из изготовляют по одному, предварительно размеченному и изготовленному, шаблону.
- Если в процессе фиксации используются болт или саморезы и необходимо проделать отверстия, то их диаметр должен превышать размеры крепежного элемента. Это предотвращает образование на древесине трещин, коробления и деформации.
- Затягивая болты, саморезы или заколачивая гвозди, из не заглубляют ниже поверхности досок, а наоборот, оставляют небольшой зазор, чтобы древесина не повредилась при изменении влажности.
- Каждый соединение стропильных ног в коньке должно быть плотным, но не тугим. После завершения монтажа, обязательно проводится проверка на плотность прилегания всех узлов.

Коньковый узел крыши – участок, на который ложится самая большая нагрузка. Поэтому от правильности расчета и качества соединения стропил зависит несущая способность всей стропильной системы.
Видео-инструкция
Соединение стропил — 3 способа сращивания и тонкости монтажа
Три способа сращивания балок
| Иллюстрации | Рекомендации |
| Способ №1. Сращивание встык. Сращивание при помощи 2 деревянных накладок считается простым и весьма надежным способом соединения. Вы накладываете своеобразную шину с обеих сторон на стропильную ногу и сбиваете ее. В качестве накладок лучше использовать тот же брус. На каждую сторону балки накладки должны заходить на расстояние от 1 м. | |
| Способ №2. Косой прируб. Показанные на схеме слева варианты соединений относят к одному способу под названием косой прируб Главное здесь, чтобы с обеих сторон смежные секции упирались в порожек. Такой прием обеспечивает прочность на сжатие. Стыковка выполняется шпильками, но на этом мы остановимся чуть позже.
| |
| Способ №3. Стыковка внахлест. Едва ли не самый простой и популярный способ стыковки. Единственный минус здесь в том, что верхняя и нижняя точки стыковки не совпадают из-за смещения, но на больших прогонах это практически не играет роли. |
Тонкости обустройства стыковочных узлов
Нарастить стропильную ногу до нужных размеров — это только часть дела, ее еще нужно состыковать с нижней опорной балкой и правильно прикрепить к коньковому брусу.
Но для начала давайте разберемся, при помощи чего такое крепление выполняется.
Основные крепежные элементы
Каждый узел нужно как-то крепить, сам он держаться не будет и здесь есть несколько вариантов:
- Гвозди — крепление гвоздями самый простой и распространенный способ фиксации. Существует 2 вида гвоздей — гладкие и ершеные. Гладкие привлекательны по цене, но для прочности их нужно набивать в полтора раза больше. Ершеные чуть дороже, зато они имеют заусенца, которые при входе в массив цепляются там намертво;
Ершеные гвозди в деревянном массиве держатся на порядок лучше, чем гладкие.
- Саморезы — фиксация саморезами, по сравнению с гвоздями на порядок качественней. Плюс саморезы всегда можно выкрутить, а те же ершеные гвозди извлечь весьма проблематично;
Для монтажа стропильной системы лучше использовать саморезы с антикоррозийным покрытием.
- Шпильки — металлические шпильки и болты считаются самым прочным и надежным видом стыковки.
Правда под них нужно вначале просверлить сквозное отверстие и только после этого узел можно стянуть при помощи гаек. Для прочности под гайки обязательно подкладываются широкие шайбы, плюс ставится гравер и контргайка;
Стягивание узлов шпильками считается самым надежным.
- Скобы — в недавнем прошлом гвозди, и металлические скобы были основными способами крепления. Сейчас мастера больше переходят на соединение стропил пластинами, тем не менее, для страховки во многих ответственных узлах по-прежнему забиваются мощные скобы.
Металлические скобы используются практически в каждой стропильной системе.
Варианты соединения в районе конька
Существует несколько распространенных способов соединения стропильных ног в районе конька. Выбор того или иного способа зависит от вида стропильной системы и наличия или отсутствия конькового прогона.
Наиболее распространенные способы соединения стропильных ног в районе конька.
- Самым простым соединением считается стыковка внахлест. Здесь смежные балки просто накладываются друг на друга, после чего по центру высверливается сквозное отверстие и узел скрепляется болтом или шпилькой. Соединение считается подвижным, поэтому узел должен опираться на коньковый прогон;
- Более сложным видом считается соединение типа шип-паз. При такой стыковке в одной из стропильных ног выбирается паз, а на другой вырезается шип. При соединении бруски заходят друг в друга и фиксируются саморезами или гвоздями. Стыковка относится к жестким, поэтому может выполняться как с коньковым прогоном, так и без него;
- Соединение вполдерева похоже на предыдущий вариант, только в этом случае на смежных стропильных ногах вырезаются пазы в половину толщины бруса и после стыковки, узел также скрепляется саморезами или гвоздями;
Варианты жесткой стыковки стропильных ног без опоры на коньковый прогон.
Стыковка стропильных ног при помощи накладок может выполняться как в жестком, так и в подвижном вариантах.
Жесткие разновидности стыковки не требуют опоры на коньковый прогон, а шарнирное соединение выполняется только в связке с коньковым прогоном.
- Жесткое соединение при помощи двух деревянных накладок применяется довольно широко. Зачастую накладки фиксируются несколькими сквозными шпильками. Помимо стыковки такие накладки еще исполняют роль поперечных затяжек, поэтому их может быть несколько;
Деревянные накладки выступают как дополнительные элементы и исполняют роль поперечных затяжек.
- Металлические накладки бывают нескольких видов. Самый простой вариант это перфорированная пластина, которая фиксируется в нескольких точках, тем самым обеспечивая жесткое соединение. Как вариант, вместо пластины может прикручиваться уголок. Так соединение стропил уголками используется для вальмовой крыши;
На вальмовой крыше стропила стыкуются уголками через коньковый прогон.
- Для обеспечения подвижного соединения из металлических накладок собирается шарнирный узел, который скрепляется металлической шпилькой.
Подвижный шарнирный узел обычно монтируется на крышах деревянных домов для компенсации деформаций при усадке дома.
Подвижный шарнирный узел компенсирует деформации при усадке дома.
Стыковка стропил со стенами дома
Любая стропильная система опирается не на несущие стены дома, а на так называемый мауэрлат. Он представляет собой брус большого сечения. Если дом блочный или кирпичный, то стропильные ноги с мауэрлатом стыкуются жестко. То есть в стропильной ноге делается треугольный вырез, который и опирается на мауэрлат.
В блочных домах стропила с мауэрлатом стыкуются жестко.
Деревянные дома первые несколько лет довольно сильно усаживаются, поэтому здесь используются скользящие крепления стропил к мауэрлату. То есть балка опирается на брус и с обеих сторон прикручиваются подвижные металлические крепления.
Скользящее соединение стропил используется только на крышах деревянных домов.
com/embed/6zomLoRZaHg»/>
Вывод
Соединений подходящих для любых стропильных систем в принципе не существует. Мы описали наиболее часто встречающиеся виды конструкций, опираясь на данные рекомендации, вы легко сможете выбрать подходящее соединение стропил. На видео в этой статье есть дополнительные рекомендации по обустройству стропил. Если остались вопросы, пишите в комментарии, постараюсь помочь.
В деревянных домах все соединения стропил делаются подвижными.
Соединение стропил в коньке – способы и техника крепления
На опорный каркас крыши ложится большая нагрузка, создающаяся кровельным материалом, слоем термоизоляции и веса снега, лежащего на поверхности скатов.
Чтобы конструкция не разрушилась, проектируют стропильную систему с учетом всех потенциально воздействующих на нее сил. В процессе расчета определяют необходимое количество и размер сечения стропильных ног, на которые ложится основной вес кровли. Однако, не менее важно, насколько качественно выполняется соединение стропил в коньке. Эта статься расскажет какие виды соединений существуют, как правильно их выполнить и от чего зависит выбор того или иного способа крепежа.
Разновидности соединительных узлов
Основа каркаса крыши – стропильные фермы, в которые отдельные элемента, соединятся между собой в конструкции различной геометрической формы, к примеру, треугольной или пятиугольной. Одной из наиболее прочных и устойчивых к внешним воздействиям фигурой является треугольник, именно такой вид имеют фермы двухскатных и полувальмовых, вальмовых и шатровых крыш. Соединительным узлом называют место сращивания или крепления стропил друг с другом, с мауэрлатом, дополнительными опорами.
При сооружении стропильной системы используются следующие виды узлов:
- Узел крепления к мауэрлату. Каждая стропильная нога имеет точку крепления к основанию каркаса, называемому мауэрлатым брусом. Его задача – равномерно распределять нагрузку от веса кровли и передавать ее через несущие стены к фундаменту сооружения. Нарушение целостности мауэрлата снижает его прочность, поэтому соединение выполняю, используя бруски, металлические уголки или делая выпилы на концах стропильных ног.
Важно! В процессе строительства стропильного каркаса используют два типа соединительных узлов: жесткие и подвижные. Жесткими называют крепления, когда элементы фиксируются между собой неподвижно. Подвижные соединения имеют возможность изменять свое положение, для них применяют специальные металлические «ползунки».
Способы соединения стропил в коньке
Коньковый узел стропильной системы располагается в верхней точке крыши и образуется за счет соединения между ногами одной стропильной пары.
Не этот участок каркаса ложится огромная нагрузка, чтобы конек ее выдержал, опытные кровельщики применяют следующие варианты крепления:
- Встык. Чтобы выполнит соединение стропил встык, один конец досок, используемых для изготовления ног, опиливают под углом таким образом, чтобы при совмещении они образовывали угол. Чтобы зафиксировать стропила в этом месте используют гвозди, забивая в торцевую часть ноги под углом так, чтобы он проходил через обе ноги. Чтобы усилить крепление встык используют специальные металлические пластины с отверстиями под саморезы. Из накладывают на место соединения стропил с двух сторон и закрепляют саморезами или гвоздями.
Внимание! Работа с деревянными домами из бруса и бревна требует особого подхода. Так как натуральное дерево изменяет размер в процессе изменения процента влажности, дом, построенный из этого материала, уседает в первые 5 лет эксплуатации. Чтобы компенсировать усадку, величина которой достигает иногда 20 см, требуются специальные подвижные крепления.
Оно представляет собой пластины для фиксации стропил, соединенные металлическим стержнем.
Принципы крепления
Чтобы качественно соединить крепление стропил друг другу в коньковом узле, требуются самые обычные инструменты: карандаш, рулетка, пила, строительный уровень, шуруповерт и крепеж. Качество выполнения работ зависит от соблюдения следующих правил:
- Тип используемого крепления для каждого соединительного листа определяется при расчете и проектировании стропильной системы. Чтобы не возникло путаницы, эта информация отражается на чертеже.
- Чтобы все узлы крепления имели одинаковый размер и угол, из изготовляют по одному, предварительно размеченному и изготовленному, шаблону.
- Если в процессе фиксации используются болт или саморезы и необходимо проделать отверстия, то их диаметр должен превышать размеры крепежного элемента. Это предотвращает образование на древесине трещин, коробления и деформации.

- Затягивая болты, саморезы или заколачивая гвозди, из не заглубляют ниже поверхности досок, а наоборот, оставляют небольшой зазор, чтобы древесина не повредилась при изменении влажности.
- Каждый соединение стропильных ног в коньке должно быть плотным, но не тугим. После завершения монтажа, обязательно проводится проверка на плотность прилегания всех узлов.
Коньковый узел крыши – участок, на который ложится самая большая нагрузка. Поэтому от правильности расчета и качества соединения стропил зависит несущая способность всей стропильной системы.
Видео-инструкция
Способы сращивания стропил по длине
Правильное сращивание стропил по длине гарантирует безопасность системы в различных условиях эксплуатации.
Применяя для сращивания способы, изложенные в статье, можно построить крышу любой, даже самой сложной конструкции, затратив на материалы минимум денег и используя лесоматериалы стандартных размеров.
Нюансы удлинения кровельных пиломатериалов
Основной элемент каркаса двухскатной крыши — сами стропила или, как их называют кровельщики, — стропильные ноги.
Стропила закрепляются в нужном положении с помощью системы распорок, прогонов, затяжек и раскосов.
Для строительства стропильных каркасов, перекрывающих значительные междустенные промежутки, и при возведении кровель сложной формы приходится использовать лесоматериалы нетипичного размера.
Если под рукой нет бруса или другого пиломатериала нужного размера, то приходится сращивать элементы, пока их общая длина не достигнет требуемой величины.
Материал стандартного размера при увеличении длины становится толще — это не всегда удобно и технологично.
Сращивание дает возможность увеличивать длину стропильных элементов без изменения их толщины и достигать таким образом проектных параметров.
Порядок сращивания стропил по длине, который при этом может использоваться, в основном зависит от предпочтений мастера.
Все способы одинаково надежны и позволяют получить стропила заданных геометрических и физических параметров.
Прежде чем приступать к объединению стропил, нужно немножко узнать о физических свойствах материалов, используемых на разных участках стропильной конструкции.
Деталям конструкции, расположенным в ее разных частях, приходится переносить механические нагрузки разной интенсивности.
В некоторых узлах вообще нельзя использовать сращивание стропил в длину, так как сращенный пиломатериал не обладает прочностью цельного.
Более того, в определенных местах даже цельный пиломатериал целесообразно усиливать дополнительными деталями.
В любом случае после сращивания стропильные ноги и весь каркас кровли должны быть гарантированно защищены от поломок.
Как правило, сращивание стропил в длину уменьшает жесткость конструкции, так как в месте сращивания образуется подобие пластического шарнира.
Чтобы снижение жесткости как можно меньше повлияло на прочность стропильной системы, сращивание стропил необходимо проводить в точках наименьшей нагрузки на изгиб.
Такие места стропильной системы находятся поблизости от опор.
Главное правило при сращении в длину заключается в следующем — место соединения пиломатериалов не должно находиться от опоры на расстоянии большем, чем 15 % от величины пролета.
Кроме того, место сращения пиломатериалов по длине зависит от того, в качестве какой детали стропильного каркаса они впоследствии будут использоваться.
При объединении пиломатериалов, идущих на сооружение прогонов, нужно обеспечить одинаковую прочность будущей детали по всей длине.
Другая задача стоит при сращивании конькового прогона. Здесь потребуется определенный размер прогиба, так как только при этом высота коньковой планки будет одинаковой на всей ее протяженности.
Порядок сращивания стропил
В строительном деле есть несколько способов срастить лесоматериалы в длину. На выбор методики сращивания влияет расстояние между стропилами и имеющиеся в наличии крепежные и строительные материалы.
Самым быстрым способом соединить лесоматериалы и увеличить таким образом их длину является стыковка.
Для стыковки торцы обеих досок или брусьев должны быть обрезаны под углом 90 градусов.
Торцы должны предельно точно прилегать друг к другу — это обеспечит максимальную прочность стропила после сращивания.
С обеих сторон от стыка на пиломатериалы накладывают деревянные планки и закрепляют их гвоздями, вбивая крепеж в диагональном порядке.
Вместо деревянных накладок можно использовать металлические пластины с заранее просверленными в них в шахматном порядке отверстиями.
Следующий способ, который можно использовать для сращивания стропил, — метод косого прируба. В основном этот метод используют для соединения пиломатериалов квадратного сечения.
Торцы двух брусьев нужно срезать под углом 45 градусов. Длина среза должна быть вдвое больше ширины бруса.
Острые углы на обеих деталях стачивают под углом 90 градусов, глубина полученных площадок должна составлять 15 % от высоты сечения. Аналогично делают площадки на другом конце косого спила.
Соединив оба элемента, закрепляют место соединения болтом, закрутив его в середину стыка. Круглый проем под болт приходится делать заранее.
При этом важно, чтобы диаметр отверстия был равен диаметру крепежа или был немного меньше — тогда не возникнет люфт, а болт будет крепко держаться в стропиле.
Для сращивания ламелей проще всего использовать метод внахлест. Здесь от плотника не потребуется особой точности и мастерства, так как доски соединяют с нахлестом 100 см.
По всей площади нахлеста в хаотичном порядке вбивают гвозди. Вместо гвоздей иногда используют болты и шпильки.
При использовании такого крепежа приходится заранее просверливать в досках отверстия, но применение болтов и шпилек вместо гвоздей увеличивает надежность конструкции.
Сращивая стропила, нельзя забывать о том, что место соединения должно приходиться на наименее нагруженный участок стропильной конструкции.
Сращенные пиломатериалы нельзя использовать для установки в качестве диагональных стропил, так как этому элементу конструкции приходится выдерживать увеличенные нагрузки.
В то же время нельзя не отметить, что прочность ног, сделанных из сращенного пиломатериала, может превосходить прочность цельных досок или брусьев.
Удвоенные и комбинированные стропила
Нужно отличать сращивание от наращивания. Сращивание — это увеличение исходной длины пиломатериала, наращивание — увеличение диаметра.
Существуют способы, позволяющие одновременно увеличивать и длину, и диаметр стропила. К таким конструкциям относятся спаренные и составные стропила.
Удвоенные и комбинированные стропила — это удлиненные балки, выполненные из досок и используемые для определенных целей. Для удлинения в этом случае используют метод внахлест.
Спаренные стропила соединяют из нескольких обрезных досок, сшивая их в диагональном порядке гвоздями.
Для увеличения длины спаренного стропила его соединяют с аналогичной спаренной конструкцией.
Пиломатериалы в узле соединения должны заходить друг на друга с нахлестом не менее 100 сантиметров.
Такое соединение позволяет создать надежную балку из двух рядов досок, соединенных друг с другом с нахлестом.
Соединения должны располагаться по диагонали, чтобы стыки с обратной стороны накладывались на цельные части досок.
Спаренные стропила не уступают в надежности монолитному брусу, что дает возможность собирать из них каркас вальмовых и полувальмовых крыш.
Комбинированные ноги делают из трех досок. В этом случае между двумя обрезными досками равной длины и толщины укладывают третью.
Дополнительная доска входит в стропильный зазор минимум на один метр, но обычно, для большей надежности, ее вводят на треть собственной длины.
В итоге получается стропило, с одной стороны состоящее из двух планок, а с другой стороны — из одной. Все места соединения прошиваются гвоздями в диагональной очередности или скрепляются саморезами.
Просвет между двумя планками заполняют вставками из обрезков лесоматериала и закрепляют гвоздями в произвольном порядке.
Комбинированные стропила устанавливают тонкой стороной на коньковый прогон, а толстой — на опорную балку.
Комбинированные стропила позволяют экономить материал и достигать нужного диаметра в зависимости от нагрузки на стропильную ногу.
Раздвоенная нижняя часть стропильной ноги дает возможность легко соединять стропило с опорной балкой.
Составные стропила — менее прочная конструкция, чем спаренные, их можно использовать только для возведения скатных кровель. Их не используют в каркасах вальмовых крыш.
Если в процессе работы вам понадобилось удлинить или расширить стропила, то не обязательно вызывать специалистов.
Достаточно использовать один из предложенных в статье способов, и в итоге вы получите конструкцию, не уступающую по прочности крыше, стропильная система которой состоит из цельных досок и брусков.
Двускатная крыша: стропильная система под металлочерепицу
- Контакты
-
RUB
- RUB
- USD
- EUR
+7 (968) 996 2745
Вс 11:00—18:00
Корзина (0)
на сумму 0 Р
Меню
Каталог
- Камины
- Готовые камины
- Облицовки
- Каминные облицовки
- Электрические камины
- Биокамины
- Печи
- Печи-камины
- Печи для дома
- Накопительного типа
- С водяным контуром
- Камины печи
- Топки
- Каминные топки
- Дымоходы
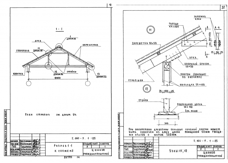
Какой размер должен быть у коньковой балки.
Коньковый прогон как срастить
В основе каждой крыши лежит большое количество балок, стропил, стоек и прогонов, которые все вместе называются стропильной системой. За многовековую историю видов и способов ее организации накопилось немало, и каждая имеет свои особенности в построении узлов и врубок. Подробнее о том, какой может быть стропильная система двухскатной крыши и как при этом должны крепиться стропила и другие элементы системы поговорим подробнее.
Конструкция стропильной системы двускатной крыши
В разрезе двухскатная крыша представляет из себя треугольник. Состоит она из двух прямоугольных наклонных плоскостей. Две эти плоскости соединяются в высшей точке в единую систему коньковым брусом (прогоном).
Теперь о составляющих системы и их назначении:
- Мауэрлат — брус, который связывает крышу и стены здания, служит опорой для стропильных ног и других элементов системы.
- Стропильные ноги — они образуют наклонные плоскости крыши и являются опорой для обрешетки под кровельный материал.

- Коньковый прогон (бус или конек) — объединяет две плоскости крыши.
- Затяжка — поперечная деталь, которая соединяет противоположные стропильные ноги. Служит для увеличения жесткости конструкции и компенсации распирающих нагрузок.
- Лежни — бруски, расположенные вдоль мауэрлата. Перераспределяют нагрузку от кровли.
- Боковые прогоны — поддерживают стропильные ноги.
- Стойки — передают нагрузку от прогонов к лежням.
В системе могут еще присутствовать кобылки. Это доски, которые удлиняют стропильные ноги для образования свеса. Дело в том, что для защиты стен и фундамента дома от осадков желательно чтобы кровля заканчивалась как можно дальше от стен. Для этого можно взять длинные стропильные ноги. Но стандартной длины пиломатериалов в 6 метров для этого часто не хватает. Заказывать нестандарт — очень дорого. Поэтому стропила просто доращивают, а доски, которыми это делают называются «кобылки».
Конструкций стропильных систем довольно много.
В первую очередь их разделяют на две группы — с наслонными и висячими стропилами.
С висячими стропилами
Это системы, у которых стропильные ноги опираются только на наружные стены без промежуточных опор (несущих стен). Для двускатных крыш максимальный пролет составляет 9 метров. При установки вертикальной опоры и системы подкосов увеличить его можно до 14 метров.
Висячий тип стропильной системы двускатной крыши хорош тем, что в большинстве случаев нет необходимости ставить мауэрлат, а это делает установку стропильных ног проще: не нужно делать врубки, достаточно скосить доски. Для связи стен и стропил используется подкладка — широкая доска, которую крепят на шпильки, гвозди, болты, ригеля. При таком строении большая часть распирающих нагрузок компенсирована, воздействие на стены направлено вертикально вниз.
Виды стропильных систем с висячими стропилами для разных пролетов между несущими стенами
Стропильная система двухскатной крыши для небольших домов
Существует дешевый вариант стропильной системы, когда она представляет собой треугольник (фото ниже). Такое строение возможно, если расстояние между наружными стенами не более 6 метров. Для такой стропильной системы можно расчет по углу наклона не делать: конек должен быть поднят над затяжкой на высоту не менее 1/6 длины пролета.
Но при таком построении стропила испытывают значительные изгибающие нагрузки. Для их компенсации или берут стропила большего сечения или врубку коньковой части делают так, чтобы их частично нейтрализовать. Для придания большей жесткости в верхней части с обоих сторон прибивают деревянные или металлические накладки, которые надежно скрепляют вершину треугольника (тоже смотрите не картинке).
На фото также показано, как дорастить стропильные ноги для создания свеса кровли. Делается врубка, которая должна выходить за пределы линии, проведенной от внутренней стены вверх. Это необходимо, чтобы сместить место надреза и уменьшить вероятность надлома стропила.
Коньковый узел и крепление стропильных ног к подкладной доске при простом варианте системы
Для мансардных крыш
Вариант с установкой ригеля — используется при . В этом случае он является основой для подшивки потолка расположенного ниже помещения. Для надежной работы системы такого типа, врубка ригеля должна быть безшарнирной (жесткой). Лучший вариант — полусковороднем (смотрите на рисунке ниже). В противном случае крыша станет неустойчивой к нагрузкам.
Обратите внимание на то, что в этой схеме присутствует мауэрлат, а стропильные ноги для повышения устойчивости конструкции должны выходить за пределы стен. Для их закрепления и стыковки с мауэрлатом делается врубка в виде треугольника. В этом случае при неравномерной нагрузке на скаты, крыша будет более стабильна.
При такой схеме почти вся нагрузка ложится на стропила, потому их необходимо брать большего сечения. Иногда приподнятую затяжку укрепляют подвеской. Это необходимо для предотвращения ее прогиба, если она служит опорой для материалов обшивки потолка. Если затяжка небольшой длины, ее можно подстраховать по центру с двух сторон досками, прибитыми на гвозди. При значительной нагрузке и длине таких страховок может быть несколько. В этом случае тоже достаточно досок и гвоздей.
Для больших домов
При значительном расстоянии между двумя наружными стенами устанавливается бабка и подкосы. Такая конструкция обладает высокой жесткостью, так как нагрузки компенсированы.
При таком длинной пролете (до 14 метров) сделать затяжку цельной сложно и дорого, потому ее делают из двух балок. Соединяется она прямым или косым прирубом (рисунок ниже).
Для надежной стыковки место соединения усиливается стальной пластиной, посаженной на болты. Ее размеры должны быть больше размеров врубки — крайние болты вкручиваются в цельную древесин
Стропильная система вальмовой крыши — особенности конструкции и проведения расчетов
Крыши вальмовой конструкции обретают все большую популярность среди владельцев частных домов. Это – неудивительно, так как подобная схема отличатся целым рядом неоспоримых достоинств эксплуатационного свойства, а кроме того – смотрится очень оригинально, придавая дому особую эстетичность.
Стропильная система вальмовой крышиНекоторых домовладельцев, ведущих самостоятельное строительство, возможно, отпугивает то, что стропильная система вальмовой крыши выглядит слишком сложной. Да, она, безусловно, не столь проста, как односкатная или обычная двускатная щипцовая крыша. Тем не менее, и эта стропильная система вполне подчиняется законам геометрии, и произвести ее предварительный расчет – вполне возможно. Монтаж, конечно же, потребует определённого опыта в плотницкой работе, но с хорошими помощниками, а еще лучше – с квалифицированным консультантом, можно взяться и за это масштабное мероприятие.
В чем достоинства вальмовой крыши?
Согласитесь, что вальмовая крыша смотрится весьма привлекательно. Но эстетичность, которая она придает зданию – это отнюдь не главное достоинств подобной конструкции.
Эстетичность вальмовой крыши, безусловно, важна, но этим не ограничиваются ее достоинства- Полное отсутствие вертикальных плоскостей делает такую крушу малоуязвимой в ветровой нагрузке. Если еще и величина уклона скатов незначительна – параметр ветрового давления на стропильную систему сводился к минимуму.
- «Сглаженность» форм на все четыре стороны делает такую крышу устойчивой вообще ко всем видам атмосферных осадков.
- С точки зрения энергосбережения, вальмовая крыша намного превосходит двухскатную конструкцию.
- Такую крышу значительно легче утеплить, разместив термоизоляционный «пирог» под скатами кровли. У двускатной крыши всегда имеются два проблемных фронтона, требующих особого подхода к утеплению и прекрасно «ловящие ветер».
- Удачное распределение нагрузок, обусловленное особенностью расположения основных, диагональных (угловых) и вальмовых стропил, обеспечивают высокую устойчивость всей системы к деформациям под действием внешнего приложения сил.
- Наконец, вальмовая крыша вполне может послужить и мансардой (при определённых углах уклона, безусловно). В любой их скатов может врезаться мансардное окно.
Недостаток у такой системы – это относительная сложность конструкции. Кроме того, на небольших по размеру зданиях и при малых углах уклона крыши чердачное помещение становится невместительным и малопригодным для полезного использования, особенно если система стропил потребует дополнительного усиления подкосами, стойками и т.п.
Очевидно, что недостатки – достаточно условны, и их вполне можно свести к минимуму. А вот количество достоинств – впечатляет, что и способствует постоянному росту популярности вальмовых крыш.
Основные конструктивные особенности вальмовой крыши
Итак, что собой представляет вальмовая крыша с конструктивной точки зрения.
Это – четырёхскатная конструкция. Два ската, проходящие вдоль длинно стороны здания, имеют форму трапеции, верхняя сторона которой является коньком, а боковые ребра расходятся от него к углам здания. С обеих фронтонных сторон скаты имеют форму равнобедренного треугольника, который своей вершиной упирается в крайнюю точку того же конька.
Так выглядит классическая четырёхскатная вальмовая крышаТеперь, если виртуально аккуратно снять с крыши кровельное покрытие, убрать, чтобы не мешали рассмотрению, стены дома, то откроется примерно такая картина – собственно. Сама деревянная конструкция вальмовой стропильной системы.
Базовая схема вальмовой стропильной системы.Теперь познакомимся с самыми основными конструктивными элементами вальмовой стропильной системы.
Основные элементы стропильной системы вальмовой крыши1 – мауэрлат – мощный деревянный брус, закрепленный по периметру верхнего торца стен дома. Является базовой основой для установки стропильной конструкции.
2 – коньковый брус (прогон). Должен располагаться строго по продольной оси дома, на высоте от уровня перекрытия, зависящей от запланированной крутизны скатов крыши.
3 – центральные основные стропила. Располагаются с расчётом опоры на мауэрлат и на края конькового прогона. Всего таких стропил – 4 штуки, по два на каждый боковой скат.
4 – центральные вальмовые стопила. Расположены строго по оси конька, делят треугольный вальмовый скат ровно пополам. Общее количество – две штуки.
5 – угловые или диагональные стропила (иначе – накосные ноги). Опираются на угол мауэрлата и на оконечность конькового прогона. Самые длинные из всех стропильных ног. Общее количество – 4 штуки. Таким образом, на каждом конце конька сходится по пять стропил – два основных центральных, одно центральное вальмовое и два диагональных (накосных).
6 – промежуточные стропила. Устанавливаются по боковым скатам между центральными стропилами, имеют такой же размер, опираются так же — на мауэрлат и на коньковый прогон. Количество зависит от выбранного шага установки. При маленькой длине конька могут и вовсе отсутствовать.
Конек на этой вальмовой крыше настолько короткий, что необходимости в промежуточных стропилах просто нет7 – укороченные стропила. Устанавливаются по боковым трапециевидным скатам между центральным стропилом и углом крыши. Опираются на мауэрлат и на накосные (диагональные) ноги. Количество зависит от шага установки. Длина деталей меняется – уменьшается по мере приближения к углу системы.
8 – укороченные стропила вальмового ската (нарожники). Расположение, количество и размеры в целом аналогичны с боковыми укороченными стропилами.
Это был показан простейший, базовый вариант стропильной вальмовой конструкции. На практике же, когда крыша возводится над жилым домом, приходится прибегать к усилению, то есть установке дополнительных элементов:
Элементы усиления конструкции вальмовой крыши9 – стойки, подпирающие коньковый прогон. Они могут опираться на лежень, уложенный ровно по центру перекрытия параллельно коньку (например, если снизу имеется капитальная внутренняя стена). Другой вариант – упор стоек в балки перекрытия или в затяжки (ригели) соединяющие пары стропильных ног.
10 – затяжки (ригели), которые одновременно могут выполнять и роль балок перекрытия. Другой вариант – это действительно балки, врезанные в мауэрлат или вмурованные в стены дома. Затяжки могут располагаться и выше, ближе к коньковому прогону. Зачастую в этом случае она становится основой для подшивки потолка чердачного помещения. Затяжки или балки становятся основой не только для стоек, но и для некоторых других усиливающих элементов конструкции.
крепление для стропил
11 – если основные или промежуточные стропила получаются слишком длинными, более 4,5 м, то их необходимо усилить, установив диагональные подкосы, упирающиеся в расположенный снизу прогон или в балки перекрытия (затяжки). Подкосы обычно устанавливаются под углом 45 ÷ 60°, и использование таких промежуточных опор позволяет уменьшить сечение пиломатериалов, идущих на изготовление стропильных ног.
12 – самыми длинными всегда получаются диагональные стропила (накосные ноги). Как правило, они в первую очередь нуждаются в усилении, так как будут служить опорой для целого ряда укороченных стропил (нарожников). Один из вариантов – это установка шпренгеля, как показано на рисунке. Устанавливается угловая шпренгельная балка, которая врезается в мауэрлат, а от нее к накосной ноге идет вертикальная стойка. Другой вариант усиления диагональных стропил – те же подкосы, которые снизу будут опираться на центральный лежень.
13 – ветровая балка, которая наискось прибивается изнутри к стропильным ногам, как правило, с наветренной стороны здания. Практикуется ее использование и с обеих сторон, когда дом возводится в ветреном регионе, а направление ветра – неустойчиво.
14 – для формирование карнизных свесов можно увеличивать длину стропильных ног, так, чтобы они выходили за внешние стены на определенное расстояние. Это, правда, бывает не всегда возможно или оправдано – из-за ограничений по стандартной длине пиломатериалов или из соображений экономичности. Выход – применение удлиняющих стропила деталей, кобылок, которые и сформируют карнизный свес требуемой ширины от уровня стен дома.
Как рассчитываются элементы вальмовой стропильной системы
Итак, впереди самый ответственный этап – провести проектирование будущей вальмовой стропильной конструкции. В этом вопросе следует придерживаться определённой последовательности.
Выбор угла ската кровли и определение высоты конька
Начать следует с выбора оптимального угла ската кровли. В принципе, угол боковых и вальмовых скатов может и различаться, но все же «классический» вариант – это их одинаковый уклон: так и нагрузки распределяются равномерно, и внешне крыша будет смотреться более выигрышно.
Для вальмовых крыш обычно принимают угол уклона от 20 до 45 градусов. В регионах с повышенной снеговой нагрузкой есть смысл сделать скат круче, а там, где превалирует ветровое давление оптимальным будет придание уклона не более 30 градусов. Впрочем, это решение хозяев, так как могут играть роль и планы насчет использования чердачного помещения.
Важным параметром выбора угла ската является и планируемое кровельное покрытие – для различных его типов есть определенные нижние границы крутизны. Ниже расположена схема уклонов крыши (в градусах и в процентах). Схема выполнена с точным соблюдением масштаба, так что при желании можно по ней задать угол и в пропорциональном отношении (отношение высоты подъема к длине основания стропильного треугольника).
саморезы по дереву
Стрелками показаны нижние предельные границы уклона для различных типов кровельного покрытия. Первые три пункта нас в данном случае не интересуют – они относятся к плоским крышам.
| № | Величина уклона | Тип применяемого покрытия (минимальный уровень уклона) |
|---|---|---|
| 4 | ≈ 9° 1:6,6 или 15 % | Рулонные битумные материалы – не менее двух слоев, наклеенных на мастику горячим способом. Допускается использование определенных типов профнастила или металлочерепицы (в соответсвии с параметрами, установленными производителем). |
| 5 | ≈ 10° 1:6 или 17% | Асбестоцементный волновой шифер усиленного профиля. Еврошифер (однулин). |
| 6 | ≈ 11÷12° 1:5 или 20 % | Мягкая битумная черепица |
| 7 | ≈ 14° 1:4 или 25 % | Плоский асбестоцементный шифер усиленного профиля. Профнастил и металлочерепица. |
| 8 | ≈ 16° 1:3,5 или 29 % | Металлическая кровля с фальцевым соединением. |
| 9 | ≈ 18÷19° 1:3 или 33 % | Шифер асбестоцементный волновой обычного профиля |
| 10 | ≈ 26÷27° 1:2 или 50 % | Натуральная керамическая или цементная штучная черепица, композитные полимербетонные, сланцевые плитки. |
| 11 | ≈ 39° 1:1,25 или 80 % | Кровельное покрытие из дранки, щепы, натурального гонта. Камышовая кровля |
Есть еще один нюанс. Вальмовая крыша, как мы видели, предполагает наличие трапециевидных и треугольных скатов. При использовании листового кровельного покрытия неизбежны будут немалые потери материала на раскрое – могут доходить до 30%. Оптимальным видится вариант с мягкой битумной черепицей или с использованием штучных кровельных материалов. Впрочем, опять же, все решает хозяин дома.
После того как угол уклона ската будет выбран, уже несложно определить высоту конька, к которому сойдутся центральные и промежуточные стропила.
Определение высоты конька вальмовой крышиУ нас известна ширина дома D. Конек располагается строго по продольной оси, то есть на расстоянии d = D/2. С углом α также определились. Высота конька, таким образом, определяется следующим соотношением:
h = d × tg α
Чтобы не заставлять читателя тратить время на поиски таблицы тангенсов — ниже размещен калькулятор для проведения расчета высоты конька.
Перейти к расчётам
Длина конькового прогона
Определяем длину и расположение конькового бруса (прогона)Раз предполагается, что угол уклона на боковых и вальмовых скатах будет одинаковым, то и длина центральных стропил также должна совпадать. А это, в свою очередь, означает, что края конькового прогона должны располагаться от торцевых стен дома на таком же расстоянии, как сам прогон от параллельных ему стен.
«Классическое» расположение конькового прогона1 – мауэрлат
2 – коньковый прогон.
3 – центральные боковые стропила
4 – центральное вальмовое стропило, равно по длине центральным боковым.
Значит, длина конькового бруса получается равной длине дома за вычетом 2d, а если упростить, то длина дома минус его ширина D. Располагаться он должен строго по центру, по обеим, продольной и поперечной, осям.
Для изготовления конькового прогона обычно используется такой же материал, что и для центральных стропильных ног. Вертикальные стойки для его установки вырезаются с учетом ширины бруса, чтобы в собранном виде верхний край конька расположился на рассчитанной высоте h.
Коньковый прогон на стойках, усиленных диагональными подкосами.Желательно коньковую раму, опирающуюся на лежень, усилить диагональными подкосами, так, как показано на рисунке.
Длина центральных стропильных ног
Коль известна высота установки конькового прогона и его расстояние от мауэрлата (в горизонтальной проекции), вполне можно сразу рассчитать длину центральных стропил.
Определяем необходимую длину центральных стропилЗдесь – все предельно просто. По двум известным катетам – высоте h и основанию d несложно, применив теорему Пифагора, найти гипотенузу, которая и станет длиной стропильной ноги L от конька до мауэрлата. Воспользуйтесь для этого встроенным калькулятором:
Калькулятор расчета длины гипотенузы (стропильной ноги) по известным катетам
Понятно, что промежуточные стропила, опирающиеся также на коньковый прогон, будут иметь точно такие же размеры.
Подрезка стропильных ног для соединения в коньковой частиДля соединения стропил на коньковом прогоне они могут подрезаться под углом β, который равен:
Β = 90° — α
Стропильные ноги примыкают с обеих сторон к коньковому прогонуСпособ соединения, впрочем, может быть разным, например, внахлест стропильных ног с размещением конькового прогона снизу – это учитывается при расчете размеров и самих стропил, и высоты стоек под коньковый прогон. Исходят из того, что высшую точку конька в таком случае формирует верхнее пересечение стропильных досок.
Крепление стропильных ног над коньковым прогоном.Нижним своим краем стропильные ноги опираются на мауэрлат. Здесь тоже возможны варианты, но рассматривать в данной публикации их не будем, потому что это хорошо изложено в других статьях.
Мауэрлат – надежная основа для стропильной системы
Если на односкатной или щипцовой крыше мауэрлат может крепиться только со стороны скатов кровли, то при вальмовой системе он обязательно представляет собой замкнутую раму. Как устанавливается мауэрлат – в отдельной публикации нашего портала. А еще одна статья посвящена основным правилам крепления стропил на мауэрлате.
Сразу можно определиться насколько необходимо удлинить стропила, если именно они будут формировать карнизный свес. В том случае, когда карниз создается за счет кобылок, полученное значение станет «полезной» из длиной, то есть пригодится в любом случае.
Расчет длины удлинения стропил (рабочей длины кобылок) для формирования карнизного свесаЕсли известна планируемая ширина карнизного свеса k и угол уклона кровли α, то параметр ΔL несложно определить по формуле:
ΔL = k / cos α
Калькулятор расчета удлинения стропил на карнизный свес
Теперь, чтобы узнать общую длину стропильной ноги, останется лишь просуммировать полученные значения L и ΔL.
Это удлинение будет одинаковым для всех стропил и нарожников, за исключением диагональных стропил (накосных ног). Для них в калькуляторе предусмотрен специальный расчет.
Длина диагональных стропил
Эти стропильные ноги – самый длинные, и будут испытывать максимальные нагрузки.
Диагональные стропила или накосные ноги – самые длинные из всехОпределить их длину – сложности не представляет. Можно вновь воспользоваться теоремой Пифагора, то есть прибегнуть к помощи размещенного выше калькулятора. Диагональное стропило является гипотенузой с основанием, равным половине ширины здания d, и с высотой, равной длине центрального вальмового стропила L.
Прямоугольный треугольник с гипотенузой – диагональным стропиломLд = √ (L² + d²)
Несколько отличается, как мы видели из представленного выше калькулятора, и величина удлинения стропила для формирования карнизного свеса.
Шаг установки стропил и их сечение
Линейные размеры центральных, промежуточных и диагональных стропильных ног известны. Теперь следует определиться с сечением доски (бруса) для их изготовления и шагом установки. Это величины – взаимосвязанные, и зависят от предполагаемых нагрузок на конструкцию крыши.
Пришла пора определиться с сечением материала для стропильных ног и с шагом установки промежуточных стропилСуммарная нагрузка, выражаемая в килограммах на квадратный метр, складывается из нескольких величин. Это, прежде всего, вес самой конструкции крыши, с учетом кровельного материала, обрешётки, утеплителя и т.п. К этому добавляются временные нагрузки – давление выпавшего снега и ветровое воздействие. Кроме того, вероятны и нагрузки стихийного характера, трудно поддающиеся прогнозированию – ураганные ветры, сейсмические толчки и другие форсмажорные явления. На этот счет в конструкцию крыши вносится определённый резерв прочности.
Выпадающая на крышу нагрузка распределяется по стропильным ногам. Чем чаще они смонтированы, то есть чем меньше шаг их установки, тем меньше выпадает на каждый погонный метр стропильной ноги, и тем меньше в сечении может быть пиломатериал. Второй параметр, влияющий на сечение материала – это пролет стропильной ноги, то есть расстояние между двумя точками опоры.
Ниже расположена таблица, которая поможет определиться с требуемым сечением бруса для стропильных ног. Как ею пользоваться?
шуруповерт
Исходной величиной является значение распределенной нагрузки на стропильную ногу (при промежуточном значении берется очередное в большую сторону). В этом столбце находят ячейку с длиной пролета стропила. Эта ячейка предопределяет строку, в которой, в правой части таблицы, указаны необходимые сечения бруса для изготовления стропильных ног. Обратите внимание, что при желании можно использовать и кругляк – в таблице указаны значения необходимого диаметра.
| Расчетная величина распределенной нагрузки на 1 погонный метр стропильной ноги, кг/м | Сечение пиломатериала для изготовления стропильных ног | |||||||||||
|---|---|---|---|---|---|---|---|---|---|---|---|---|
| 75 | 100 | 125 | 150 | 175 | из доски (бруса) | из кругляка | ||||||
| толщина доски (бруса), мм | диаметр, мм | |||||||||||
| 40 | 50 | 60 | 70 | 80 | 90 | 100 | ||||||
| Планируемая длина стропил между точками опоры, м | высота доски (бруса), мм | |||||||||||
| 4.5 | 4 | 3.5 | 3 | 2.5 | 180 | 170 | 160 | 150 | 140 | 130 | 120 | 120 |
| 5 | 4.5 | 4 | 3.5 | 3 | 200 | 190 | 180 | 170 | 160 | 150 | 140 | 140 |
| 5.5 | 5 | 4.5 | 4 | 3.5 | — | 210 | 200 | 190 | 180 | 170 | 160 | 160 |
| 6 | 5.5 | 5 | 4.5 | 4 | — | — | 220 | 210 | 200 | 190 | 180 | 180 |
| 6.5 | 6 | 5.5 | 5 | 4.5 | — | — | — | 230 | 220 | 210 | 200 | 200 |
| — | 6.5 | 6 | 5.5 | 5 | — | — | — | — | 240 | 230 | 220 | 220 |
Например, при распределенной нагрузке на стропильную ногу в 150 кг/м и длине пролета 5 метров потребуется брус одного из сечений: 70×230; 80×220; 90×210 или 100×20, или же бревно диаметром 200 мм.
Теперь – как рассчитать распределенную нагрузку на стропила. Для этого есть особый алгоритм, учитывающий основные факторы воздействия на стропильную систему. Не станем в данной публикации приводить весь каскад формул и коэффициентов, а предложим воспользоваться калькулятором, в котором эти физико-математические соотношения уже заложены.
Калькулятор расчета распределенной нагрузки на стропильные ноги
Для расчёта понадобится несколько исходных величин:
- Угол ската кровли – он нам уже известен.
- Планируемый тип кровельного покрытия – от этого зависит постоянная весовая нагрузка на стропильную систему.
- Значение снеговой нагрузки для данного региона – оно заложено в калькулятор в соответствии с зоной, которую можно определить по представленной карте-схеме:
- Уровень ветрового воздействия. Также определяется зоной по карте-схеме, представленной ниже:
- Высота здания в коньке.
- Степень открытости участка ведения строительства. В калькуляторе указаны основные признаки для определения зоны, но следует иметь в виду, что наличие указанных природный или искусственных преград для ветра может учитываться только в том случае, если они находятся не далее, чем на расстоянии 30 × Н, где Н – это высота здания в коньке.
Наконец, шаг установки стропил. Эту величину можно изменять, подбирая оптимальное значение распределенной нагрузки. При этом принято учитывать, что если крыша будет утепляться, шаг установки стропил рекомендуется согласовать с размерами блоков (матов) термоизоляционного материала – так будет проще проводить монтаж и меньше останется отходов.
После того как значение распределенной нагрузки будет получено – можно заходить в размещенную выше таблицу для выбора сечения материала для центральных, промежуточных и диагональных стропильных ног.
Шаг установки и длина укороченных стропил (нарожников)
После установки центральных, диагональных и промежуточных стропил остаются «незаполненными» треугольники, примыкающие к накосным ногам. Они в нашем случае абсолютно равны по размерам. Здесь подразумевается установка укороченных стропил или нарожников.
Расположение укороченных стропил основного ската и нарожников — вальмовогоУкороченные стропила (нарожники) устанавливаются строго параллельно центральным, но крепятся верхним концом уже не на коньковый прогон, а на подкосную ногу. Соответственно, по мере приближения к углу стропильной системы их длина уменьшается.
Шаг установки их может соответствовать шагу промежуточных стропил, но это не является обязательным. Гораздо удобнее разделить длину незаполненного участка мауэрлата на несколько равных участков – так проще будет определиться с длиной заготовок.
Рассмотрим на примере:
Боковая проекция углового участка стропильной вальмовой системы1 – мауэрлат;
2 – коньковый прогон;
3 – центральное и промежуточное стропила;
4 – диагональное стропило;
5 –укороченные стропила.
В данном случае оставшийся участок был разделен на три одинаковых отрезка, то есть предусматривается установка двух укороченных стропил. Длину каждого из них несложно определить, руководствуясь правилом подобия треугольников.
Длина центрального стропила L— известна. Основание второго треугольника ровно на треть меньше базовой длины d, таким образом, и длина первого укороченного стропила L1 будет также на треть короче.
L1 = ⅔ × L
Аналогично — и со вторым стропилом:
L2 = ⅓ × L
Если планируется установка трех стропил, то участок делится на четыре отрезка, четырех – на пять, и т.п.
Обратите внимание: несмотря на то, что треугольники по обе стороны диагонального стропила абсолютно одинаковые, количество укороченных стропил (нарожников) на боковом и вальмовом скате может различаться. Например, как показано на рисунке ниже, с боковых скатов устанавливается по две ноги, а с вальмовых – по три нарожника.
Схема крепления укороченных стропильных ног и нарожников на диагональном стропилеЭто удобно еще и с той точки зрения, что укороченные ноги не пересекаются в одной точке на диагональном стропиле. В противном случае были бы сложности в креплении, да и сама накосная нога не будет ослабляться из-за слишком большого количества крепежных элементов на ограниченном участке.
Обратите внимание еще на один нюанс. Рекомендуется к брусу накосного стропила с обеих сторон закрепить черепные бруски (сечением 50×50 мм). Это дает сразу две выгоды.
- Во-первых, сам профиль накостного стропила приобретает тавровую форму, что способствует увеличению жёсткости конструкции, ее сопротивляемости на изгиб. Для диагональных ног – это особо важно.
- Во-вторых, предельно упрощается прочное крепление укороченных стропил на накосной ноге. Дело в том, что здесь необходима подрезка стропил и по высоте, в соответствии с углом уклона крыши, и по ширине (под углом 45°) – для плотного прилегания к накосной ноге. Сделать это идеально точно без соответствующего опыта – непросто. А при наличии черепного бруска небольшие ошибки нивелируются, так как закрепляемые ноги получают еще и дополнительный упор снизу.
В связи с тем, что длина укороченных стропил последовательно уменьшается, сечение бруса для них может быть, в целях экономии, несколько уменьшено – это несложно рассчитать по тому же алгоритму, что приведен выше. Однако, довольно часто все стропильные ноги, без исключения, выполняют из одного типа материала.
При расчете длины укороченных стропил следует иметь в виду, что если они задействуются для создания карнизного свеса, то величина удлинения (расчет которой приводился выше) у них остаётся точно такой же, как и у центральных и промежуточных стропильных ног.
Материал и размеры дополнительных элементов системы
Выше были рассмотрены основные, определяющие элементы стропильной системы вальмовой крыши. Как уже говорилось, она может дополняться другими деталями, в зависимости от необходимости повышения ее прочности и стабильности, например, если расчетная длина стропил превышает допустимые величины, и приходится прибегать к сращиванию бруса или досок.
Основные усиливающие элементы были упомянуты и показаны на иллюстрациях в начале публикации. Размеры определятся по конкретному месту – здесь никаких точных зависимостей нет – исходят из соображений максимальной прочности конструкции, но безусловно, в рамках разумного, так как перенасыщение ее усилением приводит к избыточному весу всей системы и прямо противоположному эффекту.
Осталось определиться с материалом для их изготовления. Ниже приведена таблица, в которой указаны рекомендуемые пиломатериалы для различных дополнительных деталей системы.
| Основные элементы стропильной системы | Сечение пиломатериала, мм |
|---|---|
| Мауэрлат | Брус 100×100, 100×150, 150×150, а иногда и более. |
| Стропильные ноги | Доска или брус с сечением по результатам указанных выше расчетов нагрузки |
| Прогоны, лежаки, коньковый брус | Брус 100×100, 100×150, 100×200. |
| Затяжки (ригели) | Доска 50×100, 50×150. |
| Стойки, детали шпренгельной опоры | Брус 100×100, 150×150. |
| Подкосы, кобылки | Доска 50×100. |
| Ветровые, торцевые и подшивные доски, ветровая балка | Доска 20×100, 25×150. |
| Обрешетка | Доска 25 ×100, 25×150 мм. Для сплошной обрешетки — фанера или ОСП от 12 до 15 мм |
Шаг обрешетки выбирается в зависимости от типа выбранного кровельного материала и угла наклона скатов. Для мягкой битумной черепицы в любом случае должна быть выполнена сплошная обрешетка из влагостойкой фанеры или ОСП.
Какова будет общая площадь кровельного покрытия?
Осталось разобраться еще с одним вопросом – сколько составит общая площадь крыши. От этого зависит, какое количество кровельного материала, фанеры (ОСП) для сплошной обрешётки, утеплителя, рулонных пленочных и других материалов придется приобретать для завершения строительства крыши.
Схема для расчета площади вальмовой крышиЕще раз вспомним, что вальмовая крыша – это два трапециевидных ската, и два треугольных. Причем и у трапеции, и у треугольника – одинаковая высота, равная:
ΣL = L + ΔL,
то есть расчетная длина стропила плюс удлинение для создания карнизного свеса.
Ширина здания – D. Прибавим к нему с каждой стороны ширину карнизного свеса k, и получим основание вальмового треугольника.
Площадь треугольной вальмы:
sв = ½ × ΣL × (D + 2 k)
Так как вальмовых скатов – два, их суммарная площадь:
Sв = ΣL × (D + 2 k)
У трапециевидного ската высота такая же. Нижнее основание равно длине дома В плюс две ширины карнизного свеса k. Верхнее основание, то есть длина конькового пролета, как мы помним, равно В – (2 × d) = B — D
Вычисляем площадь одной трапеции:
sт = ½ × ΣL × ((В + 2 k) + (В – D))
Для двух скатов получается:
Sт = ΣL × (2 В + 2 k– D)
Осталось только просуммировать и упростить выражение:
ΣS = Sв + Sт = ΣL × (D + 2 k) + ΣL × (2 В + 2 k– D) = ΣL × (2 В + 4 k)
Это – точное значение площади вальмовой крыши с классическими пропорциями заложения конькового прогона.
Для удобства вычислений предлагаем воспользоваться калькулятором – он это выполнит быстро и точно:
Калькулятор расчета площади вальмовой крыши
Перейти к расчётам
Итак, надеемся, что читатель получил достаточно полное представление о стропильной системе вальмовой крыши. Можно самостоятельно провести основные расчеты, чтобы оценить сложность задуманной конструкции и ее материалоемкость. Браться ли за самостоятельное возведение – вопрос спорный, так как без наработанных плотницких навыков в данном случае не обойтись. Надо или быть совершенно уверенным в своих возможностях, или заручится помощью опытных помощников.
В завершение публикации – весьма познавательное видео, которое должно дополнить информацию о конструкции вальмовой стропильной системы:
Видео: полезная информация по стропильной системе вальмовой крыши
Для чего нужен коньковый брус. Как срастить коньковый прогон? Нюансы выбора и укладки прогона
Строительство дома от фундамента до макушки — удивительное событие! Особенно, если какую-то часть работ вы делаете своими руками, живете и дышите будущим гнездом. И вы знаете, что какая бы усталость не накопилась к финишным работам, все равно все нужно делать грамотно и основательно. Особенно, когда дело касается крыши, где любые ошибки чреваты дорогостоящими неприятными ремонтами. А потому, чтобы «зонт» вашего дома мечты служил исправно, правильно выполняйте все конструктивные узлы, особенно сращивание стропил в районе конька — это самая верхняя точка! А мы поможем вам разобраться с видами соединений и важными технологичными нюансами.
Полезная видео-инструкция:
Итак, для начала немного разберемся с понятиями.
Так, прогон – это дополнительная балка, которая ставится параллельно коньку крыши и мауэрлату. Говоря простым языком, этот тот же мауэрлат, только поднятый по уровню. И в итоге конек должен располагаться на определенном расстоянии от прогона – смотря какой угол крыши был выбран.
Конек – это горизонтальный элемент крыши, который соединяет в верхней точке оба ската крыши.
А главная задача соединительных элементов в коньке – создание надежной жесткости и прочности всей конструкции крыши. О чем сейчас и будет идти речь.
Виды сращивания стропил в коньке
Всего есть три способа, как это сделать:
Способ №1. Внахлест
Этот способ отличается от всех предыдущих тем, что здесь стропила соединяются боковыми плоскостями и стягиваются шпилькой или болтом. Достаточно популярная технология на сегодняшний день.
Если дом деревянный, тогда в качестве опора для этого способа подойдет верхнее бревно или брус, а вот на блоки придется положить мауэрлат.
Самое популярное такое крепление — сращивание стропил вполдерева:
Внахлест стропила в коньке чаще всего соединяются при помощи гвоздей. Обычно это крыши беседки, навесов, бани и гаража – здесь нет особых требований к прочности стропильной системы.
Способ №2. Соединение встык
Для этого вам нужно:
- Обрезать под углом край стропила так, чтобы этот угол был равен углу ската крыши.
- Сделать упор стропила.
- Применить крепежный элемент.
Намного легче делать подобные обрезки по шаблону – просто изготовьте его заранее. Так все плоскости будут прилегать друг друга плотно.
Если вы скрепляете стропила гвоздями, берите их не менее двух. Каждый из гвоздей забивайте в верхнюю полость стропил под углом так, чтобы гвоздь шел в срез второго стыкуемого стропила. Дополнительно укрепите сращивание стропил в коньке металлической пластиной либо деревянной накладкой.
Или частично встык:
Суть этой конструкции в том, что кромки двух стропил подогнаны настолько точно, что равномерно распределяют друг с другом возложенную на них нагрузку. Но одним гвоздем это соединение будет мало закрепить – нужны еще металлические или деревянные насадки. Возьмите доску толщиной 30 мм, закрепите ее с одной (лучше двух) сторон узла и прибейте.
Способ №3. Соединение на брус
В это способе мы будем крепить стропила прямо на коньковый брус. Эта конструкция хороша тем, что брусу можно обеспечить центральные подпорки, а каждое стропило можно крепить по отдельности и в удобное время. Такой способ незаменим, если нет времени изготавливать шаблон
Соединение на коньковый брус рекомендовано в тех случаях, если крыша получится достаточно широкой – шире, чем 4,5 метра. Эта конструкция достаточно надежна, но порой требует установки под собой дополнительных опор, из-за чего функциональность чердака снижается в разы. Ведь посреди помещения теперь балки! Для небольших чердачных крыш это, конечно, не беда, а вот в мансарде придется обыгрывать как элемент интерьера. Зато никакого шаблона для этой конструкции не нужно, и небольшие расхождения не страшны.
Вариация:
Можно, конечно, использовать металлическую фиксирующую пластину – но это только соединение, но никак не затяжка. Суть затяжки как раз в том, что она располагается ниже и берет на себя часть нагрузки.
Это – комбинированное сращивание стропил, т.к. выполняется он встык, точно так же, как при упоре на мауэрлат.
Чем сращивать? Выбор крепежных элементов
Стропильные ноги формируют контур крыши и передают точечную нагрузку от крыши на мауэрлат, а мауэрлат в свою очередь равномерно распределяет ее на несущие стены.
Издавна для крепления стропил использовались такие элементы:
- Накладки.
- Бруски.
- Деревянные штыри.
- Клинья.
- Нагели.
- Металлические скобы.
А вот современный рынок предлагает более функциональные крепления, которые позволяют сращивать стропила в области конька намного проще и надежнее. Под любым углом получается нужная жесткость и прочн
C Purlins Размеры | Компоненты вторичной конструкционной стали
НАИМЕНОВАНИЕ
ГЛУБИНА
ШИРИНА
ТОЛЩ.
LIP
RAD
ПЛОЩАДЬ
WT.
LXX
SXX
RXX
LYY
SYY
RYY
J
CW
RO
XO
IN
IN
IN
IN
IN
IN
IN
IN
IN
IN
IN
IN
IN
IN
IN
IN
IBS / FTIN4
IN3
IN
IN4
IN3
IN
IN4
IN6
IN
IN
4C16
4
2.5
.06
.81
.1875
.6
2,04
1,59
.795
1,628
0,543
0,353
0,957
0,00070
2,4
2,94
-2,25
4c14
4
2,5
.075
.84
.1875
.75
2,55
1,964
.982
1,618
0,685
0.447
0,955
0,00141
3,09
2,94
-2,26
6C16
6
2,5
0,06
0,81
0,1875
0,72
2,45
4,055
1,352
2,45
4,055
1,352
0,636
0,375
0,94
0,00086
5,28
3,23
-1,98
6C14
6
2,5
0,075
0.84
0,1875
0,9
3,06
5,031
1,677
2,364
0,793
0,471
0,939
0,00169
6,65
3,23
-1,98
6C12
6
0,105
0,92
0,1875
1,26
4,29
6,936
2,312
2,346
1,104
0,663
0.936
0,00463
4,49
3,22
-2
8C16
8
2,5
0,06
0,87
0,1875
0,847
2,88
8,035
2,009
3,021
8,035
2,009
3,021 900
0,403
0,922
0,00102
10,12
3,69
-1,8
8C14
8
2,5
0,075
0,91
0.1875
1,059
3,60
9,99
2,498
3,071
0,9
0,505
0,921
0,00199
12,72
3,68
-1,81
8C12
8
0,95 900,10
0,98
0,1875
1,483
5,05
13,833
3,458
3,054
1,253
0,711
0,919
0.00545
17,99
3,67
-1,82
10C16
10
3
0,06
0,87
0,1875
1,028
3,50
15,158
3,032
3,841
1,149339 0,53
1,078
0,00123
24,86
4,48
-2,04
10C14
10
3
0,075
0,91
0,1875
1.284
4,37
18,874
3,775
3,833
1,49
0,678
1,077
0,00241
31,22
4,48
-2,04
10C12
10
3
0,108 900
0,1875
1,798
6,12
26,213
5,243
3,818
2,083
0,955
1,076
0,00661
44.1
4,47
-2,06
12C14
12
3
0,075
0,91
0,1875
1,434
4,88
29,15
4,858
4,508
1,569
0,688
1,569
0,688
0,00269
46,6
5
-1,88
12C12
12
3
0,105
0,98
0,1875
2,008
6.83
40,554
6,759
4,494
2,193
0,971
1,045
0,00738
65,68
4,99
-1,9
14C14
14
3
0,075
.91
.1875
1,584
5,39
41,042
5,673
14C12
14
3
.105
.98
.1875
2,218
7.55
58,913
8,416
Указанная толщина представляет собой расчетную толщину. Минимальная поставляемая толщина стали без покрытия составляет 0,095 x расчетная толщина в соответствии с разделом A3.4 Спецификаций AISI минимальной толщины стали в дюймах.
Z Purlins Размеры | Компоненты из вторичной конструкционной стали
НАИМЕНОВАНИЕ
ГЛУБИНА
WTp
wbt
thk
кромка
рад
град
площадь
wt
000000000000000 s0003 9xx2000000 iyct
iycb
syy
Ryy
IN
IN
IN
IN
IN
IN2
DEG
IN2
IBS / FT
IN
3 IN4
IN3
IN
IN4
IN4
IN3
IN
4Z16
4
2.5
2,5
0,06
0,69
0,1875
50
0,6
2,04
2
1,620
0,810
0,810
1,653
0,577
0,577
0,396
1,395
0,577
0,396
1,395
4Z14
4
2,5
2,5
0,075
0,72
0,1875
50
0,75
2,55
2
2,029
1.014
1,014
1,645
0,736
0,736
0,503
1,401
6Z16
6
2,5
2,5
0,06
0,94
0,188
50
0,72
2,945
3
4,035
1,345
1,345
2,367
0,563
0,563
0,4
1,25
6C14
6
2.5
2,5
0,075
0,97
0,188
50
0,9
3,06
3
5,011
1,67
1,67
2,36
0,709
0,709
0,5
1,255
6Z12
6
2,5
2,5
0,105
0,77
0,188
50
1,26
4,29
3
7,108
2.369
2,369
2,375
1,047
1,047
0,71
1,289
8Z16
8
2,5
2,5
0,06
0,76
0,188
50
0,847
2,88
50
0,847
4
8,156
2,039
2,039
3,102
0,616
0,616
0,42
1,206
8Z14
8
2.5
2,5
0,075
0,78
0,188
50
1,059
3,60
4
10,153
2,538
2,538
3,096
0,776
0,776
0,52
1,21 900
8Z12
8
2,5
2,5
0,105
0,83
0,188
50
1,483
5,05
4
14.097
3,524
3,524
3,083
1,103
1,103
0,74
1,22
10Z16
10
3
3
0,06
0,88
0,188
50
1,08
0,188
50
3,50
5
15,225
3,045
3,045
3,849
0,953
0,953
0,56
1,362
10Z14
10
3
3
0.075
0,91
0,188
50
1,284
4,37
5
18,972
3,794
3,794
3,843
1,199
1,199
0,7
1,366
10Z12
3
3
0,105
0,96
0,188
50
1,798
6,12
5
26,387
5,277
5.277
3,831
1,7
1,7
0,99
1,375
12Z14
12
3
3
0,075
0,91
0,188
50
1,434
4,88
6
29,266
4,878
4,878
4,517
1,199
1,199
0,7
1,293
12Z12
12
3
3
0.105
0,96
0,188
50
2,008
6,83
6
40,765
6,794
6,794
4,506
1,7
1,7
0,99
1,301
14Z14
3
3
0,075
0,91
0,1875
50
1,584
5,39
7
42,43
6,061
14Z12
14
3
3
0.105
0,96
0,1875
50
2,218
7,55
7
59,159
8,451
Указанная толщина представляет собой расчетную толщину. Минимальная поставляемая толщина стали без покрытия составляет 0,095 x расчетная толщина в соответствии с разделом A3.4 Спецификаций AISI минимальной толщины стали в дюймах.
Страница не найдена | Stramit
Stramit-logo-with-copy Наш ответ на COVID-19
Я…
- ДомовладелецЖилой застройщикКоммерческий застройщикРасселлерСпецификатор
- Хозяин дома
- Жилой Строитель
- Коммерческий строитель
- Реселлер
- Спецификатор
Поиск
поиск внутри окна
Stramit-Logo- О СТРАМИТЕ
- ОБЕЩАНИЕ ОБСЛУЖИВАНИЯ
- ТОВАРЫ
- НОВОСТИ
- РЕСУРСЫ
- FAQS
- КАРЬЕРА
- СВЯЖИТЕСЬ С НАМИ
Цель и ценности
Наша история
Здоровье и безопасность
Разработка продукта
Консультанты по техническим услугам
Устойчивость
Сообщество
Флетчер-билдинг
Наши бренды
Отраслевое партнерство
Котировки и сроки выполнения
Кровля и облицовка стен
Дождевая вода
Purlins и структурные
Опалубка и полы
Огнестойкая стена
Акустические листы
Рулонные и секционные ворота
Навесы
Домашние улучшения
Отделки
Пользовательские цвета
Загрузки продуктов
Консультанты по техническим услугам
Руководство по продуктам и услугам
Брошюры по ассортименту продукции
Приложения и ПО для дизайна
Формы заказа
Контрольный список условий сайта
Совет по загрузке
Требования к доставке
Оценка взлета шатровой крыши
Условия продажи
Гарантии
Воспламеняемость
Книга ответов Stramit ™
Общие вопросы
Stramit Locations
Найти реселлеров
FAQs
Котировки и сроки выполнения
Открой счет
О СТРАМИТЕПосещение
Цель и ценности
Наша история
Здоровье и безопасность
Разработка продукта
Консультанты по техническим услугам
Устойчивость
Сообщество
Флетчер-билдинг
Наши бренды
Отраслевое партнерство
ОБСЛУЖИВАНИЕ УСЛУГ
Котировки и сроки выполнения
ПРОДУКТЫVisit
Кровля и облицовка стен
Дождевая вода
Purlins и структурные
Опалубка и полы
Огнестойкая стена
Акустические листы
Рулонные и секционные ворота
Навесы
Домашние улучшения
Отделки
Пользовательские цвета
НОВОСТИПосещение
Включение на рабочее место становится реальностью в Stramit
Stramit готов к изменениям в НКЦ
Мы с гордостью поддерживаем местные футбольные таланты штата Вашингтон
Stramit исполняется 30 лет
Изменения в профилированном баржевом желобе Stramit
Руководство по продуктам и услугам Stramit 2020 уже доступно
Даты и вехи праздников Stramit 2020
Новый склад Bapcor обретает форму
Прекращение производства аксессуаров 45 градусов с 30 октября 2020 г.
Stramit запускает новое приложение для прошивки
Stramit помогает доставить терминал первого мегакруизного лайнера в Квинсленде
Представляем книгу ответов Stramit ™
Ответ Stramit на COVID-19
НОВЫЕ двери Taurean PA теперь доступны по всей стране
Празднование 50-летия работы с Milton of Taurean Door Systems
Победитель розыгрыша призов Национальной конференции IHG
Знай, когда мы приедем
Мужской сарай выходит в Интернет
Профили Stramit Astragal изменены с 30 марта 2020 г.
Давайте работать вместе, чтобы помогать другим
Выделитесь с помощью архитектурной облицовки Stramit Sharpline ™
Изменения в гофрированных окантовках Stramit
Страмит гордится тем, что поддерживает нуждающихся викторианцев
Рождественские даты закрытия в 2019 году
Победитель розыгрыша призов Big VIC Trade Expo 2019
Новая серия веб-семинаров Stramit стартует в сентябре этого года
Клиент Stramit стал победителем
Stramit поддерживает программы профессионального обучения
Новости клиентов: изменения в NCC
Готовимся к жизни на море
Завод Asahi Beverages запущен и работает
Ансетт-билдинг получает новую жизнь
Stramit запускает CapacityPLUS ™ 660 в Новом Южном Уэльсе
Собор Брисбена, внесенный в список культурного наследия, восстановлен на месте бывшего собора, внесенного в список славы, восстановлен до
Отмеченная наградами конюшня демонстрирует стальную форму и элегантность
Stramit Longspan® играет ключевую роль в реконструкции мемориального бассейна Тобрук
Стрэмитские прогоны создают эффект спирали в новом научном здании
Стальные строительные изделия Stramit оживляют дом престарелых
Стальные строительные изделия Stramit воплощают в жизнь дизайн дома мечты
РЕСУРСЫ
Загрузки продуктов
Консультанты по техническим услугам
Руководство по продуктам и услугам
Брошюры по ассортименту продукции
Приложения и ПО для дизайна
Формы заказа
Контрольный список условий сайта
Совет по загрузке
Требования к доставке
Оценка взлета шатровой крыши Z Секция Purlins Технические детали
- Отдел обработки металлов давлением
- voestalpine AG
- Дом
- Продукты
- Purlins и боковые перила
- Purlins Roof Systems
- Система обрешетки стыковой
- Балки карнизы
- Система Purlin для тяжелых концов отсека
- Контрольный список требований к распоркам крыши
- Варианты крыши
- Система прогонов с рукавами
- Боковые поручни
- Система боковых направляющих стыковой
- Боковая направляющая с рукавами
- Варианты облицовки
- Мезонин Этажей
- Вставная система
- Система выносного паруса
- Какая система антресольного этажа мне нужна?
- Загрузки
- Служба поддержки клиентов
- Программное обеспечение
- Запрос литературы
- Обучение
- Технические характеристики
- Компоненты и аксессуары
- Детали конструкции
- Таблицы нагрузки
- Стальной каркас
- Каркас SFS
- Какая система стального каркаса мне нужна?
- Растворы для заполнения
- Грузоподъемные решения
- Решения для непрерывных стен
- Решения для ограждений высоких пролетов
- Технические характеристики
- SFS vs.Отчет о блочной работе
- Литература / Загрузки
- Служба поддержки клиентов
- Установщики
- Предварительная панель за пределами площадки
- Метрама
- Metframe 3D Детали
- Литература / Загрузки
- Сухая футеровка
- Уголки и швеллеры
- Потолочные системы
- Система потолка
- Противопожарный уголок и плоская полоса
- Система MF
- Упругий стержень под брус
- Тройник на пружине
- Напольные системы
- Плавающие полы
- Упругий стержень
- Системы перегородок
- Акустический стержень
- Обшивка колонн и балок
- Кожух вала
- Шпилька и направляющая
- Стандарты
- Тестирование
- Системы облицовки стен
- Независимая стенка
- Стеновая подкладка
- Кабельная организация
- Кабельные лестницы
- Таблицы нагрузок
- Лестница из оцинкованной и нержавеющей стали
- Лестница оцинкованная
- Следы продукта
- Стандарты
- Технические характеристики
- Системы кабельных лотков
- Таблицы нагрузок
- Следы продукта
- Ассортимент продукции
- Стандарты
- Технические характеристики
- Системы кабельных каналов
- Раздельные продукты
- Распределительный канал
- IP4X транкинг
- Световод
- Стандарты
- Технические характеристики
- Служба поддержки клиентов
- Металлические каркасные системы
- Каналы
- Таблицы нагрузки
- Служба заводского изготовления
- Ассортимент продукции
- Стандарты
- ресурсов
- Запрос литературы
- Программное обеспечение
- Загрузки
- Профилегибочная машина по индивидуальному заказу
- Дальнейшая обработка
- Дополнительные инженерные процессы
- Манипуляции с профилем
- Линейный пирсинг
- Поточная высокочастотная индукционная сварка
- Процесс разработки
- Возможности
- Техническая экспертиза
- Собственная разработка
- Типичные рынки
- Обеспечение качества
- Служба поддержки клиентов
- Литература / Загрузки
- Примеры из практики
- О нас
- Семинары CPD
- Запрос семинара CPD
- Стальные обрешетки кровли холодной штамповки
- Сертификаты, правила и страхование
- Сертификаты
- Заявление о политике в области качества, здоровья, безопасности и окружающей среды
- Страховые документы
Политика и отчеты компании- Политика ответственных поставщиков и этичной торговли
- Политика борьбы с рабством и торговлей людьми
- Политика конфиденциальности / Уведомления о конфиденциальности
- Политика в отношении файлов cookie
- Отчет о разнице в оплате труда
- Положения и условия
- Налоговая стратегия и соблюдение требований корпоративного налогообложения
- Маркировка CE
- voestalpine Metsec plc Соответствие маркировке CE
- Ответственность заказчика и / или генерального подрядчика
- Обязанности подрядчика по изготовлению стальных конструкций
- Ответственность инженера
- Определение класса исполнения
- Сертификат CE Marking Certification
- Декларации эффективности
- Компания
- Стажировка
- Здоровье и безопасность
- История
- Работа и карьера
- MetWALL Perform Warranty
- Руководство по транспортным решениям
- Устойчивое развитие
- Политика в области окружающей среды и устойчивого развития
- Воздействие стали на окружающую среду
- Использование энергии и выбросы Co2
- Обучение и развитие
- Минимизация отходов
- Расход воды
- Работа с местным сообществом
- Загрузки
- BIM
- BIM за 2 минуты
- Чем может помочь BIM?
- Чем может помочь Metsec?
- Примеры использования BIM
- Загрузки BIM
- Видео
- Новости
- Блог
- Примеры из практики
- Свяжитесь с нами
- Заказать живую встречу
C Purlins Технические детали | Metsec
- Отдел обработки металлов давлением
- voestalpine AG
- Дом
- Продукты
- Purlins и боковые перила
- Purlins Roof Systems
- Система обрешетки стыковой
- Балки карнизы
- Система Purlin для тяжелых концов отсека
- Контрольный список требований к распоркам крыши
- Варианты крыши
- Система прогонов с рукавами
- Боковые поручни
- Система боковых направляющих стыковой
- Боковая направляющая с рукавами
- Варианты облицовки
- Мезонин Этажей
- Вставная система
- Система выносного паруса
- Какая система антресольного этажа мне нужна?
- Загрузки
- Служба поддержки клиентов
- Программное обеспечение
- Запрос литературы
- Обучение
- Технические характеристики
- Компоненты и аксессуары
- Детали конструкции
- Таблицы нагрузки
- Стальной каркас
- Каркас SFS
- Какая система стального каркаса мне нужна?
- Растворы для заполнения
- Грузоподъемные решения
- Решения для непрерывных стен
- Решения для ограждений высоких пролетов
- Технические характеристики
- SFS vs.Отчет о блочной работе
- Литература / Загрузки
- Служба поддержки клиентов
- Установщики
- Предварительная панель за пределами площадки
- Метрама
- Metframe 3D Детали
- Литература / Загрузки
- Сухая футеровка
- Уголки и швеллеры
- Потолочные системы
- Система потолка
- Противопожарный уголок и плоская полоса
- Система MF
- Упругий стержень под брус
- Тройник на пружине
- Напольные системы
- Плавающие полы
- Упругий стержень
- Системы перегородок
- Акустический стержень
- Обшивка колонн и балок
- Кожух вала
- Шпилька и направляющая
- Стандарты
- Тестирование
- Системы облицовки стен
- Независимая стенка
- Стеновая подкладка
- Кабельная организация
- Кабельные лестницы
- Таблицы нагрузок
- Лестница из оцинкованной и нержавеющей стали
- Лестница оцинкованная
- Следы продукта
- Стандарты
- Технические характеристики
- Системы кабельных лотков
- Таблицы нагрузок
- Следы продукта
- Ассортимент продукции
- Стандарты
- Технические характеристики
- Системы кабельных каналов
- Раздельные продукты
- Распределительный канал
- IP4X транкинг
- Световод
- Стандарты
- Технические характеристики
- Служба поддержки клиентов
- Металлические каркасные системы
- Каналы
- Таблицы нагрузки
- Служба заводского изготовления
- Ассортимент продукции
- Стандарты
- ресурсов
- Запрос литературы
- Программное обеспечение
- Загрузки
- Профилегибочная машина по индивидуальному заказу
- Дальнейшая обработка
- Дополнительные инженерные процессы
- Манипуляции с профилем
- Линейный пирсинг
- Поточная высокочастотная индукционная сварка
- Процесс разработки
- Возможности
- Техническая экспертиза
- Собственная разработка
- Типичные рынки
- Обеспечение качества
- Служба поддержки клиентов
- Литература / Загрузки
- Примеры из практики
- О нас
- Семинары CPD
- Запрос семинара CPD
- Стальные обрешетки кровли холодной штамповки
- Сертификаты, правила и страхование
- Сертификаты
- Заявление о политике в области качества, здоровья, безопасности и окружающей среды
- Страховые документы
Политика и отчеты компании- Политика ответственных поставщиков и этичной торговли
- Политика борьбы с рабством и торговлей людьми
- Политика конфиденциальности / Уведомления о конфиденциальности
- Политика в отношении файлов cookie
- Отчет о разнице в оплате труда
- Положения и условия
- Налоговая стратегия и соблюдение требований корпоративного налогообложения
- Маркировка CE
- voestalpine Metsec plc Соответствие маркировке CE
- Ответственность заказчика и / или генерального подрядчика
- Обязанности подрядчика по изготовлению стальных конструкций
- Ответственность инженера
- Определение класса исполнения
- Сертификат CE Marking Certification
- Декларации эффективности
- Компания
- Стажировка
- Здоровье и безопасность
- История
- Работа и карьера
- MetWALL Perform Warranty
- Руководство по транспортным решениям
- Устойчивое развитие
- Политика в области окружающей среды и устойчивого развития
- Воздействие стали на окружающую среду
- Использование энергии и выбросы Co2
- Обучение и развитие
- Минимизация отходов
- Расход воды
- Работа с местным сообществом
- Загрузки
- BIM
- BIM за 2 минуты
- Чем может помочь BIM?
- Чем может помочь Metsec?
- Примеры использования BIM
- Загрузки BIM
- Видео
- Новости
- Блог
- Примеры из практики
- Свяжитесь с нами
- Заказать живую встречу
DHS Purlins — Стальные Purlins & Girts NZ
Специальная конструкция
Основа проектирования
Dimond Structural DHS Purlin Systems были разработаны в соответствии с AS / NZS 4600: 1996 на основе физических испытаний и анализа, проведенных Университетом Сидни, которые известны своим опытом в области проектирования холодных форм.Структурный анализ состоял из нескольких модулей, включая анализ поперечного сечения, модуль проектирования AS / NZS 4600: 1996, анализ конструкции в плоскости и анализ бокового продольного изгиба методом конечных элементов.
Методы в AS / NZS 4600: 1996 для определения чистого сдвига, комбинированного изгиба / сдвига, бокового продольного изгиба и деформационного продольного изгиба в некоторых случаях привели к более низким нагрузкам на прогоны, чем опубликовано ранее. Они включены в таблицы параметров в руководстве по проектированию Purlin.
Соответствующие комбинации расчетных нагрузок для каждого предельного состояния следует определять в соответствии с AS / NZS 1170.Рекомендуется выражать их как равномерно распределенные изгибающие нагрузки (кН / м), действующие в плоскости, приложенные вокруг главной оси симметрии (XX), и равномерные осевые сжимающие нагрузки (кН), приложенные вокруг оси вращения (ZZ) для прямое сравнение с табличными данными в этом руководстве.
Собственный вес систем DHS Purlin Systems не включен ни в какие таблицы нагрузок и должен быть рассчитан как часть общей статической нагрузки строительных элементов, поддерживаемых прогонами.
Рекомендации по проектированию системы DHS Purlin
Данные, представленные в этом руководстве, предназначены для инженеров-строителей.Ситуации нагрузки, отличные от равномерно распределенных и осевых нагрузок, требуют специальной конструкции.
Расчетная мощность системы прогонов DHS в значительной степени зависит от степени ограничения, обеспечиваемой секцией прогонов. Данные, представленные в таблицах 2.3.4 диапазона нагрузки системы Purlin DHS Руководства по проектированию Purlin, предполагают, что распорки предотвращают как боковое перемещение, так и поворот секции в этой точке.
Расчетные мощности в формате предельного состояния были получены путем применения коэффициента мощности 𝜙:
Изгиб 𝜙 b = 0.90
Сжатие 𝜙 c = 0,85
Расчетный предел текучести 500 МПа был использован для прогонов и балок DHS. Это соответствует минимальному указанному пределу текучести для материала G500 и меньше постоянного минимального предела текучести материала G450, используемого при производстве.
Таблицы в руководстве по проектированию прогонов предназначены для использования там, где кровля или облицовка прикреплены к одному прогону DHS или фланцу балки, где предполагается, что привинчиваемая облицовка значительно предотвращает боковое перемещение фланца, к которому она прикреплена.Если это предположение не выполняется, рекомендуется указывать необходимое количество раскосов таким образом, чтобы допустимая нагрузка прогона 𝜙 b W bx была не меньше, чем допустимая нагрузка для случая с полной фиксацией (FR).
Можно предположить, что нагрузки гравитационного типа действуют перпендикулярно плоскости крыши при уклоне крыши до 10 градусов при условии, что прогоны DHS размещены так, чтобы их фланцы были обращены вверх по склону. Для уклона крыши более 10 градусов следует также учитывать компоненты нагрузки относительно малой оси симметрии (Y-Y).
Направляющая
В качестве ориентира чаще всего используются одинарные пролеты, особенно когда прогоны / фермы устанавливаются между стропилами / колоннами.
На больших пролетах могут возникать прогибы.
Концевые и внутренние сплошные конфигурации могут использоваться там, где требуются более низкие отклонения.
Конфигурации внахлестку концов и внутренние конфигурации более экономичны на больших пролетах прогонов, где требуются лучшая прочность и меньшие прогибы.
Указания по прогибу
В качестве ориентира для допустимых пределов прогиба для удобства эксплуатации системы прогонов DHS, используемой в качестве прогонов или балок, рекомендуются следующие пределы для ветровой и статической нагрузки:
- При отсутствии потолка:
- Прогиб для W s ≯ Span / 150
- Прогиб для G ≯ Span / 300
- Где есть потолок:
- Прогиб для W s ≯ Span / 200
- Прогиб для G ≯ Span / 360 .
Для получения дополнительных указаний по пределам прогиба см. AS / NZS 1170.
Указания по крепежу
Для крыш предполагается, что внеплоскостная составляющая статической нагрузки кровли и прогонов выполняется в натяжение с помощью Fastbrace или Bolted Brace Channel, привязанных к коньку или к балке конька для односкатных крыш. Чтобы минимизировать боковые прогибы элементов прогона, мы рекомендуем максимальное расстояние между линиями связей и / или опорным каркасом, равным 3.5 метров.
Для стен в следующей таблице приведены максимально допустимые высоты стен для систем жесткости конструкции Dimond, где предполагается, что статическая нагрузка облицовки и балок переносится на карнизную балку с помощью Fastbrace или каналов с болтовыми креплениями.
Чтобы свести к минимуму прогибы элемента опоры, мы рекомендуем максимальное расстояние между линиями распорок и / или опорным каркасом 3,5 метра.
Специальная конструкция системы распорок и соединений требуется для высот стен, превышающих указанные пределы, или если распорки рассчитаны на сжимающие нагрузки.
Специальная конструкция
Специальная конструкция согласно AS / NZS 4600 требуется там, где прогоны DHS —
- имеют подвешенные нагрузки (например, воздуховоды и трубопроводы). Подвешенные нагрузки подключаются к стенке прогона DHS или, если это невозможно, к нижнему фланцу прогона DHS в пределах 25 мм от стенки.
000 iyct
iycb
syy
Ryy
IN
IN
IN
IN
IN
IN2
DEG
IN2
IBS / FT
IN
3 IN4
IN3
IN
IN4
IN4
IN3
IN
4Z16
4
2.5
2,5
0,06
0,69
0,1875
50
0,6
2,04
2
1,620
0,810
0,810
1,653
0,577
0,577
0,396
1,395
0,577
0,396
1,395
4Z14
4
2,5
2,5
0,075
0,72
0,1875
50
0,75
2,55
2
2,029
1.014
1,014
1,645
0,736
0,736
0,503
1,401
6Z16
6
2,5
2,5
0,06
0,94
0,188
50
0,72
2,945
3
4,035
1,345
1,345
2,367
0,563
0,563
0,4
1,25
6C14
6
2.5
2,5
0,075
0,97
0,188
50
0,9
3,06
3
5,011
1,67
1,67
2,36
0,709
0,709
0,5
1,255
6Z12
6
2,5
2,5
0,105
0,77
0,188
50
1,26
4,29
3
7,108
2.369
2,369
2,375
1,047
1,047
0,71
1,289
8Z16
8
2,5
2,5
0,06
0,76
0,188
50
0,847
2,88
50
0,847
4
8,156
2,039
2,039
3,102
0,616
0,616
0,42
1,206
8Z14
8
2.5
2,5
0,075
0,78
0,188
50
1,059
3,60
4
10,153
2,538
2,538
3,096
0,776
0,776
0,52
1,21 900
8Z12
8
2,5
2,5
0,105
0,83
0,188
50
1,483
5,05
4
14.097
3,524
3,524
3,083
1,103
1,103
0,74
1,22
10Z16
10
3
3
0,06
0,88
0,188
50
1,08
0,188
50
3,50
5
15,225
3,045
3,045
3,849
0,953
0,953
0,56
1,362
10Z14
10
3
3
0.075
0,91
0,188
50
1,284
4,37
5
18,972
3,794
3,794
3,843
1,199
1,199
0,7
1,366
10Z12
3
3
0,105
0,96
0,188
50
1,798
6,12
5
26,387
5,277
5.277
3,831
1,7
1,7
0,99
1,375
12Z14
12
3
3
0,075
0,91
0,188
50
1,434
4,88
6
29,266
4,878
4,878
4,517
1,199
1,199
0,7
1,293
12Z12
12
3
3
0.105
0,96
0,188
50
2,008
6,83
6
40,765
6,794
6,794
4,506
1,7
1,7
0,99
1,301
14Z14
3
3
0,075
0,91
0,1875
50
1,584
5,39
7
42,43
6,061
14Z12
14
3
3
0.105
0,96
0,1875
50
2,218
7,55
7
59,159
8,451
Указанная толщина представляет собой расчетную толщину. Минимальная поставляемая толщина стали без покрытия составляет 0,095 x расчетная толщина в соответствии с разделом A3.4 Спецификаций AISI минимальной толщины стали в дюймах.
Страница не найдена | Stramit
Stramit-logo-with-copy Наш ответ на COVID-19
Я…
- ДомовладелецЖилой застройщикКоммерческий застройщикРасселлерСпецификатор
- Хозяин дома
- Жилой Строитель
- Коммерческий строитель
- Реселлер
- Спецификатор
Поиск
поиск внутри окна
Stramit-Logo- О СТРАМИТЕ
- ОБЕЩАНИЕ ОБСЛУЖИВАНИЯ
- ТОВАРЫ
- НОВОСТИ
- РЕСУРСЫ
- FAQS
- КАРЬЕРА
- СВЯЖИТЕСЬ С НАМИ
Цель и ценности
Наша история
Здоровье и безопасность
Разработка продукта
Консультанты по техническим услугам
Устойчивость
Сообщество
Флетчер-билдинг
Наши бренды
Отраслевое партнерство
Котировки и сроки выполнения
Кровля и облицовка стен
Дождевая вода
Purlins и структурные
Опалубка и полы
Огнестойкая стена
Акустические листы
Рулонные и секционные ворота
Навесы
Домашние улучшения
Отделки
Пользовательские цвета
Загрузки продуктов
Консультанты по техническим услугам
Руководство по продуктам и услугам
Брошюры по ассортименту продукции
Приложения и ПО для дизайна
Формы заказа
Контрольный список условий сайта
Совет по загрузке
Требования к доставке
Оценка взлета шатровой крыши
Условия продажи
Гарантии
Воспламеняемость
Книга ответов Stramit ™
Общие вопросы
Stramit Locations
Найти реселлеров
FAQs
Котировки и сроки выполнения
Открой счет
О СТРАМИТЕПосещение
Цель и ценности
Наша история
Здоровье и безопасность
Разработка продукта
Консультанты по техническим услугам
Устойчивость
Сообщество
Флетчер-билдинг
Наши бренды
Отраслевое партнерство
ОБСЛУЖИВАНИЕ УСЛУГ
Котировки и сроки выполнения
ПРОДУКТЫVisit
Кровля и облицовка стен
Дождевая вода
Purlins и структурные
Опалубка и полы
Огнестойкая стена
Акустические листы
Рулонные и секционные ворота
Навесы
Домашние улучшения
Отделки
Пользовательские цвета
НОВОСТИПосещение
Включение на рабочее место становится реальностью в Stramit
Stramit готов к изменениям в НКЦ
Мы с гордостью поддерживаем местные футбольные таланты штата Вашингтон
Stramit исполняется 30 лет
Изменения в профилированном баржевом желобе Stramit
Руководство по продуктам и услугам Stramit 2020 уже доступно
Даты и вехи праздников Stramit 2020
Новый склад Bapcor обретает форму
Прекращение производства аксессуаров 45 градусов с 30 октября 2020 г.
Stramit запускает новое приложение для прошивки
Stramit помогает доставить терминал первого мегакруизного лайнера в Квинсленде
Представляем книгу ответов Stramit ™
Ответ Stramit на COVID-19
НОВЫЕ двери Taurean PA теперь доступны по всей стране
Празднование 50-летия работы с Milton of Taurean Door Systems
Победитель розыгрыша призов Национальной конференции IHG
Знай, когда мы приедем
Мужской сарай выходит в Интернет
Профили Stramit Astragal изменены с 30 марта 2020 г.
Давайте работать вместе, чтобы помогать другим
Выделитесь с помощью архитектурной облицовки Stramit Sharpline ™
Изменения в гофрированных окантовках Stramit
Страмит гордится тем, что поддерживает нуждающихся викторианцев
Рождественские даты закрытия в 2019 году
Победитель розыгрыша призов Big VIC Trade Expo 2019
Новая серия веб-семинаров Stramit стартует в сентябре этого года
Клиент Stramit стал победителем
Stramit поддерживает программы профессионального обучения
Новости клиентов: изменения в NCC
Готовимся к жизни на море
Завод Asahi Beverages запущен и работает
Ансетт-билдинг получает новую жизнь
Stramit запускает CapacityPLUS ™ 660 в Новом Южном Уэльсе
Собор Брисбена, внесенный в список культурного наследия, восстановлен на месте бывшего собора, внесенного в список славы, восстановлен до
Отмеченная наградами конюшня демонстрирует стальную форму и элегантность
Stramit Longspan® играет ключевую роль в реконструкции мемориального бассейна Тобрук
Стрэмитские прогоны создают эффект спирали в новом научном здании
Стальные строительные изделия Stramit оживляют дом престарелых
Стальные строительные изделия Stramit воплощают в жизнь дизайн дома мечты
РЕСУРСЫ
Загрузки продуктов
Консультанты по техническим услугам
Руководство по продуктам и услугам
Брошюры по ассортименту продукции
Приложения и ПО для дизайна
Формы заказа
Контрольный список условий сайта
Совет по загрузке
Требования к доставке
Оценка взлета шатровой крыши Z Секция Purlins Технические детали
- Отдел обработки металлов давлением
- voestalpine AG
- Дом
- Продукты
- Purlins и боковые перила
- Purlins Roof Systems
- Система обрешетки стыковой
- Балки карнизы
- Система Purlin для тяжелых концов отсека
- Контрольный список требований к распоркам крыши
- Варианты крыши
- Система прогонов с рукавами
- Боковые поручни
- Система боковых направляющих стыковой
- Боковая направляющая с рукавами
- Варианты облицовки
- Мезонин Этажей
- Вставная система
- Система выносного паруса
- Какая система антресольного этажа мне нужна?
- Загрузки
- Служба поддержки клиентов
- Программное обеспечение
- Запрос литературы
- Обучение
- Технические характеристики
- Компоненты и аксессуары
- Детали конструкции
- Таблицы нагрузки
- Стальной каркас
- Каркас SFS
- Какая система стального каркаса мне нужна?
- Растворы для заполнения
- Грузоподъемные решения
- Решения для непрерывных стен
- Решения для ограждений высоких пролетов
- Технические характеристики
- SFS vs.Отчет о блочной работе
- Литература / Загрузки
- Служба поддержки клиентов
- Установщики
- Предварительная панель за пределами площадки
- Метрама
- Metframe 3D Детали
- Литература / Загрузки
- Сухая футеровка
- Уголки и швеллеры
- Потолочные системы
- Система потолка
- Противопожарный уголок и плоская полоса
- Система MF
- Упругий стержень под брус
- Тройник на пружине
- Напольные системы
- Плавающие полы
- Упругий стержень
- Системы перегородок
- Акустический стержень
- Обшивка колонн и балок
- Кожух вала
- Шпилька и направляющая
- Стандарты
- Тестирование
- Системы облицовки стен
- Независимая стенка
- Стеновая подкладка
- Кабельная организация
- Кабельные лестницы
- Таблицы нагрузок
- Лестница из оцинкованной и нержавеющей стали
- Лестница оцинкованная
- Следы продукта
- Стандарты
- Технические характеристики
- Системы кабельных лотков
- Таблицы нагрузок
- Следы продукта
- Ассортимент продукции
- Стандарты
- Технические характеристики
- Системы кабельных каналов
- Раздельные продукты
- Распределительный канал
- IP4X транкинг
- Световод
- Стандарты
- Технические характеристики
- Служба поддержки клиентов
- Металлические каркасные системы
- Каналы
- Таблицы нагрузки
- Служба заводского изготовления
- Ассортимент продукции
- Стандарты
- ресурсов
- Запрос литературы
- Программное обеспечение
- Загрузки
- Профилегибочная машина по индивидуальному заказу
- Дальнейшая обработка
- Дополнительные инженерные процессы
- Манипуляции с профилем
- Линейный пирсинг
- Поточная высокочастотная индукционная сварка
- Процесс разработки
- Возможности
- Техническая экспертиза
- Собственная разработка
- Типичные рынки
- Обеспечение качества
- Служба поддержки клиентов
- Литература / Загрузки
- Примеры из практики
- О нас
- Семинары CPD
- Запрос семинара CPD
- Стальные обрешетки кровли холодной штамповки
- Сертификаты, правила и страхование
- Сертификаты
- Заявление о политике в области качества, здоровья, безопасности и окружающей среды
- Страховые документы
Политика и отчеты компании- Политика ответственных поставщиков и этичной торговли
- Политика борьбы с рабством и торговлей людьми
- Политика конфиденциальности / Уведомления о конфиденциальности
- Политика в отношении файлов cookie
- Отчет о разнице в оплате труда
- Положения и условия
- Налоговая стратегия и соблюдение требований корпоративного налогообложения
- Маркировка CE
- voestalpine Metsec plc Соответствие маркировке CE
- Ответственность заказчика и / или генерального подрядчика
- Обязанности подрядчика по изготовлению стальных конструкций
- Ответственность инженера
- Определение класса исполнения
- Сертификат CE Marking Certification
- Декларации эффективности
- Компания
- Стажировка
- Здоровье и безопасность
- История
- Работа и карьера
- MetWALL Perform Warranty
- Руководство по транспортным решениям
- Устойчивое развитие
- Политика в области окружающей среды и устойчивого развития
- Воздействие стали на окружающую среду
- Использование энергии и выбросы Co2
- Обучение и развитие
- Минимизация отходов
- Расход воды
- Работа с местным сообществом
- Загрузки
- BIM
- BIM за 2 минуты
- Чем может помочь BIM?
- Чем может помочь Metsec?
- Примеры использования BIM
- Загрузки BIM
- Видео
- Новости
- Блог
- Примеры из практики
- Свяжитесь с нами
- Заказать живую встречу
C Purlins Технические детали | Metsec
- Отдел обработки металлов давлением
- voestalpine AG
- Дом
- Продукты
- Purlins и боковые перила
- Purlins Roof Systems
- Система обрешетки стыковой
- Балки карнизы
- Система Purlin для тяжелых концов отсека
- Контрольный список требований к распоркам крыши
- Варианты крыши
- Система прогонов с рукавами
- Боковые поручни
- Система боковых направляющих стыковой
- Боковая направляющая с рукавами
- Варианты облицовки
- Мезонин Этажей
- Вставная система
- Система выносного паруса
- Какая система антресольного этажа мне нужна?
- Загрузки
- Служба поддержки клиентов
- Программное обеспечение
- Запрос литературы
- Обучение
- Технические характеристики
- Компоненты и аксессуары
- Детали конструкции
- Таблицы нагрузки
- Стальной каркас
- Каркас SFS
- Какая система стального каркаса мне нужна?
- Растворы для заполнения
- Грузоподъемные решения
- Решения для непрерывных стен
- Решения для ограждений высоких пролетов
- Технические характеристики
- SFS vs.Отчет о блочной работе
- Литература / Загрузки
- Служба поддержки клиентов
- Установщики
- Предварительная панель за пределами площадки
- Метрама
- Metframe 3D Детали
- Литература / Загрузки
- Сухая футеровка
- Уголки и швеллеры
- Потолочные системы
- Система потолка
- Противопожарный уголок и плоская полоса
- Система MF
- Упругий стержень под брус
- Тройник на пружине
- Напольные системы
- Плавающие полы
- Упругий стержень
- Системы перегородок
- Акустический стержень
- Обшивка колонн и балок
- Кожух вала
- Шпилька и направляющая
- Стандарты
- Тестирование
- Системы облицовки стен
- Независимая стенка
- Стеновая подкладка
- Кабельная организация
- Кабельные лестницы
- Таблицы нагрузок
- Лестница из оцинкованной и нержавеющей стали
- Лестница оцинкованная
- Следы продукта
- Стандарты
- Технические характеристики
- Системы кабельных лотков
- Таблицы нагрузок
- Следы продукта
- Ассортимент продукции
- Стандарты
- Технические характеристики
- Системы кабельных каналов
- Раздельные продукты
- Распределительный канал
- IP4X транкинг
- Световод
- Стандарты
- Технические характеристики
- Служба поддержки клиентов
- Металлические каркасные системы
- Каналы
- Таблицы нагрузки
- Служба заводского изготовления
- Ассортимент продукции
- Стандарты
- ресурсов
- Запрос литературы
- Программное обеспечение
- Загрузки
- Профилегибочная машина по индивидуальному заказу
- Дальнейшая обработка
- Дополнительные инженерные процессы
- Манипуляции с профилем
- Линейный пирсинг
- Поточная высокочастотная индукционная сварка
- Процесс разработки
- Возможности
- Техническая экспертиза
- Собственная разработка
- Типичные рынки
- Обеспечение качества
- Служба поддержки клиентов
- Литература / Загрузки
- Примеры из практики
- О нас
- Семинары CPD
- Запрос семинара CPD
- Стальные обрешетки кровли холодной штамповки
- Сертификаты, правила и страхование
- Сертификаты
- Заявление о политике в области качества, здоровья, безопасности и окружающей среды
- Страховые документы
Политика и отчеты компании- Политика ответственных поставщиков и этичной торговли
- Политика борьбы с рабством и торговлей людьми
- Политика конфиденциальности / Уведомления о конфиденциальности
- Политика в отношении файлов cookie
- Отчет о разнице в оплате труда
- Положения и условия
- Налоговая стратегия и соблюдение требований корпоративного налогообложения
- Маркировка CE
- voestalpine Metsec plc Соответствие маркировке CE
- Ответственность заказчика и / или генерального подрядчика
- Обязанности подрядчика по изготовлению стальных конструкций
- Ответственность инженера
- Определение класса исполнения
- Сертификат CE Marking Certification
- Декларации эффективности
- Компания
- Стажировка
- Здоровье и безопасность
- История
- Работа и карьера
- MetWALL Perform Warranty
- Руководство по транспортным решениям
- Устойчивое развитие
- Политика в области окружающей среды и устойчивого развития
- Воздействие стали на окружающую среду
- Использование энергии и выбросы Co2
- Обучение и развитие
- Минимизация отходов
- Расход воды
- Работа с местным сообществом
- Загрузки
- BIM
- BIM за 2 минуты
- Чем может помочь BIM?
- Чем может помочь Metsec?
- Примеры использования BIM
- Загрузки BIM
- Видео
- Новости
- Блог
- Примеры из практики
- Свяжитесь с нами
- Заказать живую встречу
DHS Purlins — Стальные Purlins & Girts NZ
Специальная конструкция
Основа проектирования
Dimond Structural DHS Purlin Systems были разработаны в соответствии с AS / NZS 4600: 1996 на основе физических испытаний и анализа, проведенных Университетом Сидни, которые известны своим опытом в области проектирования холодных форм.Структурный анализ состоял из нескольких модулей, включая анализ поперечного сечения, модуль проектирования AS / NZS 4600: 1996, анализ конструкции в плоскости и анализ бокового продольного изгиба методом конечных элементов.
Методы в AS / NZS 4600: 1996 для определения чистого сдвига, комбинированного изгиба / сдвига, бокового продольного изгиба и деформационного продольного изгиба в некоторых случаях привели к более низким нагрузкам на прогоны, чем опубликовано ранее. Они включены в таблицы параметров в руководстве по проектированию Purlin.
Соответствующие комбинации расчетных нагрузок для каждого предельного состояния следует определять в соответствии с AS / NZS 1170.Рекомендуется выражать их как равномерно распределенные изгибающие нагрузки (кН / м), действующие в плоскости, приложенные вокруг главной оси симметрии (XX), и равномерные осевые сжимающие нагрузки (кН), приложенные вокруг оси вращения (ZZ) для прямое сравнение с табличными данными в этом руководстве.
Собственный вес систем DHS Purlin Systems не включен ни в какие таблицы нагрузок и должен быть рассчитан как часть общей статической нагрузки строительных элементов, поддерживаемых прогонами.
Рекомендации по проектированию системы DHS Purlin
Данные, представленные в этом руководстве, предназначены для инженеров-строителей.Ситуации нагрузки, отличные от равномерно распределенных и осевых нагрузок, требуют специальной конструкции.
Расчетная мощность системы прогонов DHS в значительной степени зависит от степени ограничения, обеспечиваемой секцией прогонов. Данные, представленные в таблицах 2.3.4 диапазона нагрузки системы Purlin DHS Руководства по проектированию Purlin, предполагают, что распорки предотвращают как боковое перемещение, так и поворот секции в этой точке.
Расчетные мощности в формате предельного состояния были получены путем применения коэффициента мощности 𝜙:
Изгиб 𝜙 b = 0.90
Сжатие 𝜙 c = 0,85
Расчетный предел текучести 500 МПа был использован для прогонов и балок DHS. Это соответствует минимальному указанному пределу текучести для материала G500 и меньше постоянного минимального предела текучести материала G450, используемого при производстве.
Таблицы в руководстве по проектированию прогонов предназначены для использования там, где кровля или облицовка прикреплены к одному прогону DHS или фланцу балки, где предполагается, что привинчиваемая облицовка значительно предотвращает боковое перемещение фланца, к которому она прикреплена.Если это предположение не выполняется, рекомендуется указывать необходимое количество раскосов таким образом, чтобы допустимая нагрузка прогона 𝜙 b W bx была не меньше, чем допустимая нагрузка для случая с полной фиксацией (FR).
Можно предположить, что нагрузки гравитационного типа действуют перпендикулярно плоскости крыши при уклоне крыши до 10 градусов при условии, что прогоны DHS размещены так, чтобы их фланцы были обращены вверх по склону. Для уклона крыши более 10 градусов следует также учитывать компоненты нагрузки относительно малой оси симметрии (Y-Y).
Направляющая
В качестве ориентира чаще всего используются одинарные пролеты, особенно когда прогоны / фермы устанавливаются между стропилами / колоннами.
На больших пролетах могут возникать прогибы.
Концевые и внутренние сплошные конфигурации могут использоваться там, где требуются более низкие отклонения.
Конфигурации внахлестку концов и внутренние конфигурации более экономичны на больших пролетах прогонов, где требуются лучшая прочность и меньшие прогибы.
Указания по прогибу
В качестве ориентира для допустимых пределов прогиба для удобства эксплуатации системы прогонов DHS, используемой в качестве прогонов или балок, рекомендуются следующие пределы для ветровой и статической нагрузки:
- При отсутствии потолка:
- Прогиб для W s ≯ Span / 150
- Прогиб для G ≯ Span / 300
- Где есть потолок:
- Прогиб для W s ≯ Span / 200
- Прогиб для G ≯ Span / 360 .
Для получения дополнительных указаний по пределам прогиба см. AS / NZS 1170.
Указания по крепежу
Для крыш предполагается, что внеплоскостная составляющая статической нагрузки кровли и прогонов выполняется в натяжение с помощью Fastbrace или Bolted Brace Channel, привязанных к коньку или к балке конька для односкатных крыш. Чтобы минимизировать боковые прогибы элементов прогона, мы рекомендуем максимальное расстояние между линиями связей и / или опорным каркасом, равным 3.5 метров.
Для стен в следующей таблице приведены максимально допустимые высоты стен для систем жесткости конструкции Dimond, где предполагается, что статическая нагрузка облицовки и балок переносится на карнизную балку с помощью Fastbrace или каналов с болтовыми креплениями.
Чтобы свести к минимуму прогибы элемента опоры, мы рекомендуем максимальное расстояние между линиями распорок и / или опорным каркасом 3,5 метра.
Специальная конструкция системы распорок и соединений требуется для высот стен, превышающих указанные пределы, или если распорки рассчитаны на сжимающие нагрузки.
Специальная конструкция
Специальная конструкция согласно AS / NZS 4600 требуется там, где прогоны DHS —
- имеют подвешенные нагрузки (например, воздуховоды и трубопроводы). Подвешенные нагрузки подключаются к стенке прогона DHS или, если это невозможно, к нижнему фланцу прогона DHS в пределах 25 мм от стенки.
Я…
- Purlins и боковые перила
- Purlins Roof Systems
- Система обрешетки стыковой
- Балки карнизы
- Система Purlin для тяжелых концов отсека
- Контрольный список требований к распоркам крыши
- Варианты крыши
- Система прогонов с рукавами
- Боковые поручни
- Система боковых направляющих стыковой
- Боковая направляющая с рукавами
- Варианты облицовки
- Мезонин Этажей
- Вставная система
- Система выносного паруса
- Какая система антресольного этажа мне нужна?
- Загрузки
- Служба поддержки клиентов
- Программное обеспечение
- Запрос литературы
- Обучение
- Технические характеристики
- Компоненты и аксессуары
- Детали конструкции
- Таблицы нагрузки
- Purlins Roof Systems
- Стальной каркас
- Каркас SFS
- Какая система стального каркаса мне нужна?
- Растворы для заполнения
- Грузоподъемные решения
- Решения для непрерывных стен
- Решения для ограждений высоких пролетов
- Технические характеристики
- SFS vs.Отчет о блочной работе
- Литература / Загрузки
- Служба поддержки клиентов
- Установщики
- Каркас SFS
- Предварительная панель за пределами площадки
- Метрама
- Metframe 3D Детали
- Литература / Загрузки
- Сухая футеровка
- Уголки и швеллеры
- Потолочные системы
- Система потолка
- Противопожарный уголок и плоская полоса
- Система MF
- Упругий стержень под брус
- Тройник на пружине
- Напольные системы
- Плавающие полы
- Упругий стержень
- Системы перегородок
- Акустический стержень
- Обшивка колонн и балок
- Кожух вала
- Шпилька и направляющая
- Стандарты
- Тестирование
- Системы облицовки стен
- Независимая стенка
- Стеновая подкладка
- Кабельная организация
- Кабельные лестницы
- Таблицы нагрузок
- Лестница из оцинкованной и нержавеющей стали
- Лестница оцинкованная
- Следы продукта
- Стандарты
- Технические характеристики
- Системы кабельных лотков
- Таблицы нагрузок
- Следы продукта
- Ассортимент продукции
- Стандарты
- Технические характеристики
- Системы кабельных каналов
- Раздельные продукты
- Распределительный канал
- IP4X транкинг
- Световод
- Стандарты
- Технические характеристики
- Служба поддержки клиентов
- Металлические каркасные системы
- Каналы
- Таблицы нагрузки
- Служба заводского изготовления
- Ассортимент продукции
- Стандарты
- ресурсов
- Запрос литературы
- Программное обеспечение
- Загрузки
- Кабельные лестницы
- Профилегибочная машина по индивидуальному заказу
- Дальнейшая обработка
- Дополнительные инженерные процессы
- Манипуляции с профилем
- Линейный пирсинг
- Поточная высокочастотная индукционная сварка
- Процесс разработки
- Возможности
- Техническая экспертиза
- Собственная разработка
- Типичные рынки
- Обеспечение качества
- Служба поддержки клиентов
- Литература / Загрузки
- Примеры из практики
- Дальнейшая обработка
- Семинары CPD
- Запрос семинара CPD
- Стальные обрешетки кровли холодной штамповки
- Сертификаты, правила и страхование
- Сертификаты
- Заявление о политике в области качества, здоровья, безопасности и окружающей среды
- Страховые документы
Политика и отчеты компании - Политика ответственных поставщиков и этичной торговли
- Политика борьбы с рабством и торговлей людьми
- Политика конфиденциальности / Уведомления о конфиденциальности
- Политика в отношении файлов cookie
- Отчет о разнице в оплате труда
- Положения и условия
- Налоговая стратегия и соблюдение требований корпоративного налогообложения
- Маркировка CE
- voestalpine Metsec plc Соответствие маркировке CE
- Ответственность заказчика и / или генерального подрядчика
- Обязанности подрядчика по изготовлению стальных конструкций
- Ответственность инженера
- Определение класса исполнения
- Сертификат CE Marking Certification
- Декларации эффективности
- Компания
- Стажировка
- Здоровье и безопасность
- История
- Работа и карьера
- MetWALL Perform Warranty
- Руководство по транспортным решениям
- Устойчивое развитие
- Политика в области окружающей среды и устойчивого развития
- Воздействие стали на окружающую среду
- Использование энергии и выбросы Co2
- Обучение и развитие
- Минимизация отходов
- Расход воды
- Работа с местным сообществом
- BIM за 2 минуты
- Чем может помочь BIM?
- Чем может помочь Metsec?
- Примеры использования BIM
- Загрузки BIM
- Блог
- Примеры из практики
- Purlins и боковые перила
- Purlins Roof Systems
- Система обрешетки стыковой
- Балки карнизы
- Система Purlin для тяжелых концов отсека
- Контрольный список требований к распоркам крыши
- Варианты крыши
- Система прогонов с рукавами
- Боковые поручни
- Система боковых направляющих стыковой
- Боковая направляющая с рукавами
- Варианты облицовки
- Мезонин Этажей
- Вставная система
- Система выносного паруса
- Какая система антресольного этажа мне нужна?
- Загрузки
- Служба поддержки клиентов
- Программное обеспечение
- Запрос литературы
- Обучение
- Технические характеристики
- Компоненты и аксессуары
- Детали конструкции
- Таблицы нагрузки
- Purlins Roof Systems
- Стальной каркас
- Каркас SFS
- Какая система стального каркаса мне нужна?
- Растворы для заполнения
- Грузоподъемные решения
- Решения для непрерывных стен
- Решения для ограждений высоких пролетов
- Технические характеристики
- SFS vs.Отчет о блочной работе
- Литература / Загрузки
- Служба поддержки клиентов
- Установщики
- Каркас SFS
- Предварительная панель за пределами площадки
- Метрама
- Metframe 3D Детали
- Литература / Загрузки
- Сухая футеровка
- Уголки и швеллеры
- Потолочные системы
- Система потолка
- Противопожарный уголок и плоская полоса
- Система MF
- Упругий стержень под брус
- Тройник на пружине
- Напольные системы
- Плавающие полы
- Упругий стержень
- Системы перегородок
- Акустический стержень
- Обшивка колонн и балок
- Кожух вала
- Шпилька и направляющая
- Стандарты
- Тестирование
- Системы облицовки стен
- Независимая стенка
- Стеновая подкладка
- Кабельная организация
- Кабельные лестницы
- Таблицы нагрузок
- Лестница из оцинкованной и нержавеющей стали
- Лестница оцинкованная
- Следы продукта
- Стандарты
- Технические характеристики
- Системы кабельных лотков
- Таблицы нагрузок
- Следы продукта
- Ассортимент продукции
- Стандарты
- Технические характеристики
- Системы кабельных каналов
- Раздельные продукты
- Распределительный канал
- IP4X транкинг
- Световод
- Стандарты
- Технические характеристики
- Служба поддержки клиентов
- Металлические каркасные системы
- Каналы
- Таблицы нагрузки
- Служба заводского изготовления
- Ассортимент продукции
- Стандарты
- ресурсов
- Запрос литературы
- Программное обеспечение
- Загрузки
- Кабельные лестницы
- Профилегибочная машина по индивидуальному заказу
- Дальнейшая обработка
- Дополнительные инженерные процессы
- Манипуляции с профилем
- Линейный пирсинг
- Поточная высокочастотная индукционная сварка
- Процесс разработки
- Возможности
- Техническая экспертиза
- Собственная разработка
- Типичные рынки
- Обеспечение качества
- Служба поддержки клиентов
- Литература / Загрузки
- Примеры из практики
- Дальнейшая обработка
- Семинары CPD
- Запрос семинара CPD
- Стальные обрешетки кровли холодной штамповки
- Сертификаты, правила и страхование
- Сертификаты
- Заявление о политике в области качества, здоровья, безопасности и окружающей среды
- Страховые документы
Политика и отчеты компании - Политика ответственных поставщиков и этичной торговли
- Политика борьбы с рабством и торговлей людьми
- Политика конфиденциальности / Уведомления о конфиденциальности
- Политика в отношении файлов cookie
- Отчет о разнице в оплате труда
- Положения и условия
- Налоговая стратегия и соблюдение требований корпоративного налогообложения
- Маркировка CE
- voestalpine Metsec plc Соответствие маркировке CE
- Ответственность заказчика и / или генерального подрядчика
- Обязанности подрядчика по изготовлению стальных конструкций
- Ответственность инженера
- Определение класса исполнения
- Сертификат CE Marking Certification
- Декларации эффективности
- Компания
- Стажировка
- Здоровье и безопасность
- История
- Работа и карьера
- MetWALL Perform Warranty
- Руководство по транспортным решениям
- Устойчивое развитие
- Политика в области окружающей среды и устойчивого развития
- Воздействие стали на окружающую среду
- Использование энергии и выбросы Co2
- Обучение и развитие
- Минимизация отходов
- Расход воды
- Работа с местным сообществом
- BIM за 2 минуты
- Чем может помочь BIM?
- Чем может помочь Metsec?
- Примеры использования BIM
- Загрузки BIM
- Блог
- Примеры из практики
На больших пролетах могут возникать прогибы.
- Прогиб для W s ≯ Span / 150
- Прогиб для G ≯ Span / 300
- Прогиб для W s ≯ Span / 200
- Прогиб для G ≯ Span / 360 .



Правда под них нужно вначале просверлить сквозное отверстие и только после этого узел можно стянуть при помощи гаек. Для прочности под гайки обязательно подкладываются широкие шайбы, плюс ставится гравер и контргайка;
Жесткие разновидности стыковки не требуют опоры на коньковый прогон, а шарнирное соединение выполняется только в связке с коньковым прогоном.
Подвижный шарнирный узел обычно монтируется на крышах деревянных домов для компенсации деформаций при усадке дома.
Оно представляет собой пластины для фиксации стропил, соединенные металлическим стержнем.
Коньковый прогон как срастить