Армирование лестницы монолитной чертежи: Армирование лестницы монолитной: чертежи
Армирование лестничного марша чертеж
Монолитные лестницы отличаются своей массивностью и долговечностью. Таких свойств лестничного марша удается достигнуть за счет точного расчета и использования специального армированного скелета. Армирование лестницы позволяет увеличить надежность и долговечность конструкции.
Технология и правила армирования
Любое бетонированное сооружение подразумевает выполнение следующих этапов:
- сборку опалубки;
- устройство арматуры;
- заливку бетона.
Бетонная лестница возводится по такой же технологии. Уровень сложности выполнения работ зависит от конструкции сооружения. Сложнее всего специалистам дается возведение опалубки монолитной конструкции. Чтобы создать бетонную конструкцию, которая имеет спиралевидную форму, необходимо использовать криволинейную опалубку. Неправильную форму должны иметь щиты и опоры. Применение сложного арматурного каркаса придает конструкции нужную жесткость.
Существует несколько правил армированияЛестницы, имеющие простую форму, возводятся намного быстрее.
Когда происходит строительство домов, бань, саун и бассейнов, возводят одномаршевые лестницы и используют схему чертежей армирования. Согласно этому плану, арматурный каркас имеется только внизу. Но существуют и другие способы установки каркаса. Распространенным является метод, при котором закладывание стальной сетки производится во всей части конструкции. В таких случаях используют сетку с ячейками, имеющими размер 100×100×5. Ее использование защищает ступени от сколов во время возникновения сильных механических усилий от ударов.
При возведении двухмаршевой лестницы армировать необходимо нижнюю и верхнюю часть, а также все площадки.
Верхняя часть армируется в таком же порядке, как и нижняя.
В данном видео вы подробнее узнаете об армировании:
Инструменты и приспособления
Армирование бетонной лестницы любого типа подразумевает использование:
- Строительной арматуры определенного диаметра. Этот параметр выбирается, исходя из длины лестничного пролета и высоты плит.
- Отожженной вязальной проволоки или электротехнических пластиковых хомутов.
- Пластиковых фиксаторов.
- Сетки, имеющей диаметр арматуры 4 мм, чтобы производить армирование.
- Сварочного аппарата.
- Эклектического шуруповерта.
- Крючка для шуруповерта.
После подготовки всех материалов и инструментов можно возводить и каркас лестницы. Приведенная выше таблица позволит составить схему армирования. Она будет выполнена с учетом необходимых расстояний между прутками арматуры и особенностей конструкции.
В правилах по армированию лестниц имеется рекомендация об укладке стержней каркаса в основание.
При выполнении операции следует соблюдать установленные расстояния ячеек, образуемых стержнями.
Но стержни не будут держаться сами по себе, особенно когда будет заливаться бетон. Для их надежной фиксации следует прихватить все прутья сваркой или использовать один из видов связки.
Важно! Некоторые специалисты не используют сварку, поскольку считают, что она имеет низкую прочность. Это верно, но только по отношению к закаленной арматуре. В остальных случаях можно и даже нужно использовать сварку.
[1]
Если все-таки не использовать сварочный аппарат, то необходимо искать другой выход. В нашем случае подойдет отожженная вязальная проволока. При помощи электрического шуруповерта и крючка можно качественно связать прутья продольного армирования. Еще один вариант – пластиковый хомут. Его обычно используют в автомобильной технике, но и для связывания прутьев подойдет.
Главное при связывании арматуры в основание опалубки – сохранять расстояния между прутьями, иначе снизится прочность конструкции.
Эффективным инструментом для соблюдения расстояний, который придумали совсем недавно, является пластиковый фиксатор. Его подкладывают под стержень в местах стыков, и он удерживает конструкцию.
Использование таких элементов по всей площади поверхности позволит создать ровную сетку из арматурных прутьев. Куски арматуры, которые имеют недостаточную длину, необходимо связывать между собой с нахлестом от 50 см. После того как базовый каркас будет готов, можно выполнять крепление сетки, которая необходима для увеличения жесткости ступеней лестницы.
Схема армирования
Стержневая арматура – это один из лучших вариантов для создания лестниц с несложной конструкцией. Но даже для таких проектов необходимо тщательно продумывать схему армирования. Расстояния между прутьями, укладка и другие характеристики сильно влияют на долговечность и надежность конструкции.
Особенности армирования одномаршевой лестницы
Выполнять армирование одномаршевой монолитной лестницы достаточно просто, поскольку в них не используются монолитные площадки или забежные ступени.
Достаточно армировать нижнюю часть плиты, где скапливается основное усилие напряжения. Если есть необходимость увеличить жесткость и прочность, можно использовать специальную армирующую сетку, имеющую параметры 100×100 мм. Она позволит снизить риск повреждения ступеней.
Особенности армирования двухмаршевой лестницы
Выполнение двухмаршевой лестницы – это более сложная задача для строителей. Такая конструкция имеет больший вес, поэтому значения растягивающих усилий в ее отдельных частях намного выше. Поэтому прутья необходимо монтировать в основание верхней и нижней части. Если лестница будет иметь большую проходимость, то арматура устанавливается не только в основание, но и в основную конструкцию.
При этом процедура армирования верхней и нижней части абсолютно идентичная. Для создания высокой надежности и прочности выполняется установка к бетонной, блочной или кирпичной стене. При использовании забежных ступеней обойтись без специальных компьютерных программ не удастся, поскольку расчет должен быть точным.
Повысить прочность и надежность каркаса можно путем использования вязки и сварки, о которой речь шла выше.
Этапы работ по армированию
Армирование лестницы – это операция, которая предполагает точное выполнение всех этапов. Но до ее выполнения необходимо сделать схему с расчетом напряжений, которая будет отражать всевозможные усилия.
Этапы по армированию:
- Монтирование опалубки и подготовка к монтажу каркаса.
- Сборка каркаса марша.
- Монтирование каркаса в опалубку.
- Сбор нижних каркасных площадок и их установка.
- Сборка и монтаж верхних каркасов площадок, крепление нижних элементов арматуры.
- Дополнительная перевязка всех элементов.
- Армирование ступеней (при высокой нагрузке).
- Стягивание конструкции и проверка качества.
- Заливка, выравнивание бетона.
Армирование лестничных маршей
Чтобы выполнить качественное армирование монолитной лестницы, необходимо быть внимательным, кропотливым и выполнять пошаговые инструкции и рекомендации специалистов.
По мнению большинства из них, оптимальным вариантом для создания лестничного марша является сетка с размерами 100×100×5 мм.
Надежная и прочная лестничная конструкция своими руками создается в несколько основных этапов. Чтобы не нарушить технологию, необходимо большее внимание уделить схеме и диаметру арматуры, а также другим характеристикам.
Сложные лестничные марши и площадки можно укреплять двойной сеткой и арматурой, которая имеет диаметр 14 мм. Укладывать ее необходимо на расстоянии 150 мм. Использование специальных крючков значительно повысит прочность конструкции.
Армирование нестандартных монолитных лестниц
Нестандартные монолитные лестницы создаются профессионалами не за один день. Здесь не подойдут стандартные схемы, поскольку каждый случай является индивидуальным. Чтобы создать прочную и долговечную конструкцию, придется использовать специальные программы, работающие с железобетонными конструкциями.
Сложные конструкции рассчитываются самостоятельно крайне редко.
Монолитные лестницы обладают следующими преимуществами:
- Прочностью и долговечностью.
- Безопасностью использования.
- Пожаробезопасностью.
- Доступной стоимостью.
- Экологичностью.
Используемая марка бетона зависит от того, какая нагрузка будет осуществляться на конструкцию, и где будет устанавливаться лестница. В помещении лучше всего использовать легкий бетон, имеющий пористую структуру. При создании наружных элементов применяется тяжелый бетон.
Бетонирование лестничной площадки
Между этажами в основном используются монолитные железобетонные конструкции. Из-за простоты технологии, с помощью которой можно такую конструкцию создать, за дело зачастую берутся любители и справляются с задачей.
Лестничные конструкции обладают следующими преимуществами:
- Возможность произвести покраску.
- Отсутствие скрипов, которые могут появляться при использовании деревянной лестницы.
- Способность выдержать самую высокую нагрузку.
Есть у таких конструкций и недостатки:
- Большая массивность.
- Значительные расходы материалов при возведении.
Армирование лестничной площадки возможно только при выполнении в стене штробы. Наилучший вариант – трехсторонний.
Операция выполняется при помощи кусачек, шуруповерта, листа для замеса, глубинного вибратора, уровня, обвеса. Кроме этого, понадобится арматура с различным диаметром: 8 и 14 мм. Диаметр стальной проволоки должен составлять 4 мм.
Подготовленная арматура укладывается в фундамент. Расстояние между соседними элементами должно составлять 15 см. Шаг продольных стержней – 20 см. Армирование ступеней выполняется при помощи сетки, имеющей диаметр 4 мм. Ликвидирование опалубки выполняется через 3 недели, после того как конструкция наберет необходимую прочность.
После этого выполняется связка каркаса при помощи хомутов или сварки. Бетон заливается без остановки, чтобы масса не успевала засохнуть, образовывая пустоты. Металлический уголок позволит усилить конструкцию кромок ступеней.
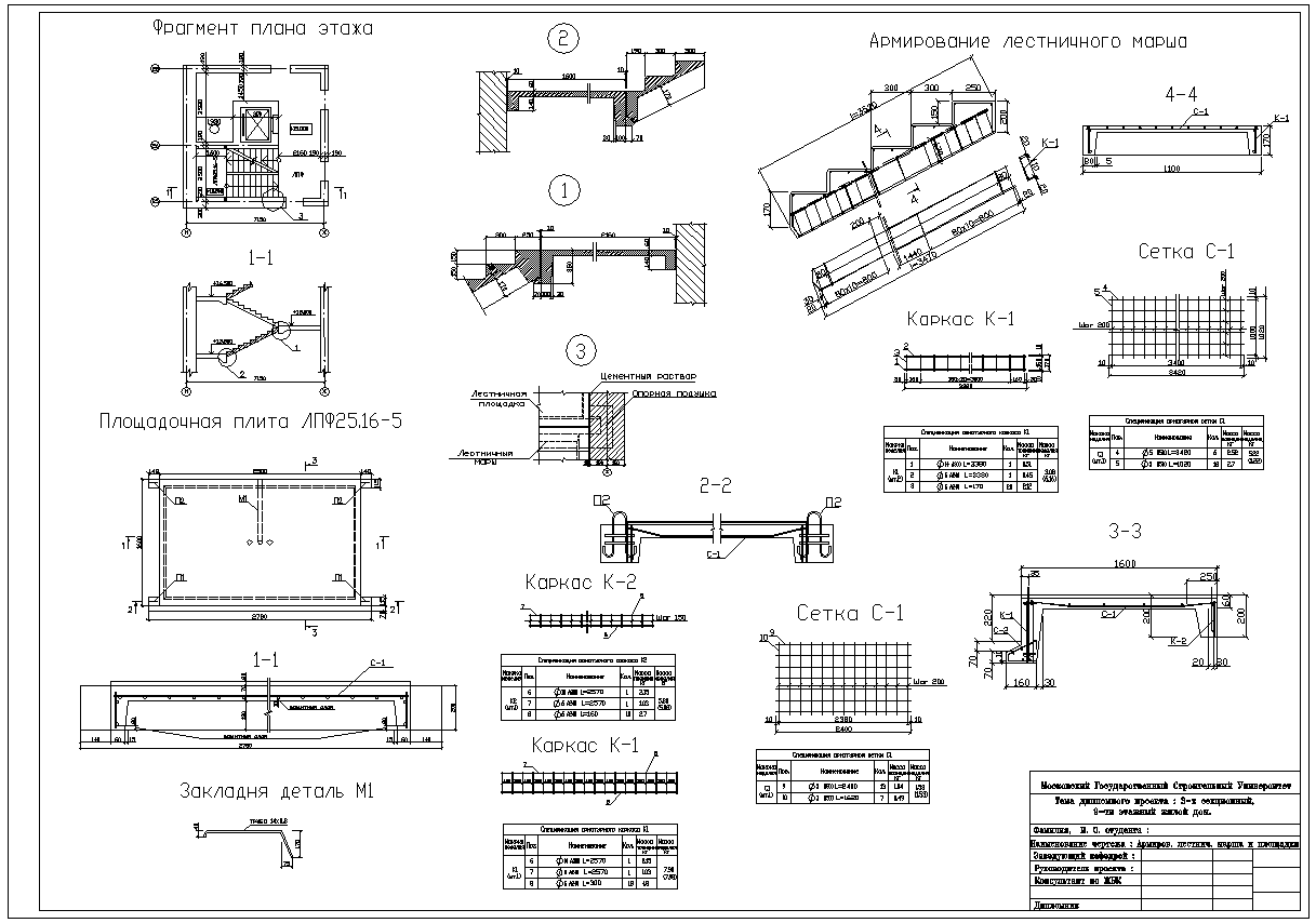
Несмотря на популярность деревянных и металлических лестниц, многие застройщики отдают предпочтение монолитной лестнице, для изготовления которой используются прутки из арматуры и бетон. Конструкция из железобетона подходит для формирования переходов между этажами, а также для сооружения входа в дом. Один из главных этапов строительства лестницы – армирование лестничного марша. Для усиления используется решетка из арматурных прутьев, соединенных сваркой или проволокой. Важно предварительно разработать чертеж, выполнить расчет и подбор арматуры.
Для чего необходимо армирование лестницы
Бетон, применяемый для изготовления лестничной конструкции, обладает повышенной прочностью. Он способен сохранять структуру и целостность под воздействием усилий сжатия.
Однако бетонный массив, для усиления которого не используется стальная арматура, постепенно растрескивается под воздействием следующих факторов:
- усилий растяжения;
- изгибающих нагрузок;
- крутящих моментов.
И хотя главную нагрузку в процессе эксплуатации воспринимают ступени, наиболее подвержены влиянию растягивающих нагрузок нижняя плоскость лестничного пролета и опорная площадка лестницы. Именно поэтому для бетонной лестницы армирование необходимо. Усиление конструкции осуществляется из отдельных элементов арматуры, образующих после сборки силовой каркас лестницы.
Армирование лестничного марша-является главным этапом строительства лестницыАрматурное усиление позволяет:
- предотвратить образование трещин;
- гарантировать безопасную эксплуатацию;
- обеспечить долговечность конструкции;
- сохранить целостность лестницы при перевозке и монтаже.
Конструкция, типы, достоинства и недостатки лестницы из арматуры и бетона
Цельная лестница из бетона, укрепленного арматурной решеткой, представляет собой массивную конструкцию с продолжительным периодом эксплуатации.
Для изготовления используются следующие материалы:
- марочный бетон. Он изготавливается по стандартной рецептуре из портландцемента марки М400, перемешанного с песком, щебнем и водой;
- стальные стержни класса А-III с рифленым профилем. Арматура в лестнице демпфирует действующие нагрузки при условии правильной вязки каркаса.
Остановимся на разновидностях монолитных лестниц. Сооружаются следующие типы лестничных конструкций:
Бетонная лестница изготавливается достаточно легко- одномаршевые. Они представляют собой отдельную железобетонную секцию без дополнительной площадки;
- двухмаршевые. Особенности двухмаршевых лестниц состоят в объединении общим силовым каркасом двух маршей с межэтажной площадкой;
- радиусные. Лестница отличается спиралеобразной конфигурацией межэтажного пролета и оригинальным дизайном.
Монолитные лестницы характеризуются комплексом серьезных преимуществ по сравнению с лестничными конструкциями из стали и древесины.
Главные преимущества железобетонных лестниц:
- долговечность конструкции. Благодаря повышенному запасу прочности и надежности железобетона, значительно повышается ресурс эксплуатации. При этом практически отпадает необходимость выполнения ремонтных мероприятий, за исключением периодического обновления декоративной облицовки. Железобетонный марш объединяет основу строения с перекрывающими панелями, усиливая коробку здания;
- облегчение и ускорение работ по строительству здания. Благодаря тому, что формирование железобетонного пролета осуществляется на начальном этапе постройки, упрощается доставка строительных материалов на рабочий участок. Это позволяет облегчить технологию работ и сократить строительный цикл;
- возможность реализации оригинальных дизайнерских идей и замыслов архитекторов. Принцип изготовления и армирования бетонных лестниц позволяет создавать как обычные лестничные конструкции, так и нестандартные лестницы спирального типа.
Технология позволяет реализовать замыслы клиента и обеспечить привлекательный внешний вид.
Среди дополнительных достоинств необходимо отметить:
- безопасность использования. Благодаря повышенной прочности марша, в результате усиления снижается вероятность травмирования;
- стойкость к поглощению влаги. Пониженная гигроскопичность железобетонных конструкций обусловлена особенностями структуры бетонного массива;
- устойчивость к температурным скачкам. Монолит, укрепленный арматурной решеткой, не растрескивается при колебаниях температуры;
- пожарную безопасность. Железобетон устойчив к воздействию высоких температур, что гарантирует огнестойкость конструкции;
- бесшумность. При передвижении по лестнице не возникают посторонние звуки, создающие неудобства при постоянном использовании;
- увеличенную грузоподъемность. Повышенный запас прочности обеспечивает целостность железобетона при воздействии нагрузок.

Застройщиков привлекает уменьшенный уровень эксплуатационных затрат, отсутствие необходимости в периодическом ремонте, а также возможность дизайнерского оформления с помощью различных отделочных материалов.
Одновременно с комплексом преимуществ имеются определенные минусы:
- повышенная трудоемкость работ по изготовлению;
- необходимость применения грузоподъемной техники для монтажа;
- увеличенная масса конструкции, нагружающая стены и перекрытия;
- потребность в дополнительной отделке для придания товарного вида.
Несмотря на ряд недостатков, железобетонные лестницы востребованы при строительстве зданий различного назначения.
При строительстве зданий различного назначения железобетонные лестницы очень востребованыАрмирование лестничного марша – главные правила по усилению
Собираясь выполнять армирование монолитной лестницы, соблюдайте основные требования по выполнению работ:
- произведите необходимые прочностные расчеты;
- определите схему армирования марша;
- изучите требования рабочей документации;
- используйте арматурные стержни диаметром 8-10 мм;
- применяйте вязальную проволоку для сборки каркаса;
- установите под сетку фиксирующие подставки;
- обеспечьте защитный слой 2-2,5 см после укладки каркаса;
- выдерживайте размер сетчатой ячейки 10х10 см;
- предусмотрите выпуски по 30-40 мм для фиксации марша;
- соблюдайте расстояние между поперечной арматурой 350-400 мм.

Выполнение указанных рекомендаций обеспечит надежность монолитной лестницы.
Как осуществляется бетонной лестницы армирование – технологические этапы
Для армирования марша необходимо выполнить следующие этапы:
Собираясь выполнять армирование монолитной лестницы, необходимо произвести необходимые прочностные расчеты- Произвести расчеты и разработать проект.
- Собрать и зафиксировать щитовую опалубку.
- Нарезать заготовки и связать силовую решетку.
- Уложить в опалубку арматурный каркас.
- Залить бетонный раствор.
- Демонтировать опалубку после застывания бетона.
- Выполнить декоративную отделку лестницы.
Остановимся на особенностях выполнения отдельных этапов.
Подготовительные мероприятия
На подготовительном этапе следует выполнить ряд работ:
- Выбрать конструкцию лестницы.
- Рассчитать пролет на прочность.
- Определить потребность в стройматериалах.

- Разработать рабочий чертеж.
Работы по сборке и установке опалубки
Для изготовления деревянной опалубки понадобятся доски, фанера, деревянные бруски, а также саморезы.
Перед началом заливки необходимо установить опалубкуПорядок действий по сборке и монтажу:
- Нарежьте заготовки согласно чертежу.
- Соберите основание и закрепите борта.
- Установите опорные стойки.
- Проверьте прочность конструкции.
- Обеспечьте герметичность стыков.
Проконтролируйте устойчивость опалубки, масса которой после бетонирования возрастет.
Сборка арматурного каркаса
Долговечность марша определяется методом сборки силового каркаса. Определяясь, как будет крепиться арматура для лестницы, желательно использовать способ вязки. Он обеспечивает повышенную надежность арматурной решетки по сравнению со сварным вариантом. Ведь возникающие в металле при сварке внутренние напряжения отрицательно влияют на целостность силовой конструкции под воздействием нагрузок.
Для сборки решетки подготовьте:
- арматурные прутки;
- отожженную проволоку;
- инструмент для вязания;
- фиксирующие элементы.
Обратите внимание на следующие моменты:
- соответствие конструкции каркаса требованиям документации;
- прочность фиксации стальных прутков;
- неподвижность арматурной решетки;
- расстояние от каркаса до бетонной поверхности.
После выполнения работ по армированию осуществляется заливка бетона, который набирает твердость на протяжении четырех недель. Затем опалубка демонтируется и выполняются мероприятия по чистовой отделке.
Особенности укрепления одномаршевой монолитной лестницы
Одномаршевый вариант лестничной конструкции – наиболее простой. Основные усилия воспринимает нижняя плоскость, поэтому усиливать такой марш следует в нижней части.
При продольном армировании одномаршевой лестницы учитываются следующие моменты:
- размер пролета;
- расстояние между стержнями;
- толщина лестничной плиты;
- сечение арматуры.

Взаимосвязь указанных показателей несложно проследить из справочных таблиц. При величине пролета до 2 м интервал между стержнями составляет 0,19 м. С возрастанием длины лестничной конструкции снижается интервал между стержнями и увеличивается диаметр прутков.
Армирование лестницы-схемаСхема армирования монолитной лестницы двухмаршевого типа
Усиление двухмаршевой лестницы осуществляется согласно предварительно разработанной схеме и предусматривает:
- армирование верхней и нижней части конструкции;
- размещение арматурных стержней в лестничной площадке;
- двойное усиление лестничного марша.
Воздействию растягивающих нагрузок подвержены верхняя и нижняя плоскость, которые следует дополнительно армировать.
Нестандартные лестницы – способы повышения прочности конструкции
Обеспечение повышенной прочности радиусных лестниц осуществляется по стандартной методике:
- Выполняются прочностные расчеты с помощью специальных программ.

- Разрабатывается рабочий чертеж.
- Осуществляется усиление проблемных участков.
Технология армирования нестандартных лестниц аналогична способам усиления одномаршевых и двухмаршевых конструкций.
Заключение
Originally posted 2018-08-06 16:48:06.
Лестница является достаточно сложной конструкцией, но помимо того, что она должна привнести в интерьер респектабельный, роскошный стиль, лестница должна отвечать прочностным характеристикам и быть надежной.
Поворотная лестница из бетона
Блок: 1/3 | Кол-во символов: 241
Источник:
Инструменты и приспособления
Для строительных работ по армированию своими руками необходим следующий комплект инструментов:
- Болгарка или ножовка по металлу для распила арматуры;
- Приспособление для гибки арматуры;
- Инструмент для вязки стержней;
- Кусачки;
- Электролобзик или цепная пила для распила деревянных досок, фанеры, щитов опалубки;
- Шуруповерт для сборки опалубки;
- Бетономешалка для подготовки раствора;
- Глубинный вибратор;
- Измерительные приспособления (строительный уровень, отвес или невелир).

Блок: 2/4 | Кол-во символов: 500
Источник:
Это интересно: Технология армирования ленточного фундамента: рассмотрим по полочкам
Причины армирования
Современные лестницы и лестничные площадки, неважно, что мы рассматриваем: винтовой образец, стандартный, длинный или короткий, производятся преимущественно из железобетона.
Преимущества бетонных и железобетонных конструкций очевидны. Они в меру дешевы, очень прочны и долговечны, выдерживают критические нагрузки, подлежат ремонту, хоть и частичному.
Вот почему современные лестницы и лестничные площадки, особенно когда мы говорим о стандартной технологии, производят из бетонных конструкций.
Арматурный каркас марша и лестничной площадки
Проблема бетонных конструкций без арматурного каркаса известна всем – хрупкость. Бетон хорошо работает на сжатие, но плохо на изгиб и растяжение. Он будет выдерживать определенный уровень веса статического или динамического, но только до какого-то уровня.
Дальше последует растрескивание в области, испытывающей растягивающую нагрузку и разрушение всей конструкции. Такую нагрузку испытывает нижняя поверхность пролета.
Решить проблему достаточно просто – нужно всего лишь осуществить армирование монолитной лестницы, внедрив в полость бетонной конструкции каркас из арматуры.
Наличие каркаса нивелирует основные напряжения, сделает бетон куда более прочным, позволит ему взаимодействовать с нагрузками на изгиб без каких-либо разрушений, и все это, за счет наличия в нем арматуры.
к меню
Рабочие нагрузки
Первое, что нужно рассмотреть при определении рабочих нагрузок – это схема и чертеж лестницы.
Благодаря им можно осуществить точный расчет нагрузок. А расчет нагрузок – один из самых важных моментов при проектировании.
Схема стандартного лестничного марша такова, что установлен он в диагональном положении. На марш действует сила его собственного веса, давящая на него неравномерно. В нижней зоне воздействие будет сильнее, так как чем ниже находится точка, тем большее давление она испытывает от находящегося выше нее массива.
Верхняя же зона со ступенями, давления вообще почти не испытывает, о чем свидетельствует формула расчета в теоретической механике.
Видео удалено.
| Видео (кликните для воспроизведения). |
Основная точка приложения веса – немного ниже центра марша, смещенная к задней его части, то есть дальше от ступеней.
Соединение каркасов лестницы
В то же время не будем забывать и про лестничные площадки. Чертеж любой лестницы, как правило, без них не обходится. Не обойдется и расчет, тем более что наличие площадки, да еще и опирающейся на другие конструкции, оказывает свое влияние.
Площадка соединяется с маршем посредством довольно тонкого соединения. В монолитных конструкциях это соединение вообще отсутствует, так как площадка заливается с маршем одновременно.
data-ad-client=»ca-pub-8514915293567855″
data-ad-slot=»1955705077″>
В итоге верхняя часть лестницы подвергается сильным внешним воздействиям, а особенно сильны они в точке соприкосновения марша и площадки.
Именно эта верхняя ступень в первую очередь подвержена растрескиванию и последующему лавинообразному разрушению.
к меню
Блок: 2/3 | Кол-во символов: 3506
Источник:
Конструкция, типы, достоинства и недостатки лестницы из арматуры и бетона
Цельная лестница из бетона, укрепленного арматурной решеткой, представляет собой массивную конструкцию с продолжительным периодом эксплуатации.
Для изготовления используются следующие материалы:
- марочный бетон. Он изготавливается по стандартной рецептуре из портландцемента марки М400, перемешанного с песком, щебнем и водой;
- стальные стержни класса А-III с рифленым профилем. Арматура в лестнице демпфирует действующие нагрузки при условии правильной вязки каркаса.
Остановимся на разновидностях монолитных лестниц. Сооружаются следующие типы лестничных конструкций:
Бетонная лестница изготавливается достаточно легко- одномаршевые. Они представляют собой отдельную железобетонную секцию без дополнительной площадки;
- двухмаршевые.
Особенности двухмаршевых лестниц состоят в объединении общим силовым каркасом двух маршей с межэтажной площадкой; - радиусные. Лестница отличается спиралеобразной конфигурацией межэтажного пролета и оригинальным дизайном.
Монолитные лестницы характеризуются комплексом серьезных преимуществ по сравнению с лестничными конструкциями из стали и древесины.
Главные преимущества железобетонных лестниц:
- долговечность конструкции. Благодаря повышенному запасу прочности и надежности железобетона, значительно повышается ресурс эксплуатации. При этом практически отпадает необходимость выполнения ремонтных мероприятий, за исключением периодического обновления декоративной облицовки. Железобетонный марш объединяет основу строения с перекрывающими панелями, усиливая коробку здания;
- облегчение и ускорение работ по строительству здания. Благодаря тому, что формирование железобетонного пролета осуществляется на начальном этапе постройки, упрощается доставка строительных материалов на рабочий участок.
Это позволяет облегчить технологию работ и сократить строительный цикл; - возможность реализации оригинальных дизайнерских идей и замыслов архитекторов. Принцип изготовления и армирования бетонных лестниц позволяет создавать как обычные лестничные конструкции, так и нестандартные лестницы спирального типа. Технология позволяет реализовать замыслы клиента и обеспечить привлекательный внешний вид.
Среди дополнительных достоинств необходимо отметить:
- безопасность использования. Благодаря повышенной прочности марша, в результате усиления снижается вероятность травмирования;
- стойкость к поглощению влаги. Пониженная гигроскопичность железобетонных конструкций обусловлена особенностями структуры бетонного массива;
- устойчивость к температурным скачкам. Монолит, укрепленный арматурной решеткой, не растрескивается при колебаниях температуры;
- пожарную безопасность.
Железобетон устойчив к воздействию высоких температур, что гарантирует огнестойкость конструкции; - бесшумность. При передвижении по лестнице не возникают посторонние звуки, создающие неудобства при постоянном использовании;
- увеличенную грузоподъемность. Повышенный запас прочности обеспечивает целостность железобетона при воздействии нагрузок.
Застройщиков привлекает уменьшенный уровень эксплуатационных затрат, отсутствие необходимости в периодическом ремонте, а также возможность дизайнерского оформления с помощью различных отделочных материалов.
Одновременно с комплексом преимуществ имеются определенные минусы:
- повышенная трудоемкость работ по изготовлению;
- необходимость применения грузоподъемной техники для монтажа;
- увеличенная масса конструкции, нагружающая стены и перекрытия;
- потребность в дополнительной отделке для придания товарного вида.
Несмотря на ряд недостатков, железобетонные лестницы востребованы при строительстве зданий различного назначения.
Блок: 3/9 | Кол-во символов: 3798
Источник:
Бетонирование на лестничной площадке
Все этажи соединяются между собой монолитными железобетонными лестничными конструкциями, которые можно выполнить самостоятельно. Относительно несложная технология потребует только четкого следования инструкции и наличия элементарных знаний в строительстве.
Лестничная площадка
К преимуществам именно такого вида лестничных конструкций можно отнести:
- Возможность покраски.
- Отсутствие скрипа, как в случае с древесиной.
- Возможность выдерживать громадные нагрузки.
Среди недостатков можно выделить:
- Большую массивность.
- Значительный расход материалов и средств на возведение.
Армирование лестничной площадки должно проходить с усиленной арматурой, которую необходимо предварительно грамотно рассчитать и разметить.
Армирование лестницы с площадками
Для выполнения работ на лестничной площадке, необходимо выполнить в стене штробу, для опирания, рекомендуется выбрать трехсторонний вариант.
Среди необходимых инструментов, стоит заранее подготовить:
- Ножовку по металлу;
- Кусачки;
- Шуруповерт;
- Лист для замеса бетона;
- Глубинный вибратор;
- Уровень, отвес.
Отвес
Для начала необходимо подготовить арматуру:
Опалубку можно будет ликвидировать только спустя 3 недели, для того чтобы конструкция набрала нужную прочность.
- Далее можно приступать к связке каркаса, специальными фиксаторами или пластиковыми хомутами.
- Опалубку изготавливают исключительно после того, как будет доделан весь каркас полностью.
- Выполнить работы по заливке бетона.
Заливку бетона нужно проводить мгновенно «без перекуров».
Заливка лестницы бетоном
Для того чтобы кромки армированных конструкций прослужили долгое время необходимо перед процессом бетонирования закрыть ступени металлическим уголком.
Схема армирования монолитной лестницы из бетона, как армировать бетонные лестничные марши – чертежи, технология армирования ступеней, вес, узел, элементы маршей dwg, длина серии, бетонирование на лестничной площадке – фото
Блок: 3/3 | Кол-во символов: 2253
Источник:
Рекомендации по проектированию и разработке документации
- угол наклона не должен превышать 35 градусов;
- оптимальная высота ступени – 150-180 мм;
- ширина лестничного прохода – не меньше 1 метра;
- размер опорной части ступени – 280-300 мм.
Осуществляя проектирование, выполняйте все расчёты и эскизы на бумаге, учитывайте чистовые размеры помещения, в том числе высоту полов с учетом финишной отделки.
Разрабатывая различные лестницы из бетона, помните, что выполнение работ по их возведению включает следующие стадии:
- Монтаж опалубки.
- Армирование лестничного марша.
- Бетонирование.
Рассмотрим детально эти три главных этапа.
Блок: 3/7 | Кол-во символов: 969
Источник:
Это интересно: Армирование плит перекрытия: излагаем развернуто
Дополнительные рекомендации
Для того чтобы кромки ступеней не разрушались, перед проведением бетонирования их закрывают металлическим уголком. Чтобы бетон лучше сцеплялся с металлом, к уголкам приваривают «усы». Заливая раствор, они углубляются в толщу и удерживают неподвижно уголки на одном месте.
Блок: 4/4 | Кол-во символов: 321
Источник:
Армирование лестничного марша – главные правила по усилению
Собираясь выполнять армирование монолитной лестницы, соблюдайте основные требования по выполнению работ:
- произведите необходимые прочностные расчеты;
- определите схему армирования марша;
- изучите требования рабочей документации;
- используйте арматурные стержни диаметром 8-10 мм;
- применяйте вязальную проволоку для сборки каркаса;
- установите под сетку фиксирующие подставки;
- обеспечьте защитный слой 2-2,5 см после укладки каркаса;
- выдерживайте размер сетчатой ячейки 10х10 см;
- предусмотрите выпуски по 30-40 мм для фиксации марша;
- соблюдайте расстояние между поперечной арматурой 350-400 мм.

Выполнение указанных рекомендаций обеспечит надежность монолитной лестницы.
Блок: 4/9 | Кол-во символов: 726
Источник:
Работы по армированию
Если опалубка собрана, можно приступать к армированию конструкции. Комплекс работ по усилению лестничного марша предусматривает следующие стадии работ:
- подготовку необходимых материалов, инструмента;
- разработку схемы усиления;
- сборку силового каркаса.
Для выполнения работ понадобятся:
- Строительная арматура диаметром 10-14 мм.
- Проволока для вязания каркасов усиления.
- Четырехмиллиметровая сетка для усиления ступенек с ячейкой 10х10 см.
- Хомуты из пластика для фиксации.
- Электрошуруповерт.
- Сварочное оборудование.
Если всё подготовлено, начинайте работы по сборке каркаса из арматуры.
Схему армирования составляйте с учетом рекомендаций, приведённых в справочных источниках. Строительные нормы регламентируют, какая будет применяться арматура в каркасе усиления в зависимости от протяженности пролета, высоты лестничной плиты и интервала между прутками.
Проблема бетонных конструкций без арматурного каркаса известна всем – хрупкость
Например, при длине лестничного пролета 3 метра, диаметре арматуры 10 миллиметров и высоте плиты 15 сантиметров, расстояние между прутками должно быть 17 сантиметров. Руководствуясь табличными данными, выбрать параметры продольного усиления несложно.
Для понимания процесса армирования, рассмотрим усилия, возникающие в обычной одномаршевой лестнице, связанные с силой тяжести. Ее величина зависит от массы конструкции, передвигающихся по ней людей, а также веса переносимых предметов.
Под воздействием усилий, нижняя часть бетонного монолита растягивается, а верхняя – стремится сжаться. Бетон не отличается высокой прочностью на растяжение. Именно поэтому усиление лестничной конструкции производится с использованием стальной арматуры. Для одномаршевых решений применяется проверенная на практике схема усиления, при которой стальной каркас устанавливается в нижней плоскости опалубки.
Для более нагруженных двухмаршевых схем с монолитной площадкой каркас возводится в двух уровнях конструкции – верхнем и нижнем.
Производя армирование, выполняйте следующие правила:
- соблюдайте интервал между стальными прутками усиления в соответствии с рекомендациями;
- укладываете прутки каркаса на основание опалубки, согласно эскизам, формируя ячейки необходимых размеров;
- производите фиксацию стержней для сохранения правильного положения каркаса с использованием вязальной проволоки или сварочного аппарата. Применяйте специальный крючок, установленный в шуруповерт для вязки элементов каркаса, если не используется сварка;
- используйте пластиковые элементы крепления для фиксации стержней арматуры;
- обеспечьте интервал от основания опалубки до прутков – 3 см, используя фиксаторы, установленные в местах соединения прутков;
- соблюдайте величину нахлеста арматуры не меньше 50 диаметра прутков при объединении в каркас силовых элементов;
- зафиксируйте к стене каркас усиления, что позволит добиться увеличения прочности.

Блок: 5/7 | Кол-во символов: 2873
Источник:
Особенности укрепления одномаршевой монолитной лестницы
Одномаршевый вариант лестничной конструкции – наиболее простой. Основные усилия воспринимает нижняя плоскость, поэтому усиливать такой марш следует в нижней части.
При продольном армировании одномаршевой лестницы учитываются следующие моменты:
- размер пролета;
- расстояние между стержнями;
- толщина лестничной плиты;
- сечение арматуры.
Взаимосвязь указанных показателей несложно проследить из справочных таблиц. При величине пролета до 2 м интервал между стержнями составляет 0,19 м. С возрастанием длины лестничной конструкции снижается интервал между стержнями и увеличивается диаметр прутков.
Армирование лестницы-схемаБлок: 6/9 | Кол-во символов: 676
Источник:
Заливка бетоном
К выполнению этапа приступают, когда арматурный каркас установлен.
Для заливки подойдет, как заказной бетон, так и приготовленный самостоятельно, непосредственно на месте работ. Производя заливку, придерживайтесь следующих правил:
- Формируйте бетонную поверхность лестницы одновременно с заливкой плиты перекрытия.
- Работы выполняйте в один прием, начиная с нижней части и постепенно передвигаясь вверх.
- Обеспечьте густую консистенцию бетона, он не должен «сползать».
- Уплотняйте массив, применяя вибратор.
- Спланируйте поверхность ступеней, используя мастерок.
- Увлажняйте после заливки поверхность.
- Демонтируйте опалубку не раньше, чем через полмесяца после бетонирования.
Блок: 6/7 | Кол-во символов: 686
Источник:
Схема армирования монолитной лестницы двухмаршевого типа
Усиление двухмаршевой лестницы осуществляется согласно предварительно разработанной схеме и предусматривает:
- армирование верхней и нижней части конструкции;
- размещение арматурных стержней в лестничной площадке;
- двойное усиление лестничного марша.

Воздействию растягивающих нагрузок подвержены верхняя и нижняя плоскость, которые следует дополнительно армировать.
Блок: 7/9 | Кол-во символов: 422
Источник:
Итоги
Производя армирование с учетом технических требований, вы обеспечите прочность лестничного марша, длительный ресурс эксплуатации.
Блок: 7/7 | Кол-во символов: 191
Источник:
Нестандартные лестницы – способы повышения прочности конструкции
Обеспечение повышенной прочности радиусных лестниц осуществляется по стандартной методике:
- Выполняются прочностные расчеты с помощью специальных программ.
- Разрабатывается рабочий чертеж.
- Осуществляется усиление проблемных участков.
Технология армирования нестандартных лестниц аналогична способам усиления одномаршевых и двухмаршевых конструкций.
Блок: 8/9 | Кол-во символов: 413
Источник:
Заключение
Блок: 9/9 | Кол-во символов: 241
Источник:
Кол-во блоков: 17 | Общее кол-во символов: 27292
Количество использованных доноров: 5
Информация по каждому донору:
- http://o-cemente.
info/armirovanie-betona/armirovanie-lestnits-i-ploshhadok.html: использовано 2 блоков из 4, кол-во символов 821 (3%) - http://lestnicypro.ru/lestnicy/svoimi-rukami/armirovanie-monolitnoy-konstrukcii/: использовано 3 блоков из 3, кол-во символов 10746 (39%)
- https://pobetony.expert/armirovanie/kak-armirovat-lestnicu: использовано 7 блоков из 9, кол-во символов 7500 (27%)
- https://pobetony.ru/armirovanie/lestnichnogo-marsha-chertezh/: использовано 4 блоков из 7, кол-во символов 4719 (17%)
- https://armaturniy.ru/armirovanie/lestnicy.html: использовано 1 блоков из 3, кол-во символов 3506 (13%)
Поделитесь в соц.сетях: | Оцените статью: |
Армирование железными прутьями
Что является неотъемлемой частью работы над бетонными лестничными конструкциями? Наряду с разработкой проекта самого устройства, созданием чертежей, по которым будет происходить создание изделия, а также внешней дизайнерской отделкой важное значение имеет армирование лестничного марша.
Данная процедура необходима для того, чтобы повысить прочность и износоустойчивость готового сооружения, предотвратить его деформирование, а также повысить срок эксплуатации на несколько десятков лет. Для этого используются стальные пруты, а также сваривание или связывание проволокой отдельных элементов.
Арматурная сетка
Зачем повышать прочность лестничных маршей: что даст процедура армирования?
В процессе использования лестничные марши подвергаются многим внешним воздействиям. К ним можно отнести и собственный вес лестницы, и вес всех жителей дома, и массу транспортируемых грузов. Нельзя не учесть прямые механические воздействия, а также атмосферные – влажность и температурные перепады. Все перечисленные факторы рано или поздно приведут к тому, что верхние бетонные слои начнут сжиматься и проседать, а нижние – растягиваться и разрушаться. Чтобы компенсировать подобные проблем, применяют армирование лестничного пролета.
Если требуется армирование одномаршевых бетонных лестниц, при разработке чертежа изделия армирование проектируется только в нижней его части.
В других областях марша укладка арматуры не принесет фактической пользы и предстанет перед вами как лишние трудозатраты.
Пример документации по бетонной лестнице
Для того чтобы уберечь верхнюю часть бетонной лестничной конструкции, хорошим решением будет использование металлической сетки, обычно стальной. Это требуется для того, чтобы спасти изделие от механических воздействий при эксплуатации.
Когда требуется производить укрепление лестничного марша?
Перед процедурой армирования создается детальный чертеж будущей лестницы, а также производится ее опалубка. Она изготавливается из бруса и досок, толщина которых не менее 3 мм. После этого рекомендуется выполнить гидроизоляцию. Для процесса необходимо воспользоваться рубероидом или полиэтиленом. Это поможет избежать деформирования бетона на первоначальном этапе.
Прутья арматурные
К укреплению бетонной лестницы можно приступать только после того, как все подготовительные работы осуществлены.
Помимо чертежа самого изделия, вам потребуется качественный чертеж армирования лестничного марша. При разработке данного чертежа в обязательном порядке учитываются следующие критерии изделия:
- длина будущей лестницы;
- длина арматуры или металлических прутов, которые вы будете применять для повышения прочности;
- расстояние, на котором будут укладываться пруты;
- минимальное значение высоты бетонной плиты.
Для дополнительного укрепления ступенек и предотвращения их сколов устанавливается не только металлическая решетка, но и металлические уголки.
После подготовки схемы армирования вы можете приступать к изготовлению каркаса. Все металлические элементы должны быть установлены до процесса заливки бетонной смеси. Только после изготовления и установки каркаса его заливают раствором бетона. Заливка выполняется в один прием – начиная от нижних ступеней и постепенно переходя к верхним. Для уплотнения раствора применяется вибратор: в процессе его использования важно не задеть пруты арматуры.
Теперь вы знаете, зачем рекомендуется производить армирование и каким образом оно осуществляется. Свои мнением и результатами армирования делитесь в комментариях.
Видео удалено.| Видео (кликните для воспроизведения). |
Источники:
- Ефименко А. З. Социология управления. В 2 частях. Часть 2. Учебное пособие; МГСУ — М., 2015. — 160 c.
Армирование лестничного марша чертеж
Оценка 5 проголосовавших: 1Приветствую Вас на нашем портале. Меня зовут Михаил Суханов. Я уже более 6 лет занимаюсь строительством. Я считаю, что являюсь профессионалом в своей области, хочу научить всех посетителей сайта решать сложные и не очень задачи.
Все материалы для сайта собраны и тщательно переработаны с целью донести как можно доступнее всю необходимую информацию. Однако чтобы применить все, описанное на сайте всегда необходима обязательная консультация с профессионалами.
основные требования и технология монтажа
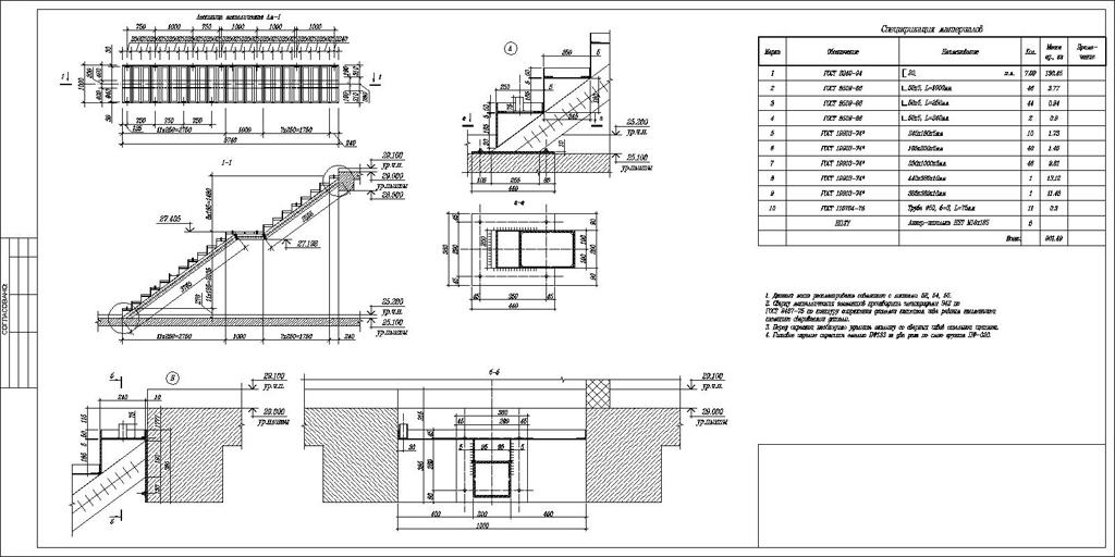
Монолитная лестница на чертежах ведущих компаний и индивидуальных строителей представляется в виде прямой, маршевой и винтовой конструкции для внутреннего и внешнего размещения.
Возведение производится на этапе постройки здания и является составным элементом всего сооружения. Она связана с основанием и плитами перекрытия, усиливая прочностные характеристики строения.
Схема бетонной лестничной установки
Основные требования
Для того, чтобы правильно произвести расчеты, по которым будет возводиться для ж/б лестница монолитная железобетонная, чертежи изделий создают с учетом рекомендуемых параметров:
- Угол наклона 25 – 35 гр.
- Высота ступенек от 15 до 18 см.
- Длина ступенем от 28 до 30 см.
- Ширина конструкций – 1 м.
- Промежуток между ступенями и потолком 2 м;
- Ширина ступенек 30 см.ъ
- Монолитная лестница на чертежи dwg имеет массу не более 2 т.
- Высота поручней варьирует в пределах 90 – 100 см.
- Расстояние между стойками перил 15 см.
- При отделке мрамором, создается специальное покрытие из резины или ковролина.
- Установка деревянных накладок производится с использованием подложки из фанеры.

Стандартная лестничная установка из бетона
Армирование прямой лестницы
Чертеж узла монолитной железобетонной лестницы представлен двумя вариантами:
- Оголением арматуры плиты, вязанием лестницы с приваривание нижних стержней лестничной конструкции к верхним пруткам плиты.
- Варится 2 швеллера по длине лестничной конструкции к швеллеру в перекрытии. Последний надевается на плиту, крепится на замкнутых заваренных прутках.
- Армирование монолитной лестницы по чертежам dwg производится между двумя швеллерами лестничной установки. К полкам приваривается нижняя рабочая арматура плиты.
Стандартное лестничное сооружение из бетона
Исходя от назначения и уровня нагрузки, можно применять бетон разных марок:
- Внешнего применения – конструктивный и увесистый материал.
- Внутреннего использования – пористый, легкий заполнитель
Принципы монтажа
При составлении схемы должны быть указаны промежутки между прутками и порядок их укладки.
Армирование монолитной лестницы по чертежам производится согласно схеме, обеспечивая надежное соединение отдельных элементов между собой. Этому способствует выбор технологии:
- Сварка;
- Вязка.
Типовая лестничная конструкция из бетона
Первый вариант обеспечивает оперативность процесса. Второй тип соединений обеспечивается пуском крючка, зафиксированного в шуруповёрте. Если такая возможность исключена, можно воспользоваться пластиковыми хомутами.
Внимание! Разбираясь по вопросу, как армируются лестницы ж б монолитные по чертежам, важно контролировать промежуток между металлическими изделиями и опалубкой – 3 см.
Облегчить соблюдение данного требования можно пластиковыми фиксаторами, образующими форму стула.
Дополнительные детали подкладывают под стержни на участках состыковки (с помощью сварки, проволоки). При этом исключены перекосы и неровности сетки.
Схематическое отображение лестничной конструкции из бетона
Чертежи монолитных винтовых лестниц отображают соединение силовой арматуры с применением отдельных кусков.
Оно производится с нахлёстом стержней. После того, как будет сооружен базовый каркас, можно крепить сетку.
Создание бетонной установки производится в несколько шагов:
- Создание опалубки.
- Установка каркаса из арматуры.
- Заполнение бетонной смесью.
Возведение ступеней
Исходя из воздействия силы тяжести, наблюдаются следующие процессы:
- Растяжение внизу конструкции.
- Сжатие в верхней части сооружения.
Одномаршевые лестницы возводятся с армированием нижней части сооружения.
Для этого предусмотрено размещение сетки вверху конструкции (параметры ячеек – 10х10х0,5 см). Данная конструкция обеспечивает защиту поверхности от механического воздействия. Показатели жёсткости остаются неизменными. Двухмаршевые установки сооружаются с размещением каркаса в верхнем или нижнем положении.
Ступени из бетона для внутреннего размещения
Винтовые лестницы
Специфика установки заключается в возведении криволинейной опалубки, для которой необходимо большое число щитов и опор.
При подготовке арматуры применяются разные прутки:
- Ø14 мм А 400 С;
- Ø8 мм А 400 С;
- Проволока Ø4 мм Вр-I.
Ступеньки и площадки укрепляются двойной сеткой.
Для марша применяется арматура Ø14 мм А 400 С.
Размер ячеек 15 см.
Поперечное армирование производится посредством проволоки Ø8 мм А 400 С. Площадка сооружается с арматурой Ø14 мм, шаг 20 см.
Разнесение двух сеток производится специальным фиксатором, который создается из арматуры Ø8 мм А 400 С. Высота сооружения 10 см.
Монолитные ступени внутренней установки
Связка сеток осуществляется крючками (12 см). Их монтаж осуществляется в шахматном порядке на продольной арматуре. Размещение производится через один стержень. Процесс начинается снизу вверх. При подготовке проекта могут возникнуть ошибки:
- Установка сооружения в проеме 150х150 см.
- Обустройство узких сооружений для полных и очень высоких пользователей.
- Мелкоэлементное сооружение косоурах.

- Крупноэлементное устройство из отдельных площадок и маршей.
- Крупнопанельный тип установки из марша и двух полуплощадок.
- Монолитные марши и площадки в монолитном объёмном блоке клетки.
Выбор чертежа сборных ж/б лестниц
Ж/б конструкции из мелкоразмерных деталей собираются из сборных элементов:
- Балок под площадку и косоуры.
- плит площадок.
- косоуров и ступенек.
Монолитные ступени для дома
Несущими горизонтальными деталями служат балки под площадки и косоуры, наклонные элементы для укладки плит площадок и ступенек. Ступеньки различают с гладкими или накладными плитами/проступями.
Крупноэлементные сооружения собирают из площадок и маршей. Упор площадок производится на стены помещений посредством выступов или всей гранью на консольном выступе в стене, металлическом столе, приваренном к закладным элементам, размещенным в теле стены.
Исходя от формы и конструктивных исполнений, различают разные типы маршей: П-, Н- и Т-образные в поперечном сечении.
Кроме этого различают сплошные без фризовых ступенек изделия.
Крупноразмерные площадки характеризуются разным исполнением:
- С размещением рёбер по контуру плит.
- С рёбрами, размещенными по обе стороны.
- С одним ребром, имеющимся по сторону марша.
Монолитный лестничный марш
Крупнопанельные лестничные сооружения собираются из маршей, соединенных с полуплощадками. Поперечное сечение выполняется в сплошном или П-образном виде. Они изготавливаются из однотипных деталей Z-образного типа, образующих упор на стены клеток или на балки каркаса. Конструкцию разрезают на 2 равные продольные половинки, включающие один марша и две одинаковые полуплощадки – верхнюю и нижнюю.
Вконтакте
Google+
Схема армирования монолитной лестницы из бетона
Лестница является достаточно сложной конструкцией, но помимо того, что она должна привнести в интерьер респектабельный, роскошный стиль, лестница должна отвечать прочностным характеристикам и быть надежной.
Поворотная лестница из бетона
Блок: 1/3 | Кол-во символов: 241
Источник: http://lestnicypro.ru/lestnicy/svoimi-rukami/armirovanie-monolitnoy-konstrukcii/
Инструменты и приспособления
Для строительных работ по армированию своими руками необходим следующий комплект инструментов:
- Болгарка или ножовка по металлу для распила арматуры;
- Приспособление для гибки арматуры;
- Инструмент для вязки стержней;
- Кусачки;
- Электролобзик или цепная пила для распила деревянных досок, фанеры, щитов опалубки;
- Шуруповерт для сборки опалубки;
- Бетономешалка для подготовки раствора;
- Глубинный вибратор;
- Измерительные приспособления (строительный уровень, отвес или невелир).
Блок: 2/4 | Кол-во символов: 500
Источник: http://o-cemente.info/armirovanie-betona/armirovanie-lestnits-i-ploshhadok.html
Причины армирования
Современные лестницы и лестничные площадки, неважно, что мы рассматриваем: винтовой образец, стандартный, длинный или короткий, производятся преимущественно из железобетона.
Преимущества бетонных и железобетонных конструкций очевидны. Они в меру дешевы, очень прочны и долговечны, выдерживают критические нагрузки, подлежат ремонту, хоть и частичному.
В противовес им выступают лестницы полностью металлические, деревянные и т.д. Они стоят существенно дороже бетонных образцов, быстрее разрушаются, сооружение и монтаж их на месте по трудоемкости превосходит бетонный вариант.
Вот почему современные лестницы и лестничные площадки, особенно когда мы говорим о стандартной технологии, производят из бетонных конструкций.
Арматурный каркас марша и лестничной площадки
Проблема бетонных конструкций без арматурного каркаса известна всем – хрупкость. Бетон хорошо работает на сжатие, но плохо на изгиб и растяжение. Он будет выдерживать определенный уровень веса статического или динамического, но только до какого-то уровня. Дальше последует растрескивание в области, испытывающей растягивающую нагрузку и разрушение всей конструкции.
Такую нагрузку испытывает нижняя поверхность пролета.
Решить проблему достаточно просто – нужно всего лишь осуществить армирование монолитной лестницы, внедрив в полость бетонной конструкции каркас из арматуры.
Наличие каркаса нивелирует основные напряжения, сделает бетон куда более прочным, позволит ему взаимодействовать с нагрузками на изгиб без каких-либо разрушений, и все это, за счет наличия в нем арматуры.
к меню
Рабочие нагрузки
Первое, что нужно рассмотреть при определении рабочих нагрузок – это схема и чертеж лестницы.
Благодаря им можно осуществить точный расчет нагрузок. А расчет нагрузок – один из самых важных моментов при проектировании.
В отличие от стандартных бетонных конструкций, как то: колонн, стен или балок, стяжки пола, лестница работает больше на изгиб, но работает она неравномерно.
Схема стандартного лестничного марша такова, что установлен он в диагональном положении. На марш действует сила его собственного веса, давящая на него неравномерно.
В нижней зоне воздействие будет сильнее, так как чем ниже находится точка, тем большее давление она испытывает от находящегося выше нее массива.
Верхняя же зона со ступенями, давления вообще почти не испытывает, о чем свидетельствует формула расчета в теоретической механике.
Основная точка приложения веса – немного ниже центра марша, смещенная к задней его части, то есть дальше от ступеней.
Соединение каркасов лестницы
В то же время не будем забывать и про лестничные площадки. Чертеж любой лестницы, как правило, без них не обходится. Не обойдется и расчет, тем более что наличие площадки, да еще и опирающейся на другие конструкции, оказывает свое влияние.
Площадка соединяется с маршем посредством довольно тонкого соединения. В монолитных конструкциях это соединение вообще отсутствует, так как площадка заливается с маршем одновременно.
data-ad-client=»ca-pub-8514915293567855″
data-ad-slot=»1955705077″>
Проблема с площадкой в том, что размещена она под другим углом от угла размещения марша, да еще и опирается на другую конструкцию, часто, служа своеобразным поддерживающим элементом.
В итоге верхняя часть лестницы подвергается сильным внешним воздействиям, а особенно сильны они в точке соприкосновения марша и площадки. Именно эта верхняя ступень в первую очередь подвержена растрескиванию и последующему лавинообразному разрушению.
к меню
Блок: 2/3 | Кол-во символов: 3506
Источник: https://armaturniy.ru/armirovanie/lestnicy.html
Конструкция, типы, достоинства и недостатки лестницы из арматуры и бетона
Цельная лестница из бетона, укрепленного арматурной решеткой, представляет собой массивную конструкцию с продолжительным периодом эксплуатации.
Для изготовления используются следующие материалы:
- марочный бетон. Он изготавливается по стандартной рецептуре из портландцемента марки М400, перемешанного с песком, щебнем и водой;
- стальные стержни класса А-III с рифленым профилем. Арматура в лестнице демпфирует действующие нагрузки при условии правильной вязки каркаса.
Остановимся на разновидностях монолитных лестниц.
Сооружаются следующие типы лестничных конструкций:
Бетонная лестница изготавливается достаточно легко
- одномаршевые. Они представляют собой отдельную железобетонную секцию без дополнительной площадки;
- двухмаршевые. Особенности двухмаршевых лестниц состоят в объединении общим силовым каркасом двух маршей с межэтажной площадкой;
- радиусные. Лестница отличается спиралеобразной конфигурацией межэтажного пролета и оригинальным дизайном.
Монолитные лестницы характеризуются комплексом серьезных преимуществ по сравнению с лестничными конструкциями из стали и древесины.
Главные преимущества железобетонных лестниц:
- долговечность конструкции. Благодаря повышенному запасу прочности и надежности железобетона, значительно повышается ресурс эксплуатации. При этом практически отпадает необходимость выполнения ремонтных мероприятий, за исключением периодического обновления декоративной облицовки.
Железобетонный марш объединяет основу строения с перекрывающими панелями, усиливая коробку здания; - облегчение и ускорение работ по строительству здания. Благодаря тому, что формирование железобетонного пролета осуществляется на начальном этапе постройки, упрощается доставка строительных материалов на рабочий участок. Это позволяет облегчить технологию работ и сократить строительный цикл;
- возможность реализации оригинальных дизайнерских идей и замыслов архитекторов. Принцип изготовления и армирования бетонных лестниц позволяет создавать как обычные лестничные конструкции, так и нестандартные лестницы спирального типа. Технология позволяет реализовать замыслы клиента и обеспечить привлекательный внешний вид.
Преимуществом железобетонных лестниц является долговечность конструкции
Среди дополнительных достоинств необходимо отметить:
- безопасность использования. Благодаря повышенной прочности марша, в результате усиления снижается вероятность травмирования;
- стойкость к поглощению влаги.
Пониженная гигроскопичность железобетонных конструкций обусловлена особенностями структуры бетонного массива; - устойчивость к температурным скачкам. Монолит, укрепленный арматурной решеткой, не растрескивается при колебаниях температуры;
- пожарную безопасность. Железобетон устойчив к воздействию высоких температур, что гарантирует огнестойкость конструкции;
- бесшумность. При передвижении по лестнице не возникают посторонние звуки, создающие неудобства при постоянном использовании;
- увеличенную грузоподъемность. Повышенный запас прочности обеспечивает целостность железобетона при воздействии нагрузок.
Застройщиков привлекает уменьшенный уровень эксплуатационных затрат, отсутствие необходимости в периодическом ремонте, а также возможность дизайнерского оформления с помощью различных отделочных материалов.
Одновременно с комплексом преимуществ имеются определенные минусы:
- повышенная трудоемкость работ по изготовлению;
- необходимость применения грузоподъемной техники для монтажа;
- увеличенная масса конструкции, нагружающая стены и перекрытия;
- потребность в дополнительной отделке для придания товарного вида.

Несмотря на ряд недостатков, железобетонные лестницы востребованы при строительстве зданий различного назначения.
При строительстве зданий различного назначения железобетонные лестницы очень востребованы
Блок: 3/9 | Кол-во символов: 3798
Источник: https://pobetony.expert/armirovanie/kak-armirovat-lestnicu
Бетонирование на лестничной площадке
Все этажи соединяются между собой монолитными железобетонными лестничными конструкциями, которые можно выполнить самостоятельно. Относительно несложная технология потребует только четкого следования инструкции и наличия элементарных знаний в строительстве.
Лестничная площадка
К преимуществам именно такого вида лестничных конструкций можно отнести:
- Возможность покраски.
- Отсутствие скрипа, как в случае с древесиной.
- Возможность выдерживать громадные нагрузки.
Среди недостатков можно выделить:
- Большую массивность.
- Значительный расход материалов и средств на возведение.

Армирование лестничной площадки должно проходить с усиленной арматурой, которую необходимо предварительно грамотно рассчитать и разметить.
Армирование лестницы с площадками
Для выполнения работ на лестничной площадке, необходимо выполнить в стене штробу, для опирания, рекомендуется выбрать трехсторонний вариант.
Среди необходимых инструментов, стоит заранее подготовить:
- Ножовку по металлу;
- Кусачки;
- Шуруповерт;
- Лист для замеса бетона;
- Глубинный вибратор;
- Уровень, отвес.
Отвес
Для начала необходимо подготовить арматуру:
Опалубку можно будет ликвидировать только спустя 3 недели, для того чтобы конструкция набрала нужную прочность.
- Далее можно приступать к связке каркаса, специальными фиксаторами или пластиковыми хомутами.
- Опалубку изготавливают исключительно после того, как будет доделан весь каркас полностью.
- Выполнить работы по заливке бетона.

Заливку бетона нужно проводить мгновенно «без перекуров».
Заливка лестницы бетоном
Для того чтобы кромки армированных конструкций прослужили долгое время необходимо перед процессом бетонирования закрыть ступени металлическим уголком.
Схема армирования монолитной лестницы из бетона, как армировать бетонные лестничные марши – чертежи, технология армирования ступеней, вес, узел, элементы маршей dwg, длина серии, бетонирование на лестничной площадке – фото
Блок: 3/3 | Кол-во символов: 2253
Источник: http://lestnicypro.ru/lestnicy/svoimi-rukami/armirovanie-monolitnoy-konstrukcii/
Рекомендации по проектированию и разработке документации
В зависимости от особенностей проекта каждая лестничная конструкция отличается размерами, углом наклона, количеством ступенек и формой. Разрабатывая чертеж, обеспечьте соблюдение следующих характеристик:
- угол наклона не должен превышать 35 градусов;
- оптимальная высота ступени – 150-180 мм;
- ширина лестничного прохода – не меньше 1 метра;
- размер опорной части ступени – 280-300 мм.

Осуществляя проектирование, выполняйте все расчёты и эскизы на бумаге, учитывайте чистовые размеры помещения, в том числе высоту полов с учетом финишной отделки.
Для того чтобы понять принцип армирования бетонной лестницы, необходимо рассмотреть силы, влияющие на ступени простой одномаршевой конструкции
Разрабатывая различные лестницы из бетона, помните, что выполнение работ по их возведению включает следующие стадии:
- Монтаж опалубки.
- Армирование лестничного марша.
- Бетонирование.
Рассмотрим детально эти три главных этапа.
Блок: 3/7 | Кол-во символов: 969
Источник: https://pobetony.ru/armirovanie/lestnichnogo-marsha-chertezh/
Дополнительные рекомендации
Для того чтобы кромки ступеней не разрушались, перед проведением бетонирования их закрывают металлическим уголком. Чтобы бетон лучше сцеплялся с металлом, к уголкам приваривают «усы». Заливая раствор, они углубляются в толщу и удерживают неподвижно уголки на одном месте.
Блок: 4/4 | Кол-во символов: 321
Источник: http://o-cemente.info/armirovanie-betona/armirovanie-lestnits-i-ploshhadok.html
Армирование лестничного марша – главные правила по усилению
Собираясь выполнять армирование монолитной лестницы, соблюдайте основные требования по выполнению работ:
- произведите необходимые прочностные расчеты;
- определите схему армирования марша;
- изучите требования рабочей документации;
- используйте арматурные стержни диаметром 8-10 мм;
- применяйте вязальную проволоку для сборки каркаса;
- установите под сетку фиксирующие подставки;
- обеспечьте защитный слой 2-2,5 см после укладки каркаса;
- выдерживайте размер сетчатой ячейки 10х10 см;
- предусмотрите выпуски по 30-40 мм для фиксации марша;
- соблюдайте расстояние между поперечной арматурой 350-400 мм.
Выполнение указанных рекомендаций обеспечит надежность монолитной лестницы.
Блок: 4/9 | Кол-во символов: 726
Источник: https://pobetony.expert/armirovanie/kak-armirovat-lestnicu
Работы по армированию
Если опалубка собрана, можно приступать к армированию конструкции. Комплекс работ по усилению лестничного марша предусматривает следующие стадии работ:
- подготовку необходимых материалов, инструмента;
- разработку схемы усиления;
- сборку силового каркаса.
Для выполнения работ понадобятся:
- Строительная арматура диаметром 10-14 мм.
- Проволока для вязания каркасов усиления.
- Четырехмиллиметровая сетка для усиления ступенек с ячейкой 10х10 см.
- Хомуты из пластика для фиксации.
- Электрошуруповерт.
- Сварочное оборудование.
Если всё подготовлено, начинайте работы по сборке каркаса из арматуры.
Схему армирования составляйте с учетом рекомендаций, приведённых в справочных источниках. Строительные нормы регламентируют, какая будет применяться арматура в каркасе усиления в зависимости от протяженности пролета, высоты лестничной плиты и интервала между прутками.
Проблема бетонных конструкций без арматурного каркаса известна всем – хрупкость
Например, при длине лестничного пролета 3 метра, диаметре арматуры 10 миллиметров и высоте плиты 15 сантиметров, расстояние между прутками должно быть 17 сантиметров. Руководствуясь табличными данными, выбрать параметры продольного усиления несложно.
Для понимания процесса армирования, рассмотрим усилия, возникающие в обычной одномаршевой лестнице, связанные с силой тяжести. Ее величина зависит от массы конструкции, передвигающихся по ней людей, а также веса переносимых предметов.
Под воздействием усилий, нижняя часть бетонного монолита растягивается, а верхняя – стремится сжаться. Бетон не отличается высокой прочностью на растяжение. Именно поэтому усиление лестничной конструкции производится с использованием стальной арматуры. Для одномаршевых решений применяется проверенная на практике схема усиления, при которой стальной каркас устанавливается в нижней плоскости опалубки.
Для более нагруженных двухмаршевых схем с монолитной площадкой каркас возводится в двух уровнях конструкции – верхнем и нижнем.
Производя армирование, выполняйте следующие правила:
- соблюдайте интервал между стальными прутками усиления в соответствии с рекомендациями;
- укладываете прутки каркаса на основание опалубки, согласно эскизам, формируя ячейки необходимых размеров;
- производите фиксацию стержней для сохранения правильного положения каркаса с использованием вязальной проволоки или сварочного аппарата. Применяйте специальный крючок, установленный в шуруповерт для вязки элементов каркаса, если не используется сварка;
- используйте пластиковые элементы крепления для фиксации стержней арматуры;
- обеспечьте интервал от основания опалубки до прутков – 3 см, используя фиксаторы, установленные в местах соединения прутков;
- соблюдайте величину нахлеста арматуры не меньше 50 диаметра прутков при объединении в каркас силовых элементов;
- зафиксируйте к стене каркас усиления, что позволит добиться увеличения прочности.

Блок: 5/7 | Кол-во символов: 2873
Источник: https://pobetony.ru/armirovanie/lestnichnogo-marsha-chertezh/
Особенности укрепления одномаршевой монолитной лестницы
Одномаршевый вариант лестничной конструкции – наиболее простой. Основные усилия воспринимает нижняя плоскость, поэтому усиливать такой марш следует в нижней части.
При продольном армировании одномаршевой лестницы учитываются следующие моменты:
- размер пролета;
- расстояние между стержнями;
- толщина лестничной плиты;
- сечение арматуры.
Взаимосвязь указанных показателей несложно проследить из справочных таблиц. При величине пролета до 2 м интервал между стержнями составляет 0,19 м. С возрастанием длины лестничной конструкции снижается интервал между стержнями и увеличивается диаметр прутков.
Армирование лестницы-схема
Блок: 6/9 | Кол-во символов: 676
Источник: https://pobetony.expert/armirovanie/kak-armirovat-lestnicu
Заливка бетоном
К выполнению этапа приступают, когда арматурный каркас установлен.
Для заливки подойдет, как заказной бетон, так и приготовленный самостоятельно, непосредственно на месте работ. Производя заливку, придерживайтесь следующих правил:
- Формируйте бетонную поверхность лестницы одновременно с заливкой плиты перекрытия.
- Работы выполняйте в один прием, начиная с нижней части и постепенно передвигаясь вверх.
- Обеспечьте густую консистенцию бетона, он не должен «сползать».
- Уплотняйте массив, применяя вибратор.
- Спланируйте поверхность ступеней, используя мастерок.
- Увлажняйте после заливки поверхность.
- Демонтируйте опалубку не раньше, чем через полмесяца после бетонирования.
Блок: 6/7 | Кол-во символов: 686
Источник: https://pobetony.ru/armirovanie/lestnichnogo-marsha-chertezh/
Схема армирования монолитной лестницы двухмаршевого типа
Усиление двухмаршевой лестницы осуществляется согласно предварительно разработанной схеме и предусматривает:
- армирование верхней и нижней части конструкции;
- размещение арматурных стержней в лестничной площадке;
- двойное усиление лестничного марша.

Воздействию растягивающих нагрузок подвержены верхняя и нижняя плоскость, которые следует дополнительно армировать.
Блок: 7/9 | Кол-во символов: 422
Источник: https://pobetony.expert/armirovanie/kak-armirovat-lestnicu
Итоги
Производя армирование с учетом технических требований, вы обеспечите прочность лестничного марша, длительный ресурс эксплуатации.
Блок: 7/7 | Кол-во символов: 191
Источник: https://pobetony.ru/armirovanie/lestnichnogo-marsha-chertezh/
Нестандартные лестницы – способы повышения прочности конструкции
Обеспечение повышенной прочности радиусных лестниц осуществляется по стандартной методике:
- Выполняются прочностные расчеты с помощью специальных программ.
- Разрабатывается рабочий чертеж.
- Осуществляется усиление проблемных участков.
youtube.com/embed/_6KjxlFykDI?feature=oembed»/>
Технология армирования нестандартных лестниц аналогична способам усиления одномаршевых и двухмаршевых конструкций.
Блок: 8/9 | Кол-во символов: 413
Источник: https://pobetony.expert/armirovanie/kak-armirovat-lestnicu
Заключение
Армирование лестничного марша позволяет повысить прочность конструкции и обеспечить продолжительный ресурс использования. Следует доверить выполнение расчетов квалифицированным специалистам и выполнять работы согласно технологии.
Блок: 9/9 | Кол-во символов: 241
Источник: https://pobetony.expert/armirovanie/kak-armirovat-lestnicu
Количество использованных доноров: 5
Информация по каждому донору:
- http://o-cemente.info/armirovanie-betona/armirovanie-lestnits-i-ploshhadok.html: использовано 2 блоков из 4, кол-во символов 821 (3%)
- http://lestnicypro.ru/lestnicy/svoimi-rukami/armirovanie-monolitnoy-konstrukcii/: использовано 3 блоков из 3, кол-во символов 10746 (39%)
- https://pobetony.
expert/armirovanie/kak-armirovat-lestnicu: использовано 7 блоков из 9, кол-во символов 7500 (27%) - https://pobetony.ru/armirovanie/lestnichnogo-marsha-chertezh/: использовано 4 блоков из 7, кол-во символов 4719 (17%)
- https://armaturniy.ru/armirovanie/lestnicy.html: использовано 1 блоков из 3, кол-во символов 3506 (13%)
Армирование бетонной лестницы
Особенности армирования монолитной лестницы
Несмотря на высокий уровень популярности деревянных или железных лестниц, при строительстве частных домов нередко используются и монолитные конструкции, которые идеально подходят для соединения нескольких этажей.
Схема армирования лестничного марша.
Лестницы такого вида имеют множество преимуществ. Их не только легко изготовить, но и использоваться они будут достаточно долгое время, которое не сравнить с временем использования лестниц других видов.
Монолитная лестница из бетона массивная и материалоемкая, но при этом надежная и прочная.
А при правильном подходе она может стать настоящим украшением дома.
Правила армирования
Возведение любого сооружения из бетона требует проведения трех основных этапов:
- сборка опалубки;
- устройство арматурного каркаса;
- заливка бетона.
Не является исключением и строительство бетонной лестницы. При этом на сложность работ в основном влияет конструкция будущего сооружения, его форма и размеры.
Опалубку специалисты считают самым сложным этапом возведения монолитных лестниц. Так, к примеру, бетонная конструкция спиралевидной формы потребует создания криволинейной опалубки, для чего необходимо большое количество щитов неправильной формы и опор, поддерживающих эти щиты. Кроме того, для возведения лестницы подобного типа будет необходим сложный арматурный каркас, способный придать сооружению требуемую жесткость.
Если говорить о лестницах простой формы, то обустройство каркаса из арматуры в этом случае является достаточно легким делом, с которым может справиться даже человек, никогда до этого не занимавшийся строительством.
Для того чтобы понять принцип армирования бетонной лестницы, необходимо рассмотреть силы, влияющие на ступени простой одномаршевой конструкции.
Схема армирования лестницы.
Речь идет о силе тяжести. Она возникает под воздействием веса самого сооружения, людей, находящихся на нем, имущества, переносимого не нему. Влияние силы тяжести приводит к тому, что в нижней части конструкции бетон растягивается, а в верхней сжимается. Как известно, бетон крайне непрочен при растяжении, поэтому, чтобы лестница смогла выдержать воздействие силы тяжести, ей необходимо армирование. При строительстве одномаршевых лестниц в частных домах можно использовать оптимальную схему армирования, где арматурный каркас возводится только в нижней части конструкции.
Читайте также: Соотношение бетона и арматурыНередко используется способ установки каркаса, при котором в верхнюю часть конструкции закладывается стальная сетка с размерами ячеек 100х100х5. Эта сетка не увеличивает жесткость сооружения и используется только для защиты ступеней от случайных сколов при ударах.
Определить параметры продольного армирования одномаршевой монолитной лестницы можно по таблице, приведенной ниже:
| Длина лестничного пролета, м | Расстояние между прутками, см | Высота плиты лестницы, см | Диаметр арматуры, мм |
| 2 | 19 | 10 | 10 |
| 3 | 17 | 15 | 10 |
| 4 | 15 | 20 | 12 |
| 4,5 | 13 | 22 | 12 |
| 2 | 12 | 25 | 12 |
| 5,5 | 11 | 27 | 14 |
| 6 | 10 | 30 | 14 |
Если процессу армирования подлежит двухмаршевая лестница, имеющая монолитную площадку, то каркас должен возводиться как в нижней, так и в верхней части конструкции, при этом захватывая площадки. Параметры верхнего армирования выбираются по аналогии с нижним.
Проведение установки
Для того чтобы осуществить армирование монолитной лестницы, потребуются следующие материалы:
Схема армирования бетонной лестницы.
- Строительная арматура, диаметр которой зависит от параметров сооружаемой конструкции.
- Отожженная вязальная проволока (или электротехнические пластиковые хомуты).
- Пластиковые фиксаторы.
- Сетка с диаметром 4 мм для армирования ступеней.
Также необходимо подготовить следующие строительные инструменты:
- Сварочный аппарат.
- Электрический шуруповерт.
- Крючок для шуруповерта.
Когда материалы и инструменты подготовлены, можно приступать к возведению каркаса бетонной лестницы.
Изначально на основании приведенной таблицы рекомендуется составить схему армирования, в которой будут соблюдаться необходимые расстояния между прутками арматуры и учитываться особенности конструкции. Стержни каркаса должны укладываться на основание в соответствии со схемой, составляя сетку с установленными размерами ячеек.
Для того чтобы арматура сохраняла правильное положение, все стержни должны быть надежно скреплены между собой.
Этого можно достичь двумя способами – сваркой (при наличии сварочного аппарата) или вязкой.
Существует мнение, что использование сварки снижает прочность арматурного каркаса. Это относится только к закаленной высокопрочной арматуре, которая после сварочных работ теряет многие свои характеристики. Для обычной же строительной арматуры сварка не страшна.
Если при проведении строительных работ сварочный аппарат не используется, стержни скрепляются при помощи отожженной вязальной проволоки. Для этого в электрический шуруповерт закрепляется крючок, которым и производится вязка.
В последнее время на строительном рынке появились электротехнические пластиковые хомуты, которые также могут быть использованы для скрепления стрежней арматуры друг с другом.
Схема опалубки ступеней.
При укладке арматуры на основание опалубки между ними должно сохраняться расстояние в 3 см. Выдержать установленный параметр позволят пластиковые фиксаторы, имеющие форму «стула».
Фиксаторы подкладываются под стержни в местах их связывания или сваривания. Благодаря этому полученная сетка из арматурных прутьев не имеет перекосов и неровностей.
При связывании силовой арматуры, состоящей из кусков, нахлест одного стержня на другой должен составлять не менее 50 диаметров используемой арматуры.
После установки базового каркаса к нему можно прикрепить сетку, предназначенную для придания жесткости ступеням будущей конструкции.
Если каркас устанавливается для бетонной двухмаршевой лестницы или лестницы более сложной формы, их площадки необходимо прочно закрепить в стене.
Особенности двухмаршевых лестниц
При этом армирование осуществляется следующим образом.
В стенах дома на уровне лестничных площадок формируются углубления размером 20х20 см. В углубления заводятся концы прутков арматуры, из которых составляются так называемые железобетонные венцы, удерживающие тяжелые лестничные конструкции.
В бетонной монолитной стене для формирования венцов закладываются пенопластовые или деревянные блоки нужного размера. В домах, где стены возводятся по технологии «термодом», лестничные площадки и марши обычно армируются одновременно с возведением стен.
Когда арматурный каркас лестницы возведен, можно приступать к следующему этапу строительства – бетонированию.
Page 2
- Армирование
- Виды
- Изготовление
- Инструменты
- Монтаж
- Расчёт
- Ремонт
1pobetonu.ru
Схема армирования монолитной лестницы из бетона
Лестница является достаточно сложной конструкцией, но помимо того, что она должна привнести в интерьер респектабельный, роскошный стиль, лестница должна отвечать прочностным характеристикам и быть надежной.
Поворотная лестница из бетона
Армирование монолитной лестницы из бетона. Фото
На сегодняшний день быстро и стремительно растет популярность лестничных конструкций, но и, тем не менее, им пока не удалось вытеснить монолитные лестницы.
Благодаря их надежности, монолитные лестницы всегда будут актуальны. За счет грамотного армирования лестниц обеспечивается их прочность, процесс армирования считается самым важным этапом, который гарантирует максимальный уровень износостойкости.
Монолитная лестница из бетона
Преимущества монолитных лестниц
Применение монолитных конструкций, происходит за счет явных преимуществ, которыми они обладают.
Достоинства лестниц из монолитного бетона:
- Прочность и долговечность;
- Безопасность использования;
- Пожаробезопасность;
- Доступна стоимость;
- Экологичность.
К несомненным преимуществам можно отнести тот факт, что монолитные лестницы не требуют постоянного ухода и обслуживания, на протяжении долгого периода времени.
Благодаря простоте установки и явным преимуществом, в сравнении с аналоговыми лестничными конструкциями, монолитные лестницы применяются для обустройства помещений жилых зданий и ландшафтных территорий.
Монолитная лестница в ландшафтном дизайне
Исходя из назначения лестницы, места установки (последующего использования) и уровня нагрузки, проходимости, необходимо правильно подобрать используемую марку бетона:
- Внутри помещения – пористый, легкий бетон.
Монолитная лестница внутри помещения
- Наружные лестницы – тяжелый, конструктивный материал.
Наружная монолитная лестница
Несмотря на стереотипное мнение, монолитные конструкции позволяют воплотить в реальность самые смелые и реальные идеи: от самых простых, до сложных конфигураций.
Схема армирования
Выбирая схему и вид армирования лестничных конструкций, стоит обратить внимание на стрежневую арматуру, которая идеально подходит для армирования монолитных лестниц. Но стержневая арматура применяется только для выполнения несложных по форме конструкций.
Схема армирования лестничного марша
Для того, чтобы выполнить армирование самостоятельно, стоит прислушаться к советам специалистов, при условии отсутствия знаний и опыта.
Армирование одномаршевой лестницы
Схема армирования простой одномаршевой лестницы достаточно проста, так как выполняется без монолитной площадки или забежных ступеней.
Армирование одномаршевой лестницы
Армирование производится только в нижней части плиты, в местах скопления усилий растяжения.
Для увеличения жесткости и прочности используется специальная армирующая сетка 100х100 мм, которая также будет защищать ступени от сколов и поломок.
Армирующая сетка 100х100 мм
Армирование двухмаршевой лестницы
В сравнении с одномаршевой лестнице, армирование двухмаршевой конструкции значительно сложнее. Это связано с тем, что возникают большие растягивающие усилия в верхних частях монолитной лестницы, обусловленные собственным и полезным весом конструкции.
За счет этого двухмаршевые монолитные конструкции рекомендуется армировать, как сверху, так и снизу.
Армирование двухмаршевой лестницы
Для лестниц с большой проходимостью, арматура верхней части лестницы должна быть продолжена в самой лестнице.
Верхняя схема армирования выбирается в точности по аналогии с нижней часть монолитной конструкции.
Двухмаршевые лестницы должны быть надежно установлены к толстой и прочной стене, выполненной из бетона, блоков или кирпича.
Если монолитная лестница планируется с забежными ступенями, схема армирования достаточно усложняется, для расчета которых можно воспользоваться специальными компьютерными программами.
Монтаж опалубки лестницы с забежными ступенями
Для большей прочности и надежности арматурного каркаса, непосредственно сами пруты необходимо скрепить, для этого используют:
При отсутствии возможности воспользоваться сварочным аппаратом арматуру можно попросту связать отожженной проволокой. В последнее время стало легко и просто для связки армирующих элементов использовать стандартные пластиковые хомуты.
Вязка с помощью пластиковых хомутов
Инструкция
Непосредственно перед началом процесс армирования, необходимо подготовить материалы, которые предусмотрены обязательной технологией:
- Чертежи будущей постройки, выполненные по ГОСТ с указанием необходимых размеров.
Чертеж монолитной лестницы
- Строительная арматура, выбранная по расчету нагрузок.
- Пластиковые хомуты.
- Фиксаторы.
- Сетка армирующая.
- Шуруповерт.
- Сварочный аппарат.
- Крючок для шуруповерта.
Исходя из чертежей и проведенных расчетов, рекомендуется составить схематичный план работ, который в последствие значительно облегчит процесс, в котором указать расстояние между арматурой, и учесть индивидуальные нюансы задуманной конструкции.
Схематический план монтажа монолитной лестницы
В точности повторяя схему уложить стержни арматуры, таким образом, чтобы была одинаковая сетка с ячейками.
Закрепить хомутами и фиксаторами стержни арматуры, для того чтобы избежать смещения.
Чертежи
Все работы по армированию монолитных лестничных конструкций, необходимо проводить в соответствии с чертежами и строительной документаций, обеспечивающей качество и надежность.
Чертеж армирования лестничных маршей включает в себя:
- Ступени, выбирая размер от 800 мм х до 170 мм (длина и ширина соответственно).
- Ступенька должна соответствовать ширине шага + 100 мм.
Расчет шага ступени
- Высоту лестницы, учитывая мощность верхнего блока перекрытия.
- Угол наклона выбирается не более 45 градусов, рекомендуется остановиться на 30 градусах.
Углы наклона лестничных маршей
- Монолитная лестница должна быть по ширине не менее 1200 мм, и при этом с шириной маршей не менее 100 мм.
Рекомендуемая ширина лестничных маршей
Разработанный чертеж должен включать в себя габариты ограждений и специальных дополнительных деталей.
Габариты ограждения лестницы
В случае, если вес лестницы превышает 2 тонны, необходимо выполнить заливку основания, используя железобетонные блоки и фундамент.
При расчете чертежа, необходимо продумать и учесть вид отделки, так как, к примеру, мрамор может в значительной степени увеличить итоговый вес конструкции.
Лестница из мрамора
Армирование лестничных маршей. Советы и рекомендации
Армирование лестничных маршей требует внимательности и кропотливости и некоторых знаний, отсутствие которых можно заменить изучением пошаговых инструкции и рекомендаций специалистов.
Для новичков-строителей оптимальным вариантом считается использование армированной сетки, со стандартным размером ячейки 100х100х5 мм.
Для того чтобы выполнить прочную и надежную лестничную конструкцию самостоятельно, необходимо уделить особое внимание выбору диаметра арматуры.
Диаметры арматуры
Для стандартных, небольших монолитных лестниц подходят:
- Ø14 мм А 400 С;
- Ø8 мм А 400 С.
Для площадок и лестничных маршей применяют двойную сетку и арматуру Ø14 мм, уложенную на расстоянии 150 мм.
Для выполнения соединения между соткой необходимо использовать специальные крючки – 120 мм, которые расположить «шахматкой» вдоль арматуры, через один стержень.
Технология армирования элементов маршей dwg, ступеней
Проводя начальный этап подготовительных работ по обустройству и возведению монолитной лестничной конструкции, переходя к армированию, можно сделать чертеж dwg, который характеризуется, как файл с расширением drаwing. Чертеж можно выполнить в специализированной конструкторской программе AutoCad, которая позволяет создавать и хранить картинки в форматах 2d и 3d, что значительно упростит процесс подготовки и непосредственно строительства монолитной лестницы.
Монолитная лестница в программе Autocad
Специалисты и строители представители компаний застройщиков, уже более 3х десятилетий используют такую программу, которая полотно вошла в «строительную» жизнь.
Преимущество использования такой программы в том, что ее простота позволяет самостоятельно выполнить армирование на чертеже dwg, по технологии AutoCad. Исключения составляют только винтовые конструкции, для которых понадобится опыт и профильные знания. Программа позволяет не только просчитать армировочную сетку, но и выполнить автоматический расчет веса лестницы и просчет размеров основных конструкционных узлов.
Предварительно в программе AutoCad, можно применить любой желаемые вид отделки, к примеру, натуральный камень, дерево или облицовочную плитку.
Современные технологии, позволяют на 30% сократить время подготовки к возведению монолитной конструкции и точно провести все вычисления.
Бетонирование на лестничной площадке
Все этажи соединяются между собой монолитными железобетонными лестничными конструкциями, которые можно выполнить самостоятельно. Относительно несложная технология потребует только четкого следования инструкции и наличия элементарных знаний в строительстве.
Лестничная площадка
К преимуществам именно такого вида лестничных конструкций можно отнести:
- Возможность покраски.
- Отсутствие скрипа, как в случае с древесиной.
- Возможность выдерживать громадные нагрузки.
Среди недостатков можно выделить:
- Большую массивность.

- Значительный расход материалов и средств на возведение.
Армирование лестничной площадки должно проходить с усиленной арматурой, которую необходимо предварительно грамотно рассчитать и разметить.
Армирование лестницы с площадками
Для выполнения работ на лестничной площадке, необходимо выполнить в стене штробу, для опирания, рекомендуется выбрать трехсторонний вариант.
Среди необходимых инструментов, стоит заранее подготовить:
- Ножовку по металлу;
- Кусачки;
- Шуруповерт;
- Лист для замеса бетона;
- Глубинный вибратор;
- Уровень, отвес.
Отвес
Для начала необходимо подготовить арматуру:
Опалубку можно будет ликвидировать только спустя 3 недели, для того чтобы конструкция набрала нужную прочность.
- Далее можно приступать к связке каркаса, специальными фиксаторами или пластиковыми хомутами.
- Опалубку изготавливают исключительно после того, как будет доделан весь каркас полностью.

- Выполнить работы по заливке бетона.
Заливку бетона нужно проводить мгновенно «без перекуров».
Заливка лестницы бетоном
Для того чтобы кромки армированных конструкций прослужили долгое время необходимо перед процессом бетонирования закрыть ступени металлическим уголком.
Схема армирования монолитной лестницы из бетона, как армировать бетонные лестничные марши – чертежи, технология армирования ступеней, вес, узел, элементы маршей dwg, длина серии, бетонирование на лестничной площадке – фото
lestnicypro.ru
Армирование монолитной лестницы: основные правила
Монолитная лестница – это массивное и долговечное сооружение из бетона. Лестничный марш, выполненный из бетона, имеет такие же риски разрушения, как любая другая конструкция из бетона. Прочность бетонной конструкции обеспечивается предварительным созданием ее скелета из металлической арматуры.
Существуют 3 вида монолитных лестниц, отличающиеся друг от друга схемой их армирования:
- прямые одномаршевые лестницы без лестничной площадки;
Лестница одномаршевая
- прямые двухмаршевые лестницы с площадкой;
Лестница двухмаршевая
- спиральные монолитные лестницы.

Лестница спиральная
Особенности армирования одномаршевой монолитной лестницы без площадки
Армирование монолитной лестницы, состоящей из одного только марша, будет самым простым. Основная нагрузка в такой конструкции будет в нижней ее части, поэтому армировать такую лестницу достаточно только по нижнему краю. Силовая арматура, расположенная вдоль лестничного марша, находится в 3-х см от нижней поверхности лестничной плиты.
Расчетная таблица
При длине лестничного марша 2м, расстояние между силовыми прутами составляет 19 см. При увеличении длины марша расстояние между прутками уменьшается, как показано в табл.1.
Поперечные прутки располагаются с шагом 20 см.
Обозначения
Армирование двухмаршевой лестницы
Армирование лестничного марша в этом случае переходит в армирование площадки. Так как силы растяжения будут действовать на верхнюю поверхность, она армируется как по нижнему, так и по верхнему краю. Верхняя арматура площадки продолжается в лестничной плите.
Сам лестничный марш также имеет двойное армирование.
Для надежного удерживания площадки, на уровне ее расположения в стенах должны быть выполнены ниши глубиной 20см. При формировании арматурного скелета, прутки заводятся в эти ниши, в результате чего площадка после заливки бетона получится «вставленной» в стену. Такие усиленные торцы называют бетонными венцами.
«Вставка» армирования
Армирование нестандартных монолитных лестниц
Армирование винтовых монолитных лестниц – процесс трудоемкий и требует расчета прочности для каждого случая отдельно. Схема армирования в этом случае рассчитывается с применением специальных программ, созданных для проектирования железобетонных конструкций. Поэтому расчет схемы армирования в таком случае следует доверить профессионалу.
Важно! Для предотвращения крошения верхнего слоя ступеней не обязательно усиливать их тонкой армирующей сеткой. Для этого достаточно использовать качественный цемент для приготовления бетона.
Формирование армирующего скелета
Армирование начинается после сборки боковой опалубки лестницы.
Сборка опалубки для ступеней проводится после укладки арматуры, которая должна располагаться в соответствии с составленной заранее схемой, образуя сетку с одинаковыми ячейками.
Для армирования бетона используют простую строительную арматуру разной толщины, которая выбирается в соответствии с таблицей соотношения длины пролета и размера самой арматуры. Чтобы металлические прутки сохраняли свое местоположение в толще конструкции после заливки бетона, их скрепляют между собой.
Для скрепления обычной строительной арматуры подойдет как сварка, так и связывание прутов между собой специальной вязальной проволокой. Из-за особой термической обработки такая проволока эластичная и не ломкая.
Для быстроты и удобства вязки используют крючок, вставленный в шуруповерт.
Важно! Сварка используется только при соединении прутков, выполненных из обыкновенной некаленой строительной арматуры. Если использовать каленую, то ее прочность в месте сварки уменьшается, из-за чего появятся слабые места в конструкции.
Необходимо соблюдать расстояние в 3см между прутками арматуры и поверхностью бетона. Для этих целей используют специальные фиксаторы, которые подкладывают под них в местах пересечения прутков.
Фиксаторы
Обычно армирующая конструкция не состоит только из цельных прутков. Состыковка прутьев арматуры также производится при помощи сварки или вязки. В случае сварки с одной стороны нахлест концов прутков друг на друга должен быть не меньше 12-ти диаметров соединяемой арматуры, а в случае связки – не менее 50-ти.
При скреплении арматурных сеток лестницы и площадки нужно использовать проволоку диаметром 6 мм.
Важно! Стыки силовой арматуры следует чередовать, не допуская совпадения стыков двух или более арматур в одном месте!
Бетонная лестница с грамотным армированием является долговечным сооружением, которое после стильной отделки придаст любому строению солидный и фундаментальный вид.
lestnitsahouse.ru
Армирование лестниц и площадок
Этажи между собой соединяются монолитными лестницами, которые можно сделать своими руками.
Технология работ несложная, поэтому строитель невысокой квалификации, имеющий опыт работ с опалубкой, очень легко справится с задачей.
В зависимости от стиля интерьера, форма лестницы из бетона может быть любой: от классической до поп-арта.
Достоинствами монолитных бетонных лестниц является то, что они не скрипят, не требуют постоянной окраски и выдерживают фактически любую нагрузку.
Недостатком такой конструкции можно считать большую массивность, следствием этого является большой расход материала для ее возведения. Конструкция монолитной лестницы может быть разнообразной – от импозантной до аристократической. Отделка поручней деревом или металлом придаст оригинальности вашей работе при строительстве лестницы своими руками. Усиление конструкции выполняется стальной арматурой в ходе армирования бетонной лестницы.
Прежде чем приступать к работам по строительству лестницы, необходимо правильно рассчитать конструкцию и провести разметку. При разметке определяется удобное расположение спусков и подъемов.
К рекомендуемым стандартным размерам возводимой лестницы можно отнести, мм:
- Высота ступеней – 150;
- Ширина ступеней – 300;
- Ширина марша – 1000;
- Ширина лестничной площадки – 1100.
Обозначение на схеме: 1-продольное армирование, арматура Ø14 мм А400С; 2-фиксатор разнесение верхней и нижней сетки армирования; 3- армирование степеней сеткой из Ø4 мм Вр-I; 4- вертикальные крючки из Ø4 мм Вр-I.
При выполнении строительных работ для лестничной площадки в стене кладки оставляют штробу для опирания. Наиболее подходящим вариантом опирания на стены считается трехсторонний. Величины опирания определяют согласно материалу строительства здания. Если стена кирпичная принимается 150 мм, при использовании в строительстве газобетонных блоков опирание составляет 200 мм.
Инструменты и приспособления
Для строительных работ по армированию своими руками необходим следующий комплект инструментов:
- Болгарка или ножовка по металлу для распила арматуры;
- Приспособление для гибки арматуры;
- Инструмент для вязки стержней;
- Кусачки;
- Электролобзик или цепная пила для распила деревянных досок, фанеры, щитов опалубки;
- Шуруповерт для сборки опалубки;
- Бетономешалка для подготовки раствора;
- Глубинный вибратор;
- Измерительные приспособления (строительный уровень, отвес или невелир).

Технология армирования
Собирать опалубку нужно с помощью саморезов: не рекомендуется использовать гвозди.
Армировка предает жесткость конструкции бетонной монолитной лестницы. Средняя высота этажа загородных, частных домов составляет примерно 3 м. Для проведения армирования подготавливают расходные материалы. Вам понадобятся:
- Арматура диаметром 8 мм типа А400С;
- Арматура диаметром 14 мм типа А40С;
- Стальная проволока диаметром 4 мм.
В ходе проведения армирования лестничной площадки и маршей используют двойную сетку. При помощи специального приспособления, предназначенного для гибки арматуры, создается каркас будущей лестницы. Для продольного армирования бетонной лестницы пользуются арматурой диаметром 14 мм, а для поперечного – арматурой диаметром 8 мм. При изготовлении каркаса стараются выдерживать следующие размеры:
- На расстоянии 0,8-0,9 м от мест опирания на площадку или фундамент продольную арматуру располагают с шагом 150 мм;
- Продольные стержни лестничной площадки располагают с шагом 200 мм;
- В средней части пролета продольная арматура располагается с шагом 200 мм.

Сетки армируемой лестницы устанавливают на расстоянии друг относительно друга при помощи специальных фиксаторов. Фиксаторы изготавливают арматурой диаметром 8 мм. При этом расстояние выдерживают в пределах 200 мм для создания толщины монолитной лестницы. Ступени лестницы армируются плоской сеткой из проволоки диаметром 4 мм.
Снимать опалубку после бетонирования можно через 3-4 недели, чтобы бетон набрал 80% прочности.
При изготовлении арматурного каркаса не рекомендуется использовать сварочный аппарат, так как высокая температура при сварке меняет структуру металла. Каркас собирается путем вязки с использованием стальной проволоки диаметром 4 мм.
По окончании изготовления каркаса устанавливают опалубку. Рекомендуется применять инвентарную опалубку. Применяя такую опалубку, вы можете регулировать стойки и получить качественную конструкцию за короткий промежуток времени. Щиты опалубки изготовлены из водостойкой фанеры. При отсутствии инвентарной опалубки подберите прочный листовой материал, который можно легко уложить на деревянные бруски 140х80 мм.
Для изготовления опалубки не скупитесь на гвозди, упоры, подкосы. Если опалубка сделана аккуратно, то и полученный результат будет с минимальным количеством дефектов. В ходе возведения опалубки используйте строительный уровень и отвес. Если ступени получатся кривые, дальнейшая отделка усложнится.
Установку опалубки начинают проводить с лестничной площадки. Проверив горизонтальность конструкции, можно продолжать работы по возведению опалубки для ступеней. При опоре лестничного марша на грунт рекомендуется использовать два столбчатых фундамента.
В опалубку заливают бетон класса В20. Работы по заливке бетона необходимо проводить в один день без перерыва. Улучшить качество лестницы и ступеней, ускорить процесс бетонирования можно при помощи глубинного вибратора. По окончании заливки опалубка должна стоять неделю, если работы проводят в холодное время года, времени для выдержки выделяется больше.
http://youtu.
be/Dj0GhQsyJYo
Дополнительные рекомендации
Для того чтобы кромки ступеней не разрушались, перед проведением бетонирования их закрывают металлическим уголком. Чтобы бетон лучше сцеплялся с металлом, к уголкам приваривают «усы». Заливая раствор, они углубляются в толщу и удерживают неподвижно уголки на одном месте.
Page 2
- Армирование
- Виды
- Изготовление
- Инструменты
- Монтаж
- Расчёт
- Ремонт
1pobetonu.ru
Бетонная лестница. Чертежи опалубки и армирование монолитной лестницы
Лестница – архитектурное сооружение, служащее для перемещения между этажами. Лестница может быть как внутренняя (расположенная внутри дома), так и наружная.
Кроме этого к лестнице предъявляют такие требования как надежность, долговечность, безопасность, удобство пользования и эстетический дизайн.
Именно благодаря своим качествам долговечности и дизайна бетон получил такое широкое распространение.
Для удобства статья разбита на разделы:
- Преимущества бетонных лестниц;
- Расчеты и чертежи лестницы;
- Правильная установка опалубки, чертежи опалубки для лестницы;
- Монолитная лестница, армирование.
Преимущества бетонных лестниц
Технологическое преимущества. Бетонная лестница возводиться на этапе возведения дома, что облегчает дальнейшее строительство и поднос материалов.
Надежность при эксплуатации. Правильно армированная лестница имеет огромный срок службы и не требует ремонта. Кроме того, железобетонная лестница будет составным элементом вашего дома и надежно свяжется с фундаментом и плитой перекрытия, усилив тем самым конструкцию здания.
Эстетика и дизайн. При работе с бетоном возможно воплощение любых задумок заказчика, от обычных маршевых лестниц, до сложных винтовых. Широкий выбор материалов для отделки.
Расчеты и чертежи лестницы
Каждая лестница индивидуальна, ее размеры, форма и количество ступеней зависят от конкретного дома.
Поэтому при проектировании дома необходимо определиться с местом расположения лестницы, ее размерами и формой, чтобы понять какого размера будет проем в плите перекрытия, и где будет находиться основание лестницы. Размер лестницы напрямую зависит от угла наклона. Рекомендуемый угол для удобного подъема 25 – 35 градусов. Исходя из угла наклона лестницы, рассчитывается высота ступени от 150 до 180 мм и ее длина от 250 до 300 мм (рисунок 1). Рекомендуемая ширина лестницы, для удобного прохода одного человека, проноса вещей – не менее одного метра.
Рисунок 1 – Размеры ступеней лестницы.
При проектировании лестницы все расчеты лучше производить на бумаге, при этом хорошо, если вы сделаете рабочий чертеж конструкции. При расчетах надо учитывать высоту полов в чистоте, с учетом отделки полов и лестницы (рисунок 2, 3).
Рисунок 2 – Чертеж посадки монолитной лестницы.
Рисунок 3 – Пример посадки первой ступени лестницы с учетом последующей отделки.
Армирование монолитной лестницы
Армирование лестницы обычно осуществляется при помощи арматуры диаметром 10мм, делается это после выставления опалубки. Арматура режется по длине и по ширине лестничного марша и связывается в сетку с квадратом 150-200мм. Сверху над ней вяжется вторая сетка. Расстояние между сетками 100 – 120 мм. Сетки надо обязательно связать с выпусками, которые идут из основания (пола) и из плиты перекрытия (рисунок 4). Выпуска должны быть длиной не менее 400 мм.
Рисунок 4 – Связь монолитной лестницы и плиты.
Площадка так же армируется в 2 сетки. При армировании площадки обязательно надо сделать закрепление к несущей стене (рисунок 5). Если конструкция дома не позволяет закрепить площадку к несущей стене, то следует делать дополнительную колонну, которая будет служить опорой площадке.
Рисунок 5 – Дополнительное закрепление лестничной площадки.
После завершения армирования надо приподнять сетку над опалубкой на 25 – 30 мм, обеспечив этим защитный слой для арматуры.
Правильная установка опалубки, чертежи опалубки
После всех расчетов, чертеж на бумаге надо перенести на стену (лучше прям на стене начертите, как будут идти ступени, это исключит возможные ошибки). Когда у вас есть чертеж вашей лестницы можно приступать к работе. При установке опалубки для лестницы надо учитывать «чистовой пол дома», то есть первая ступень должна быть выше на толщину стяжки и типа полового покрытия (рисунок 2). Для опалубки под лестничный марш лучше использовать фанеру, под несущие направляющие брус 150х50 мм. Подпорки можно делать из бруса или использовать телескопические стойки. Чтобы лестница была гладкой, без выступов, щели в опалубке запениваются монтажной пеной. Для вашего удобства будут рассмотрены примеры нескольких лестниц с описанием и чертежами.
Прямая одномаршевая лестница. Наиболее простая для сборки лестница. Используется не часто, из-за большой длины (4,5 – 5,5 метров) ее трудно разместить в жилом доме. Такая лестница менее безопасная из-за отсутствия площадки, которая может остановить падение споткнувшегося человека.
Для сборки такой лестницы требуется одно длинное фанерное основание, на которое ложатся ровные хлысты арматуры и увязываются в 2 сетки, затем монтируются борта и ступни. Нижняя ступень интереснее выглядеть, если будет с закруглением (рисунок 6).
Рисунок 6 – Опалубка под прямую лестницу.
Ровная 2-х маршевая лестница с одной площадкой. Благодаря своей простоте, удобству в эксплуатации и безопасности это самая удобная конструкция лестницы получила широкое распространение в многоэтажном и частном строительстве. Основой для лестницы служит фанера или щит из доски. Сборка начинается с установки площадки, на которую потом опираются щиты (основы лестничных маршей). Вся конструкция подпирается телескопическими стойками или брусом. Затем выставляется борт лестницы, к которому, после армирования, крепятся ступени. Опалубка для ступеней режется из бруса 150 на 50 мм, при необходимости получения большей высоты ступеней к брусу прикручиваются фанерные рейки. (рисунок 7).
Рисунок 7 – Лестница с двумя маршами.
Высота потолка — 2800 мм, длина ступени — 300 мм, высота ступени — 165 мм, количество ступеней = 2800 / 165 = 17 шт.
Ровная лестница с винтовым изгибом для подъема. Отличается от предыдущей тем, что не имеет площадки (рисунок 8). Такая конструкция менее удобна при заносе мебели, но имеет более привлекательный дизайн. Больше подходит для частного дома, так как занимает меньше места и позволяет максимально увеличить полезную площадь.
Рисунок 8 – Полувинтовые лестницы.
При монтаже опалубки первым делом выставляются щиты (основы) прямых лестничных маршей, к которым крепиться основа для поворота, собранная тонкой фанеры 8 – 10 мм. После сборки основы лестницы производят ее армирование. Для связки сеток следует использовать длинные хлысты арматуры на всю длину, не прерывая их в месте поворота лестницы. Затем устанавливаются борта для ступеней.
Лестницы со скругленными ступенями. Скругленные ступени можно сделать на любой лестнице, однако красивее они смотрятся на лестнице с широкой ступенью или входной группе.
При небольшой ширине лестницы под ступень делается фанерный шаблон, по которому изгибается более тонкая (толщиной 6 мм) фанера ступени. Скручивается фанера шурупами (рисунок 9). Армирование такой лестницы не отличается от стандартного. Бетон заливается в специально оставленные технические отверстия.
| Рисунок 9 – Сборка опалубки для монолитной лестницы. | Рисунок 10 – Входная группа с закругленными ступенями. |
Входную группу с широкими ступенями делают без верхней крышки. Для ступеней можно использовать дюймовую доску. Главное четко выдержать радиус и скрепить ступени между собой. (рисунок 10) Если входная группа опирается на колонны, то между опорами надо проложить дополнительное арматурное усиление.
Винтовая лестница. Наиболее сложная в монтаже конструкция. Из-за закругления ступеней такая лестница занимает больше всего полезной площади, порядка 9,5 квадратных метров. Больше подходит как украшение интерьера в большой зале или как наружная лестница.
Винтовая лестница крепиться только к полу и потолку и не имеет дополнительных опор. При армировании нельзя допускать разрыва арматуры. В последнее время для винтовых лестниц используется специальная железная опалубка (рисунок 11, 12).
| Рисунок 11 – Сборка винтовой лестницы. | Рисунок 12 – Бетонная лестница после отделки. |
Заливка бетона
Бетон для заливки лестницы можно готовить на месте (самостоятельно) или заказать готовый. Часто, для облегчения работы на втором этаже, лестницу заливают сразу вместе с плитой перекрытия. Заливать лестницу надо в один этап, начиная с нижней степени и идя вверх. Желательно, чтобы бетон был густой и не сползал. Для уплотнения бетона используют вибратор (работать им надо аккуратно, чтобы бетон не сполз вниз). После заливки ступени надо аккуратно загладить мастерком. (рисунок 13).
Рисунок 13 – Заливка лестницы.
Монолитная лестница, как и любое сооружение из бетона, в первые дни после заливки, требует ухода (пролива водой).
Опалубку со ступеней можно будет снять через 3 дня, полностью опалубка разбирается не раньше, чем через 2 недели после заливки.
Первоисточник
Выше на девять ступеней. Армирование лестничного марша с применением программы Project StudioСS Конструкции 5.1
Несмотря на значительный прогресс в области программного обеспечения для автоматизации проектирования, многие компании до сих пор используют морально устаревшие продукты, из-за чего проигрывают более передовым конкурентам. Зачастую решение о переходе на новую программную базу затягивается не только в связи с финансовыми проблемами, но и в связи с недостаточно квалифицированными кадрами. Однако условия, сложившиеся на строительном рынке, просто вынуждают компании не отставать от конкурентов, постоянно совершенствуя и оптимизируя процесс проектирования. В этой статье мы предлагаем вам обзор возможностей программного продукта Project Studio CS Конструкции 5.1, разработанного компанией CSoft Development.
Читатель наверняка согласится, что чаще всего программный продукт показывает свое истинное лицо во время его применения для решения реальных задач. Заармировать колонну, балку, стандартное перекрытие не составит труда даже для новичка, недавно начавшего освоение Project Studio CS Конструкции 5.1, но армирование более сложных и нестандартных элементов конструкций может вызвать замешательство. На наш взгляд, показательным примером, раскрывающим многие возможности и приемы работы в программе, будет армирование лестничного марша здания из монолитного железобетона. Форма этойконструкции такова, что одного сечения для указания всех используемых стержней, хомутов и шпилек недостаточно. Это заставляет нас использовать комбинацию разрезов для полного отображения схемы армирования лестницы. Используя методы и приемы, описанные в этой статье, читатель сможет армировать большинство конструкций, придерживаясь наших алгоритмов.
Бесспорно, к сильным сторонам Project Studio CS Конструкции 5.
1 нужно отнести интуитивно понятную логику работы: она минимально отличается от ручного процесса построения чертежа схемы армирования. Поэтому в качестве исходных данных нам необходим опалубочный чертеж армируемой лестницы, а также четкое представление схемы армирования. Итак, мы имеем лестничный марш, который будет крепиться к стенам лестничной клетки с помощью П-образных элементов арматуры, и наша задача — создать чертежи армирования этой конструкции. Разберем процесс работы с программой по порядку, как это происходит в реальных условиях, после получения (вычерчивания) чертежа опалубки.
Во-первых, необходимо четко определить принадлежность стержней к конструкции, то есть заранее мысленно разбить нашу лестницу на отдельные элементы, имеющие свою спецификацию. В нашем случае лестница будет разбита на конструкции с марками Лм-1, Лм-2 и т.д. по принципу снизу вверх, что определяется технологией строительства. Марка Лм будет состоять из арматуры лестничного марша, входящей в нижнюю площадку (если бы нижний марш имел свою площадку, она полностью вошла бы в состав марки), непосредственно самого марша и верхней площадки, исключая арматуру следующего лестничного марша.
Грамотное разбиение конструкции на марки позволит сэкономить время на проектирование объекта в целом.
Во-вторых, нам необходимо определить набор самых выгодных разрезов, на которых замаркированные стержни будут отображены максимально наглядно и одновременно удобно расположены для их обработки программой Project Studio CS Конструкции 5.1. Размещение разрезов и узлов конструкции в нашем случае показано на рис. 1. Отметим, что в этом примере они полностью соответствуют принятым у проектировщиков стандартным положениям для лестничной клетки, то есть при использовании программы не будет необходимости отказываться от наработанных навыков черчения в среде AutoCAD.
Рис. 1. Набор разрезов для отображения армирования лестничного марша Мл3Армирование главного разреза лестничного марша
Теперь перейдем непосредственно к процессу проектирования, подготовив чертеж к армированию. Для точной расстановки арматуры на главном разрезе воспользуемся вспомогательными линиями, созданными с помощью стандартных команд AutoCAD (рис.
2). Впоследствии линии будут удалены либо для них можно создать отдельный слой, чтобы впоследствии повторно использовать при создании других марок с помощью копирования.
Затем вычерчиваем продольные стержни лестничного марша и поперечную арматуру верхней лестничной площадки, как показано на рис. 3.
Рис. 3. Учитываемая арматура лестничного маршаСтержни М-1, М-2, М-3, М-4 создаем с помощью команды Арматурный стержень группы Детальное армирование с параметрами, указанными на рис. 4.
Рис. 4. Окно команды Арматурный стерженьОсобенно отметим, что в графе Тип элемента мы выбираем значение Деталь и присваиваем ей марку. Смысл этого действия объясним позже, а пока укажем распределение стержня и его учет, выставив флажки напротив пунктов Включать в сборку конструкции и Включать в спецификацию.
Далее мы вычерчиваем поперечные стержни, используя команду Поперечное сечение группы Детальное армирование (рис. 5).
Рис. 5. Диалоговое окно команды Поперечное сечение стержняВсе поперечные стержни на этом разрезе учитываются как в конструкции, так и в спецификации. Теперь, когда мы имеем верхнюю и нижнюю арматуру, можно добавить на чертеж хомуты и шпильки. Для этого используем команды Хомут и Шпилька прямая группы Хомуты и шпильки (рис. 6−7).
Марки этим элементам назначаются автоматически при создании. Распределение зависит от части конструкции: на верхней лестничной площадке хомуты Х1 и шпильки Ш1 распределены на расстоянии 2060 мм, вто время как на марше эта величина составляет 960 мм (для шпильки Ш2).
Чтобы избежать появления возможных ошибок при добавлении стержней в конструкцию, советуем соблюдать такую последовательность отрисовки элементов: сначала наносятся элементы, учитываемые в сборке конструкции и спецификации (зеленый цвет), после чего чертятся элементы, учитываемые только в сборке конструкции (коричневый цвет), а элементы, не учитываемые нигде (красный цвет), наносятся в последнюю очередь, дабы не запутать проектировщика.
Закончим наш главный разрез, добавив в него не учитываемую программой Project Studio CS Конструкции 5.1 арматуру в нижней лестничной клетке. Проще всего это сделать, скопировав имеющиеся стержни, хомуты и шпильки на новые места (рис. 8). Надо помнить, что копирование сохраняет установленные параметры учета элементов, поэтому по завершении команды необходимо снять учет через свойства элементов. Для этого можно выделить все необходимые элементы, после чего дважды щелкнуть левой кнопкой мыши по одному из них. В открывшемся окне в обоих пунктах группы Учет установить значение Нет.
Рис. 8. Окончательная схема армирования главного разреза лестничного маршаДля самоконтроля можно сразу расставлять выносные надписи, но нужно учитывать, что после выполнения команды Сборка и маркировка конструкции произойдет присвоение позиций элементам конструкции, а это приведет к уменьшению текста в выносках, поэтому не стоит уделять повышенное внимание их расположению.
Заметим, что для неучитываемой арматуры (на схеме отображена красным цветом) логично использовать универсальные выносные линии, вызываемые из меню модуля ProjectStudio CS Ядро группы Выносные надписи. При создании такой надписи текст вводится пользователем, а не создается автоматически, как в выносных надписях модуля Project Studio CS Конструкции 5.1.
Выполнение схемы армирования разреза 2−2
Разрез 2−2 (рис. 9) вычерчивается по тем же самым алгоритмам, что и рассмотренный ранее. Различие лишь в том, что здесь уже учтена вся арматура за исключением деталей М-6, при создании которых необходимо выставить флажок напротив пункта Включать в спецификацию. Арматура прилегающих стен вычерчивается без учета в сборке конструкции и спецификации. Остальным стержням необходимо назначить учет в сборке конструкции, выставив флажок в диалоговом окне команд создания.
Рис. 9. Разрез 2−2Пришло время вспомнить о марках М-1 и М-3, присвоенных стержням, которые в этом разрезе создаются с помощью команды Поперечное сечение.
Сейчас в диалоговом окне необходимо указать, что мы создаем деталь, и выбрать нужную марку, чтобы позиционная выноска корректно отображала информацию о стержне. Прибегнуть к помощи марок нам пришлось из-за того, что одна позиция присваивается только прямолинейным стержням одной длины и с одинаковыми свойствами. У нас же стержни, идущие в лестничном марше, имеют изгибы, что не позволяет вычертить их поперечно без присвоения марки для идентификации программой Project Studio CS Конструкции 5.1.
Выполнение схемы армирования в разрезе Б-Б
Перейдем к последнему сечению, отображающему схему армирования в плане (рис. 10).
Рис. 10. Схема армирования разреза Б-БЧтобы не загромождать чертеж, арматура лестничных маршей условно не показана. Стоит отметить, что детали М-6 вычерчены как линейный элемент с присвоением ему необходимой марки. Что касается хомутов Х1, то они созданы командой Вид хомута сбоку группы Хомуты и шпильки. Стержни d10 А400 вычерчиваются как стержни, следить надо за соблюдением длины, которая должна составлять 2060 мм.
В заключение скажем, что все стержни на этом плане не учитываются в спецификации, но учитываются в сборке конструкции (то есть им присваиваются позиции).
Схема армирования узлов
Рассмотрим узлы конструкции, представленные на рис. 11.
Рис. 11. Схема армирования узловПо вопросам учета стержней советуем руководствоваться описанной выше цветовой схемой. В узле А комментировать нечего, зато узел Б представляет интерес в плане подсчета стержней. Обратите внимание, что поперечные стержни d8 A240 (впрочем, как и любые поперечные стержни) не могут иметь распределения, поэтому нам приходится преодолевать эту трудность вычерчиванием продольного арматурного стержня, в свойствах которого указывается количество данных стержней в конструкции. Чертится он в стороне от чертежа и не выводится на печать. Именно этот стержень мы учитываем в спецификации. Второй новый Г-образный стержень — М-5 — учитывается в двух узлах (64 шт. и 8 шт.), хотя это можно сделать и на одном узле, здесь все зависит от предпочтений проектировщика.
Сборка и специфицирование конструкции
После того как схема армирования готова, можно сделать черновое оформление, проверить правильность выполнения чертежа и, если проектировщика все устраивает, приступить к сборке конструкции. Выбираем команду Сборка и маркировка конструкции из группы Сборки и спецификации и указываем необходимые параметры в диалоговом окне команды. В списке Схема армирования выбираем вариант На виде, а в группе Обозначение элементов устанавливаем вариант Позиции. Нажав на кнопку О K, выделяем всю нашу конструкцию и нажимаем клавишу ENTER, после чего Project Studio CS Конструкции 5.1 осуществит сборку конструкции. Посмотреть информацию о конструкции можно через Диспетчер марок, вызываемый из главного меню Project Studio CS Конструкции 5.1.
Имея полностью посчитанную арматуру, уже можно выводить спецификацию, однако будет лучше, если мы введем в нашу конструкцию еще и материалы с объемами, которые также войдут в спецификацию.
Для этого выберем нашу конструкцию Мл3 в Диспетчере марок и нажмем на боковую вкладку Состав марки (рис. 12−13).
Новые материалы вводятся нажатием правой кнопки мыши на пиктограмме папки Материалы. Назначение имени новому материалу и объему происходит путем ввода нужных значений в нижней части окна (не забудьте предварительно выделить левым щелчком мыши новый материал, появившийся в папке Материалы).
Вывод спецификации является одним из заключительных шагов по созданию документации на конструкцию. Для этого необходимо выбрать команду Спецификация конструкций из меню Сборки и спецификации и отметить в появившемся окне конструкции, которые будут входить в спецификацию. Далее нажатием кнопки ОK завершаем процесс генерирования спецификации и размещаем ее в нужной части чертежа (рис. 14).
Рис. 14. СпецификацияДля полного завершения работы над чертежом осталось сделать совсем чуть-чуть. Во-первых, проверить таблицу спецификации.
Если в ней пропущены какие-то позиции — это означает, что есть уникальный элемент, который учитывается только в сборке конструкции. Во-вторых, проверить все оформление чертежа. Далее формируем листы для печати и наслаждаемся результатом проделанной работы (рис. 15).
Подводя итоги работы, заметим, что проделать ее пользователю, знакомому с черчением в CAD-средах, не составит труда, так как алгоритм работы с Project Studio CS Конструкции 5.1 практически не отличается от выполнения чертежа в «голом» AutoCAD. По сути, сокращение времени проектирования достигается как за счет более быстрого вычерчивания необходимых разрезов, автоматизированного создания выносок, отметок уровня и прочих мелочей, значительно облегчающих жизнь проектировщику, так и за счет автоматического подсчета спецификации, что при «ручном» методе занимает значительную часть времени разработки конструкции. Ускорение проектирования методом автоматизации выполнения рутинных операций не только повышает производительность труда, но и снижает общую утомляемость сотрудников от работы, что, несомненно, благоприятно скажется на атмосфере в коллективе.
Вы все еще считаете, что оно того не стоит? Тогда спешим вам сообщить, что в ближайшее время Project Studio CS Конструкции 5.1поможет не только повысить производительность, но и сэкономить средства. Осенью 2010 года появится версия для работы под платформой nanoCAD, которая является свободно распространяемым продуктом. Этасвязка будет оптимальным решением для многих российских компаний с ограниченным бюджетом на приобретение лицензионного программного обеспечения.
Рис. 15. Итоговый чертеж армирования лестничного маршаЦветовая схема армирования
Для упрощения восприятия системы подсчета стержней программой Project Studio CS Конструкции 5.1 в нашем примере мы вручную выделили цветами стержни с разными значениями свойств группы Учет:
- зеленый — элемент учитывается в сборке конструкции и в спецификации. Этим стержням присваивается позиция и ведется их учет в спецификации;
- коричневый — элемент учитывается только в сборке конструкции.
Этим стержням присваивается только позиция; - красный — элементы никак не учитываются программой Project Studio CS Конструкции 5.1.
CSoft,
технический специалист
отдела архитектурно-строительных САПР
E-mail: [email protected]
Как самостоятельно возвести монолитную лестницу своими руками: Инструкция +Видео
Индивидуальное строительство домов практически никогда не обходится без использования лестниц. Главным требованием ко всем видам этих конструкций является безопасность передвижения по ним.
Общие правила бетонирования плит перекрытия
Заливать бетон нужно быстро и без перерывов в процессе, об этом стоит позаботиться заранее.
Для этого нужно продумать процесс подачи бетонной смеси на перекрытие и заезда миксеров на стройплощадку к бетононасосу или туфельке. Процесс бетонирования плиты перекрытия довольно трудоёмкий поэтому требует задействования большого количество рабочих, которые будут работать в звеньях посменно без перерыва на обед. В противном случаем, если в процессе работы случаются большие задержки в подаче, то смесь теряет свои однородные свойства, что отрицательно сказывается на прочности конструкции.
Временный рабочий шов бетонирования
Если конструкция все же очень большая, и невозможно за 1 прием залить полностью весь объем будущей плиты, тогда делаются специальные рабочие швы бетонирования, в месте неосновной нагрузки. Шов делается либо вертикальным, или горизонтальным, но, ни в коем случае, ненаклонным. Рабочий шов зачищается, и работа продолжается, если он вертикальный,то иногда для лучшего схватывания между слоями применяют сетку рабицу.
Горизонтальный шов практически не встречается при бетонировании плит, но без него не обойтись при постройке бункера и прочих сооружений с очень толстым слоем бетонирования.
Перед началом работ бетонирования следует внимательно осмотреть весь стол опалубки, наличие несущих и дополнительных стоек, целостность бортов. Бетонирование плинт перекрытия — очень ответственный процесс и если в одном месте опалубка не выдерживает,то может произойти принцип «домино» и вся конструкция рухнет под тяжестью нагрузки бетонной смеси, что приводит к огромныму материальному ущербу и человеческим жертвам.
Преимущества монолитных лестниц
Несмотря на популярность деревянных и железных лестничных конструкций, чаще всего в частных коттеджах можно встретить именно монолитные каркасы. Это обусловлено большим количеством достоинств данного типа изделий по сравнению с процессом изготовления и последующим использованием лестниц из дерева или металла.
Специалисты выделяют следующие преимущества монолитных лестниц:
- долгий срок службы и высокая прочность изделия позволяют экономить на ремонтных работах и специальном обслуживании;
- за счет своей уникальной структуры и правильно подобранных материалов монолитные каркасы хорошо переносят высокую влажность воздуха, жару и экстремально низкие температуры;
- это пожаробезопасные изделия, что особенно важно с учетом возросшей роли электричества и бытовых приборов в нашей жизни;
- монолитный каркас может использоваться в качестве основания для лестниц самых разных форм и размеров, в зависимости от дизайнерской задумки.

Еще одним несомненным преимуществом монолитных лестничных пролетов является то, что такого рода изделия в принципе не могут скрипеть. Также радует наличие подлестничного пространства, которое можно использовать для хранения вещей или для других бытовых нужд.
Главное достоинство таких лестниц – это широкая сфера применения (как на улице, так и в доме). Разнообразие форм и размеров позволяет внедрить их в любой интерьер помещения.
Стоит отметить, что в большинстве случаев такие параметры, как высота, длина и ширина ступеней, определяются заказчиком в индивидуальном порядке. При самостоятельном же изготовлении лестницы оптимальным вариантом считается ширина в 30 см и высота ступенек 17 см. Если в вашем доме есть маленькие дети или пожилые люди, то к проектированию конструкции и определению размеров составных частей необходимо подойти с особой ответственностью.
Чертим и считаем
Монолитные лестницы из бетона обладают немалым весом. Перекрытия и стены несут дополнительную нагрузку элементов конструкции лестницы до полимеризации бетона.
В итоге бетонная лестница превращается в один из элементов жёсткости конструкции строения. Угол подъёма круче 450 нецелесообразен. 300 принимается как оптимальный. Подъём при излишней крутизне затруднится, а спуск с лестницы станет опасен.
Требования к размерам ступеней и проступей:
- Глубина – 27–30 см;
- Высота – 15–20 см;
- Ширина – 1–1,2 м.
Элементы лестницы монолитятся с перекрытиями и прилегающей стеной в процессе строительства. Выпуск арматуры и закладных элементов из перекрытий и несущей стены планируется на этапе проекта. Уличные лестницы нижней частью опираются на фундамент.
Для двухмаршевой лестницы придётся сооружать промежуточную площадку со стационарными промежуточными опорами.
Монолитные связи укрепят конструкции дома
Армирование монолитного перекрытия 20:34
В строительстве, в гражданском или частном строительстве, часто используется армированное монолитное перекрытие. С его помощью обустраиваются ступени, формируется крыльцо, делаются армированные монолитные плиты перекрытия между этажами, а также монолитные плиты покрытия при устройстве эксплуатируемых плоских крыш.
Армирование позволяет использовать сразу несколько материалов, делая общую конструкцию максимально прочной и износостойкой.
При армировании монолитных конструкций с помощью опалубки перекрытий, а в частности железобетонного перекрытия сочетаются бетон и металл, они взаимодополняют друг друга. Бетон защищает арматуру, обеспечивая прочную ровную поверхность, которая обладает рядом характеристик – звукоизоляция, теплоизоляция, прочность. Арматура принимает на себя конструктивную нагрузку, защищая бетон от разрушения. В зависимости от того, в каком направлении укладываются стержни, достигаются заданные параметры прочности и устойчивости к нагрузкам.
Обязательно каждое монолитное перекрытие имеет опорную арматуру, которая защищает бетон в пристенной зоне, и венец, который проходит через все несущие конструкции и соединяется с концами арматуры предыдущей монолитной конструкции (стены, колонны, пилоны, балки), для большей прочности и устойчивости всего сооружения.
Армированную сварную сетку из арматуры периодичного профиля диаметром от ф6 мм до ф25 мм, изготовленную в заводских условиях, можно купить в готовом виде.
Применение готовых арматурных каркасных сеток в монолитном строительстве, значительно ускоряет процесс армирования монолитного перекрытия. Но при покрытии большого участка придется соединять несколько арматурных плит, что создает дополнительные стыки. Последние значительно уменьшают прочность конструкции, а также создает дополнительные расходы на длину арматуры. Поэтому гораздо лучше провести армирование монолитного перекрытия из отдельных перекрестных стержней арматуры, что позволит получить прочную, монолитную конструкцию перекрытия.
| ГОСТ на арматуру периодического профиля скачать |
Армированные перекрытия имеют еще один весомый плюс – они более устойчивы к воздействию огня – в течение часа сооружение сможет удерживать распространение пламени. Для сравнения – от деревянного каркаса уже через 30 минут ничего не останется.
Расчет монолитной лестницы и чертежи конструкции
- Соответствие ширины и высоты ступеней.
- Оборудование закладных элементов.

- Безопасный подход к объекту.
- Удобный спуск и подъем.
Плоскость ступени, расположенную горизонтально, архитекторы называют проступью, а вертикально – подступенком. Ширина проступи должна обеспечивать опору для ступни не менее чем на 80% ее длины. Комфортными считаются ступени с проступью шириной 300 мм, меньшие значения сделают спуск и подъем неудобными. Проектирование лестничных пролетов производится с учетом следующих моментов:
- Для свободного прохода ширина пролета делается не менее 800 мм, а если предполагается перемещение габаритных предметов – 1200 мм.
- Высота подступенка зависит от ширины проступи. Например, для ступеней шириной 300 мм высота в 150 мм будет оптимальной. Когда монолитная лестница и чертеж планируется делать со ступеньками на 10 мм шире, то настолько же нужно уменьшить подступенок и наоборот.
- Традиционно в расчетах учитывается, что сумма ширины проступи и двойной высоты подступенка соответствует человеческому шагу в 400-600 мм.
Однако эти цифры индивидуальны и зависят от роста человека. Если в доме есть дети, поступь обычно увеличивают, а ширину каждой ступени уменьшают. - Узнать количество ступеней несложно – расстояние между этажами делят на высоту подступенка. Дробный остаток от результата деления будет высотой первой фризовой ступеньки.
- Перемножив число ступеней на ширину проступи, получим длину горизонтальной проекции марша. Это позволит узнать, поместится ли пролет в заданное пространство.
- В случае, когда лестничный марш не помещается, его делают короче, увеличивая угол подъема. Оптимальным принято считать угол 25-37 градусов, более крутой подъем вызывает сложности при спуске. Определить угол позволяет схема прямоугольного треугольника, где катетами выступают подступенок и проступь. Разделив высоту на ширину ступеньки, и применив таблицу тангенсов угла, получим угол уклона пролета.
Отдельные рекомендации
Разработка чертежей и армирования монолитной бетонной лестницы подразумевает организацию ограждений и закладных элементов.
В среднем вес такой конструкции находится в пределах 2-2,5 тонн, поэтому важно продумать устройство основания. Проверенный практикой вариант – фундамент и железобетонные балки.
Не стоит отходить от оптимальных размеров высоты и ширины ступеней, если не хотите пожертвовать комфортом. Лучше организовать площадку, разделив пролет. Рассчитайте 5-6 забежных ступеней в нижней части пролета или сделайте его спиральным.
Стяжка по грунту рассчитывается так, чтобы вес монолита не оказывал на нее давления превышающего 1 кг/см². Учитывается и вес отделочного материала, если нагрузка превышает допустимые нормы, то имеет смысл выполнить отделку пиломатериалами.
Общие сведения
Преимущества бетонных лестниц
- — долговечность. соблюдение технологии заливки и качественный материал, выбранный для основы — гарантирует лестнице из монолита срок службы без капремонта свыше 50 лет.
- — пожарная безопасность. бетонная лестница, в отличие от возведённой из дерева, не может стать источником возгорания.

- — универсальность. залить бетонную лестницу можно как внутри, так и снаружи дома. Монолит хорош тем, что выдерживает низкие и высокие температуры, а также не страдает от перепадов влажности.
- — дизайн. только лестницу из бетона можно выполнить в любой форме и конфигурации, задуманной дизайнером.
Недостатки бетонных лестниц
- — сроки возведения. готовая монолитная лестница может использоваться по назначению только через месяц после заливки.
- — нагрузка на основание. масса бетона давит на фундамент и стяжку, поэтому место куда примыкает лестничный марш к полу необходимо дополнительно армировать.
Какой формы сделать бетонную лестницу в доме?
Все монолитные лестницы можно условно разделить на две большие группы: прямые и винтовые.
- Прямая лестница в зависимости от свободной площади в помещении может состоять из одного или двух маршей.
Вторая занимает намного меньше пространства. - Спиральные лестницы бывают классические и с забежными ступеньками. Конечно, винтовая лестница на второй этаж, выглядит более нарядно и дорого, но залить такую своими руками очень сложно. Опалубку радиальной формы по силам изготовить только специалисту.
Для самостоятельного возведения лучше всего подойдет прямая одно маршевая лестница. Если спроектировать её так, что с обеих сторон будут стены, то опалубка крепится прямо к ним. К сожалению, не в каждом доме хватает места для одно маршевой конструкции. В большинстве случаев возводят лестницу из двух маршей с площадкой между ними.
Более сложным в исполнении вариантом является лестница, опорой для которой служат верхнее и нижнее бетонные перекрытия. Здесь придётся устанавливать опалубку с боковыми элементами.
Виды лестниц и варианты их крепления
Лестничное сооружение во время эксплуатации подвергается различного рода постоянным и временным нагрузкам.
Кроме собственного веса оно также должно выдерживать вес человека и перемещаемых по ней предметов. Поэтому вопрос прочного крепления таких сооружений в доме очень важен.
Лестничные конструкции обычно фиксируются к:
- Полу;
- Плите или балке верхнего этажа;
- Межмаршевым площадкам;
- Стенам – конструкцию рекомендуется крепить только к несущим стенам, выполненным из бетона, бруса или кирпича. Толщина стенки должна быть не менее 25 см.
Важно! Нельзя закреплять изделия к асбоцементным, гипсокартонным стенам, или выложенным в один кирпич перегородкам.
Лестницы могут крепиться к нескольким поверхностям
Способ крепления во многом зависит от:
- Типа лестничной конструкции;
- Материала, из которого она изготовлена;
- Веса изделия;
- Его габаритов;
- Материала пола, перекрытия и стен.
Основными типами лестничных конструкций являются:
- Маршевые – могут состоять из одного или нескольких маршей.

- Винтовые с опорой на тетивы, косоуры, опорный столб или больцы. Чаще всего применяются комбинированные опоры.
- Сложные конструкции – сочетание маршей и винтовых участков, нескольких маршей с поворотами под разными углами.
Наибольшее распространение в частных домах имеют маршевые конструкции, выполненные из дерева. Одномаршевое изделие может иметь самое простое крепление – к полу и перекрытию. Оно является очень надежной и устойчивой системой, не требующей дополнительных промежуточных креплений.
Если присутствуют два или более маршей, то необходима дополнительная фиксация сооружения. Сложные модели могут иметь комбинированные крепления, в зависимости от формы и вида опоры.
Проемы под установку лестничной конструкции
Проем под лестницу в перекрытии должен быть предусмотрен еще на стадии проектирования здания.
Его размеры зависят от:
- Габаритов будущей конструкции;
- Типа лестницы;
- Вида перекрытия.

Отверстие в перекрытии под лестницу должно иметь ширину, равную ширине марша с добавлением зазоров, необходимых для крепления конструкции и ее отделки. Длина проема во многом зависит от угла наклона изделия.
Но в целях безопасности использования отверстие в перекрытии для лестницы должно позволять спуск и подъем человека в полный рост. Проемы выполняются прямоугольной, квадратной или круглой формы.
Нюансы монолитного строительства
Все основные требования к процессу создания монолитных конструкций из железобетона – в том числе и перекрытий, изложены в своде правил 52*103*2007.
На заметку: Эти правила относятся только к конструкциям из тяжёлого бетона, заливаемым без предварительного напряжения арматуры.
Возведение монолитного каркаса здания
- При проектировании любого здания выбирается КС (конструктивная система), в которой все несущие элементы увязываются так, чтобы обеспечить строению максимальную устойчивость и прочность.
- Определяющим фактором здесь является применяемый массово строительный материал: дерево, металл, сборный или монолитный железобетон.
Так как темой данной публикации является монолит, именно о нём и будем вести речь. - Монолитное перекрытие может устраиваться и по сборным ЖБ стенам, и по каменной кладке. Тут многое зависит от типа конструктивной системы, и основные из них представлены ниже:
- Колонная система, где основным несущим элементом являются колонны;
- Стеновая система, где все нагрузки воспринимают стены;
- Смешанная, где нагрузки распределяются между колоннами и стенами.
Варианты конструктивных систем
На заметку: При строительстве многоэтажных зданий, перекрытия для нижних этажей нередко проектируют в одной системе, а для верхних – в другой.
Какими бывают перекрытия в монолите
Монолитные перекрытия могут быть:
- Плоскими. Их обычно проектируют для зданий с пролётами между колоннами или стенами менее 8 метров. Это обычный, наиболее часто применяемый, вариант для гражданского строительства;
Плоские перекрытия в строящейся жилой многоэтажке
- Ребристыми.
Применяют при пролётах до 12 метров, чаще в промышленном строительстве.
Ребристое перекрытие в административном здании
- Кессонными. Их рекомендуется устраивать в помещениях зального типа – как производственных, так и жилых. За счёт углублений в перекрытии улучшается акустика помещений, и появляются широкие возможности для дизайна потолка.
Перекрытие кессонного типа
- Пустотными. Применяют там, где необходимо максимально снизить вес конструкции. Чаще всего это перекрытия большой площади в одноэтажных зданиях.
Вариант монолитного пустотного перекрытия
Необходимую конфигурацию перекрытие принимает за счёт использования при заливке специальных форм:
Общие требования к плитам
Главными параметрами, от которых зависит прочность и надёжность заливаемого перекрытия, являются:
- Габариты в поперечном сечении – а именно, толщина плиты;
- Класс применяемого бетона, который определяет его прочность на сжатие;
- Содержание в плите продольной арматуры, количество которой определяется, исходя из длины пролётов и предполагаемых нагрузок на перекрытие.

Стандартная плита со сплошным сечением обычно имеет толщину не менее 160, но не более 250 мм. Бетон для заливки должен применяться класса В20, не ниже. Толщина всех прочих плит варьируется от 250 до 500 мм, с применением бетона класса В25.
Пустотные блоки в качестве вкладыша
Армирование
Согласно правилам, плоские плиты армируются:
- Продольно, в два ряда — вдоль верхней и нижней плоскостей;
- Поперечно, с распределением арматуры по всей площади и усиления в местах опирания плиты на стены или колонны;
- На участках в концах плит должна устанавливаться арматура в виде П-образных хомутов, позволяющих произвести анкеровку концов продольных стержней.
Более подробно об армировании монолитных плит вы можете узнать из пособия по проектированию, изданным НИИЖБ в 2007г. В нём подробно излагается информация по сортаменту применяемой арматуры, её расчёту, выполнению соединений, гибке, анкеровке.
Армирование
Армирование осуществляется стержнями арматуры, с шагом, значение которого не более полученного по расчету.
В местах устройства перегородок я устанавливал дополнительные стержни.
Первый этап армирования заключается в создании армопояса по всем несущим стенам, а также по периметру перекрытия. Выполняется он из стержней диаметром 14 мм.
Соединять арматуру между собой сваркой не допускается, потому что при нагреве она теряет свою прочность. Стержни необходимо соединять внахлест, стягивая их вязальной проволокой. Величина нахлеста должна составлять не менее 40 величин диаметра арматуры.
Опалубка монолитного перекрытия Для упрощения процесса в горизонтальной поверхности стены я засверлил глухие отверстия, в которые вставил отрезки арматуры диаметром 8 мм. Они одновременно являются и поперечной (конструктивной) арматурой для армопояса. К ним я прикрепил несущие стержни.
Рабочая арматура укладывается на настил после того, как он накрыт полиэтиленом. Если возникает необходимость удлиннения стержней, то состыковка их должна происходить вразбежку, не допуская двух стыков рядом.
При устройстве армокаркаса необходимо обеспечить зазор между арматурой и плоскостью будущего перекрытия не менее 25 мм для создания впоследствии защитного слоя бетона. Он не допустит контакт арматуры с воздухом и последующую ее коррозию.
Для устройства зазора применяются специальные пластиковые кронштейны для арматуры, которые остаются в бетоне после его твердения. Их можно установить уже после того, как продольные несущие стержни связаны с поперечной конструктивной арматурой.
Армирование монолитного перекрытия
По краям будущих проемов необходимо обеспечить армирование не только нижнего, но и верхнего слоя бетона.
Армирование монолитного перекрытия
Арматурные работы заняли у меня около двух недель. Немного, если учитывать, что делал я это все в совбодное от основной работы время.
Этап подготовки перед монтажом
Чтобы правильно и ровно уложить плиту перекрытия, необходимо еще на этапе строительства стен сформировать ровную поверхность верхнего края несущей конструкции.
С этой целью применяется специальное и точное строительное оборудование в виде лазерного уровня. На стены за 300 – 400 мм до верхнего края во время строительства устанавливаются метки положения и последние ряды блоков или кирпичей укладываются с точностью до миллиметров по показаниям уровня. В случае применения керамзитобетонных блоков для строительства стен с целью равномерного распределения массы перекрытия используется технология обустройства монолитного пояса.
Перед укладкой плита подвергается подготовке. Отверстия на ее торце необходимо заделать. Как правило, для этого пустое пространство закладывается кирпичом и бетонируется в зазорах. Допускается заполнение отверстий при помощи минеральной ваты.
Монолитный участок перекрытия с косым углом. Арматурный каркас для плиты со скосом. Бетонные работы для монолитной плиты со скосом. Выдерживание бетона и уход за ним.
Арматурные работы СНиП Несущие и ограждающие конструкции, ГОСТ 19292-73 . Инструкции по сварке соединений арматуры и закладных деталей железобетонных конструкций СН 393-78 .
Руководства по производству арматурных работ. И другими действующими нормативными документами.
Бетонные работы следует выполнять в соответствии с требованиями и рекомендациями СНиП Несущие и ограждающие конструкции.
Состав бетонной смеси . приготовление, правила приемки, методы контроля и транспортирование должны соответствовать ГОСТ 7473-85 .
При производстве работ по возведению железобетонных монолитных конструкций следует руководствоваться требованиями СНиП Несущие и ограждающие конструкции и соответствующими разделами правил техники безопасности, приведёнными в СНиП III-4-80 . рабочими чертежами и указаниями ППР – проекта производства работ.
1. Монолитный участок перекрытия с косым углом (УМ-1).
В домах . где предусмотрено планом строительство с угловым переходом стен под углом не 90°, как обычно, а, например, 45° – перекрытия выполняются в монолитном варианте .
Можно, конечно, взять обычную железобетонную плиту и отбойным молотком выбить нужный скос плиты, а арматуру обрезать.
Но это чревато тем, что если железобетонная плита выполнена с напряженным арматурным каркасом (а так чаще всего и делают на заводах ЖБИ – такой каркас требует меньше расход арматуры), то в таком урезанном виде плита потеряет свою несущую способность . А то может и сразу лопнуть во время такого обрезания.
ПРИМЕЧАНИЕ: Напряженный арматурный каркас – это каркас, стержни которого зажимали в специальной форме . а затем, нагревая, вытягивали до нужного размера.
Далее его сваривали поперечными каркасами . заливали бетоном и высушивали в пропарочной камере. Обрезку стержней от закрепленной формы выполняли уже, когда плита была в готовом виде . Т.е. арматурные стержни в бетоне натянуты как гитарные струны . Ну а если струна обрывается – вы сами знаете, что бывает.
Поэтому все, что не укладывается в стандартные размеры промышленных железобетонных изделий и конструкций, выполняется в монолитном варианте на месте строительства дома. В нашем варианте монолитная плита является продолжением сборных железобетонных плит .
2. Арматурный каркас для плиты со скосом (УМ-1).
Изготовление арматурного каркаса и сетки должно выполняться по чертежам и иметь точное расположение свариваемых элементов . Замена предусмотренной проектом арматурной стали по классу, марке и сортаменту согласовывается с проектной организацией.
Технологический процесс изготовления арматурного каркаса предусматривает:
- правку и резку стальной арматуры, проволоки . поставляемой в мотках диаметром 3…14 мм и в прутках диаметром 12…40 мм на стержни мерной длины
- правку (гибку) и стыковую сварку стержней до нужного размера
- сварку сеток и каркасов
- укрупнительную сборку (сварку и вязку проволокой) объёмных арматурных блоков
- транспортировку и монтаж каркасов на строительном объекте.
Арматурный каркас монолитного участка УМ-1 выполняется по указанным на схеме размерам (см. рис.). И состоит он из сетки С-2 и двух арматурных каркасов К-1 . соединенных между собой арматурными стержнями из той же стали A-III .
Арматурные сетки надо варить точечной сваркой . Для каркаса и сетки используется арматура по указанной табл.1.
Таблица 1: Спецификация арматуры для каркаса монолитной плиты перекрытия.
Конструкционные особенности ребристого монолитного перекрытия
Давайте разберемся, что из себя представляет данный вид конструкции и каковы перспективы его применения в частном строительстве.
Ребристые монолитные перекрытия состоят из балок, которые могут идти в одном или двух направлениях, и плиты, соединенной с балками в единую конструкцию (т.е. работают балки совместно с опирающейся на них плитой). Применяются такие конструкции при строительстве зданий с большими пролетами (промышленных зданий, торговых центров, метрополитена, водоохранных, хозяйственных сооружений и т.д.).
Применение взамен плоской ж/б плиты обусловлено уменьшением расхода бетона при возведении перекрытия и, как следствие, снижением нагрузки на несущие стены и фундамент. Снижение нагрузки на несущие конструкции здания позволяет архитекторам создавать более интересные по своему дизайну сооружения.
Не второстепенным фактором является и уменьшение затрат на заливку бетона и армирование. Для создания ребристых перекрытий используют бетон класса В15-В25 и арматуру следующих классов: А240, А300, А400, В500. Выбор класса зависит от реализации конкретной конструктивной задачи.
Изготовление данного вида межэтажных плит ничем не отличается от других железобетонных конструкций, за исключением принципа использования специальной съёмной опалубки. Принципиальную схему и внешний вид конструкции вы можете видеть на рисунке. Именно за счет формы опалубки создаются в итоге «ребра».
Межэтажные перекрытия по деревянным балкам — экологичность совмещённая с экономией.
С общими понятиями мы разобрались. Теперь поговорим о применимости ребристых монолитных перекрытий при строительстве коттеджей и загородных домов для постоянного проживания. В сети существует достаточно большое количество информации о создании подобных конструкций своими руками
Такое внимание к наличию «ребер» в межэтажном ж/б перекрытии определяется, прежде всего, желанием сэкономить на его строительстве.
Однако при этом стоит учитывать следующие моменты:
- Необходим грамотный расчет конструкции;
- Строительные компании предлагают в прокат съёмную опалубку и стойки, необходимые для изготовления ребристых плит, однако заказ в аренду такой опалубки обойдется гораздо дороже, чем для классической монолитной плоской плиты, что может в итоге нивелировать экономию на бетоне;
- Создание опалубки своими руками (например, из досок или плит ОСБ) довольно длительный и трудоемкий процесс, т.е. вам придется учитывать и высокую трудоемкость работы;
- Кроме того внешний вид потолка с балками впишется не во всякий интерьер. Возможно, его придется впоследствии зашивать гипсокартоном или другими материалами.
Правильно уложенные железобетонные балки перекрытия сделают конструкцию надежной.
Делаем арматурную решетку
Независимо от размеров участка, между плитами перекрытия он должен быть обязательно заармирован.
При расстоянии между плитами от 1,5 м в дополнение к арматурным прутьям лучше всего использовать армированную сетку.
Если же расстояние небольшое, можно ограничиться двумя слоями решетки из прутьев.
Процесс формирования арматурной решетки:
Арматурная решетка укладывается на 5 см выше дна опалубки, арматура стягивается проволокой.
- Прутья необходимо отпилить определенной длины, учитывая при этом шаг, который должен быть около 15-20 см. Далее подготовленные прутья связываются проволокой между собой. В итоге должно получиться два слоя решетки.
- Арматурную решетку при установке первого слоя необходимо уложить на 5 см выше дна опалубки, для чего предназначены «стаканы». После этого, постелив сверху сетку, укладывают второй слой решетки.
- Если участок между плитами перекрытия не такой большой, армирование может быть выполнено прутьями без сетки. Каркас в данном случае формируется в два слоя, причем каждый из них должен быть удален от края плиты на 5 см. Стоит заметить, что использовать сварочный аппарат в этом процессе необязательно, поскольку все соединения можно осуществить с помощью металлической проволоки.

Некоторые советуют вставлять арматурные прутья в заранее просверленные в плитах отверстия, однако этого делать не стоит. Участок монолита будет опираться на выемки, которые присутствуют на любых моделях плит перекрытия. Они могут быть либо продольными, либо круглыми, напоминающими стакан.
Делаем арматурную решетку
Независимо от размеров участка, между плитами перекрытия он должен быть обязательно заармирован.
При расстоянии между плитами от 1,5 м в дополнение к арматурным прутьям лучше всего использовать армированную сетку. Если же расстояние небольшое, можно ограничиться двумя слоями решетки из прутьев.
Процесс формирования арматурной решетки:
Арматурная решетка укладывается на 5 см выше дна опалубки, арматура стягивается проволокой.
- Прутья необходимо отпилить определенной длины, учитывая при этом шаг, который должен быть около 15-20 см. Далее подготовленные прутья связываются проволокой между собой. В итоге должно получиться два слоя решетки.

- Арматурную решетку при установке первого слоя необходимо уложить на 5 см выше дна опалубки, для чего предназначены «стаканы». После этого, постелив сверху сетку, укладывают второй слой решетки.
- Если участок между плитами перекрытия не такой большой, армирование может быть выполнено прутьями без сетки. Каркас в данном случае формируется в два слоя, причем каждый из них должен быть удален от края плиты на 5 см. Стоит заметить, что использовать сварочный аппарат в этом процессе необязательно, поскольку все соединения можно осуществить с помощью металлической проволоки.
Некоторые советуют вставлять арматурные прутья в заранее просверленные в плитах отверстия, однако этого делать не стоит. Участок монолита будет опираться на выемки, которые присутствуют на любых моделях плит перекрытия. Они могут быть либо продольными, либо круглыми, напоминающими стакан.
Следующие этапы
Чтобы в дальнейшем предотвратить разрушения между стыками перекрытия плит, необходимо выполнить ряд последовательных действий, а именно:
- Необходимо дать время застыть латексной шпаклёвке.
На это может уйти двое суток. - Сделанные углубления нужно подготовить к армированию. То есть, нанести стартовый слой шпаклёвки. При укладке необходимо создать выступ за края плит. Это примерно 40-50 мм.
- В нанесённый материал необходимо вставить армирующую сетку. Работаем валиком или шпателем с узким лезвием.
- После чего излишки раствора удаляются. Работаем широким шпателем, удаляя излишки раствора.
- Перед обработкой рабочей поверхности наждачной бумагой. Можно использовать шлифовальный материал со средним, а затем мелким зерном. Предварительно необходимо дать время для застывания нанесённого слоя.
- Следующий этап – нанесение финишного слоя в два захода с шлифовкой каждого из них.
После чего, подготовленную поверхность можно красить или наклеивать обои.
Изготовление опалубки
Схема установки опалубки.
Для изготовления опалубки берем доски 50х150 мм и сшиваем из них щит высотой 40 см. На один щит (1 ребро будущей опалубки) пойдет 3 доски.
Получится ребро высотой 45 см, где 40 см – высота будущей балки перекрытия и 5 см – необходимый запас. Сшивают их поперечными кусками досок 5х50 мм и длиной 40 см. Располагают эти доски, называемые ляпухами, по всей длине щитка через каждые 40-50 см. Помните: первая и последняя ляпухи должны находиться не ближе 10 см от края ребра щитка. Скрепляем ляпухи с досками саморезами длиной 90 мм при помощи шуруповерта из расчета 3-4 самореза на 1 сшиваемую доску. Затем выравниваем края щитка циркулярной пилой при помощи плотницкого уголка.
Потребуется 3 таких сборных щитка, они станут ребрами опалубки.
墙纸下的墙壁预涂底漆:做正确的事情 |
底漆下底漆的主要任务是提高待处理表面的附着力底漆可以由自己的手制造,然而,任何阶段的胶合壁纸。准备墙时,这是粘合剂粘合之前的最后阶段。为什么我需要底漆?这个过程有太多的任务可以忽略。
为什么墙壁应该有底漆?
经过粗加工 — 删除旧的封面,钉子,螺丝,壁架,踢脚线,墙壁shpaklyuetsya。在腻子之后,墙壁必须准备好。
为此需要启动墙 :
- 墙壁无尘,最后的灰尘和污垢被清除,腻子完全无法去除;
- 随后的胶水消耗量减少;
- 底漆之后的粘合剂组合物独特地更好地粘附到表面上;
- 底漆不允许底层褪色;
- 底漆后的墙壁变得更加防潮;
- 底漆使表面保持多孔,即 — 透气;
- 因此,你可以防止真菌和霉菌的形成。
启动后,墙壁变得干燥平整
在最近的时间里,在墙纸粘贴之前,墙上贴上了报纸,这部分地替换了底漆的功能。现代的墙面底漆可清洁表面,为高品质的墙纸做好准备。
墙纸下的底漆:选择哪一种
接下来是逻辑问题:选择哪种引物,是否有任何通用化合物?理论上,有这样的组合,但是将自己定位于特定类型的壁纸,并为这些壁纸启动墙壁。
如何选择正确的底漆(视频)
哪种底漆更适合壁纸墙纸
启动表面罐和传统壁纸壁纸,这是一个便宜的底漆。虽然在这种底漆之后的工作表面吸收较少的水分,但在墙壁上存在污渍的风险。这种浸渍只能在完全均匀的基础上进行。
粘合底漆依次可以是:
- perhlorvinil;
- 醇酸树脂;
- 苯酚;
- 矿物;
- 亚克力。
有油漆或石膏的墙壁需要粘合剂底漆
最后一种引物通常被认为是通用的。你可以争辩说它是最好的,但事实是最好的 — 这是肯定的。
壁纸下的丙烯酸底漆:功能
丙烯酸浸渍很好,因为它几乎适用于所有表面。它可以用混凝土墙,木制,砖,石膏板墙来填装。
丙烯酸底漆的主要特性:
- 它易溶于水;
- 没有气味;
- 它在五个小时内干燥;
- 几乎适用于所有类型的表面。
请勿将丙烯酸悬浮液仅用于墙壁,其结构以黑色金属为特征
丙烯酸底漆的竞争对手是醇酸底漆,它是木墙涂料的最佳组合之一。
醇酸底漆:特点
醇酸底漆通常用于乡村房屋的维修工作。如果将这种悬浮液应用于木材,则会形成一层,几乎所有的装饰涂层都易于涂覆并可靠地固定。
分离几种类型的醇酸混合物:
- 基于铬酸锌的混合物。不要仅将此混合物涂抹在墙壁,石膏涂层或石膏上。
- 基于磷酸锌的组合物。它们用于浸渍隔断,随后将涂上醇酸涂料。
醇酸底漆在材料表面形成一层坚固的薄膜,在这种材料上墙纸
醇酸浸渍干燥十五个小时,它们可用于后续铺设瓷砖的情况。
OSB的壁纸底漆
不幸的是,OSB板通常用于内部电镀,容易吸收水分。这意味着您可以简单地将壁纸粘贴在它们上面,而不需要底漆层。
Interpanel接缝通常填充密封剂(有时是石膏)。在油灰之前,接缝也可以加强,那么你不需要填补空白。
在将OSB上的壁纸粘贴之前,需要涂上一层或两层底漆,以使板的表面充分浸渍
这个设计的最佳底漆是白色的。白色底漆应用于多层,但当然,如果只有壁纸致密且图案不明亮。在这种情况下,地面应该形成一层防水薄膜,当接触到粘合剂时OSB板不会膨胀。
石膏板墙壁的底漆
对于石膏纸板来说,最好的是底漆,它会多次增加两种材料之间的粘合力。在这种情况下,应该简单地应用组合物。通常使用深度渗透的起始组合物。
在选择石膏板底漆时,应遵循以下要求:
- 提高材料之间的附着力;
- 绑上灰尘;
- 无毒;
- 防潮和耐热;
- 干燥快。
石膏板墙壁的底漆必须具有较高的穿透力
对于启动干砌墙,只需要用于内部工作的组合物。石膏纸板的外墙底漆不起作用。
启动墙纸下的墙:过程本身
如前所述,底漆有两个主要功能 — 在表面形成一层将成为坚实的底层,用于装饰涂层的底层(这是第一项任务)。第二种是创造一种防水膜,使水分不能深入墙壁。
此外,底漆应具有防腐性能,杀死所有微生物,然后可能会损坏涂层。
如果您需要中和表面的颜色以选择任何您喜欢的最终颜色,则白色底漆是最佳选择
通常在修复前夕,会出现以下问题:
- 你需要一个底漆的壁纸? 它始终是必要的。有时它不适用于非常平坦的墙壁,但又是 — 胶水污渍,附着力差,随着时间的推移形成的模具可能成为拒绝底漆的支付。
- 底漆后多少可以粘贴墙纸? 绝对不要急于。一种类型的引物会干燥五个小时,另外一个十五个。有时间,等一天,然后开始粘合。
- 我可以在没有底漆的情况下粘贴墙纸吗 从理论上讲,如果墙壁很好的话,这是可能的。但是,再次 — 你自己的危险和风险。尽管如此,底漆的功能如此之多,以至于如果您想长时间粘贴墙纸,无需忽视它们。
然后有一个自然的问题 — 如何正确地应用底漆?
用我们自己的双手给墙壁打气:我们一步一步地做(视频)
如何使用底漆:我们在墙纸下面合理地铺设墙壁
首先你需要稀释底漆混合物。在桶里做这件事更容易。用普通水稀释混合物。包装上标明比例和水温。
此外,按以下步骤进行:
- 混合物充分混合。您可以将其制成电钻,然后用电线以混合器的形式构建喷嘴。这将确保组合物的高质量搅拌。
- 用宽刷将混合物涂在墙上。让它仿佛你在粉刷天花板一样 — 应用混合物的原理是一样的。光滑的图层没有条纹,水坑,处理不均匀的区域。
当第一层干燥时,再用底漆涂抹。第二层将保证质量和统一的应用
光滑的墙壁可以不用刷子涂底漆,而用涂料滚筒,因此更方便。
至于具体品牌,幸运的是,市场上的选择相当大。有一个知名品牌,如pufas。丙烯酸底漆是该品牌被认为是最好的之一。
启动时的典型错误
经验不足的维修人员往往会犯一些错误。
引物错误:
- 不要用分散体和水基涂料为表面涂底漆,这些类型的组合物具有与制造土壤所需的完全相同的特性;
- 不要仅在一层上涂底漆,你可以跳过引发不好的区域;
如果包装显示组合物的表面类型,只有它和地面,业余表演可以充满工作重做
它发生的第一层是准备好了,第二层仍然使用水性乳液或分散涂料。但在此之后,通过墙纸可以看到污渍,光泽或哑光涂料的结构。
用你自己的双手在墙纸下面打墙(视频)
启动是一个功能重要的维修阶段,不应忽视。选择专门用于面漆的混合物,不要制作墙纸壁纸,直到底漆干得好,为墙壁涂上两层底漆。
成功的工作!
Do-it-yourself monolithic concrete staircase.
Расчет, монтаж, заливка и отделка бетонной лестницы своими руками. Отделочные работы: как упростить облицовку Здания от двух этажей и выше не обходятся без лестничных маршей. Для создания таких конструкций используются различные материалы. Одним из самых популярных является бетон. Литые лестницы из него возводят как внутри, так и снаружи зданий, они имеют множество конструктивных вариантов, отвечающих самым высоким требованиям и утонченным эстетическим вкусам.
Преимущества монолитных лестниц
Лестницы из монолитного бетона эксплуатируются десятилетиями. Они обладают высочайшей прочностью и грузоподъемностью, огнестойки и не горят. Эти лестницы дополнительно укрепляют несущий каркас зданий. Применение монолитных лестниц внутри и снаружи зданий предопределено их морозостойкостью и влагостойкостью. Несущий арматурный каркас надежно защищен от коррозии.
Бетонное основание остается монолитным под воздействием внешней среды.Образовавшиеся дефекты можно просто заполнить новым раствором.
Межэтажные переходы создаются на строящихся объектах, не требуя привлечения дорогостоящих материалов, подъемных кранов.
После снятия опалубки лестница доступна для бесшумного перемещения строительных материалов. Любые варианты таких изделий стоят без опор, что позволяет рационально использовать пространство под ними. Такие конструкции не имеют ограничений по воплощению инженерной мысли и декорированию.
Виды
Лестничные конструкции различаются в зависимости от способа формирования и размещения.
По способу изготовления
Лестницы монолитные из искусственного камня подразделяются на маршевые и винтовые.
Шуруп
Такая конфигурация межэтажного перехода создается внутри и снаружи зданий. Это сложно реализуемое сооружение, создание которого актуально в связи с необходимостью рационального использования жилой площади.Он занимает мало места и не требует центральной опорной стойки. Лестница устанавливается с опорой на стены и в сторону от них.
Формирование такой монолитной лестницы осложняется необходимостью создания фасонной опалубки с плавными обводами, плоскостями и криволинейными поверхностями, сложностью усиления автономного жесткого арматурного каркаса, а также использованием множества временных опорных элементов.
Маршевые
Маршевые монолитные лестницы.
Используется чаще, чем спиральная конструкция. Легче построить, безопаснее, но занимает много места. Такие межэтажные переходы подразделяются на одномаршевые прямые или угловые (с забежными ступенями), двухмаршевые (прямые или угловые, соединенные через площадку). Маршей может быть больше. Легче всего реализовать одномаршевые конструкции, упирающиеся в боковые стены – опалубка и ее арматура крепятся к основанию стены.
Этот вариант может опираться одной стороной на стену или только на опорное основание и перекрытие следующего этажа.Последний потребует много опор при обустройстве опалубки. В некоторых случаях создаются двухмаршевые переходы, сочлененные под выбранным участком углом.
Как правило, их монтируют с одной стороны стены (стен).
По типу монтажа
Межэтажные перекрытия монолитные бетонные по типу монтажа (месту монтажа) делятся на внутренние и наружные.
Открытый
Походные изделия могут быть отлиты на подготовленное основание (уплотненный грунт, песок) или «висеть» в воздухе, опираясь на две «точки».Винтовой – монтируется на фасад или только на верхний этаж.
Внутренняя
Монолитная лестница, устанавливаемая внутри конструкции, может иметь любой вариант исполнения. При этом, в отличие от наружного размещения, есть возможность перераспределить нагрузку марша с фундамента на стены.
Технология
Работы по сооружению лестницы из монолитного бетона состоят из следующих этапов: выбор приемлемого типа лестничного перехода, проектирование, сборка опалубки, установка арматуры, отделка.
Выбор типа лестницы
Винтовую лестницу хорошо установить, если места мало.
Какой должна быть лестница, понятно уже при проектировании здания, что задается ее расположением.
Однако есть место для уточнений, когда каркас здания уже готов. При недостаточности жилой площади следует рассмотреть возможность установки спиралевидной конструкции посередине комнаты или с опорой на стену (стены в углу).Такой вариант усложнит создание опалубки и формирование надежного арматурного каркаса.
Походный проезд, опирающийся на стены с двух сторон, максимально облегчен для фундамента. Подпирание марша на стену с одной стороны увеличит нагрузку на нее. Но самым массовым вариантом является маршевое межэтажное соединение, опирающееся только на пол и фундамент (железобетонную балку).
В последних двух случаях также необходимо тщательно поддерживать опалубку.Будут нюансы при выборе в пользу двухмаршевой (угловой, дугообразной) или лестницы с забежными ступенями. Не в последнюю очередь, есть соображения относительно соответствия общему дизайну помещений и их назначению.
Расчет элементов
На данном этапе определяются уклон изделия, количество маршей, размеры площадок, количество ступеней и их параметры, углы поворота забежных ступеней, ширина лестницы определяется, учитываются высоты стяжек и будущей отделки.
Расчеты влияют на удобство использования конструкции, расход материалов, стоимость и продолжительность работ. Затем создается чертеж с указанием всех размеров.
Угол подъема
Сектор в пределах 25 — 37 градусов считается оптимальным с точки зрения занимаемой площади и безопасным. Он определяет длину лестницы. Чем меньше угол, тем он длиннее. Так, например, при межэтажной высоте 3 м марш с уклоном 35 градусов создаст проекцию пролета на пол длиной 430 см, а при 25 градусах конструкция в бетоне будет занимать 640 см комнаты.Таким образом, изделие займет больше места и потребует больше материалов.
Размеры ступеней
Схема установки монолитной лестницы.
Параметры удобные для передвижения людей — высота 17 — 21 см (а), глубина 27 — 31 см (б). Размеры ступеней должны быть одинаковыми. Далее длину проектируемой конструкции делят на размер одной ступени так, чтобы путем подбора получить целое число ступеней (с учетом равенства 2 а b = 60 — 64 см). На каждые 12 — 15 ступеней марша целесообразно предусматривать одну площадку длиной 1,5 ступени.
Ширина лестницы
Параметры помещения могут устанавливать существующие ограничения на размеры ширины, но оптимальными считаются значения 90 — 150 см. Такие габариты позволяют людям переносить мебель и комфортно передвигаться.
Бетонная лестница может не только выполнять свои прямые функциональные обязанности, но и стать отличным дизайнерским решением для вашего дома.
Наличие лестницы в доме может быть не только функциональным, но и стильным, так как само по себе является прекрасным декоративным элементом. А вот лестница, сделанная своими руками, дает повод похвастаться хозяину дома своими умениями и станет предметом гордости за дом. Кроме того, следует отметить, что его самостоятельная установка не требует столько усилий, как может показаться на первый взгляд.
Как сделать бетонную лестницу
Бетонная лестница – одна из самых надежных и долговечных конструкций, в отличие от своих деревянных собратьев.
Разновидности бетонных лестниц
Бетонные лестницы делятся на два типа:
1.
Монолитный. Этот тип бетонной лестницы устанавливается практически везде, например, в подвалах, на улицах или на подъездах.
2. Комбинированный. Однотипные бетонные лестницы подразумевают сложную металлическую конструкцию, которая одновременно служит каркасом для крепления бетонных ступеней. Отлив самих ступеней происходит с помощью опалубки с армирующей сеткой.Для изготовления самих ступеней используется бетон, гранитный щебень и мраморная крошка. После высыхания бетонной смеси ее следует отшлифовать.
Как правильно производить расчетные измерения
Для облегчения работы можно использовать собственный эскиз будущей лестницы, который тоже может пригодиться в будущем. Как и любые ремонтные работы, этот процесс также следует разбить на этапы:
1. Расчет опалубки. Первоначально следует определить положение лестницы – она может располагаться на земле, примыкать к стене, соединять две противоположные стены и т. д.Ведь именно от этих моментов зависит дальнейший расчет и строительство лестницы, да и опалубки в целом.
2. При расчете лестницы учитывают количество и размер ее ступеней. Рекомендуемая высота ступеней должна быть от 16 до 20 см, а ширина должна быть более 27 см. Если в итоге получается более 14 ступенек, то рекомендуется делать два пролета.
Также следует учитывать жильцов дома, так как пожилым людям трудно подниматься по высоким ступенькам, а бегающие по дому маленькие дети могут не удачно споткнуться и пораниться.
3. При проектировании лестницы нужно учитывать, что ее угол должен варьироваться от 25 до 45 градусов, т.к. чем больше угол наклона, тем труднее подниматься по такой лестнице.
4. Ширина самой лестницы не должна превышать 80-90 см. Хотя если бетонная лестница является частью интерьера частного дома или дачи, то ширина выбирается по вкусу хозяина дома.
5. При выборе материалов для возведения опалубки требуется учитывать весь вес конструкции: 1 кв.метр бетона толщиной 20 см весит в среднем около 500 кг. А вес всего марша с перепадом (высота 2,5 метра, длина 4 м) и шириной 1 м составляет около 2,5 тонны.
6. Для приготовления бетонного раствора потребуются: 0 цемент ПЦ-400 (1л), песок (2л), щебень (4л), вода (0,6л), пластификатор (С-3) (10мл).
7. Для получения качественного бетонного раствора лучше использовать бетономешалку, для уплотнения использовать специальный электровибратор.Ведь прочность опоры зависит от качества получаемого в дальнейшем раствора.
8. Залитую поверхность накрывают полиэтиленовой пленкой для предотвращения высыхания. Опалубку снимают не ранее, чем через 3-4 недели, при этом бетон становится не менее чем на 80% прочнее.
Важно помнить, что при расчете всех исходных данных нужно учитывать такой фактор, как толщина настила и самого пола.
Проектирование опалубки – это самый первый этап подготовки бетонной лестницы.Для его правильной сборки изначально потребуются определенные материалы: водостойкая фанера (примерно 20 мм сечением), строительный брус (сечением 100х100мл).
Для опалубки, предназначенной для монолитной бетонной лестницы, необходимы следующие материалы:
Брус, которым будут крепиться элементы опалубки друг к другу и к стенам;
Также для соединения ступеней, которые будут препятствием для растяжения листов при заливке бетоном;
Элементы опалубки вместе с забежными ступенями.
Если длина ступни 1м, то доски должны быть толщиной не менее 30мм, а при длине 1,2м требуется толщина не менее 40мм.
Торцевая опалубка. Он может быть в виде фанерных листов, а может использоваться шаблон с заранее подготовленными размерами. Доски, используемые для этой опалубки, выбирают размером примерно 30 мм.
Хочу обратить внимание, что элементы опалубки часто крепятся с помощью саморезов по дереву (диаметр 3.5), так как при демонтажных работах их легче удалить, чем гвозди.
Прикладные технологии в производстве бетонных лестницТакое понятие, как опалубка, служит основой качественной эксплуатации бетонной лестницы, и главный ее критерий – в ней не должно быть щелей и щелей. Для каркаса опалубки используется водостойкая фанера, препятствующая растеканию бетонного раствора. Фанера используется в сочетании с досками, которые плотно прилегают друг к другу.
Перед заливкой полученного каркаса бетонным раствором туда вставляется арматурный каркас.
Весь лестничный марш обрамлен стальными стержнями, которые прочно соединены поперечными стяжками.
Для усиления фасадных ступеней лестниц используется поперечная арматура, которая предотвращает их выкрашивание и появление в них трещин. Перед непосредственной заливкой бетона нужно оставить деревянные пробки или металлические закладные пластины, к которым в дальнейшем будут крепиться перила лестницы.
Поверхность залитого раствора, пока он не остыл, выравнивают специальными инструментами, чтобы в дальнейшем было легче шлифовать.
Подниматься по лестнице можно только после окончательного высыхания бетонного раствора.
Облицовка лестницы является завершающим этапом всех ремонтных работ. Проводится не ранее чем через 3-4 недели при условии просушки при комнатной температуре. Каркас опалубки снимается, сами закладные и поверхность ступеней подаются на обработку с помощью шлифовального станка.
Предназначен для идеального выравнивания поверхностей. Для облицовки бетонной лестницы можно использовать такие материалы, как керамическая плитка, дерево, натуральный камень или керамогранит.
Сегодня современный рынок ремонтных материалов предлагает широкий ассортимент ограждений лестниц — сварных, сборных, алюминиевых, комбинированных.
Положительные стороны бетонных лестницПри разработке планировки будущего дома необходимо учитывать, что бетонная лестница, в отличие от деревянных конструкций, укладывается сразу на месте, транспортировать ее нельзя.Но, несмотря на это, имеет ряд неоспоримых преимуществ:
1. Эксплуатация такой лестницы может осуществляться на любых стадиях ремонта (в каком бы виде она ни была).
2. При разработке дизайна лестницы в нее можно добавить различные скрытые шкафы и ниши, что значительно сэкономит место и поможет избавиться от ненужных вещей.
3. Финансовые затраты на строительство бетонной лестницы своими руками заключаются только в стоимости материалов.А стоимость, в свою очередь, зависит от качества выбранного источника. Кроме того, при самостоятельной работе легко рассчитываются временные интервалы работы.
4. Бетон, как материал, сам по себе очень влагостойкий, а также не подвержен возгоранию.
5. Бетонная лестница служит дополнительной опорой для всего здания.
6. Бетонные лестницы очень устойчивы к внешним механическим повреждениям, что позволяет более интенсивно эксплуатировать их.
1. Важно помнить, что при бетонировании лестниц оно происходит в один прием и сам процесс начинают вести снизу вверх.
2. Во избежание «подвижности» бетонного раствора рекомендуется добавлять в него щебень 10-20 мм.
3. При выборе марки бетона для лестницы она должна быть не ниже В15.
4. Интересный факт: если тяжелый бетон не уплотнить на 1%, то его прочность снизится на 5-7%.Именно поэтому такой нюанс, как уплотнение, может существенно повлиять на качество бетонной лестницы. Именно для этого и предназначен электрический вибратор.
5. Замоноличиванию предшествует формирование армирующего каркаса лестницы. Его основная функция заключается в укреплении внутренней прочности всех конструкций.
Если у вас есть вопросы по этой теме, задавайте их специалистам и читателям нашего проекта.
Возможно, монолитные железобетонные лестницы не так распространены в частном секторе, как деревянные или каркасные, но тоже достаточно популярны.Они подкупают своей солидностью и массивностью, а также огромными возможностями в плане отделки, не в последнюю очередь привлекает долгий срок службы. Среди мастеров портала такие конструкции также пользуются спросом, благодаря чему они накопили большой опыт как в дизайне, так и в исполнении самостоятельно или под личным контролем.
Рассмотрим:
- Лестницы монолитные — конструктивные, разновидности.
- Особенности проектирования монолитной лестницы.
- Технология строительства монолитных лестниц.
- Как подготовить опалубку для монолитной лестницы.
- Армирование монолитной лестницы.
- Бетонирование монолитной лестницы.
Лестницы монолитные бетонные
Монолитные железобетонные лестницы представляют собой несущие стационарные конструкции, заливаемые непосредственно на месте, обязательно включающие в себя арматурный каркас.
В зависимости от габаритов и типа лестницы арматурный каркас может быть самостоятельным или соединенным со стеной.
Что касается формы, то бетон дает не меньше возможностей, чем дерево или металл, монолитная лестница может быть любой:
- походный;
- с забежными ступенями; винт
- ;
- на тетиве, с зазором между ступенями;
- на стрингере.
По исполнению низа монолитные лестницы делятся на два вида:
- полнотелые — с гладким дном;
- зеркальный — с фигурным дном.
Естественно, чем сложнее форма конструкции, тем сложнее расчеты и выполнение, маршевые бетонные лестницы считаются самыми простыми. Но и места им нужно больше, марш должен быть заложен изначально, а вот лестницу со сквозными ступенями реальнее «втиснуть» в проем скромнее, хотя это и считается менее удобным.
Особенности конструкции монолитной лестницы
В идеале монолитные лестницы следует закладывать еще на этапе проектирования, так как из-за своей массивности они требуют большей площади и усиленного основания.
Например, если вы сначала зальете теплый пол, а потом решите, что хотите монолит, это вызовет определенные трудности.
Позитивный участник FORUMHOUSE
Я бы не стал ставить лестницу на теплый пол. Под ним утеплитель, который может люфтить, и стяжка может лопнуть, повредив трубы. Мы обычно убираем часть стяжки и делаем свайный фундамент в районе первой ступени, самой дальней ее части от стены.
Лестница, независимо от выбранного типа и материала, в первую очередь должна быть безопасной и функциональной – с удобными ступенями, как минимум приемлемым углом наклона и достаточным пролетом.
Для расчета монолитных лестниц применяются те же правила, что и для остальных:
- При расчете длины марша учитывается толщина настила.
- Оптимальная ширина марша 1000-1200 мм, минимальная 900 мм.
- Количество ступеней в марше не более 15 шт.
- Высота удобных ступеней 150-170 мм, максимальная 200 мм.
- Ширина проступи — 250-300 мм.

- Оптимальный угол наклона 30-37⁰, максимальный — 45⁰ (по средней оси).
Есть формула расчета: 2а+b=640, где а — высота ступени, b — ширина ступени, а 640 мм — средняя длина нашей ступени. Портальные мастера используют другую формулу для расчета монолитной лестницы.
Иосич
Норма, когда по формуле: подступенок плюс проступь 45 см, или подступенок плюс проступь плюс подступенок 58-62 см.
Проект с саморазработкой можно нарисовать как на бумаге, так и в специальном конструкторе.Второй вариант предпочтительнее, так как получается виртуальная 3D-модель, а основные расчеты на основе введенных данных выполняет компьютер. Особенно это актуально, когда речь идет о конструкциях с забежными устройствами.
Иосич
Правильно спроектированная лестница должна иметь одинаковую высоту всех подступенков и одинаковый размер проступи всех ступеней по оси прогона (обычно посередине марша). Для прямых лестниц такой расчет сделать несложно, а вот для забежных ступеней уже более проблематично.
Часто это правило (примерно одинакового размера) при изготовлении таких лестниц не соблюдается, в результате чего возникает дискомфорт при их использовании в дальнейшем. Я не считаю лестницы из рук в руки. Аркон прекрасно справляется с этой задачей. Размещаю на плане лестницу нужного типа, задаю параметры, наблюдаю модель в 3D.
Технология строительства монолитных лестниц
Процесс возведения монолитной лестницы состоит из трех основных этапов:
- сборка опалубки;
- арматура;
- бетонирование.
Отделочные работы хоть и являются обязательным этапом отделки, но часто могут быть прилично разнесены по времени, особенно когда лестница возводится одновременно с коробкой.
Опалубка для монолитной лестницы
Чтобы сразу получить достаточно гладкую поверхность, опалубку собирают из гладких материалов, в основном водостойкой фанеры толщиной 20 мм и более. Если есть финансовая возможность или целесообразность (несколько ступеней), то лучше выбрать ламинированную фанеру.
Дно и боковины собираются из фанеры; для формирования подступенков используется обрезная доска толщиной 30-35 мм или брус, 50×50 мм.
Все элементы опалубки вырезаются максимально точно и подгоняются при сборке без образования щелей, при необходимости стыки дополнительно герметизируются.
В качестве крепежа чаще всего выбирают длинные саморезы, для усиления формы используют металлические уголки и бруски, фланец укрепляют бруском, дно подпирают металлическими или деревянными стойками со ступенчатыми ступенями.Если лестница сложной формы (винтовая, забежная ступени), то вместо стоек иногда делают несущие (ригели, одним концом закрепленные к стене, а другим к боковине). При использовании обычной фанеры изнутри опалубку рекомендуется покрыть фольгой или другим утеплителем.
Опалубку обычно собирают в два этапа — сначала дно и боковину/боковины, а после укладки арматурного каркаса под ступени монтируют ригели.Один из наших мастеров решил попробовать сначала полностью собрать опалубку, а потом выполнить армирование.
Голубев
Дома сначала сделала фурнитуру, теперь буду пробовать по другому, да, будут сложности — вязать и варить фурнитуру под ступени (перемычки). Но тогда установить перемычки на арматуру непросто. И теперь я тут сразу вижу, где и как проводить армирование. Если мешает какая-то ступенька, то открутить — пару минут, а столько еще — вернуть на место.Главное, чтобы это место было найдено, нарисовано, а ступень поставлена в трех измерениях по уровню, кропотливая работа. А когда под ногами еще арматура, неудобно, поэтому пробую так.
Еще один наш мастер, профессионально занимающийся лестницами, советует не создавать себе лишних сложностей.
НикВас
Рулон дешевых обоев — рисуешь косоур (монолит), крепишь к стене, выставляя по уровню — размечаешь места под фурнитуру и крепеж, сверлишь, крепишь бруски/доски прямо по выкройке на обои, а потом просто сорвите обои со стены!
Армирование монолитной лестницы
Для повышения прочности конструкции и предотвращения осыпания краев ступеней и маршей необходимо выполнить армирование — продольное и поперечное.
Стальная арматура с периодическим профилем с диаметром 10-14 мм (продольная арматура толще) используются, из которой пространственный каркас выполнен в виде сетки с ячейкой 100-200 мм, в зависимости от параметров марш. Армирование крепится друг к другу с трикотажной сеткой с помощью крючка или сварки. Для того, чтобы выдержать толщину защитного слоя (2 см), специальные те, которые используются сегодня.
Если конструкция лестницы обеспечивает поддержку в стену через подкрепление, то, как правило, стержни просто молоток, но если стенка изготовлена из материалов, характеризующихся пониженной несущей способностью, например, газобетона, наши мастера советуют делать ямы ,
Позитивный
Не забивайте арматуру в газобетон, это не даст необходимой площади опоры для лестницы, лучше сделать шурфы и запустить туда арматуру, а потом все это залить бетоном. Вот пример.
Благодаря этому приему на газобетонные стены можно опирать довольно тяжелые лестницы.
Позитивный
Если сделать в стене шурфы не менее 10х10 см, то площадь опоры будет 100 см², а если вбить арматуру, то 10 см².Марка газобетона бывает от 35 до 50, следовательно, 100 см² выдержит от 300 до 500 кг. Значит, двадцать ям дадут нагрузку от 6 до 10 тонн, плюс лестница будет стоять у стен, плюс опора на первой ступеньке, плюс опора на плиту перекрытия.
Армирование может быть одинарным или двойным, мнения наших мастеров на этот счет разделились — одни считают, что лучше ставить две сетки, чтобы уж наверняка, другие, что одной достаточно для большинства конструкций.Форум посвящен этому вопросу. Одним словом, за однослойное армирование ратует alexxxxx , один из профессионалов, изготавливающих монолитные лестницы на заказ.
Алексхххх
Армирование в монолитных конструкциях нужно в растянутой зоне, а какое напряжение в верхней части плиты? Там арматура лежит мертвым грузом — это первое. Двойное армирование требуется в очень редких случаях, делать его на всех лестницах — это перенос материала и лишняя работа, это второе.
В-третьих, общий объем арматуры в процентном соотношении регламентируется СНиП. Если для меня при однослойной арматуре этот процент приближается к пределу, то при двухслойной арматуре этот СНИП-процент точно будет превышен. В-четвертых, на пролете три метра использую арматуру диаметром 12 мм с шагом 120-130 мм. Для сравнения, монолитная плита перекрытия в шесть метров армируется такой же арматурой с шагом 200 мм. Что будет сильнее? Из более чем 100 сделанных мной лестниц три изготовлены под контролем технадзора, по армированию технадзор замечаний не делал — это пятая.
Согласно alexxxxx, двойное армирование оправдано, когда:
- есть защемление верха и низа — если нет третьей опоры;
- вообще нет опоры снизу и сверху, и конструкция «висит», врезанная в стену;
- лестница на один косоур — верхняя арматура и хомуты предотвращают перекручивание косоура;
- с тонкими монолитными ступенями, например, один боковой косоур — нижняя арматура ступеней работает на сжатие, а верхняя — на растяжение;
- лестничный марш пересекает подпорную стенку (необходимо уменьшить толщину нижнего слоя так, чтобы вместе с верхним не превышала допустимого процента).

Исключение составляют типовые заводские марши, рассчитанные на высокую пропускную способность и использование как внутри, так и снаружи — они всегда имеют двойное армирование.
У одного из модераторов нашего форума другая точка зрения.
Роландспб
Я обычно всегда делаю две сетки на лестнице, несмотря ни на что. Но в целом, конечно, они не всегда нужны. Если растяжение очевидно в нижней зоне, то усиление в верхней зоне не требуется.Но, на самом деле, перебег по верхней сетке лестницы около 100 кг, много не наберешь. Армировать лестницу довольно сложно несколькими изгибами стержней из верхней зоны в нижнюю. Особенно мне не нравится переход с нижнего марша на платформу или плиту. Изогнутый хвостовик может не работать в определенном диапазоне. Поэтому соединяю два стержня (один из нижней зоны плиты, а второй из нижней зоны марша), каждый из которых анкерую в месте их пересечения и вывожу в верхнюю зону марша и плита соответственно.А в переходе от плиты к верхнему маршу — там, на мой взгляд, вполне можно оставить просто отогнутые стержни, идущие от низа плиты к низу марша. Не факт, что именно так и должно быть. Но я делаю это. Я ни за кого не агитирую.
Бетонирование монолитной лестницы
Для монолитных лестниц целесообразно использовать заводской бетон, класса от В20 (М250), а лучше В25 или В30. Если нет возможности заказать готовый раствор, то подойдет и самодельная смесь, приготовленная в бетономешалке, но использование пластификаторов обязательно.Типичное соотношение цемента, песка и щебня (фракция 10×20 мм) – 1/3/3, раствор не должен быть слишком жидким.
Лестницу заливают в один подход, начиная с нижних ступеней, продвигаясь вверх, каждую ступеньку необходимо вибрировать для предотвращения образования пустот. В процессе вибрации возможно сдавливание или оседание бетона, излишки перераспределяются, после окончательной усадки поверхность ступеней тщательно заглаживается правилом или кельмой. Для равномерного набора прочности рекомендуется накрыть бетон пленкой и увлажнять ее несколько раз в день в течение недели.
Примерно через неделю проводится частичная зачистка – снимаются поперечины и борта, чтобы провести черновую шлифовку. Дно снимают не ранее, чем через 3-4 недели, когда конструкция наберет необходимую прочность. Следующим этапом будет отделка – установка заборов, оштукатуривание, облицовка деревом, плиткой, камнем или другим материалом. Раньше в процессе бетонирования обязательно делались закладные, сегодня они потеряли свою актуальность.
Алексхххх
Почему ипотека? Будут ли перила для сварки? Получится очень эстетично! А установщики поручней вспомнят очень «добрым» словом человека, поставившего эти закладные, когда им нужно будет выдолбить в этом месте отверстие для крепежа.Сейчас перфораторы есть у всех, а анахронизм в виде закладных только мешает нормально установить перила. Зачем нужна закладная, когда лучше смотрятся скрытые крепления. о монолитной лестнице по технологии несъемной опалубки.
Лестница — архитектурно-строительная конструкция, к которой предъявляются особые требования по прочности, эксплуатационной надежности и безопасности. Кроме того, особое значение имеет внешний вид этого конструктива. Ведь кроме эксплуатационной пригодности лестница должна логично вписываться в экстерьер или интерьер, лаконично его украшая.Немаловажную роль играют материалы строительства и отделки, а точнее их качество. При выборе материалов лучше отдавать предпочтение только качественным образцам, ведь лестничная конструкция возводится не один десяток лет. Тогда из какого материала лучше всего сделать лестницу самостоятельно? Опыт показывает, что бетонные лестницы самые прочные. И сегодня мы поговорим о том, как сделать бетонную лестницу своими руками. Почему этот материал лидирует в строительстве лестничных конструкций? Этому есть несколько основных причин.Во-первых, бетон имеет высокие прочностные характеристики; ему можно придать любую форму для достижения требуемой архитектурной выразительности. А во-вторых, лестница из бетона своими руками делается в два счета, чему мы и постараемся вас научить в этой статье.
Итак, мы уже отметили пару преимуществ использования бетона в качестве материала для изготовления лестниц. Думаем всем известно, что бетон – это искусственный каменный материал, который получают путем гидратации цементно-песчаной смеси и добавления крупного заполнителя необходимой фракции.В зависимости от водоцементного отношения и марки используемого цемента можно получить нужный вам класс прочности бетона. Таким образом, каждый человек в состоянии самостоятельно заложить необходимое качество и долговечность будущей лестницы. Конечно, все зависит от финансов, которые у вас есть: вы можете купить цемент подороже или подешевле, добавить или не добавить крупный заполнитель.
Устройство бетонных лестниц одинаково допустимо как внутри, так и снаружи здания. Кроме того, следует отметить следующее:
- Монолитные бетонные конструкции не боятся динамических нагрузок, так как не имеют элементов, способных расшатываться;
- Эти конструкции полностью пожаробезопасны;
- Позволяют воплотить самые сложные дизайнерские идеи;
- Изготовление лестницы из бетона дает полную свободу в выборе отделочных материалов.
Если мы убедили вас в неоспоримых преимуществах использования бетона, то переходим к следующему шагу.
Перед началом работ
Лестница из бетона своими руками может быть изготовлена в нескольких вариантах. Прежде чем приступить к строительству, необходимо выбрать конструкцию. Всю лестницу или исключительно косоуры можно сделать монолитными, на которые впоследствии будут устанавливаться сборные железобетонные или деревянные ступени без подступенков.Конечно, вторая из вышеперечисленных конструкций намного проще в исполнении и отличается меньшим весом. Однако следует учитывать, что в зоне отдыха такие лестницы неуместны из-за щелей в конструкции, через которые на головы может попасть песок и пыль от обуви проходящих по ней людей.
Также следует отметить такую особенность: возведение лестниц в подвал, на веранду или чердак, а также на второй этаж здания осуществляется непосредственно при возведении всего объекта.После завершения строительных и отделочных работ возведение отдельной монолитной конструкции не представляется возможным. Если вы не успели подумать о бетонной лестнице до окончания строительства, то выручить вас из этой ситуации может только деревянная или металлическая конструкция. После того, как вы определились с конструктивным решением, необходимо предварительно рассчитать геометрические параметры, несущую способность и, конечно же, вес конструкции. Геометрия, вес и прочность лестницы являются основными критериями ее безопасной эксплуатации.
Этапы строительства Строительство
Изготовление лестницы из бетона включает три основных этапа, которые, в принципе, характерны для любых конструкций из монолитного железобетона:
- Бетонирование. После того, как опалубка и арматура установлены, переходят к заливке бетонной смеси. Важным процессом на этом этапе является вибрация бетона для его уплотнения и удаления лишнего воздуха.
Процесс заливки опалубки бетоном
Строители знают, что установка опалубки, пожалуй, самый трудоемкий процесс, особенно если вы собираетесь делать лестницу со сложной геометрией.
Совет! Если вы решили сделать не простую маршевую лестницу, а сложную витиеватую винтовую конструкцию, срочно обращайтесь за помощью к опытным специалистам.
Начало работ по возведению железобетонной конструкции
Итак, как мы уже говорили, первым этапом строительства лестницы является ее предварительный расчет. Перед началом строительных работ нужно хотя бы от руки прикинуть эскиз лестницы с определением всех размеров. Здесь следует руководствоваться отечественными нормами проектирования, которые гласят следующее:
- ширина лестничного марша должна быть 0,8-0,9 м;
- угол наклона лестницы, комфортный для подъема, 30°-45°. Превышение угла в 45° нежелательно, так как крутая лестница может привести к травме;
- глубина ступени комфортная для шага человека около 30 см, а ее высота 17 см.
Следующий важный момент – выбор основания для лестницы.Если строительство лестницы ведется снаружи здания, ее можно устроить на естественном основании. Однако в этом случае грунт необходимо предварительно уплотнить и для большей надежности устроить подстилающий слой, например, из щебня. Помните, что нагрузка на землю не должна превышать 1кг/см2. Учитывайте это при расчете общего веса конструкции и выборе отделочных материалов для лестницы. Помимо натурального, лестницы строятся и на бетонном основании, которым могут быть балки и фундаменты.
Бетонная конструкция
После выполнения всех необходимых расчетов, выбора фундамента и подготовки строительных материалов начинается строительство. Опалубку удобнее всего делать из водостойкой фанеры толщиной 18-20 мм. Для устройства стоек и опор лучше выбрать брус, сечение которого 10х10 см, а для изготовления криволинейных поверхностей – узкую доску или фанеру толщиной 9мм. При сборке опалубки не допускайте появления щелей и зазоров, следите за тем, чтобы все поверхности были строго вертикальными и горизонтальными.Соедините элементы опалубки с помощью саморезов. Рабочая арматура лестницы устанавливается по опалубке. В поперечном направлении укладывается конструктивная арматура, которая образует с рабочими стержнями плоскую сетку. В настоящее время рекомендуется вязать арматуру вручную без использования сварки. Не забудьте также предусмотреть металлические закладные детали, которые понадобятся для лестничного ограждения. Сборка опалубки наружной лестницы
После укладки арматуры в проектное положение приступайте к бетонированию.
Важно! Заливка бетона начинается с нижней ступени и постепенно поднимается вверх по маршу.
Минимальный класс бетона — B15. После того, как бетон наберет проектную прочность, снимите щиты опалубки.
| Класс бетона по прочности на сжатие | Прочность бетона на сжатие, кг/см² | Ближайшая марка бетона по прочности |
|---|---|---|
| АТ 5 | 65.5 | М 75 |
| 7,5 | 98,2 | М 100 |
| АТ 10 | 131,0 | М 150 |
| Б 12,5 | 163,7 | М 150 |
| Т 15 | 196,5 | М 200 |
| В 20 | 261,9 | М 250 |
| В 22,5 | 294,4 | М 300 |
| Т 25 | 327.4 | М 350 |
| Т 30 | 392,9 | М 400 |
| Т 35 | 458,4 | М 450 |
| Т 40 | 523,5 | М 500 |
Заключительные ступени
Вот, собственно, и все основные моменты по строительству бетонной лестницы своими руками. После того, как бетон полностью наберет прочность, можно приступать к отделке марша и установке забора.Чтобы не создавать лишнего напряжения, для отделки рекомендуется использовать дерево. И ступени, и поручни с балясинами могут быть выполнены из дерева. Ступени также можно отделать керамической плиткой. В основном бетон – это материал, который гармонично сочетается с любым другим материалом, поэтому вы ничем не ограничены в выборе отделки. В современных интерьерах очень часто используются чистые бетонные поверхности, поэтому, возможно, именно для вашего дома оптимальным вариантом будет минимальная отделка лестницы защитными составами и шлифовка поверхности.Как видите, изготовление лестницы – трудоемкий, но вполне посильный процесс даже для новичка в строительной сфере.
В этой статье мы расскажем, как сделать лестницу из бетона своими руками.
Положительные стороны:
- Долгий срок службы;
- Укрепляет конструкцию здания;
- Влагостойкий;
- Огнеупорный материал;
- Бесшумный;
- Большой ассортимент декора и лепки.
Выбирают бетонный вариант, так как затраты на него небольшие.Вложения только на покупку материала для изготовления и личного времени. Такая лестница возводится одновременно со строительством дома. На общем чертеже конструкции дома намечают место для установки лестничного марша.
Первые приготовления
В первую очередь требуется рассчитать количество ступеней, чтобы вписаться в определенный участок здания. От этого зависит удобство перемещения по лестнице.Для стандартной высоты ступени при подъеме используется 17 см. Ширина должна быть не менее одного метра. Также продумайте закладные детали для будущих перил.
Материал
Для приготовления бетона взять: цемент (1 часть), щебень крупностью 10-20 мм (3 ч), песок (2 ч), воду (0,7 ч). Если бетон густой, можно добавить еще немного воды.
Для изготовления опалубки приобретают строительный брус 10Х10 см, водостойкую фанеру сечением 2 см или обрезную доску от 3 см, арматуру, металлический уголок.Деревянная конструкция крепится саморезами 3,5 см, которые удобно извлекать при демонтаже.
Опалубка представляет собой короб, в который заливается бетон. Он возводится прямо на строительной площадке. Лучший материал для использования – дерево. Его можно легко удалить после того, как раствор затвердеет. Ширина досок должна быть равна высоте ступеней. Опоры устанавливаются перпендикулярно основанию лестницы специальными креплениями к опоре.
Следует помнить, что бетонная лестница имеет большой вес, а значит, опоры должны быть массивными и прочными.
Щиты опалубки дополнительно фиксируются продольной пластиной во избежание прогиба при заливке бетоном. Вся конструкция собирается с помощью саморезов, чтобы ее можно было легко разобрать после эксплуатации. Если использование опалубки продолжается и дальше, дерево рекомендуется защитить гидроизоляционным материалом: алкидным лаком (покраска), рубероидом, пергамином, клеенкой, старым линолеумом.Это делается для предотвращения деформации досок при контакте бетонного раствора с водой.
Для усиления лестничного марша делается каркас из металлических прутьев. Его укладывают по несущим кромкам и соединяют сваркой на расстоянии 3 см от опалубки до арматуры. Чтобы прикрепить железную сборку к стене, в нее вбивают штыри.
Типы лестничных конструкций
Из всех конструкций можно выделить основные виды:
- винт
- — имеет вид закрученной в центре спирали;
- поворотный — марши могут быть расположены друг к другу под углом 90 o и 100 o;
- прямая наиболее удобна для подъема, не требует больших физических затрат на подъем, но занимает большое количество полезной площади.
Сначала готовится бетонная смесь. Перед заливкой в опалубку с той стороны, где будут находиться поручни, вставляются деревянные пробки или железные штыри для дальнейшего крепления. Затем заливают бетон в короба опалубки. Чтобы края ступеней не крошились в процессе эксплуатации, к ним приваривается металлический уголок.
Заливку следует производить за один раз, чтобы избежать отслаивания.
После заливки опалубки раствор необходимо уплотнить и разровнять.Только после полного высыхания бетона приступают к демонтажу деревянной формы и подъему по лестнице.
Внутри помещений бетонная лестница редко остается без облицовки. Для отделки железобетонной формы могут использовать:
- Ламинат.
- Натуральное дерево.
- Камень.
- Керамическая плитка.
Для изготовления парапета используется стекло; украшение всей лестницы может быть произведением из металла.Богато смотрятся деревянные перила в виде скульптур. Выбор варианта ограждения зависит от стиля внутренней отделки помещения, каким материалом отделана лестница.
Облицовку делают не только на ступенях и площадках, но и на тыльной стороне лестницы. Для этого используют декоративную штукатурку, керамическую или керамогранитную плитку. Лестница, выполненная такими методами, несомненно, всегда радует глаз людей – независимо от того, находится ли она в загородном коттедже или соединяет этажи предприятия.
Если замечено, что в лестнице появились какие-то деформации, например, трещины или что-то еще, необходимо вовремя их устранить. Для этого можно использовать следующие способы, в зависимости от дефекта: цементно-песчаный раствор, анкерные болты или что-то другое. Если вовремя проводить профилактические работы, дефектов можно избежать.
Вы сами построили лестницу в своем доме? Поделитесь своим личным опытом с нашими читателями, оставив комментарий к статье.
Видео
Предлагаем посмотреть видео о строительстве монолитной бетонной лестницы.
Этапы и методы заливки бетона
Ключевые факторы, которые необходимо учитывать при заливке бетона, обсуждаются в этой статье. При заливке бетона необходимо соблюдать основные этапы и процедуры.
Заливку бетона начинаем после прохождения следующей процедуры.
- Подготовка
- Формование
- Установка и выравнивание
- Заливка бетона
- Отделка
- Отверждение
Подготовка
Однако часть работы первого этапа должна быть проделана на этапе подготовки. В этом состоянии мы можем перечислить следующие пункты работ, которые нам необходимо выполнить по существу перед заливкой бетона.
В данной статье рассмотрим конструкцию бетонной плиты.
- Для начала работы необходимо сделать опалубку.
- На начальном этапе укладывается нижняя часть балки (нижняя опалубка балки) для начала работ по армированию.
- Выполнена разметка балки, после чего балки располагаются в соответствии с их выравниванием.
- В колоннах отмечены уровни для крепления нижней опалубки балки.
- Далее приступаем к креплению арматуры балки. Это можно сделать двумя способами.
- Первый способ, закрепляющий арматуру в одном и том же месте в балке.
- Другой метод заключается в закреплении арматуры балки над балкой, так как это очень просто в работе, и после завершения фиксации арматуры арматура балки опускается в правильное положение.
- Аналогичным образом, крепление арматуры плиты может быть выполнено после укладки арматуры плиты.
- Установка блоков крышки также выполняется с креплением арматуры для удержания крышки к арматуре .
- На этих этапах выполняются необходимые проверки, чтобы убедиться в правильности крепления арматуры согласно строительному чертежу.
- Консультант или группа управления проектом также проведут инспекционную работу по проверке армирования.
Опалубка
На этом этапе выполняется установка опалубки. Однако для продолжения работ по армированию необходимо закрепить часть опалубки.
Прежде чем крепить опалубку, мы делаем разметку. Необходимые уровни выставляются, работы выполняются до начала опалубки.
Нивелир и тахеометр используются для получения правильных уровней и расположения линий сетки.
В соответствии с конструкцией опалубки в нижней части балки закрепляются подпорки (опоры). Расстояние между опорами должно соответствовать проекту опалубки, утвержденному инженером.
После закрепления балочной арматуры укладывается плитная опалубка.
Расстояние между опорами опалубки соответствует утвержденному описанию метода или утвержденным чертежам опалубки. После закрепления вертикальных стоек перед укладкой листов опалубки устанавливаются необходимые лаги.
Выравнивание опалубки также производится перед тем, как приступить к креплению арматуры. Далее нам нужно сделать несколько проверок, прежде чем приступить к заливке бетона.
В статье под номером Опалубка для бетонных колонн обсуждается опалубка для колонн и связанный с ней аспект выбора подходящей опалубки.
Кроме того, дальнейшее чтение можно сделать из статьи в Википедии Опалубка .
Разметка и нивелировка
Проверка разметки и нивелировка являются неизбежными шагами, которые необходимо выполнить, прежде чем приступить к заливке бетона. Этими шагами будет регулироваться точность работы, которая показалась снаружи.
Первый этап проверки – выравнивание опалубки перекрытий. Правильная машина используется для проверки уровня плиты.Обычно уровни перекрытий проверяют по мягкости опалубки.
После проверки работ по армированию производится установка работ по армированию. На этом этапе мы в основном проверяем разметку колонны, так как при разметке балочной опалубки другие разметки автоматически охватываются.
Если арматура колонны не выровнена с линиями сетки или не вертикальна, ее необходимо исправить до начала бетонных работ.
Затем будет выполнена разметка плиты.Отступы, отмеченные на опалубке перекрытий, используются для выполнения работ по разбивке.
Дальнейшая информация по установке плит должна быть сделана по статье Методы установки плит .
После всех проверок приступаем к заливке бетона.
Заливка бетона
В разделе «Заливка бетона» необходимо обсудить две вещи.
Необходимо рассмотреть основные методы и методы заливки бетона.Из них, во-первых, мы обсуждаем ключевые аспекты, которые следует учитывать при заливке бетона.
- Время схватывания бетона : При заливке бетона необходимо обращать внимание на время начального и конечного схватывания. Обычно время начального схватывания бетона составляет около 45-60 минут. Однако его можно модифицировать, добавляя примеси. Время схватывания можно проверить, как указано в статье 6 различных испытаний цемента . Время схватывания может быть увеличено в соответствии с требованиями проекта и в соответствии с испытаниями при испытании смесей.
- Образование холодных швов : Холодные швы образуются при заливке бетона, который начал твердеть. Таким образом, бетон должен быть залит до установки параметров. При бетонировании большой заливки новый слой бетона будет залит перед началом укладки существующего слоя. Предотвращает образование холодных швов.
- Схема заливки : Когда необходимо забетонировать большой объем бетона, подготавливается схема заливки для планирования последовательности заливки бетона.В соответствии с запланированной последовательностью будет производиться заливка бетона во избежание образования холодных швов.
- Уплотнение бетона : Требуется достаточное уплотнение бетона для достижения требуемого качества и прочности. Вибратор Porker используется для уплотнения бетона. Период вибрации должен соответствовать толщине и типу смеси. Уплотнение должно производиться до тех пор, пока не будет удален захваченный воздух и бетон не уплотнится надлежащим образом.
- Самоуплотняющийся бетон : В особых случаях, когда трудно выполнить уплотнение бетона вручную, используется самоуплотняющийся бетон.Самоуплотнение бетона достигается за счет состава смеси. Глубокие и большие фундаменты, бетонирование свай и т.п. выполняются из самоуплотняющегося бетона.
- Высота свободного падения : В разных руководствах указаны разные диапазоны. Как правило, это от 3 до 5 футов. Технически желательно, насколько это возможно, избегать свободного падения бетона, чтобы избежать сегрегации.
- Контроль температуры : В зависимости от размера заливки необходимо ограничить повышение температуры и контролировать изменение температуры на поверхности бетона.Методы ограничения повышения температуры бетона обсуждаются в отдельной статье.
Отделка
Отделка бетонных работ начата на разных этапах. После заливки бетона производится выравнивание. На этом этапе также можно выполнить финишную отделку бетона.
Кроме того, отделочные работы можно выполнять, когда бетон затвердеет до определенной степени, при которой затирочная машина может укладываться на бетон.
В зависимости от требуемой отделки бетона и с учетом неровностей бетонной поверхности, отделка бетонных работ может быть выполнена штукатуркой.
Отверждение бетона
Отверждение является одним из наиболее важных действий, которое мы должны выполнить после завершения бетонирования.
Существуют различные методы отверждения и время отверждения бетона.
Артикул 11 Методы отверждения бетона Можно сослаться на знание методов отверждения.
Кроме того, статья, написанная как 6 факторов, влияющих на время отверждения бетона , может предоставить дополнительную информацию для определения периода отверждения.
Как правило, отверждение является обязательным процессом, который следует выполнять после бетонирования, так как оно придает бетону дополнительные преимущества и безопасность. Поэтому отверждения не избежать. Если мы не вылечили бетон, возникнут следующие основные проблемы.
- Растрескивание бетона
- Повлияет на долговечность бетона
- Снижение прочности бетона
Бетон Заливка варьируется от элемента к элементу. Давайте обсудим доступные методы заливки бетона.
Бетонирование колонн и стен
Бетонирование колонн производится с помощью тремовой трубы или с помощью выемки в опалубке колонны во избежание расслоения бетона при свободном падении.
Чаще всего для заливки бетона в колонну используется треугольная труба внутри колонны. Вибратор Porker используется для уплотнения бетона после каждой заливки.
Или трубу ухода за насосом можно вставить непосредственно в бетонную колонну, где это возможно.
При бетонировании с помощью тележки-насоса она должна обеспечивать достаточное уплотнение. Непрерывная заливка бетона несколько затруднит его уплотнение.
Бетонирование плит, балок и фундаментов
Заливка плит бетоном является обычным делом. Это обычно. После завершения работ по армированию и получения всех необходимых согласований можно приступить к заливке бетона.
Бетон можно заливать в плиту с помощью автонасоса или заливать бетон в плиту вручную.
Заливка бетона в сваи
Бетонирование свай отличается от других методов бетонирования. Для бетонирования свай используются специальные методы.
После завершения земляных работ в выкопанную сваю вставляется тремовая труба.
Затем производится промывка до полной очистки сваи. Проводятся необходимые тесты, чтобы убедиться, что очистка адекватна.
После получения всех разрешений на бетонирование бетоном заливается трем труба.Затем трубу слегка приподнимают, позволяя бетону стечь снизу. Таким образом ожидается, что все разрыхленные материалы будут перемещаться вверх вместе с исходным бетоном.
После того, как поток бетона в бетономешалке остановлен, бетон снова заливается. Треми будет слегка приподнята, что позволит течь бетону. Когда мы делаем это, конец трубы tremie всегда будет находиться в свежем бетоне, а свежий бетон не будет смешиваться с исходным бетоном или бетоном, смешанным с бентонитом.
Эту процедуру можно выполнять до завершения бетонирования сваи. Труба Tremie не должна выходить за пределы свежего бетона из-за каких-либо проблем.
Кроме того, необходимо контролировать скорость течения бетона, чтобы избежать подъема арматурного каркаса. Если скорость текучести бетона высокая, то арматурный каркас приподнимется и после этого его нельзя будет опустить. Поэтому этому вопросу следует уделить особое внимание.
33+ Самые Стильные Идеи Бетонных Лестниц • 333+ Фото • [АртФасад]
Бетон стал интересным и необычным инструментом стилизации и декорирования пространства не только в творческих направлениях хай-тек, минимализм, лофт, фьюжн, но также в классике.Это решение для тех, кто готов добавить необычности своему дому. Сейчас архитекторы часто используют этот материал для реализации идей лестниц из бетона непосредственно в жилых помещениях, экстерьерах.
Внешний вид и конструктивные особенности рассмотрим далее на нескольких примерах.
Идеи бетонной винтовой лестницы
В отличие от лестниц из железобетона, применяемых в многоэтажных домах, в частном домостроении эти конструкции в основном отливают непосредственно на строительной площадке.Это дает возможность использовать не готовые стандартизированные траектории полета с завода, а создавать уникальные изделия индивидуальной конфигурации.
Монолитная технология позволяет реализовать самые креативные идеи от бетонных лестниц до конструкций, «парящих» в воздухе, витых изделий, которые на первый взгляд противоречат законам физики. Внешне их часто отделывают натуральным камнем, штукатурят.
Из бетона можно создать самые причудливые и необычные формы.Скрутите ступени и сделайте их нестандартными и интересными, добавив пространству эксклюзивности.
Из монолита можно отливать как грубые, прямолинейные формы, так и создавать ажурные, плавные конструкции, смягчающие интерьер. Дополнительная отделка, подсветка и оформление в модных белых тонах визуально придают им легкость.
Идеи бетонных лестниц с подвесными ступенями
Технология строительства бетонных лестниц позволяет создавать ступени с эффектом парения в воздухе.В домах с оригинальным дизайном их часто обустраивают не только внутри, но и снаружи.
Ступени могут вести на террасу на крыше, чердак, второй этаж. Стилизация под общую концепцию позволяет интегрировать конструкцию с дизайном дома, сделать ступени неотъемлемой частью дизайна здания.
Дизайнерские идеи лестницы из бетона – это не просто функциональный элемент жилого помещения или экстерьера, но и важная составляющая дизайна интерьера, фасада.Благодаря универсальности бетона из него создаются самые причудливые формы, а количество решений поразительно велико. Поэтому при грамотном подходе всегда получится реализовать что-то оригинальное и необычное даже по современным меркам.
Креативный дизайн внешней бетонной лестницы
Часто при строительстве дома на неровной площадке вместо дорожки, ведущей к зданию, устраивают ступеньки. В этом случае отделка дома начинается с проектирования наружной бетонной лестницы.Дизайн должен гармонировать с дизайном здания, быть удобным и практичным для использования всеми членами семьи.
Архитекторы и дизайнеры предлагают достаточно необычные и удобные решения, которые эффектно вписываются в сюжет и органично вписываются в экстерьер коттеджа. Рассмотрим самые зрелищные из них.
Внешняя бетонная лестница необычного наклонного дизайна
Если спуск на участке не крутой, можно устроить широкие невысокие ступени.Оригинальная архитектурная идея предполагает заделку плит в склон таким образом, чтобы они образовывали асимметричную конструкцию из бетонных листов. Создается впечатление хаотично сложенных плит, по которым карабкаешься к дому.
Еще одно оригинальное решение – широкие тонкие плиты на приподнятом каркасе. Лестница низкая, плоская, удобная даже для пожилых людей и детей. А за счет установки ступеней на специальной надземной конструкции они всегда остаются чистыми, не вымывают почву с газона.
Следующий вариант оформления наружной бетонной лестницы состоит из трех секций широких ступеней, плавно спускающихся внутрь здания, врезанного в холм. С одной стороны конструкции предусмотрена опорная стена, а с другой – газон.
Модный дизайн наружной бетонной лестницы
Технология монолитного строительства позволяет реализовать самые необычные, модные варианты уличных лестниц. Это может быть спиральная конструкция, по которой можно подняться прямо со двора на террасу на уровне второго этажа.
Также возможно создание ступеней, которые висят в воздухе, один край которых встроен в опорную стену. Это минималистская конструкция, соответствующая последним тенденциям дизайна и архитектуры.
В тренде остается лаконичный, незамысловатый дизайн ступеней на площадке. Дизайн особенно эффектен благодаря большому количеству зелени, модному внешнему виду здания. Он не перетягивает на себя внимание, а выступает гармоничным дополнением ландшафта.
Продуманный дизайн наружной бетонной лестницы – это удобный и стильный подход к дому.Эта часть ландшафтного дизайна должна тесно связывать здание с окружающей его средой. Можно сказать, что это своеобразный инструмент повышения комфортности территории вокруг дома и интеграции дачи в окружающую природу.
Стильная интерьерная лестница из бетона
Монолитные бетонные конструкции – тренд современных стилей минимализм, лофт, техно. В связи с этим при оформлении жилого помещения стало популярным оформление внутренней лестницы из бетона.Он может быть любой формы и конфигурации, выполнять исключительно функциональную роль в пространстве, а также быть его оригинальным украшением.
В зависимости от формы, размера, конфигурации и отделки монолитная бетонная лестница может стать акцентом грубого интерьера или тонко вписаться даже в мягкую, светлую и уютную домашнюю обстановку.
Строгий интерьер лестницы из бетона
Если вы хотите сделать акцент на урбанизированном интерьере, подчеркнуть индустриальный стиль, стоит сконструировать бетонную лестницу простых, прямых и грубых форм.Она подчеркнет неординарную, классную обстановку. Здесь пригодится дополнительное освещение и много естественного света. Так дизайн не будет выглядеть мрачно и сыро.
Для визуального облегчения можно использовать много стекла рядом со ступенями, например, установить стеклянные ограждения, поручни. Решение также выглядит современно и соответствует последним тенденциям в дизайне жилых помещений.
Внутренняя бетонная лестница с деревом
Чтобы смягчить ситуацию, бетонную лестницу объединили с деревом.Сверху монолитные ступени отделаны ламинатом. Дизайн стал теплее, дружелюбнее к человеку. Дерево в окружении бетона сделало интерьер уютным и по-домашнему уютным. Кроме того, сочетание этих материалов выглядит гармонично и красиво.
Деревянный настил также повлиял на безопасность изделий из бетона. Такая конструкция внутренней бетонной лестницы достаточно удобна и безопасна, особенно если в доме есть дети. Индустриальная атмосфера сразу становится менее выразительной и мрачной.Чувствуется присутствие живой природы, и помещение приобретает черты экологичности.
Элегантный дизайн внутренней бетонной лестницы
Благодаря возможности реализации конструкций любой формы из железобетона, лестницу можно сделать изысканным украшением окружающей среды. Для этого его отливают плавными линиями с динамичными переходами. Сооружение сложной, замысловатой конфигурации вносит в атмосферу элемент роскоши и шарма, хотя для него был выбран достаточно грубый материал.
№Эта внутренняя бетонная лестница подходит непосредственно для жилых помещений даже в достаточно консервативных стилях. Это золотая середина между модной индустриализацией и традиционным комфортом.
Что лучше и чем они отличаются
Лестницы являются ключевым элементом любой многоуровневой конструкции, включая промышленные, коммерческие и жилые здания. Важен не только дизайн лестницы, но и материалы, выбранные для строительства.
В то время как лестницы могут быть изготовлены из других материалов, таких как дерево и камень, бетон и сталь чаще всего используются для строительства промышленных и коммерческих лестниц. В этой статье будут рассмотрены сходства и различия между бетонными лестницами и стальными лестницами.
В чем разница между бетонными лестницами и стальными лестницами?
Разница между стальными лестницами и бетонными лестницами, очевидно, заключается в основных материалах, используемых для строительства.Стальные лестницы изготавливаются в основном из стали, а бетонные лестницы изготавливаются из бетона. Материалы имеют разную стоимость и преимущества для разных приложений. Стальные лестницы, как правило, легче, прочнее и более универсальны в дизайне, чем бетонные лестницы.
- Сталь представляет собой сплав железа, углерода и других материалов. Сталь, используемая в лестницах, часто гальванизируется с долговечным цинковым покрытием, чтобы предотвратить попадание коррозионных веществ на сталь внизу. В других случаях для строительства используется нержавеющая сталь, естественно устойчивая к коррозии.
- Бетон состоит из трех компонентов: воды, заполнителя (камень, песок или гравий) и цементного порошка. Цемент действует как связующее вещество при смешивании с водой и заполнителем, который при заливке затвердевает в бетон.
Другие различия между стальными лестницами и бетонными лестницами заключаются в том, где они обычно находятся, и в типах лестниц, для которых они используются.
- Стальные лестницы популярны во внутренних помещениях жилых, деловых и промышленных зон.Сталь также можно использовать для изготовления наружных лестниц, особенно если они изготовлены из оцинкованной или нержавеющей стали. Сталь является популярным материалом для перекрестных, чередующихся ступеней и антресольных лестниц в промышленных помещениях, а также для винтовых лестниц в жилых домах и коммерческих зданиях.
- Бетонные лестницы популярны для наружного использования, но также могут использоваться в качестве основания лестниц в коммерческих и жилых зданиях, которые затем покрываются другими материалами. Бетон обычно используется для более простых типов лестниц, таких как прямые лестницы или L-образные лестницы.
1. Сравнение прочности и долговечности бетонных лестниц и стальных лестниц
Как бетонные, так и стальные лестницы прочны и долговечны. Каждый тип лестницы имеет свои преимущества и недостатки в зависимости от среды, в которой они используются.
Сталь— самый прочный материал, который можно использовать для изготовления лестниц. Стальные лестницы обладают высокой прочностью на растяжение, что означает, что они устойчивы к разрушению под нагрузкой.Оцинковка стали для защиты от коррозии увеличивает ее долговечность, особенно в экстремальных погодных условиях. Сталь почти в пять раз прочнее бетона и способна выдерживать чрезмерный вес. Стальная лестница прочнее, чем лестница из бетона, а также может быть построена с использованием гораздо меньшего количества материала, чем бетон.
Бетонобладает высокой прочностью на сжатие, что означает, что он сопротивляется силе сжатия. Однако он не обладает прочностью на растяжение стали.Из-за этого бетонные лестницы иногда строят со скрытой металлической арматурой или арматурой. Бетонные лестницы выдерживают большие нагрузки и сильные удары, не ржавеют во влажных условиях. Кроме того, бетон огнестойкий, поэтому его часто используют для пожарных лестниц. Поскольку бетон может поглощать вибрации, он эффективен в качестве звукоизоляции, что делает его идеальным для больничных или школьных лестниц. Бетон способен удерживать тепло, облегчая обогрев лестничных клеток и снижая затраты на отопление.Хотя со временем бетон может треснуть, использование герметика может предотвратить это.
В некоторых случаях сталь и бетон комбинируются для создания лестницы, в которой используются преимущества обоих материалов. Стальные лестницы с бетонными ступенями часто используются в коммерческих и жилых зданиях. Стальная конструкция лестницы обеспечивает непревзойденную прочность, а бетонные ступени могут использоваться для снижения шума, обеспечения огнестойкости и снижения затрат на отопление.
2.Бетонные лестницы или стальные лестницы для эстетики и дизайна лестницы?
Когда дело доходит до эстетики и дизайна лестницы, сталь безоговорочно выигрывает у бетонной конструкции. Сталь не только прочна и долговечна, но и является гибким и адаптируемым материалом, из которого можно создавать различные конструкции, включая винтовые и круговые лестницы. Сегодня, особенно в домах и офисах, стальные лестницы считаются современными. Дерево, плитка или камень могут быть использованы для изготовления других частей стальных лестниц, таких как поручни, косоуры и балюстрады, для придания индивидуального и уникального вида.Кроме того, стальные лестницы могут быть спроектированы с открытыми подступенками, чтобы пропустить больше света и сделать помещение более просторным.
Бетонные лестницы, как правило, более функциональны, чем эстетичны. Хотя они служат своей основной цели, когда расположены на открытом воздухе или в скрытых частях здания, таких как гараж или подвал, их обычно не видно в основных частях зданий или жилых помещениях. Практически любой тип лестницы может быть создан из бетона. Однако качество бетона, используемого для лестницы, зависит от температуры, консистенции, смеси и опыта строителя.И бетонные лестницы трудно отлить или придать форму с большой точностью.
Сталь и бетон можно комбинировать для создания лестницы. Стальные лестницы с бетонными ступенями часто встречаются в гаражах, промышленных помещениях и между этажами многоквартирных домов. Лестницы такого типа, как правило, имеют более простую конструкцию, такую как прямая или обратная. Стальные лестницы с бетонными ступенями, как правило, более практичны и не используются в качестве элемента дизайна.
3.Варианты облицовки бетонных и стальных лестниц
Облицовка лестниц — это процесс покрытия существующих ступеней и подступенков другим материалом, например, деревом или плиткой. Облицовка лестниц часто делается, чтобы придать старой лестнице новый вид без затрат на строительство совершенно новой лестницы. Как бетонные, так и стальные лестницы могут быть облицованы или покрыты различными материалами.
Облицовка стальных лестниц проще и безопаснее, чем облицовка бетонных лестниц. Поскольку стальные лестницы, как правило, изготавливаются более точно, точные измерения могут быть выполнены до того, как компоненты облицовки будут точно вырезаны или изготовлены за пределами площадки.При облицовке стальных ступеней время монтажа меньше, а качество, как правило, выше.
При облицовке бетонных лестниц необходимо взять шаблоны ступеней и подступенков, чтобы убедиться, что облицовочный материал подходит правильно. Поскольку бетонные лестницы редко бывают точными на 100%, установка облицовки на них может быть затруднена. Кроме того, сверление бетонных лестниц для крепления облицовки отнимает много времени и сопряжено с риском. Сверление металлического арматурного стержня может повредить структурную целостность бетонной лестницы.
4. Стальные лестницы или бетонные лестницы: какие легче обслуживать?
За стальными и бетонными лестницами легко ухаживать. Стальные лестницы требуют минимального ухода. Наружные стальные лестницы могут быть оцинкованы для предотвращения ржавчины и коррозии. Затем их можно очистить с помощью мойки высокого давления. Если сталь покрыта порошковой краской, лучше всего использовать швабру или губку, чтобы не повредить покрытие. Внутренние стальные лестницы, как и антресольные лестницы, можно чистить, подметая или протирая мягким моющим средством.
Как и металлические лестницы, бетонные лестницы не требуют особого ухода. Внутренние бетонные лестницы можно просто протереть шваброй, чтобы удалить грязь. Наружные бетонные лестницы можно безопасно мыть под давлением, чтобы удалить грязь и другие отложения без риска повреждения бетона.
5. Цена стальной лестницы по сравнению с бетонной лестницей
Цена стальных лестниц, как правило, меньше, чем у бетонных лестниц. Во-первых, сталь является очень экономичным материалом для производства.Во-вторых, более низкие затраты на рабочую силу способствуют более низкой цене стальной лестницы. Строительство лестницы из стали занимает меньше времени, чем строительство из бетона. Все компоненты стальной лестницы могут быть изготовлены вне строительной площадки и доставлены на площадку готовыми к сборке в одно и то же время. Готовые модульные компоненты также могут помочь сократить время установки, чтобы снизить трудозатраты.
Бетонные лестницы дороже, чем стальные лестницы, из-за высоких трудозатрат, связанных со строительством из-за затрат времени.Строительство бетонной лестницы включает в себя подготовку фундамента, строительство опалубки, размещение арматурных металлических стержней и заливку бетона перед его отделкой и отверждением. Этот трудоемкий и грязный процесс в конечном итоге приводит к более высокой стоимости лестницы из бетона по сравнению с лестницей из
.
6. Стальные лестницы или бетонные лестницы: что более экологично?
И сталь, и бетон являются чрезвычайно устойчивыми строительными материалами. Сталь на 100 % пригодна для вторичной переработки, а глобальный уровень вторичной переработки составляет более 90 %.Сталь можно использовать снова и снова без ущерба для ее прочности и долговечности. Бетон можно измельчить для повторного использования в новых смесях, что делает бетонные и стальные лестницы одинаково устойчивыми.
Что лучше стальная лестница или бетонная лестница? Наш вывод
И победителем становится …. стали. Хотя и стальные, и бетонные лестницы просты в обслуживании и долговечны, стальные лестницы имеют много преимуществ по сравнению с лестницами из бетона.
- Бетон прочен и долговечен, способен выдерживать большие нагрузки и сильные удары, а сталь почти в пять раз прочнее.
- Стальная конструкция также выигрывает, когда речь идет об эстетике и дизайне лестницы. Стальные лестницы современны и изощренны, и их можно сделать практически любой формы, в то время как бетон просто скучен.
- Стальные лестницы легче и безопаснее облицовывать, чем бетонные. Стальные лестницы более точны, чем бетонные лестницы, которые можно повредить, просверлив в них отверстия для крепления облицовки.
- Пожалуй, самым главным преимуществом стальной лестницы является ее более низкая стоимость.Бетонные лестницы чрезвычайно трудоемки и поэтому намного дороже в строительстве.
В большинстве случаев стальные лестницы являются идеальным решением для любого промышленного, коммерческого или жилого помещения. Однако бывают случаи, когда бетонные лестницы или стальные лестницы с бетонными ступенями могут дать преимущество. Поскольку бетон является огнестойким, он может быть хорошим выбором для пожарных лестниц. Поскольку бетонные лестницы поглощают шум и тепло, их можно использовать для звукоизоляции и снижения затрат на отопление.
Часто задаваемые вопросы Какой материал лучше всего подходит для лестниц?
Лучший материал для лестниц зависит от области применения и окружающей среды. Стальные лестницы долговечны, экономичны и просты в установке для промышленных и коммерческих лестниц в офисах, квартирах и на предприятиях. Деревянные лестницы — потенциально менее дорогой вариант жилых лестниц в домах.
Бетонные лестницы дорогие?Бетонные лестницы часто дороже стальных или деревянных.высокие трудозатраты, связанные со строительством из-за затраченного времени. Строительство бетонной лестницы включает в себя подготовку фундамента, строительство опалубки, размещение арматурных металлических стержней и заливку бетона перед его отделкой и отверждением.
Металлические лестницы дорогие?Металлические лестницы — это наименее дорогой тип лестниц для применений, требующих высокой прочности, долговечности и низких эксплуатационных расходов. По этой причине металлические лестницы являются предпочтительным материалом для коммерческих и промышленных лестниц, таких как те, которые используются в квартирах, офисах, гостиницах и на заводах.
Как рассчитать лестницу | График гибки бетона и стержней (BBS)
Как рассчитать арматуру лестницы?
Шаги для расчета арматуры, необходимой для лестницы с изгибом:
- Найдите длину стержня X и стержня Y.
- Найдите количество стержней X и стержней Y.
- Оцените общую длину стержней X и Y стержней.
- Узнайте общий вес требуемой стали.
Какой бетон лучше всего подходит для лестниц?
Состав смеси для наружных бетонных лестниц должен быть смесью с давлением не менее 4000 фунтов на квадратный дюйм и низким водоцементным отношением .В более холодном климате предусмотрите вовлечение воздуха в бетон, чтобы помочь противостоять замерзанию, оттаиванию и химическим веществам против обледенения.
Как называется пространство под лестницей?
Если непосредственно под лестницей нет другого лестничного марша, треугольное пространство под лестницей называется « перемычкой» . Часто используется как шкаф.
Какая сталь используется для лестниц?
Нержавеющая сталь — еще один металл, который широко используется для изготовления лестниц и перил, особенно внутри помещений.Нержавеющая сталь названа в честь того факта, что она не окрашивается, не подвергается коррозии и не ржавеет так легко, как обычная (конструкционная) сталь.
Как рассчитать сталь для лестниц?
Шаги для расчета арматуры, необходимой для лестницы с изгибом:
- Найдите длину стержня X и стержня Y.
- Найдите количество стержней X и стержней Y.
- Оцените общую длину стержней X и Y стержней.
- Узнайте общий вес требуемой стали.
Какой материал лучше всего подходит для лестниц?
Винил является хорошим напольным покрытием для лестниц, поскольку он не скользкий и его легко чистить. Это также доступный вариант, который также поставляется с простыми процессами установки. Существуют различные типы винила, которые бывают в виде листов, плитки и досок.
Какой материал лучше всего подходит для ступеней лестницы?
Для ступеней лестниц из искусственных материалов лучше всего подходит нейлон . Хотя это высококачественный искусственный материал, он часто стоит меньше, чем натуральные материалы премиум-класса, такие как шерсть.Этот материал может похвастаться рядом преимуществ. Его очень легко почистить или пропылесосить.
Что такое формула лестницы?
Ниже приведена эмпирическая формула для внутренних лестниц, как указано в Стандартах архитектурной графики. Подступенок + проступь = 17,5 дюймов: 7,5 дюймов для высоты подступенка; 10 дюймов для глубины протектора.
Как рассчитать лестницу?
Пример расчета лестницы высотой 2,60 метра.
- Рассчитайте необходимое количество ступеней: При идеальном подступенке 18 см высота пространства делится на высоту каждой ступени.Результат всегда следует округлять в большую сторону: 260/18 = 14,44 = 15 шагов
- Рассчитайте высоту каждого подступенка: Высота пространства делится на количество ступеней, которое мы только что получили: 260/15 = 17,33 см высоты для каждого подступенка
- Рассчитайте ширину проступи: Примените формулу Блонделя: (2 x 17,33 см) + (1 x проступь) = 64. Размер каждой проступи составит 29,34 см.
Сколько стоит современная лестница?
Себестоимость установки и внутренней лестницы следующая.
| Цены на лестницы | |
| Деталь | Ставка |
| Средняя стоимость по стране | 3 563 долл. США |
| Средний диапазон | 2000-5000 долларов |
| Минимальная стоимость | 1043 долл. США |
| Максимальная стоимость | 8 869 $ |
Опасны ли парящие лестницы?
Плавающие лестницы могут пугать родителей с маленькими детьми , но это не обязательно.Плавающие лестницы или лестницы с открытым подступенком безопасны для детей, если они построены в соответствии со стандартами Международного жилищного кодекса (IRC).
Сколько стоят сборные лестницы?
Цена сборных железобетонных ступеней. Сборный набор лестниц с количеством ступеней от 3 до 15 стоит – от 300 до 2 000 долларов США 90 297. Этот вариант дешевле, чем цена литого цемента, но не такой гибкий. Установка быстрее.
- Средняя стоимость: 2000 долларов США
- Минимум: $900
- Высокий: 5000 долларов
Почему лестничные выступы такие дорогие?
Это , потому что большинство людей ходят по передней поверхности ступени .Когда передняя часть ступени выглядит растрепанной и изношенной, ее необходимо заменить, чтобы обновить внешний вид лестницы.
Нужны ли выступы для лестниц?
Вы не обязаны иметь выступ/выступ на ступенях лестницы. Но если у вашей лестницы нет выступа, вы должны иметь проступь длиной не менее 11 дюймов.
Сколько ступеней у стандартной лестницы?
Большинство лестничных маршей в среднем имеют 12 или 13 ступеней, но это зависит от высоты лестницы, ее расположения (поскольку нормы высоты лестниц различаются между общественными и частными зданиями и в разных странах) и назначения лестницы ( поскольку пожарные лестницы имеют более конкретные правила, чем другие виды лестниц).
Какова минимальная ширина лестницы?
Ширина лестницы относится к расстоянию между сторонами, если вы поднимаетесь или спускаетесь по лестнице. Согласно IRC, это расстояние должно быть не менее 36 дюймов и не включает поручни.
- Ширина лестницы: не менее 36 дюймов
Является ли лестничный пролет этажом?
Вы когда-нибудь слышали о «лестничном марше»? Этот термин определяется как непрерывная последовательность шагов. Это может означать набор лестниц между этажами или между лестничными площадками. На самом деле не существует установленного правила для того, что можно назвать лестничным пролетом.
Что такое усиление лестницы?
Арматура / Арматура для лестницы – Установка стальной арматуры. Поделиться Сохранить. Лестница — это строительная конструкция, используемая для простого перемещения вверх и вниз. Это известно как лестница в мире гражданского строительства. Размещение и монтаж лестничной арматуры всегда вызывает недоумение у строителей.
Как рассчитать армирование лестницы?
Шаги для расчета арматуры, необходимой для лестницы с изгибом:
- Найдите длину стержня X и стержня Y.
- Найдите количество стержней X и стержней Y.
- Оцените общую длину стержней X и Y стержней.
- Узнайте общий вес требуемой стали.
Как работает лестница?
Лестница, лестничный марш, лестничный пролет, лестничный пролет или лестничный марш — это конструкция, предназначенная для преодоления большого вертикального расстояния путем деления его на более мелкие вертикальные расстояния , называемые ступенями. Лестницы могут быть прямыми, круглыми или состоять из двух или более прямых частей, соединенных под углом.
Как я могу сделать свою лестницу более безопасной?
Рассмотрите возможность установки лестничных перил , чтобы снизить риск поскользнуться и упасть. Наличие одной или другой стороны лестницы может помочь повысить безопасность лестницы в этом районе. Поручни должны позволять крепко держаться, но при этом не быть слишком горячими или холодными на ощупь.
Is 456 Дизайн лестницы
Талия: Толщина поясной плиты, на которой сделаны ступени, называется талией. Глубина (толщина) перетяжки — минимальная толщина перпендикулярно софиту лестницы (кл.33.3 ПС 456) . Ступени лестницы, опирающиеся на поясную плиту, могут быть выполнены из кирпича или бетона.
Как рассчитать объем бетонной лестницы?
Количество материалов для лестницы:
- Объем цемента = 1/7 x Сухой объем = 1/7 x 159 = 22,66 кубических футов.
- Объем песка = 2/7 x Сухой объем = 2/7 x 159 = 45 кубических футов.
- Объем заполнителя = 4/7 x Сухой объем = 4/7 x 159 = 91 кубический фут.
Почему в лестнице 13 ступеней?
Или почему 13 шагов считаются неудачей? Вот одна из причин.Это происходит из-за суеверных верований . В китайском фэн-шуй лестница с нечетными номерами считается удачей, «четные» числа могут означать катастрофу и неудачу.
Что держит лестницу?
Перила : что такое перила? Перила, также называемые перилами, — это то, за что люди держатся для поддержки при подъеме и спуске по лестнице. Поручень крепится к вертикальным стойкам (балясинам) или стене вверх по одной или обеим сторонам лестницы.
Лестничное усиление
Арматура для лестницы – Монтаж стальной арматуры.Поделиться Сохранить. Лестница — это строительная конструкция, используемая для простого перемещения вверх и вниз. Это известно как лестница в мире гражданского строительства. Размещение и монтаж лестничной арматуры всегда вызывает недоумение у строителей.
Каковы характеристики хорошей лестницы?
Ниже приведены характеристики хорошей лестницы.
- Должен быть свободный доступ со всех сторон здания.
- Он должен хорошо проветриваться.
- Должна быть широкая площадка в конце каждого марша.
- Обычно в полете не должно быть более 12 шагов.
Как спроектировать лестницу?
Пример расчета лестницы высотой 2,60 метра.
- Рассчитайте необходимое количество ступеней: При идеальном подступенке 18 см высота пространства делится на высоту каждой ступени. Результат всегда следует округлять в большую сторону: 260/18 = 14.44 = 15 шагов
- Рассчитайте высоту каждого подступенка: Высота пространства делится на количество ступеней, которое мы только что получили: 260/15 = 17,33 см высоты для каждого подступенка
- Рассчитайте ширину проступи: Примените формулу Блонделя: (2 x 17,33 см) + (1 x проступь) = 64. Размер каждой проступи составит 29,34 см.
Какое напольное покрытие для лестниц самое безопасное?
Лестницы из твердых пород дерева очень долговечны и могут быть безопасными, если установить нескользящие ступени или принять другие меры предосторожности, чтобы полированная поверхность не была скользкой.Ковровая дорожка. Лестницы с ковровым покрытием обеспечивают большее сцепление, чем твердые поверхности, и более мягкие для ног. Ковровое покрытие также может предоставить более широкий выбор с точки зрения цвета и ворса.
Чем опасны лестницы?
Падение на лестнице может привести к переломам костей , травме спинного мозга, рваным ранам, повреждению мягких тканей, черепно-мозговой травме и другим серьезным видам вреда, не говоря уже о психической травме в результате такого события. И они могут быть вызваны: Плохим освещением.
Можно ли положить пробковый пол на лестницу?
Пробковый пол — это экологически чистый способ отделки полов в вашем доме.Этот материал можно укладывать по всему дому, а можно использовать даже на лестнице вместо ковра или паркета.
Что является частью конструкции лестницы?
Двумя основными компонентами лестницы являются проступь и подступенок . Проступь — это горизонтальный элемент, на который мы ставим ноги, а подступенок — вертикальный элемент, разделяющий ступени.
Какой вес может выдержать моя лестница?
В соответствии с требованиями международных строительных норм и правил, каждая ступенька лестницы должна выдерживать не менее 300 фунтов сосредоточенного веса .Плавающие лестницы не являются исключением, и, к счастью, наши плавающие ступени лестниц превышают это количество.
Стандарт для лестницы?
Строительные нормы IBC 2018 г. для подъема и марша лестниц: максимальный подъем 7 дюймов и минимальный пробег 11 дюймов (глубина проступи). Стандарт OSHA для подъема и марша по лестнице — максимальный подъем 9,5 дюймов и минимальный пробег 9,5 дюймов (глубина проступи). Максимальный подъем IBC одного лестничного марша составляет 12.
Какой тип лестницы лучше?
Лестницы идеально подходят для ограниченного пространства и небольших жилых помещений. Это один из самых компактных типов лестниц.Конечно, неплохо проверить строительные нормы и правила в этом районе, потому что часто они не разрешены в качестве главной лестницы.
Какой размер лестницы?
Ширина лестницы обычно варьируется в зависимости от типа здания, в котором находится лестница, но для обычного жилого дома стандарт обычно составляет 3 фута 6 дюймов (106,7 см) . Минимум в большинстве мест составляет 2 фута 8 дюймов (81,3 см). Если длина лестницы превышает 44 дюйма (111,8 см), поручни необходимы с обеих сторон.
Что такое бесплитная лестница?
Лестницы без перекрытий (также называемые пилообразными лестницами) предлагают эстетически приятные альтернативы в зданиях и часто вызывают удивление у тех, кто не понимает принципов проектирования и детализации, лежащих в основе их конструкции.
Что такое лестница и ее виды?
Существует более 14 типов лестниц, а именно Г-образные, Забежные лестницы, Спиральные, Винтовые с площадкой, Круглые, Изогнутые, Лестничные, Разрезные, Компактные, Парящие лестницы, Двутавровые лестницы, Лестницы с хранилищем , Скульптурная парящая лестница, Гнутый металл, Парящая отдельно стоящая лестница, Лестница с книжными полками, Бетон, Мрамор, Ковровое покрытие, Органика, Графическое железо, Двухцветная спираль, Закрытая двустенная, частично открытая одностенная, Гранитная, Раздвоенная и Поворот на три четверти.
Что такое лестница-бабочка?
Лестница-бабочка — это лестница, которая начинается с одной секции, ведущей к площадке, а затем разделяется на две секции, ведущие вверх в разных направлениях .
Сколько миль составляет 1000 ступеней лестницы?
Имея это в виду, если вы подниметесь на 1000 ступенек в день, это будет равно 17 000 дюймов, что меньше цели в одну милю . Итак, если вы хотите пройти одну милю шагов, вам нужно будет подняться на 3727 ступеней (63 360, разделенных на 17 дюймов).
Что такое два лестничных пролета?
Лестничный марш – это набор ступеней между двумя этажами или двумя лестничными площадками . Лестничный марш также называют лестницей или лестничным пролетом.
Что такое лестница из железобетона?
Лестницы из железобетонамогут быть наиболее распространенными лестницами, широко используемыми, чем лестницы любых других типов. Этим лестницам можно легко придать любую желаемую форму, они более износостойкие и огнестойкие. Ступени железобетонных лестниц изготавливаются из обычного цементобетона.
Как сделать лестницу из железобетона?
Строительство из бетонных лестниц включает такие этапы, как проектирование, подготовка фундамента, строительство опалубки, установка арматурных стальных стержней, бетонирование, отделка и отверждение.
| Компонент | Стандартный размер |
| Резьба | 9–9,25 дюйма |
| Подставка | 7.5 — 8,25 дюйма |
| Ширина | 3 фута |
| Угол полета | 30 – 45 градусов |
Как рассчитать RCC для лестниц?
Количество материалов для лестницы:
- Объем цемента = 1/7 x Сухой объем = 1/7 x 159 = 22,66 кубических футов.
- Объем песка = 2/7 x Сухой объем = 2/7 x 159 = 45 кубических футов.
- Объем заполнителя = 4/7 x Сухой объем = 4/7 x 159 = 91 кубический фут
Как рассчитать лестницу?
Пример расчета лестницы, что должно быть 2.60 метров высотой.
- Рассчитайте необходимое количество ступеней: При идеальном подступенке 18 см высота пространства делится на высоту каждой ступени. Результат всегда следует округлять в большую сторону: 260/18 = 14,44 = 15 шагов
- Рассчитайте высоту каждого подступенка: Высота пространства делится на количество ступеней, которое мы только что получили: 260/15 = 17,33 см высоты для каждого подступенка
- Рассчитайте ширину протектора: Примените формулу Блонделя: (2 x 17.33 см) + (1 х проступь) = 64, Каждая проступь будет иметь размер 29,34 см.
Сколько стоит построить лестницу?
Постройка лестницы обходится среднему домовладельцу 1916 долларов . Этот проект стоит от 903 до 2929 долларов, но может стоить от 350 до 5000 долларов. Однако вы можете заплатить до 10 000 долларов за более обширные или индивидуальные проекты.
Сколько существует типов лестниц?
Существует более 14 типов лестниц, а именно Г-образные, Забежные лестницы, Спиральные, Винтовые с площадкой, Круглые, Изогнутые, Лестничные, Разрезные, Компактные, Парящие лестницы, Двутавровые лестницы, Лестницы с хранилищем , Скульптурная парящая лестница, Гнутый металл, Парящая отдельно стоящая лестница, Лестница с книжными полками, Бетон, Мрамор, Ковровое покрытие, Органика, Графическое железо, Двухцветная спираль, Закрытая двустенная, частично открытая одностенная, Гранитная, Раздвоенная и Поворот на три четверти.
Какие лестницы без площадки?
Лестница, ведущая из подвала на второй этаж, примыкает к чилийскому дому на берегу озера. В отличие от забежных или L-образных лестниц, изогнутого типа не имеет площадок. Вместо этого лестница является непрерывной и следует за изгибом перил, создавая поразительное архитектурное решение.
Какая сторона лучше для лестницы?
Эксперты рекомендуют, чтобы лестница в вашем доме всегда поворачивалась по часовой стрелке , т.е.е. либо с севера на юг, либо с востока на запад.
Сколько ступеней у лестницы в Великобритании?
Внутренние лестницы не должны быть длиннее 36 ступенек ; другая лестница должна быть установлена, отделенная площадкой, если вам нужна большая длина. Вокруг всех частей лестницы должно быть свободное пространство не менее двух метров. Ограничений по минимальной ширине лестницы нет.
Лестница находится под углом 45 градусов?
Лестница под углом 45 градусов не допускается правилами из-за стандартов максимального подступенка и минимального шага .Максимальный подступенок, разрешенный Международным жилищным кодексом (IRC), составляет 7-3/4 дюйма, но проступь 7-3/4 дюйма меньше, чем минимальная глубина проступи 10 дюймов.
Лестницы железобетонные монолитные железобетонные. Как сделать ступеньки из бетона сделать лестницу из бетона
Классическая входная бетонная лестница – одна из стандартных конструкций, используемых практически повсеместно. Благодаря использованию стандартных материалов и надежности всей конструкции лестницу из бетона часто изготавливают в частных домах.При этом его вид и форма зачастую ограничиваются только наличием свободного времени на расчет и изготовление опалубки. Если есть возможность заказать работу на стороне, то только типовых решений в каталогах фирм более чем достаточно.
Что нужно знать перед установкой — плюсы и минусы
Перед изготовлением бетонной лестницы необходимо знать ее преимущества и недостатки — это поможет окончательно определиться с выбором формы и материала.
Сравнение материалов на видео:
Преимущества железобетонных конструкций:
- По прочности конструкция даст фору любой другой из дерева или металла.При правильном армировании бетонной лестницы ее запас прочности позволяет не думать о нагрузке на поверхность.
- Лестницу из черного бетона после полного высыхания можно использовать для передвижения или переноски строительных материалов, а после окончания всех работ произвести чистовую отделку.
- Ремонт бетонной конструкции не требуется в течение всего периода ее эксплуатации. Требует минимального ухода, чаще косметического.
- Лестница монолитная железобетонная абсолютно бесшумная — не издает скрипов и других звуков.
- Бетон — огнеупорный влагостойкий и устойчивый к перепадам температур. Не подвержен гниению и повреждению насекомыми.
- Очень мало ограничений по форме конструкции и другим конструктивным решениям.
Минусов в бетонных конструкциях намного меньше, но и их надо учитывать:
- Вес. В зависимости от размеров монолитные лестницы из бетона могут иметь массу до двух-трех тонн – если ступени уходят на фундамент дома, то необходимо учитывать возможность их неравномерной усадки.
- Потребление труда. Прежде чем сделать лестницу из бетона своими руками, необходимо создать деревянную опалубку, которая, по сути, и является черновой деревянной лестницей – в нее будет заливаться бетон.
- Цена. Чтобы залить лестницу из бетона, нужен заранее изготовленный из опалубки каркас, в который укладывается арматура и производится только бетонирование. Поэтому изготовление лестницы из бетона обойдется дороже любых других аналогов.
Разновидности лестничных конструкций
Основное разделение идет на входное (основное) и высотное.В первом случае они используются для того, чтобы просто попасть в дом, а высотные – для прямого выхода на второй этаж или в подвал (подвал). Каждый из них в свою очередь имеет свои разновидности и формы.
Даже стандартная бетонная лестница в частном доме может быть любой геометрической формы: обычно прямоугольной, но не возникает сложностей в создании закругленных, многогранных или комбинированных конструкций, выбор которых зависит от общего замысла конструкции.
В зависимости от высоты, на которую необходимо подняться или спуститься, второй тип лестничных пролетов делится на одинарные и поворотные, с двумя и более площадками.Отдельную категорию составляют поворотные полукруглые или винтовые разновидности. Если делается бетонная лестница на второй этаж своими руками, то необходимо учитывать необходимость места выхода. Исключение составляет только случай, если на верхнем этаже уже есть терраса, к которой будет обращен верхний марш.
Лестница в подвал изготавливается по тому же принципу, что и для второго этажа, но изготовление ее немного проще — делая ступени в подвал своими руками, можно устроить опалубку прямо на Земле.Перед этим его поверхность рекомендуется хорошенько уловить и засыпать песком. Если есть время, рекомендуется делать эти работы осенью, а весной замачивать бетон. Если все нужно сделать сразу, стоит уделить особое внимание триммеру. Чем качественнее это будет сделано, тем меньше вероятность возникновения пустот, из-за оседания грунта.
Разные виды конструкций в следующем видео:
Самостоятельный монтаж бетонной лестницы
Чтобы позаботиться об изготовлении бетонной лестницы, нужны навыки столяра, сварщика и слесаря, а помимо этого уметь считать воздействие массивных конструкций на точки их опор.Даже входная стандартная бетонная лестница без особых изысков будет дополнительной нагрузкой на фундамент, что следует учитывать, если их разбирать отдельно.
Порядок работ следующий:
Расчет лестничного марша
Первый шаг при расчете лестницы, это даже не расчет ее размеров, а оценка места, где она будет стоять. Масса одного куба бетона около 2,5 тонн, поэтому бетонные лестницы для дома в зависимости от конструкции будут весить около 2-3 тонн.Если в месте, где будут просушивать нижние ступени, нет несущей плиты, то установка будет под большим вопросом. В идеальном варианте лестницу необходимо запроектировать при составлении плана дома и провести ленту фундамента в месте ее установки.
Также необходимо заранее продумать, какая отделка будет выполнена – если вы остановите свой выбор на декоративном камне, то это решение дополнительно займет весь дизайн.
Далее необходимо определиться с углом подъема — комфортное перемещение возможно при уклоне в пределах 30-40°. При этом высота одной ступени будет около 17 см, а ширина 28-30. В редких случаях допускается делать ступеньки под углом 45°. Учитывая дороговизну демонтажа железобетонных конструкций, рекомендуется в этом случае найти лестницу с таким уклоном и самостоятельно оценить, стоит ли по ней ходить из года в год или искать альтернативу.
В случае, когда уклон в 45° все-таки признан целесообразным, необходимо сделать так называемые лестницы в конструкции из бетона для таких лестниц — они увеличат их ширину.
Если планируется создание винтовой бетонной лестницы, то ширина ступени по внутреннему радиусу будет меньше, чем с наружной стороны. При этом расчет ведется с учетом того, что чаще всего обходит ступени чуть дальше их середины, ближе к внешнему радиусу.
Также следует учитывать, что винтовые лестницы часто могут быть со смещенным центром тяжести – особенно это касается конструкций на накрутке. В таких случаях их желательно «раскрыть» о несущую стену или колонну. Для точного расчета таких конструкций надо иметь знания в теоретической механике – если их нет, то доверить возведение такой массивной конструкции лучше специалистам.
Установка опалубки
Это самый ответственный этап, от качества выполнения которого зависит внешний вид готового изделия и точность заливки бетона.Фактически опалубка копирует устройство бетонной лестницы, повторяя ее форму.
И арматура в видео:
Порядок монтажа и необходимые материалы следующие:
- Фанера или доски для основания и боковых стенок. — Целесообразно использовать ламинат, толщиной около 20 мм. Если использовать доски, то толщиной от 3 см и больше. Для винтовых лестниц опалубку криволинейных поверхностей выполняют из фанеры 9 мм, подкосы усиленные.
- Сначала делается нижняя часть опалубки — выставляется под нужным углом основание для ступеней и маршей, которое в дальнейшем будет закреплено боковинами.Если лестница делается впритык к несущей стене, то можно пойти с точностью до наоборот — разместить и закрепить на стене боковину, повторяющую форму ступени для лестницы, после чего закрепить основание на их и закрепите все нижние и боковые прокладки.
Если лестница на втором этаже из монолитного бетона примыкает к несущей стене, то ее необходимо закрепить арматурой, а в случае применения двухсуточной конструкции выполнить обшивку в заливке марш, который будет служить дополнительной кладкой.
- Brux 100 * 100 мм используются для поддержки опалубки при подвешивании бетона. Важно проследить, чтобы после укрепления не осталось ни малейшей спинки, так как это гарантированная деформация всей конструкции.
Когда основание готово, гидролизуется вся опалубка. Для этого все щели будут задуваться монтажной пеной, но за ней следует следить, чтобы она по возможности не залезла внутрь – в этом случае пазы останутся на поверхности готовой лестницы.
Монтаж арматуры
Железобетон усиливает прочность обычного бетона на излом и смещение, поэтому лестницы следует делать по этой технологии.
Для удобства армирующий слой выполняется перед монтажом перекрытия ступеней. На самом деле арматура сечением около 10 мм, делается каркас, повторяющий форму лестницы, но не доходящий до будущей поверхности бетона около 3 см. Для того, чтобы арматура «повисла» в воздухе, наденьте на нее крепления, которые держат ее на весу.
В местах пересечения или прочно соединяется с проволокой. Должна получиться сеть с квадратными компьютерами со стороной 20 см.
Особое внимание следует уделить расположению нижней ступени к полу. Для этого в его поверхность забиваются (бетонируются) металлические штыри, к которым крепится арматура ступеней.
Когда армирование готово, опалубка окончательно крепится — устанавливаются борта для ступеней и набиваются доски, чтобы по ним можно было ходить во время заливки и высыхания раствора.
Заливка бетона
Для того, чтобы конструкция была монолитной, бетонируйте лестницу за один раз, поэтому следует подготовить надежную бетономешалку с барабаном достаточного объема и пригласить помощника. Бетон рекомендуется использовать марок М250-300 – он достаточно прочный и легкий для таких конструкций.
Примерное соотношение компонентов: одно ведро воды Два цемента марки М-400, 4 ведра щебня и два песка плюс 10 грамм Суперпластика С-3
Также для заливки лестницы из бетона пригодятся куски арматуры, которая будет удобно держать в руке кельму, ведро и вибратор для бетонных смесей, с насадкой такого размера, чтобы она свободно проходила через арматуру.
ЗАПОЛНЕНИЕ ЗАКАЗА ЗАКАЗ:
- Стандартный раствор заливается, начиная с нижней ступени или двух. Если используется слишком жидкий бетон, то рекомендуется изначально залить первую ступень и дать ей высохнуть, но лучше делать монолитную конструкцию, а первую ступень закрыть.
- Затем производится уплотнение бетона и обработка его вибратором.
- Заливается третья и четвертая ступени, при этом раствор в первых двух можно начинать выдавливать наружу — здесь пригодится ведро и мастерок — следует собрать лишний бетон, чтобы вылить его на верхние ступени.
- Остальные ступени и маршевая площадка аналогичны так же, если это есть в конструкции.
Наглядно весь процесс на видео:
После шпаклевки поверхность ступеней окончательно реставрируется мастерком и оставляется для просушки. Через 2-3 дня, когда бетон схватится, его поверхность можно заклеивать.
В процессе заливки бетоном его поверхности можно периодически вносить воду, что повысит его прочность.
Порядок и сроки устройства пандуса
До полного высыхания раствора не рекомендуется ходить по опалубке, даже если это входная лестница в дом, необходимо заранее подготовить другие возможности для доступа к номер.
Срок закладки бетонного раствора около 2 недель. Щиты опалубки со ступеней можно снимать примерно через неделю, чтобы изначально оценить качество заливки. Через неделю можно полностью убрать боковые доски, а через три недели после заливки можно смело снимать опорные бруски.
Когда бетон полностью застыл, по лестнице можно передвигаться по дому, перетаскивая инструменты и другой инвентарь.
После завершения ремонта бетонную лестницу можно окончательно выровнять и выбрать для нее подходящий вариант отделки – накладные ступени из дерева, ламината или плитки.
Ни одно строительство жилого или производственного назначения немыслимо без такого конструктивного элемента, как лестница. Ряд ступеней служит точкой сообщения между помещениями, расположенными на разных уровнях. У него немалые нагрузки ежедневно. Поэтому к нему предъявляются повышенные требования по комфорту, надежности и безопасности. В статье пойдет речь о том, как сделать лестницу из бетона своими руками.
Лестницы железобетонные монолитные
- Лестницы могут быть прямоугольными, поворотными и винтовыми.Но вне зависимости от типа бетонный архитектурный элемент выделяется следующими достоинствами.
- Стойкость к влаге, температурам и агрессивным средам. Поэтому такие конструкции возводят при внутреннем обустройстве помещений и под открытым небом.
- Высокая прочность достигается за счет армирования бетонной смеси. Ступени выдерживают очень внушительные нагрузки, что делает их невероятно надежными и практически долговечными.
Лестницы монолитные из бетона фото
- Бетонные лестницы дают широкие возможности декоративного оформления.Здесь можно применить керамогранит и керамическую плитку, деревянные доски (паркет, ламинат) и другие материалы.
- Ступени не требуют особого ухода и регулярных пропиток. В случае появления дефекта на поверхности достаточно повторно залить бетонным раствором, чтобы восстановить бетонным раствором.
- Строительство ведется своими силами без применения специальных или дорогостоящих строительных материалов, а также без привлечения специальной техники и специалистов.
- Пролитые ступени готовы к эксплуатации через 7-10 дней. Что позволяет использовать их на всех этапах строительства, ношения инструментов, материалов и т.д.
- Поскольку лестница возводится одновременно со строительством дома, она помимо прямого назначения выполняет еще одну роль – конструктивную.
- Из недостатков можно отметить внушительный вес, массивность (занимает много места) и монолитность – лестницу невозможно разобрать, переставить или доработать.
Марка бетона для лестниц
- Для изготовления лестницы из бетона обычно используют готовый раствор М200 класса В15 или М250 класса В20. Этот материал создан на основе щебеночной фракции, с добавлением вяжущих веществ, модифицированных добавок и других заполнителей.
- При выборе бетона для строительства уличных лестниц важно обращать внимание на морозостойкость (F) и водонепроницаемость (W).
Для замешивания бетонного раствора марки 250 самостоятельно применяются следующие пропорции:
- 1 часть бетона М400;
- 2 штуки промытого песка;
- 4 части щебня фракции 10х20 мм;
- примерно ½ части воды;
- 0,7% от массы цемента пластифицирующей добавки С-3.
Замешивать раствор по старинке с помощью поддона и лопаты невероятно тяжело, тем более заливку ступеней приходится проводить за один раз.Поэтому компактную бетономешалку рекомендуется взять у соседей или арендовать у строительной бригады.
Сначала в аппарат засыпают песок и щебень, сыпучие материалы перемешивают не менее 2-3 минут. Затем добавляют пластификатор (в сухом или концентрированном виде) и воду. Все компоненты перемешивают не менее 5 минут.
Важно! Плохое смешивание всех компонентов снижает конечную прочность бетона на 20%.
Как сделать лестницу из бетона своими руками
Проектирование лестниц
- Если строительство лестницы ведется самостоятельно (без привлечения специалистов), то проект на бумаге составляется самостоятельно.В плане рассчитываются размеры помещения, уклон конструкции, его длина и ширина, также учитывается наличие дверных проемов, способ и направление открывания дверей.
- Устройство лестницы из бетона требует особого внимания к углу наклона. Оптимальное значение этого параметра находится в пределах 26-37º. Слишком прохладная лестница может стать опасной для жизни, а более распространенная — полезной площади займет много, да и подъемом/спуском она не отличается.
- При разработке проекта необходимо действовать последовательно. Сначала рассчитывается количество ступеней, затем их длина, ширина, угол поворота, параметры площадки и т. д. Только при правильном подходе можно говорить о безопасности и удобстве конструкции.
Расчет параметров ступеней
- Помимо прочностных характеристик такая конструкция должна соответствовать эксплуатационным характеристикам. Выбранные параметры должны обеспечивать максимальное удобство при подъеме или спуске с соблюдением шага.
- Что касается ширины, то она может варьироваться от 0,9 до 1,5 метра. Несомненно, чем шире лестница, тем она удобнее, но площадь помещения не всегда позволяет построить конструкцию предпочтительных размеров. Поэтому при проектировании отталкивается не только от комфорта, но и от свободной квадратуры.
Имеются усредненные показатели шагов, определяющие удобство работы:
- высота 190-220 мм;
- ширина 250-330 мм.
- Для правильного расчета параметров используется простая формула 2а+b=640, где: А — высота сцены; б — ширина сцены; 640 мм — средняя длина человеческого шага.
- Подставив средние данные, получим: 2х190+280=660. Как видно на примере, выбранные размеры вполне отвечают за комфортную работу.
- Используя теорему Пифагора, рассчитайте длину марша. Здесь необходимо учитывать толщину декоративного настила.Результат делится на высоту в один шаг. Например: 3000/190 = 15,8, значит 16 ступеней на марше это 3 метра длины.
- Если при расчетах десятая часть мала (например, получилось 14,3 или 16,4), то рекомендуется брать за основу только целое число, а остаток равномерно распределять на высоту всех ступеней (повреждение ибо комфортность подъема и спуска будет незначительной).
Важно! При расчете необходимо учитывать рост самого высокого члена семьи.Чтоб вторую ступеньку поставил, головой о потолок не ударился. Здесь к росту человека необходимо добавить 400 мм (средняя высота двух ступеней без отделочного материала!)
Заливка опалубки лестницы из бетона
- Сбор опалубки является одним из ключевых моментов строительства. Для того, чтобы бетонная поверхность была максимально гладкой, используйте влагостойкий фланер толщиной не менее 20 мм. Для боковых стенок ступеней и формирования подступенков используется обрезная доска толщиной 30-35 мм.
- Для нижней поверхности возьмите сплошную плиту. Его установка под нужным углом выполняется с помощью вертикальных брусков или специальных телескопических стоек, которые без проблем можно арендовать со строительными бригадами.
- Так как масса бетонной смеси довольно большая, имеет смысл для усиления опалубки использовать металлические уголки и бруски. К низу опалубки через каждые 50-80 см рекомендуется крепить дополнительные усиливающие элементы.
- Далее из разделочных досок формируются ступени.При монтаже внутренней части за основу берутся внутренние размеры, то есть при креплении внешние параметры каждой ступени будут на 30-35 мм (именно на ширину пиломатериала) больше расчетных показателей.
- Деревянные элементы должны плотно прилегать друг к другу, не допускается образование зазоров и щелей. Чтобы раствор впитался в пиломатериалы, его обильно смачивают или защищают стены полиэтиленовой пленкой, а также любым гидроизоляционным материалом.
Важно! При сборке конструкции используются саморезы. Их расположение должно быть только внешним, чтобы при демонтаже опалубки не произошло, что может привести к частичному разрушению поверхности бетона.
Технология армирования бетонных лестниц
- Для предотвращения прочности лестницы и предотвращения срезания краев ступеней выполняется армирование. Для работы понадобится стальная арматура диаметром 8 и 14 мм, вязальная проволока, а также инструмент для гибки и резки прутьев, плоскогубцы.
- Для продольного усиления применяют более толстые стальные стержни, а для поперечного меньшего диаметра. На расстоянии не менее 30 мм от низа опалубки выкладывается арматура 14 мм с шагом 150-200 мм. Для этого достаточно подложить под нее осколки битого кирпича или керамической плитки.
- Поперечные стержни также раскладывают на расстоянии 150-200 мм друг от друга. Фиксация арматуры в виде сетки обеспечивается с помощью вязальной проволоки, скрепленной и стянутой пассатижами.
- Для надежности можно выложить второй ряд готовой сетки с ячейками 150х150мм из арматуры 4мм. Этот слой должен располагаться таким образом, чтобы слой бетона покрывал металл на 30-40 мм. Для таких параметров из металлических прутьев заготавливают своеобразные стулья.
- В том случае, если конструкция будет опираться на три стороны (сверху, снизу и сбоку), то в процессе возведения стен заранее закладывается арматура. В результате получается максимально прочная фиксация лестницы сбоку.
Как залить лестницу из бетона
- Бетонный раствор начинает заливаться с нижней ступени. Заполнение каркаса производится небольшими порциями. После наполнения электросборщик работает. Это средство поможет избавиться от воздушных пустот, негативно влияющих на прочностные характеристики готовой конструкции.
- Помимо вибратора можно провести сильное постукивание молотком по всем сторонам опалубки. Как правило, смесь будет падать на 2-3 см от необходимого уровня, недостаток компенсируется новой порцией бетонной смеси.Далее повторяем процесс трамвая.
- Если раствор больше не мешкает, поверхность окончательно выравнивают кельмой или правилом. Между бетонированием каждой ступени следует выдерживать перерыв в 10-15 минут, за это время давление раствора падает.
- Для движения вверх на каркас можно опереться стандартной деревянной лестницей или использовать обычные доски. После завершения работ бетон укрывают полиэтиленовой пленкой, предотвращающей его преждевременное высыхание.
Важно! Первые 2-3 дня полиэтилен периодически снимают, а бетонную поверхность смачивают разбрызгиванием, прямых струй воды следует избегать.
- Каркас демонтируют через 3-4 недели, именно за этот период бетонная смесь наберет не менее 80-90% прочности.
- Несомненным достоинством бетонных поверхностей является абсолютная ремонтопригодность. Поэтому, если после высыхания были обнаружены какие-либо дефекты, их легко можно исправить частичными «заплатками» или залить заново.Однако, во избежание финансовых и временных затрат, лучше сделать один раз по всем правилам, приложив больше усилий и усилий.
Декоративные материалы
- Не рекомендуется оставлять бетонную лестницу без дополнительной отделки. Через некоторое время края ступеней начнут осыпаться. Да и внешний вид лестницы оставляет желать лучшего, хотя многие современные стили приветствуют бетонные конструкции в первозданном виде.
- В зависимости от стиля сцены ступени облицовывают керамогранитом, керамической мозаикой, деревянными досками.Боковые стены и нижнюю поверхность лестницы обычно штукатурят, а затем окрашивают.
- Для безопасности передвижения лестница оборудована ограждениями. Баласины и перила выполняются из дерева, хромированного металла. Высокие декоративные качества имеют кованые кованые изделия, которые можно назвать настоящими произведениями искусства.
Бетонные лестницы самые прочные и надежные. Перед изделиями другого типа они имеют ряд неоспоримых преимуществ.
- прочность;
- долговечность;
- огнеупорный;
- бесшумный;
- индивидуальный дизайн;
- широкий выбор отделки;
- мульчирующие формы.
Также бетону не страшна влага, а стальная арматура, лежащая в основе конструкции, надежно защищена от негативного воздействия окружающей среды.
Лестницы из железобетона могут устанавливаться как снаружи, так и внутри помещений. Благодаря своим эксплуатационным качествам и разнообразию вариантов облицовки изделия могут быть не только функциональной единицей, но и изысканной частью интерьера коттеджа, частного дома или офисного помещения.
Виды и устройство бетонных лестниц — выбор конструкции
Виды бетонных лестниц можно разделить по способу изготовления:
- монолитные;
- сборные (из готовых элементов).
По типу конструкции:
По месту установки:
Перед началом монтажа конструкции необходимо заранее определить, какое устройство бетонной лестницы лучше всего подходит для конкретного помещения.
Лестницы монолитные бетонныеЛестницы монолитные из бетона получили свое название благодаря тому, что изготавливаются путем подачи цемента в подготовленную опалубку таким образом, что на выходе мы получаем литой каркас. Изделие устанавливается в том месте, где оно будет эксплуатироваться.
Лестницы бетонные готовыеНаружные лестницы могут быть выполнены из готовых железобетонных маршей. Главное, чтобы рельеф местности позволял установить изделие с необходимым уклоном.
Установка выполняется из готовых элементов, выполненных в виде прямоугольных, угловых или треугольных ступеней.
Детали лучше укладывать на слепую грунтовку, которую заделывают крупным щебнем. Для этого необходимо с помощью лопат вырезать липучки и подступенки, соответствующие размеру плит. Уплотнить основание первой очереди можно при помощи насыпей: 5 см песка, затем 5 см щебня. Основой для бетонной плиты должен быть качественный цементный раствор, толщиной 2-3 сантиметра.
Лестница винтовая бетоннаяНаибольшей популярностью на сегодняшний день, благодаря удобству и компактности, пользуются винтовые лестницы из бетона. Они особенно актуальны в тех случаях, когда проектируется небольшой частный дом, где необходимо тщательно продумать каждую деталь для экономии жилой площади.
Винтовые лестницы из бетона благодаря необычному дизайну прекрасно впишутся практически в любой интерьер. И не требуют установки специальной центральной колонны.
Чаще всего их устанавливают в помещениях, где проектом предусмотрены прочные монолитные конструкции, сочетающие в себе не только надежность, но и эффектный внешний вид.
Перила для бетонной лестницы
Обычно выполняются из стального или деревянного массива. Евгений и ценители стиля иногда выбирают металлические ограждения с элементами из высокопрочного стекла.
В свою очередь бетонная маршевая лестница также имеет ряд неоспоримых преимуществ.Он имеет отличный обзор и проще в вопросе изготовления. Его непременно устанавливают в домах, где живут пожилые люди или дети, потому что он однозначно более безопасен. Единственный минус – такое изделие занимает гораздо больше места.
Бетонная наружная лестницаВ процессе создания наружной бетонной лестницы можно использовать типовые модели или создать собственную, индивидуальную форму. В любом случае необходимо уделить особое внимание качеству материала, ведь уличные изделия подвергаются максимальным нагрузкам.Поэтому, делая примерный расчет, добавляйте конкретную «резервную» сумму, которая может потребоваться для лучшего решения.
Изготовление бетонной лестницы своими руками — инструкция по применению
Железобетонные лестницы устанавливаются в процессе строительства здания, в отличие от изделий из других материалов, которые монтируются после основных работ. В результате по ним можно передвигаться на всех этапах строительства дома, что значительно облегчает достройку и отделку помещения.
Конечно же, процессу изготовления конструкций нужно уделить особое внимание, ведь изготовление лестницы из бетона своими руками довольно трудоемкий процесс, который при отсутствии опыта может превратиться в проблему и повлечь за собой серьезные финансовые затраты.
Технология включает в себя множество нюансов, которые необходимо учитывать при эксплуатации, ведь даже небольшое отклонение от нормы может вызвать проблемы.
В первую очередь нужно провести все необходимые расчеты, чтобы четко определить, какая высота ступеней не будет доставлять неудобств при подъеме.Также учитывается толщина напольных покрытий, которая в дальнейшем будет увеличиваться за счет покрытия ступеней.
Строительная опалубка для бетонной лестницыДля того, чтобы конструкция была ровной и красивой, для оформления конструкции создается жесткая и прочная опалубка для бетонной лестницы. Чаще всего во избежание протекания цемента используют водостойкую фанеру, к которой подгоняют строганные доски.
Опалубка обязательно вырезает каркас из арматуры, которая впоследствии станет «каркасом» лестницы и сохранит изделие от разрушения.Каркас состоит из металлических стержней, сваренных между собой.
Это относится ко всем разновидностям продукции, независимо от того, занимаемся ли мы изготовлением винтовых бетонных лестниц или созданием маршевой конструкции.
Вдоль стволов лестничных и несущих граней уложены стальные стержни, которые надежно скреплены между собой поперечными связями.
Перед заливкой раствора в соответствующих местах необходимо установить деревянные трубы или металлические пластины, к которым будут крепиться перила ограждения.
После долгого и трудоемкого процесса сборки каркаса и опалубки может показаться, что работа практически закончена, но на самом деле все не так уж и плохо. Осталась самая важная и сложная работа – заливка бетонной лестницы .
Бетонирование лестничного марша производить единовременно, при этом начинать с самых нижних ступеней. Чтобы конструкция была слишком подвижной, а раствор не выкапывался из опалубки, не успевал высыхать, необходимо добавить щебень (фракция 10-20 мм).
Очень ответственным процессом является заделка бетона, ведь если не довести это дело до конца, прочность изделия серьезно пострадает. Для этой работы лучше всего использовать электростроительный уплотнитель. Если такового нет, используйте свитерное средство.
Марка бетона, используемого для заливки монолитной конструкции, должна быть не ниже В15.
Пользоваться лестницей можно только после полного высыхания бетона.
Видео: Бетонная лестница своими рукамиОблицовка бетонной лестницы должна производиться в момент окончательной отделки помещения.Если речь идет об элементе, предназначенном для улицы, засеять его желательно рифленой плиткой, во избежание возникновения земли, передвижение по которой может создать массу неудобств.
Бетонная лестница Способы отделки
Монолитная конструкция в «голом» виде выглядит как недостроенная, а потому подойдет далеко не каждому дизайнерскому помещению.
Чтобы, в первую очередь, нужно определиться с выбором материалов. На это решение существенное влияние оказывает форма марша.Например, для лестницы с прямым маршем прекрасно подходят любые отделочные материалы, тогда как для криволинейной конструкции или лестницы с перемычками плитка или камень будут совершенно неуместны.
Рассматривая все варианты, необходимо учитывать вопрос безопасности. Например, если в доме живут пожилые люди или дети, стоит выбрать материал, способный поглотить удар в случае падения. Лучшим вариантом будет покрытие бетонной лестницы деревом, ламинатом или покрытием мягким плотным ковром.
Не менее важным критерием выбора покрытия является его звукоизоляция. Идеально подойдет дерево или современный прочный «ковровый» материал. Керамика и камень, в свою очередь, выглядят дороже, однако будут звучать на каждом шагу, поэтому облицовка ступеней плиткой может привести к тому, что жильцы дома будут просыпаться ночью от громких звуков.
Лестница бетонная дерево
Традиционное решение, которое сделает помещение теплее и уютнее, а кроме того визуально облегчит массивную конструкцию.
Если дизайн помещения скорее классический, чем современный, лучше всего использовать камень, как элемент, обожающий бетонную лестницу. Фото примеров можно увидеть в интернете. Чаще всего выбор падает на гранит или мрамор. Чтобы сохранить привлекательный внешний вид, необходимо покрыть изделие специальными пропитками, которые защитят поверхность от помутнения.
Бюджетные вариантыСамым экономным способом декорирования будет обычная покраска бетонной лестницы.В зависимости от предпочтений хозяев дома он может быть выполнен в одном или нескольких цветах.
Проблема такого решения — быстрое покрытие. Краска останется незащищенной от истирания, и придется периодически «освежать» поверхность.
Ковер, тоже один из самых недорогих вариантов, но не каждому покрытию подойдет. Ни в коем случае не должен быть скользким, так как красиво с эстетической точки зрения выглядеть не будет. Поэтому, кроме привлекательного внешнего вида, отделка бетонного ковра лестницы может потребовать использования только самых безопасных материалов.
Видео: Лестница из бетона, не нуждающаяся в дополнительной отделкеВывод
Подводя итоги, можно сказать, что сделать бетонную лестницу вполне реально. Главное соблюдать основные рекомендации. Облицовка требует особого ухода. Для того чтобы конструкция служила долгие годы, ее нужно не только правильно сделать и установить, но и грамотно за ней ухаживать.
В частных домах между этажами наиболее популярны лестницы из дерева или монолитного железобетона.Удобная и красивая лестница из дерева – дорогое удовольствие. В частном доме дешевле построить более простую и прочную лестницу из железобетона.
Преимущества и другие особенности монолитной лестницы из бетона
Монолитные лестницы из бетона являются достаточно тяжелыми сооружениями. Поэтому такие лестницы делают в домах с монолитным, нац или .
Лестница бетонная возводится при строительстве коробки дома. Их можно использовать по договоренности сразу до окончания строительства дома.
Бетонные лестницыобладают высокой жесткостью и долговечностью, не скрипят и не вибрируют.
Железобетонные лестницы за счет простой конструкции и массивных ступеней более безопасны.
Отделка, облицовка бетонных лестниц при ремонте легко поддаются восстановлению, замене.
Из бетона трудно изготовить лестницы сложной конфигурации или миниатюрные.
Варианты конструкции бетонной лестницы в частном доме
Проект бетонной лестницы следует разрабатывать до начала строительства дома, так как необходимо предусмотреть в перекрытиях и кладке стен закладные анкеры из арматурной стали и другие элементы для крепления лестничных маршей и промежуточных площадок.
В потолке или несущей балке делаются награды из арматуры, которые связаны с фурнитурой лестничного марша. Лестница из монолитного железобетона в частном доме состоит из лестничных маршей и промежуточной лестницы между маршами.
Лестничный марш представляет собой железобетонную плиту, на которой расположены бетонные ступени.
Арматурные каркасы железобетонных перекрытий, лестничных маршей и площадок связываются между собой в единую конструкцию.Благодаря совместной работе арматуры и монолитного бетона лестница обладает очень высокой жесткостью и долговечностью.
Лестница с косоурами из монолитного железобетона. Косур располагается по продольной оси лестничного марша.Косур здесь представляет собой железобетонную балку с выступами для опорных ступеней. Консолями называют ступени, концы которых не подпираются.
Лестница на гребец может быть деревянной или из монолитного бетона. Деревянные ступени крепятся к тарелке с помощью закладных элементов из металла.
Опалубка монолитной лестницы на костере со ступенями из бетона. Арматурный каркас консольных ступеней из бетона соединяется с арматурой курова.
Железобетонные лестницы и лестницы также, как и лестничные марши, могут устанавливаться либо между межэтажными перекрытиями, либо между перекрытием и промежуточной лестницей.
Консольные ступени из железобетона, защемленного в кладке стены.Лестница называется закрытой, если промежутки между ступенями закрыты подступенками.Без подступенков это открытая лестница.
Бетон для железобетонных лестниц
Для изготовления железобетонных лестниц применяют бетон, имеющий прочность на сжатие не менее 20 МПа (класс В20). Свежевыжатый бетон в опалубке обязательно тщательно уплотняют вибрацией.
Лестничные марши и площадки бывает выгодно изготавливать из архитектурного (декоративного) бетона . Поверхность ступеней и площадок такой лестницы не потребует дополнительной облицовки или отделки.Изготовление и укладку архитектурного бетона лучше заказывать специалистам.
Где в доме разместить лестницу из бетона
Чтобы лестница была удобной, безопасной и тихой, необходимо удачно выбрать место ее расположения в доме, правильно соблюсти и определить размеры.
Современная архитектура частного дома для размещения лестниц обычно не предусматривает специальных изолированных лестниц.Лестницы устанавливаются открыто и являются частью интерьера гостиной, холла или прихожей.
Следует учитывать, что лестница в гостиной, как элемент интерьера, предъявляет более высокие требования к внешнему виду. Лестница в гостиной должна быть более изысканной, а значит и дороже, чем лестница в прихожей, вестибюле или в изолированной лестнице.
По сравнению с деревянными лестницы из бетона выглядят тяжелее, они легче по форме и не вписываются в интерьер гостиной.
Для размещения бетонной лестницы больше подходит место у стены.
Как подобрать размер лестницы
Выбор лестницы
Удобная и безопасная лестница должна быть вполне обычной. Строительные правила ограничивают лестницу лестницей в доме. Уклон лестницы не должен быть больше 1:1,25 (отношение высоты лестничного марша к его горизонтальной проекции). На рисунке ниже такой предел около 40 o имеет лестница 1 .
Два варианта лестницы: лестница 1. — классная с предельным уклоном, обеспечивает минимальный комфорт и безопасность, но занимает в доме минимальную площадь; лестница 2. — Удобная и безопасная лестница с рекомендуемым уклоном.
Чтобы лестница в доме была достаточно удобной и не занимала слишком много места рекомендуется выбирать уклон лестницы около 30 o, что соответствует отношению высоты лестничного марша к его горизонтали проекция как 1:1.75. Такой уклон имеет лестница 2 на рисунке выше.
Расчет размеров лестницы
После определения уклона — высоты и горизонтальной проекции лестничного марша, на втором этапе выполняют расчет оптимальных размеров лестничных маршей.
Оптимальные размеры лестницы в частном доме. Для комфортного передвижения по ступеням лестницы необходимо выполнить условие, указанное в зеленой рамке.
Строительные правила требуют, чтобы высота лестницы находилась в пределах h. =16-19 см .
Например, выполнить расчет размера лестницы 2 на рис. Учитывая требования правил, для дальнейших расчетов принимаем высоту нашей лестницы h. = 17 см .
Затем находим количество ступеней в лестничном марше. Для этого высота лестницы делится на высоту сцены. Количество ступеней в лестничном марше: 272 см / 17 см = 16 ступеней.
Строительные правила ограничивают количество ступеней в одном лестничном марше не более 18 ступеней. Если это ограничение не выполняется, нужно делать два лестничных марша с промежуточной площадкой между ними.
Зная количество ступеней рассчитываем на ширину лестничного марша. Для этого величина горизонтальной проекции лестницы делится на количество ступеней. Для лестницы 2 на рисунке расчетная ширина уровня будет равна с. = 474 см / 16 = 29 см .
Ширина ступени 29 см . Человеческая нога будет чувствовать себя уверенно и комфортно.
В завершение проверьте, удобно ли будет передвигаться по лестнице. Для этого производим расчет по формуле, указанной на рисунке в зеленой рамке: 2Н + S = 60-65. Для нашей лестницы 2*17 см +29 см =63 см — Выполняется условие комфортного передвижения.
Какой должна быть высота ступеней без отделки?
Удобная лестница должна иметь все ступени одинаковой высоты.Решение, на которое отделяется материал, лучше всего принять до начала лестницы – это позволит избежать сюрпризов в виде перепада высот между отдельными ступенями.
Если пол и обшивка будут отделаны одним и тем же материалом или материалами одинаковой толщины, все ступени без отделки должны иметь одинаковую высоту.
Если материалы имеют различную толщину, высота первой ступени в открытом состоянии должна быть выбрана для толщины материала, который будет покрыт с приходом и пола на обоих этажах.Толщина керамической плитки (вместе со слоем клея) примерно 2 см , рулонного материала — около 0,5 см , облицовки из камня -3-4 см , дерева — 4-5 см .
Ширина лестничного марша
Ширина лестничного марша — это ширина прохода между перилами лестницы, а не длина ступени. Длина ступени может быть разной, в зависимости от способа крепления рейки.
Строительные правила требуют, чтобы ширина прохода по лестнице была не менее 90 см .В целях комфорта и удобства перемещения мебели ширину прохода рекомендуется увеличить до 110 см .
Свез ступени
Ступени на лестницах обычно выполняют с 2-3 скемами см , как на рисунке выше. Свез необходим для того, чтобы вертикальная поверхность под ступенькой (подступенками) меньше загрязнялась и повреждалась.
На железобетонных лестницах, облицованных деревом, ступени устраивают за счет увеличения ширины деревянного покрытия.
На лестницах без облицовки деревом поверхность под ступенями (подступенками) делают не вертикальными, а наклонными, так, чтобы поверхность верхней ступени немного нависала над нижней.
Однако для лестниц из бетона устройство умывальника не обязательно.
Железобетонные лестницы выглядят слишком массивно, поэтому требуют творческого подхода к отделке.
На железобетонной лестнице необходимо разделить все части сцены:
- горизонтальные плоскости, то есть прилипание;
- вертикальные — стояки;
- а так же плинтуса — перегородки стен, расположенные непосредственно над ступенями.
Липучка покрыта нескользким и стойким к истиранию материалом, в то же время, подступенки, об которые мы чаще всего прячем обувь, должны быть устойчивы к ударам.
Как выбрать отделочный материал?
На выбор материала влияет место, в котором находится лестница, и способ отделки пола на обоих этажах. Также стоит задать некоторые более важные вопросы.
Какой формы марш лестницы? Прямые марши можно покрыть практически любым отделочным материалом.Для забежных ступеней лучше не выбирать материалы, которые придется резать на месте (керамическая плитка, облицовка камнем), — ступени будут выглядеть не слишком эстетично, а расход материала будет чрезмерно большим.
Кто будет пользоваться лестницей? В доме, где есть маленькие дети или пожилые люди, лестница должна быть покрыта материалом, который отлично амортизирует падения. Если на ступеньках часто играют дети, материал облицовки тоже должен быть теплым (дерево, ковер).
На лестнице должно быть тихо?
Различные отделочные материалы по-разному впитываются, что может сказаться на удобстве лестницы.
Ковровое покрытие и дерево хорошо поглощают звуки, а камень и керамическая плитка иногда усиливают шум шагов.
Лестница будет повреждена?
Если благоустройство дома еще не завершено, необходимо учитывать, что при переносе мебели на мебель лестница может быть повреждена.При этом не стоит выбирать мягкие сорта древесины или ковровые покрытия, подверженные повреждениям.
Лестница лестница
Еще один недорогой и необременительный способ отделки ступеней – обтянуть их мягким материалом. Лестницу с эластичным покрытием легко содержать в чистоте, а ковер теплый и хорошо впитывает влагу.
Отделочный материал необходимо тщательно приклеивать к ступеням: в случае отклеивания каких-либо фрагментов возникает угроза споткнуться и упасть.
Рулонный материал тонкий и эластичный.Его можно поставить, не вырезая, но подступенки обшитой таким образом лестницы следует защитить специальным металлическим профилем или композитом.
Если это сплошная облицовка, то ее придется резать, причем каждый этап укладывать отдельно.
Какое рулонное покрытие подходит для лестниц?
Ковер должен легко чиститься и быстро сохнуть: таким условиям соответствуют полипропиленовые и полиамидные покрытия. Не выбирайте покрытия с длинным ворсом или на толстой подкладке, например, из войлока.
Шерстяные покрытия не подходят для лестниц, так как легко загрязняются и их трудно чистить. Акриловые тоже лучше не выбирать -они имеют низкую прочность.
Ковры, предназначенные для лестниц, дополнительно усилены. Лучше выбирать те из них, которые отмечены специальной пиктограммой.
Эластичные покрытия должны быть стойкими к истиранию, нескользкими и хорошо воспламеняемыми. Таким требованиям соответствует резиновое покрытие. При этом виниловое покрытие лучше не использовать, так как оно неустойчиво к появлению дентина, а обувной крем может оставить на нем сложный след.
Дерево — для дома с душой
Деревянная лестница вызывает ассоциации с интерьерами старинных домов. Благодаря набору преимуществ ценится владельцами современных интерьеров.
Дерево — теплое на ощупь, а комнату визуально делает теплее. Это пружинный материал, хорошо амортизирует капли. Древесина охотно используется благодаря своей пластичности и легкости в обработке: из нее можно приспособить ступени любой формы.
Многие выбирают этот материал из-за его натурального цвета и рисунка слоев.Но лестницу из дерева также можно покрасить или покрыть Безом, придав ей, таким образом, совершенно другой вид.
Большие возможности открывает использование экзотической древесины, отличающейся богатой палитрой цветов: от белого — через желтый, красный, коричневый, оливковый, зеленый — до насыщенного черного.
Зачастую его часто выполняют из дерева только липким, а подступенки оставляют в гипсе, окрашивают в белый цвет. Такая лестница делается не только из соображений экономии — она выглядит легко и менее однообразно.
Но следует помнить, что белые стояки очень быстро пачкаются, штукатурка может отлететь, а поверхность, окрашенную краской, не так просто отмыть. Чтобы этого избежать, стояки нужно зашпатлевать твердым цементным раствором.
Для отделки стояков могут использоваться и другие материалы: штукатурка на основе смол, керамическая плитка и даже стальной лист.
Подступенки декорированы мозаичной штукатуркой. На ее фоне выразительно выделяются срубы из светлого дуба
Для пересборки используется дубовая доска, а днища стояков — камень или керамическая плитка.
Накладки из темного дерева защищают выступающую и верхнюю часть подступенка
Лестницу с прямым маршем можно отделить практически любым материалом. В этом случае применяется темное дерево, контрастирующее с цветом стен.
За счет окрашенных в белый цвет подступенков лестница с деревянными ступенями кажется легче
Керамическая плитка — для практичности
Он настолько разнообразен, что позволяет оборудовать лестницу под любой интерьер. Богато декорированная плитка в южном стиле создаст атмосферу греческой таверны, имитируя старинные камни напольной плитки – деревенский дом, а сверкающий полированный керамогранит – современное жилище.
Хорошая ли это лестница с практической точки зрения? Холодная плитка, жесткая и не амортизирует падения. В то же время его легко содержать в чистоте, он дешевле камня и намного долговечнее дерева. Не горит – при пожаре не способствует распространению огня между этажами.
Однако если все элементы лестницы выложить плиткой, она будет выглядеть слишком однообразно. Интересные эффекты дает сочетание керамической плитки с другими материалами, например с деревом.
Какая плитка подойдет для лестницы?
Для лестниц подходит плитка, имеющая определенные параметры: она должна иметь высокий класс стираемости, лучше всего IV или V, твердость не ниже 5-6 по шкале МООС и противоскользящие свойства.
Такие высокие требования предъявляются только к комплектующим — стояки могут иметь более низкие технические параметры.
Поверхность плитки, предназначенной для укладки, должна быть рифленой (рифляции — выпуклые или вогнутые элементы на поверхности плитки) или рельефной (рельеф — выпуклость на всей поверхности плитки).
Лестницу также можно облицевать матовой плиткой с неровной грубой структурой.
Для внутренней лестницы используем плитку для пола, керамогранит и клинкер.
Мозаичная керамическая плитка применяется для ступеней и подступенков, а также для покрытия пола лестницы
Для отделки лестницы используется керамическая плитка различных цветов, напоминающая разноцветную ковровую дорожку.
Отделка монолитной бетонной лестницы керамогранитом
Ступени для лестниц из керамогранита – плиты, специально предназначенные для декорирования ступеней бетонных лестниц.Плита фарфоровая имеет размеры 300 — 350 мм. шириной и 1200-1300 мм. в длину.
Ступени из керамогранита могут быть с противоскользящими накладками или без них.
Плиты из керамогранита можно разводить как липкими, так и стояками.
Плиты из керамогранита под дерево, под мрамор, под натуральный камень, а так же ступени чистых цветов (моноцветы) и многие другие.
Ступени прямолинейной формы с обработанным передним краем, а также с изогнутым «носом» — в этом случае выбор зависит от того, какой внешний вид вы хотите придать бетонной лестнице.
Ступени из керамогранита очень прочны, не пропускают влагу, не подвержены химическому воздействию, не выгорают от солнечных лучей, экологически безопасны и не требуют замены в течение длительного времени. Это один из лучших вариантов по соотношению цена-качество для бетонных лестниц.
Ступени из керамогранита как материал для отделки межэтажных лестниц отличаются большим разнообразием. В зависимости от ваших предпочтений, вы можете выбрать для бетонной лестницы отделку ступеней матовой, лаптичной, рельефной или полированной.
Возможна отделка камнем в едином стиле как самой бетонной лестницы, так и всего парковочного места.
Пожалуй, монолитные железобетонные лестницы не так распространены в частной сфере, как деревянные или каркасные, но тоже достаточно популярны. Они подкупают своей солидностью и массивностью, а также огромными возможностями в плане отделки, не в последнюю очередь привлекает длительный срок службы. Среди мастеров портала такие конструкции также пользуются спросом, благодаря чему имеется большой опыт как проектирования, так и исполнения самостоятельно или под личным контролем.
Рассмотрим:
- Лестницы монолитные — конструктивные, разновидности.
- Особенности конструкции монолитной лестницы.
- Технология возведения монолитной лестницы.
- Как подготовить опалубку для монолитной лестницы.
- Армирование монолитной лестницы.
- Бетонирование монолитной лестницы.
Лестницы монолитные бетонные
Монолитные железобетонные лестницы являются несущими стационарными конструкциями, заливаются непосредственно на месте, обязательно включают арматурный каркас.В зависимости от габаритов и разновидностей лестницы арматурный каркас может быть самостоятельным или связанным со стеной.
Что касается формы, бетон дает не меньше возможностей, чем дерево или металл, монолитная лестница может быть любой:
- походный;
- с забежными ступеньками; винт
- ;
- на репетитор, с просветом между ступенями;
- на косоо.
По исполнению основания монолитные лестницы делятся на два типа:
- полные — с гладким дном;
- зеркало — с фигурным дном.
Естественно, чем тяжелее форма конструкции, тем сложнее расчеты и выполнение, самыми простыми являются маршевые бетонные лестницы. Но и места им нужно больше, марш должен быть заложен изначально, а вот лестницу с забежными ступенями скромнее «втиснуть» в проем, хотя она и считается менее удобной.
Особенности конструкции монолитной лестницы
В идеале монолитные лестницы необходимо закладывать еще на этапе проектирования, так как в виду массивности они нуждаются в большем пространстве и усиленном основании.Например, если сначала залить теплый пол, а потом решить, чего хочет монолит, это вызовет определенные трудности.
Форум Позитивного Участника
Я бы не стал отдыхать в лестнице на теплом полу. Под ним утеплитель, который может люфтить, и стяжка может лопнуть, повредив трубу. Часть стяжки мы обычно убираем и делаем свайный фундамент в районе первой ступени, длинной его части от стены.
Лестница, независимо от типа и выбранного материала, в первую очередь должна быть безопасной и функциональной – с удобными ступенями, как минимум приемлемым углом наклона и достаточной шириной пролета.
Для расчета монолитных лестниц применяются те же правила, что и для остальных:
- При расчете длины марша учитывается толщина напольных покрытий.
- Оптимальная ширина марша 1000-1200 мм, минимальная 900 мм.
- Количество ступеней в марше не более 15 шт.
- Высота удобных ступеней 150-170 мм, максимальная 200 мм.
- Ширина поклейки — 250-300 мм.
- Оптимальный угол наклона 30-37⁰, максимальный — 45⁰ (по средней оси).
Есть формула расчета: 2а + b = 640, где а — высота ступени, b — ширина ступени, а 640 мм — средняя длина нашей ступени. Портальные умельцы используют для расчета монолитной лестницы другую формулу.
Йосич
Норма — это когда по формуле: подступенки плюс равно 45 см, или подступенки плюс возврат, плюс подступенки 58-62 см.
Проект при самостоятельной разработке можно укладывать на бумагу и в специальный конструктор.Второй вариант предпочтительнее, так как получается виртуальная 3D модель, а основные расчеты на основе вступительной партитуры выполняет компьютер. Особенно это актуально, если речь идет о конструкциях с забежными ступенями.
Йосич
Правильно спроектированная лестница должна иметь одинаковую высоту всех подступенков и одинаковую величину выноса всех ступеней по оси прогона (обычно посередине марша). Для прямых лестниц этот расчет произвести несложно, а вот самые толстые ступени уже проблематичны.Часто это правило (об одинаковом размере) при изготовлении таких лестниц не соблюдается, в результате чего возникает дискомфорт при их использовании в дальнейшем. Я не в счет дачной лестницы. С этой задачей Аркон справляется отлично. Размещаю лестницу нужного типа на плане, задаю параметры, наблюдаю модель в 3D-виде.
Технология строительства монолитных лестниц
Процесс строительства монолитной лестницы состоит из трех основных этапов:
- опалубка монтажная;
- арматура;
- бетонирование.
Отделочные работы — хоть и обязательный, отделочный этап, но зачастую может быть прилично разнесен по времени, особенно когда лестница возводится одновременно с коробкой.
Опалубка для монолитной лестницы
Чтобы сразу получить достаточно гладкую поверхность, опалубку собирают из гладких материалов, в основном это водостойкая фанера толщиной 20 мм. Если есть финансовая возможность или целесообразность (несколько ступенек), лучше выбрать ламинированный фэнир.Из фанеры собирают днище и боковины, для формирования подступенков используют обрезную доску толщиной 30-35 мм или брус, 50×50 мм.
Все элементы опалубки максимально вырезаются и подгоняются при сборке без образования щелей, при необходимости стыки дополнительно герметизируются.
В качестве крепежа чаще всего выбирают длинные шурупы, для усиления формы используют металлические уголки и бруски, они укрепят балку, дно прошивают металлическими или деревянными стойками со ступеньками.Если лестница сложной формы (винтовые, забежные ступени), то вместо стоек иногда делают несущие (поперечные, одним концом крепящиеся к стене, а вторым к боковой стенке). При использовании обычной фанеры изнутри опалубку рекомендуется выводить пленкой или другим утеплителем.
Опалубку обычно собирают в два этапа — сначала дно и боковины/боковины, а после укладки арматурного каркаса монтируют под ступени.Один из наших мастеров решил попробовать сначала полностью собрать опалубку, а после выполнить армирование.
Голубев
Дома сначала делал армирование, теперь буду пробовать иначе, да, будут сложности — вязать и варить фурнитуру под ступени (перемычки). А вот перемычки потом установить на арматуру непросто. И вот я тут сразу вижу, где и как проводить примерки. Если какая-то ступенька болит, то открутить — пару минут и столько, чтобы вернуть на место.Главное, чтобы это место было найдено, а ступень установлена в трех измерениях по уровню, кропотливая работа. А когда еще штуцеры под ногами, то неудобно, потому и старался так.
Другой наш образец, профессионально занимающийся лестницами, советует не создавать лишних сложностей.
Никвас
Рулон дешевых обоев — рисуете косуры (монолит), прикрепляете к стене, настраиваете — отмечаете места для армирования и крепежа, сверлите, крепите бруски/доски прямо в рисунок на обои, далее только ослабляете обои со стены!
Армирование монолитных лестниц
Для повышения прочности конструкции и предотвращения завалов кромок и маршей обязательно выполняется армирование — продольное и поперечное.Применяется стальная арматура периодического профиля диаметром 10-14 мм (продольная арматура толще), из которой формируется пространственная форма каркаса в виде сетки с ячейкой 100-200 мм в зависимости от параметров марша. Арматура фиксируется вязальной сеткой крючком или сваркой. Чтобы выдержать толщину защитного слоя (2 см), сегодня используют спец.
Если конструкция лестницы предусматривает опору в стену через арматуру, то обычно стержни просто забиваются, но если стена выполнена из материалов, характеризующихся пониженной несущей способностью, например, из газобетона, наши мастера советуют сделать яму.
Позитивный.
Не забивайте в газобетон арматуру, она не даст нужной площади опоры лестнице, лучше сделать котлован и заводить арматуру там, а то она весь этот бетон задурит. Вот пример.
Благодаря этому приему на газобетонных стенах можно описать достаточно тяжелые лестницы.
Позитивный.
Если сделать в стене котлован не менее 10х10 см, то площадь опоры будет 100 см², а если вбить арматуру, то 10 см².Марка газобетона – от 35 до 50, следовательно, 100 см² выдержит от 300 до 500 кг. Итак, двадцать импрессоров дадут нагрузку от 6 до 10 тонн, плюс лестница будет стоять как каретка к стенам, плюс опора на первой ступеньке, плюс опора на плиту перекрытия.
Армирование может быть одинарным или двойным, мнения наших мастеров по этому поводу разделились — одни считают, что лучше ставить две сетки непременно, другие, что для большинства конструкций достаточно одной.Форум посвящен этому вопросу. Если кратко, то для однослойной арматуры alexxxxx , один из профессионалов, выполняющих монолитные лестницы на заказ.
Алексхххх
Арматура в монолитных конструкциях нужна в зоне растяжения, а какое растяжение в верхней части плиты? Там арматура лежит мертвым грузом — это первое. Двойное армирование требуется в очень редких случаях, делать его на всех лестницах — это перевод материала и чрезмерная работа, это второе.Третье – общее количество арматуры в процентном соотношении регламентируется СНиП. Если при однослойной арматуре этот процент приближается к пределу, то при двухслойной этот СНИПОВСКИЙ процент будет превышен. Четвертое – на пролете три метра использую арматуру диаметром 12 мм с шагом 120-130 мм. Для сравнения, перекрытие из монолитной плиты шесть метров усилено такой же арматурой с шагом 200 мм. Что будет сильнее? Из моих штабелированных лестниц три были изготовлены под наблюдением технадзора, по технике армирования замечаний не было, это пятая.
По мнению alexxxxx, двойное армирование оправдано при:
- есть защемление верха и низа — если нет третьей опоры;
- нет опоры внизу и вверху, а конструкция «висит», встраивается в стену;
- лестница на одном курове — верхняя арматура и хомут предотвращают кручение крейсера;
- с тонкими монолитными ступенями, например, одной боковой осадкой – нижняя арматура ступеней работает на сжатие, а верхняя – на растяжение;
- марш лестницы пересекает подпорную стенку (необходимо уменьшить толщину нижнего слоя, чтобы связь с верхним не превышала процента).
Исключение составляют типовые заводские марши, рассчитанные на большую пропускную способность и применяемые как внутри, так и снаружи — всегда присутствует двойное армирование.
Один из модераторов нашего форума придерживается другой точки зрения.
РоландСпб.
Я обычно всегда делаю две сетки на лестнице, несмотря ни на что. Но в целом, конечно, далеко не всегда они нужны. Если в нижней зоне явно тянется, то в верхней фурнитура не нужна.Но, на самом деле, перебег по верхней сетке лестницы около 100 кг, много не делай. Арматурная лестница довольно сложна с несколькими возгораниями стержней из верхней зоны в нижнюю. Особенно мне не нравится переход с нижнего марша на площадку или печку. Изогнутый стержень может не работать в определенном диапазоне. Поэтому я объединяю два стержня (один из нижней зоны плиты, а второй — из нижней зоны марша), каждый из которых является анкерным для точки их пересечения и заводится в верхнюю зону марша. и тарелки соответственно.А в переходе от плиты к верхнему маршу — там, на мой взгляд, вполне можно оставить просто отогнутые стержни, идущие от низа плиты к низу марша. Не факт, что надо. Но я делаю это. Никто никого не агитирует.
Бетонирование монолитной лестницы
Для монолитных лестниц целесообразно использовать заводской бетон класса от В20 (М250), а лучше В25 или В30. Если нет возможности заказать готовый раствор, то сам подойдет как самый приготовленный в бетономешалке, но обязательно с применением пластификаторов.Типичное соотношение цемента, песка и щебня (фракция 10×20 мм) – 1/3/3, раствор не должен быть слишком жидким.
Лестницу заливают в один подход, начиная с нижних ступеней, продвигаясь вверх, каждую ступень обязательно вибрируют для предотвращения образования пустот. В процессе вибрации возможно выдавливание или седиментация бетона, излишки перераспределяются, после окончательной усадки поверхностные поверхности тщательно заглаживаются правилом или кельмой. Для равномерной прочности бетон рекомендуется накрыть пленкой и увлажнять несколько раз в день в течение недели.
Примерно через неделю проводят частичную площадку — снимают ригели и доску для проведения черновой шлифовки. Дно снимают не ранее, чем через 3-4 недели, когда конструкция наберет необходимую прочность. Следующий этап – финишная отделка – установка ограждений, штукатурка, облицовка деревом, плиткой, камнем или другим материалом. Раньше в процессе бетонирования обязательно делали закладные, сегодня они потеряли актуальность.
Алексхххх
Почему ипотека? Сварить, какие будут перила? Очень эстетично получится! Да и установщики Рельсы вспомнят очень «добрым» словом того, кто ставил эти закладные, когда им нужно было зайти в это место дырку под крепеж.Сейчас перфораторы есть у всех, а анахронизм в виде закладных только мешает нормальной установке рейки. Зачем нужна закладная, когда лучше смотрятся скрытые крепления. о монолитной лестнице по технологии несъемной опалубки.


Технология позволяет реализовать замыслы клиента и обеспечить привлекательный внешний вид.





Особенности двухмаршевых лестниц состоят в объединении общим силовым каркасом двух маршей с межэтажной площадкой;
Это позволяет облегчить технологию работ и сократить строительный цикл;
Железобетон устойчив к воздействию высоких температур, что гарантирует огнестойкость конструкции;



info/armirovanie-betona/armirovanie-lestnits-i-ploshhadok.html: использовано 2 блоков из 4, кол-во символов 821 (3%)

Железобетонный марш объединяет основу строения с перекрывающими панелями, усиливая коробку здания;
Пониженная гигроскопичность железобетонных конструкций обусловлена особенностями структуры бетонного массива;










Этим стержням присваивается только позиция;

Однако эти цифры индивидуальны и зависят от роста человека. Если в доме есть дети, поступь обычно увеличивают, а ширину каждой ступени уменьшают.
Вторая занимает намного меньше пространства.

Так как темой данной публикации является монолит, именно о нём и будем вести речь.
Применяют при пролётах до 12 метров, чаще в промышленном строительстве.

На это может уйти двое суток.
