Проект дома создать: Как сделать проект дома самостоятельно онлайн и бесплатно
Архитектурный проект
Архитектурный проект
В нашей компании Вы можете заказать полный комплекс проектных работ. У вас есть вопрос? Напишите нам и мы поможем вам!
Задайте вопрос специалисту
Индивидуальный проект дома
Проектирование дома – один из важнейших этапов в строительстве дома. Наш многолетний опыт в проектировании позволяет воплотить мечты заказчика в реальный дом. Именно на этом этапе необходимо продумать, как будет выглядеть ваш новый дом, какие необходимы помещения для комфортного проживания каждого участника вашей семьи.
При проектировании дома мы учитываем множество факторов: где будет располагаться дом, есть ли рядом лес или река, любите ли вы общаться с соседями, есть ли домашние животные, приезжают ли к вам в гости и т.д. Для того, чтобы создать уютное и комфортное жилье, архитекторы компании работают в плотном сотрудничестве с заказчиком.
Архитектурный стиль
Мы подберем стиль дома, который подходит именно вам.
Конструктив дома
Мы проектируем только то, что можем построить. Каждый проект соответствует ГОСТам, СНиПам и рассчитан на нагрузки погодных условий наших широт.
Территориальное расположение
В зависимости от ландшафта участка, его формы и рельефа наши специалисты произведут посадку дома.
Подбор материалов
Технология Naturi позволяет комбинировать материалы при отделочных работах. Наши специалисты подберут необходимые материалы для строительства дома и для внутренней его отделки.
Визуализация
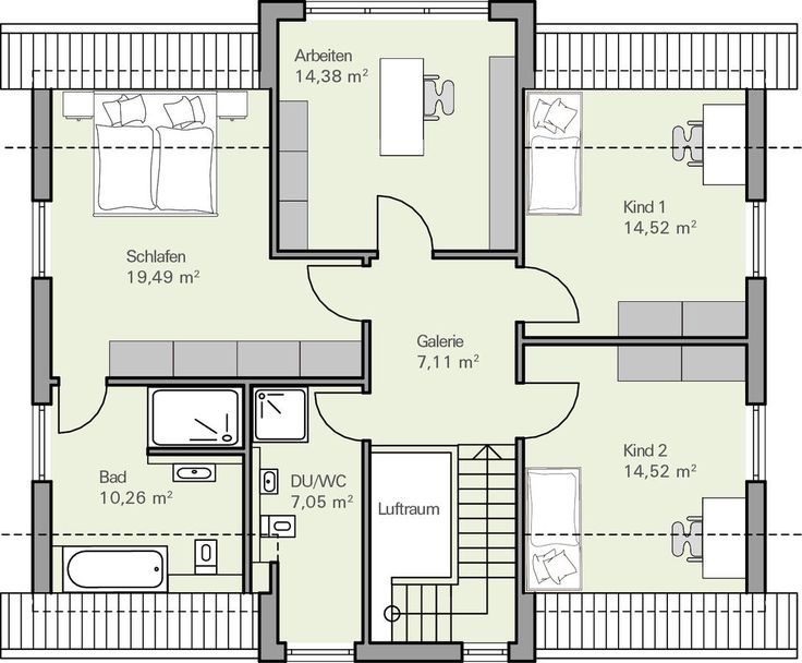
Для того, чтобы увидеть, как будет выглядеть ваше будущее жилье, наши визуализаторы создают изображения дома с разных ракурсов по утвержденному проекту, а также планировку помещений каждого этажа.
Планировка
Каждый метр вашего жилья должен быть задействован. Оптимальная навигация по помещениям — продумана. Все жители дома должны чувствовать себя комфортно и уютно.
Мы проектируем только то, что можем построить. Каждый наш проект адаптируется индивидуально под заказчика.
Люстра Stool Group Валенсия
Италия
Холодильник Stool Group Валенсия
Италия
Ткань Stool Group Валенсия
Италия
Стул Stool Group Валенсия
Италия
Кухня Stool Group Валенсия
Италия
Типовые и индивидуальные дома Naturi
На нашем сайте представлены готовые проекты домов различного архитектурного стиля. При выборе желаемого дома можно опираться на один их них. Каждый проект можно изменить как внутри – изменить планировку, так и снаружи – изменить площадь дома. Если вы хотите создать свой дом с нуля, то наши архитекторы помогут воплотить ваш дом мечты и создать индивидуальный проект.
1
Встреча в офисе
На встрече мы определяем стиль дома, его этажность, какие необходимы помещения, нужны ли дополнительные здания на участке (баня, гараж, дом для гостей), чтобы создать единую концепцию на участке.
2
Выезд на участок
На месте мы производим посадку дома. Учитывая окружающую местность и особенности участка, фиксируем расположение дома.
3
Проектирование
Основываясь на пожелания заказчика, архитекторы создают проект дома, который не только учитывает желаемые помещения, но и отвечает стандартам технологии и безопасности конструктива дома.
4
Эскизный проект
Это главный документ, его можно назвать «паспортом дома». Это комплект детально разработанной документации — схемы организации участка, поэтажных планов, разрезов, фасадов, принципиальных узлов и конструктивных деталей, визуализаций дома и многое другое. После подписания эскизного проекта начинается строительство дома.
Заказать бесплатную консультацию по строительным работам
Популярные проекты
проекты домов
Наша компания предлагает свою помощь
в строительстве домов из дерева. Спектр наших услуг
достаточно обширен
Индивидуальное проектирование домов в Воронеже
Архитектурное проектирование
Архитектурный проект — это не просто чертеж будущего здания,это своеобразный генеральный план всего строительства. подробнее … |
Дизайн интерьеровОдним из важных документов при строительстве дома или ремонта квартиры по праву считается дизайн-проект цена которого вполне оправдывает себя. подробнее … |
Ландшафтный дизайнЛандшафтный дизайн, озеленение и благоустройство сада способны преобразить ваш загородный участок, наполнить его гармонией и спокойствием. подробнее … |
3D-проектированиеОсуществляем 3D проектирование домов по индивидуальным параметрам. 3D — моделирование позволяет увидеть как будет выглядеть Ваш дом в реальном мире. подробнее … |
- Проекты одноэтажных домов
- Проекты двухэтажных домов: цена проектов в АСГ «Эверест»
- Проекты трехэтажных домов
Заказать проект частного дома под ключ в Воронеже по выгодной цене
Коттеджи с типовыми планировками вас не устраивают? Решение проблемы – индивидуальное проектирование домов от АСГ «Эверест».
Преимущества проектирования жилых домов под ключ в Воронеже по личному заказу:
-
Надежность строения. Тип конструкции и материалы определяют после тщательного исследования участка. Понимание особенностей грунта позволяет строителям создать крепкий фундамент, правильно рассчитать нагрузку на конструкции.
-
Комфортная планировка. Отдав предпочтение индивидуальному проектированию домов, вы выбираете количество и расположение комнат по своему вкусу.
-
Эксклюзивность. Клиент получает полную свободу в выборе дизайна и отделочных материалов. Оригинально оформленное здание подчеркивает статус хозяина, соответствует мировоззрению владельцев.
- Адаптация к сложным участкам. Земельный надел имеет неправильную форму или хочется сохранить в центре дерево? Индивидуальное проектирование домов позволит легко решить нестандартные задачи!
- Проектирование частного дома или коттеджа под ключ в Воронеже с АСГ «Эверест» отличается приятной ценой!
Стадии создания проекта
Последовательность действий при разработке документации для частного дома:
-
Предварительное исследование.
Специалисты изучают рельеф местности и почву, после чего решают, возможно ли строительство.
-
Создание эскиза. При индивидуальном проектировании домов разрабатывается компьютерная 3D-модель будущего объекта. Макет помогает понять, как будет выглядеть готовый коттедж (планировка, отделка, расстановка мебели). В чертежи и схемы на этом этапе легко внести изменения.
-
Рабочий проект. Включает генеральный план, архитектурный и конструктивный раздел. В документации отображаются глубина заложения фундамента, толщина стен, спецификация материалов, содержатся детализированные чертежи здания.
-
Проект инженерных сетей. Включает схемы систем отопления, водоснабжения, вентиляции, электропроводки.
На разработку эскиза при индивидуальном проектировании домов уходит около 1 месяца. Средний срок разработки технической документации – 1-2 месяц.
При сложных задачах работы занимают до 6 месяцев.
Где заказать проект дома в Воронеже
Заказать проект дома для строительства в Воронеже можно в АСГ «Эверест». Наша команда профессионалов предоставит различные варианты проекта дома с расчетом стоимости строительства.
Позвоните нам и мы поможем рассчитать стоимость проекта частного дома вашей мечты!
Специалисты нашей компании занимаются следующими направлениями проектирования:
Нужна консультация специалиста?
Звоните +7 (920) 229-90-66, +7 (951) 546-02-58
Или оставьте заявку и мы свяжемся с Вами в ближайшее время!
Сергей Владимирович
менеджер, эксперт
высшее проф. обр.
Назад в услуги
Building Project — Yale Architecture
GIF от первокурсника M.Arch. Учащиеся 1 класса 2021 года.
С 1967 года Йельская школа архитектуры предлагает своим первокурсникам профессиональной степени M.
Arch I уникальную возможность спроектировать и построить строение в рамках своего последипломного образования. Уникальная среди архитектурных школ, эта программа является обязательной для всех членов класса. Строительный проект обычно приводит к жилью в неблагополучном районе.
Покойный Чарльз У. Мур, который возглавлял архитектурный факультет Йельского университета (позже Архитектурную школу) с 1965 по 1971 год, основал проект First Year Building Project в сотрудничестве с преподавателем Кентом Блумером. Мур понял, что выход из студии и создание чего-либо принесет студентам несколько преимуществ. Как сторонник простой тектоники и основных технологий, он надеялся, что студенты будут вдохновлены строительной механикой. В разгар студенческих волнений 19В 60-х годах он рассматривал проект как способ для студентов посвятить себя позитивным социальным действиям, строя для бедных.
Самые ранние проекты были за пределами Нью-Хейвена и включали общественные центры в Аппалачах и ряд лагерных построек в Коннектикуте.
Сокращение бюджетов в 1970-х и 80-х годах, а также усиление нагрузки на расписание студентов привели к сокращению программы, и проекты, в том числе несколько парковых павильонов, были ограничены районом Нью-Хейвена.
Совсем недавно партнерские отношения с Habitat for Humanity, Neighborhood Housing Services, Common Ground, Neighborworks New Horizons и в настоящее время Columbus House привели к тому, что основное внимание было уделено доступному жилью. Дома позволяют студентам получить опыт работы с клиентом и возможность решить проблемы доступного жилья и городской застройки. Студенты с большим энтузиазмом относятся к этим проектам, направленным на развитие сообщества и благоустройство района. Многие из них приходят в школу с желанием включить такую социально ответственную работу в свою будущую профессиональную жизнь. Возможность участвовать в проектировании и строительстве таких строительных объектов часто укрепляет их стремление к этому.
Адам Хопфнер
Алан Органски
2022 Джим Влок Первый год строительного проекта
Проект первого года строительства Джима Влока 2022 года расположен на Плимут-стрит, 164, в жилом районе, прилегающем к действующему железнодорожному транспорту.
Дом в этом году знаменует собой пятое сотрудничество с Columbus House, поставщиком услуг из Нью-Хейвена для бездомных. Студентам было поручено разработать проектные предложения, которые могли бы смягчить звук поезда, реагировать на климатические условия, максимально увеличить ограниченный размер участка и обеспечить безопасную и комфортную среду для жителей.
Проект первого года строительства Джима Влока, 2020 г.
Проект первого года строительства Джима Влока 2020 года расположен внутри жилого квартала в районе Нью-Хейвен Ньюхоллвилл. Студенты-первокурсники M.Arch I смогли спроектировать двухэтажную одноэтажную структуру до остановки, связанной с пандемией. Дом в этом году знаменует собой четвертое сотрудничество с Columbus House, поставщиком услуг из Нью-Хейвена для бездомных. Строительство на месте велось в конце лета и осенью 2020 года, а арендаторы въехали в начале 2021 года. Дизайн дома основан на круговой экономии за счет сокращения отходов с опорой на устойчивое деревянное строительство.
2019 Проект первого года строительства Джима Влока
Изображение Зелига Фока и Иэна Гомеса.
Изображение Зелига Фока и Иэна Гомеса.
Изображение Зелига Фока и Иэна Гомеса.
Изображение Зелига Фока и Иэна Гомеса.
Визуализация фасада выбранного проекта первого года строительства Джима Влока 2019 года.
Модель предложенного в 2019 году строительного проекта Джима Влока.
Концепция:
«Triple-Decker» — это традиционный диалект Нью-Хейвена, в котором одноуровневые блоки располагаются по три в высоту. Каждый блок имеет выход на крыльцо. Студенты восприняли эту типологию как ответ на высокие соседние здания и связь с существующим народным языком. Parti представляет собой L-образную единицу с пустотой, которая образует сад / крыльцо. Типичный план этажа складывается и вращается на каждом этаже. Закрытая внешняя лестница обслуживает второй этаж, а внутренняя лестница обслуживает третий этаж. Готовое ядро кухни / ванной комнаты действует как разделительный элемент, который создает общественное и личное пространство внутри устройства.
2018 Проект первого года строительства Джима Влока
Предлагаемый дом 2018 года, вид с улицы.
2017 Проект первого года строительства Джима Влока
Вид на дом с угла улиц Аделины и Эдди. Изображение Хейли Чан и Зелига Фок.
Вид на входную дорожку. Изображение Хейли Чан и Зелига Фок.
Фасад улицы Эдди. Изображение Хейли Чан и Зелига Фок.
Вид вдоль входной дорожки. Изображение Хейли Чан и Зелига Фок.
Вид на подъездную дорожку. Изображение Хейли Чан и Зелига Фок.
Фрагмент лестницы в двухквартирном доме. Изображение Хейли Чан и Зелига Фок.
Посмотреть на лестницу. Изображение Хейли Чан и Зелига Фок.
Интерьер семейного (двухкомнатного) номера. Изображение Хейли Чан и Зелига Фок.
Второй этаж. Изображение Хейли Чан и Зелига Фок.
Одноместный номер. Изображение Хейли Чан и Зелига Фок.
Одноместный номер. Изображение Хейли Чан и Зелига Фок.
Впервые Йельская школа архитектуры сотрудничает с Columbus House, некоммерческой организацией, которая с 1982 года предоставляет решения для бездомных в районе Нью-Хейвена. чтобы помочь людям, которые являются бездомными или находятся в группе риска, двигаться к независимости.
Задание этого года нацелено на дом площадью 1000 квадратных футов, состоящий из двух отдельных жилых помещений, который будет расположен на участке в районе Аппер-Хилл в Нью-Хейвене. Перед учащимися стоит задача разработать экономичный, гибкий дизайн, который обеспечивает воспроизводимость материалов, средств и методов строительства с акцентом на сборные конструкции и модульность.
Веб-сайт первого года строительства Джима Влока, 2017 г.
Проект первого года строительства Джима Влока, 2016 г. — Йельская школа архитектуры сотрудничает с NeighborWorks New Horizons, организацией, занимающейся строительством качественного доступного жилья, и HTP Ventures LLC, частной инвестиционной компанией, заинтересованной в массовом производстве доступного жилья.
Задание на этот год нацелено на дом площадью 1000 квадратных футов, который будет расположен на узком участке по адресу Уинтроп-авеню, 196, в районе Уэст-Ривер в Нью-Хейвене. Перед студентами стоит задача разработать экономичный и гибкий проект, который решает уникальные проблемы, с которыми сталкиваются аналогичные узкие участки в Нью-Хейвене и других городских районах по всей стране.
Подробнее
2015 Проект первого года строительства Джима Влока. Уже второй год Йельская школа архитектуры сотрудничает с NeighborWorks New Horizons и HTP Ventures LLC.
Проект этого года представляет собой дом площадью 1000 квадратных футов, который будет расположен на угловом участке по адресу 193 Winthrop Avenue в районе Вест-Ривер в Нью-Хейвене.
Подробнее
2014 Проект первого года строительства Джима Влока. В этом году мы сотрудничаем с Neighbor Works New Horizons of New Haven, организацией, занимающейся строительством и эксплуатацией доступного качественного жилья, и HTP Ventures LLC, частной инвестиционной компанией, заинтересованной в массовом производстве микрожилья.
единицы. Наша проектная работа в этом семестре является частью продолжающегося долгосрочного сотрудничества с инициативой New Haven Livable City Initiative по развитию более 100 пустующих городских участков.
В этом году дом площадью около 800 квадратных футов находится на Скрэнтон-стрит, 179 в районе Уэст-Ривер в Нью-Хейвене. Дом будет разделен на одну единицу площадью 500 квадратных футов для домовладельца и одну единицу площадью 300 квадратных футов для арендатора.
Подробнее
30 блестящих идей дизайна дома на 2021 год
(Изображение предоставлено IQ Glass)Если вы собираетесь потратиться на значительный проект по благоустройству дома или строительству дома, то вам следует рассмотреть возможность включения некоторых умных идей дизайна дома, чтобы создать ощущение вау-фактора. Но какие идеи домашнего дизайна предлагают наибольшую награду?
На этапе проектирования подумайте, ищете ли вы идеи дизайна дома, чтобы добавить архитектурный интерес, изменить то, как вы живете и взаимодействуете с вашим домом, или сочетание того и другого.
От использования нарушенной планировки или добавления мезонина до новой отделки штукатуркой и универсальных напольных покрытий с подогревом — вот 30 самых горячих идей дизайна дома, чтобы дать волю творчеству и максимизировать результаты вашего дома. строительный проект.
(Изображение предоставлено Джереми Филлипсом)Если вы работаете с небольшой площадью, всегда приветствуются идеи, которые помогут увеличить пространство. Одна идея, которую определенно стоит воплотить в жизнь, была продемонстрирована Самантой Парр в прекрасно построенном доме с дубовым каркасом: его площадь всего 100 м², но умное использование зеркал делает это пространство больше.
Первый этаж дома Саманты имеет открытую планировку и открытые стропила. Один фронтон застеклен, а на другой фронтоне над кухонными шкафами искусно расположены зеркала, что создает впечатление, что дом на самом деле расширяется за пределы этого фронтона. Но на самом деле зеркала отражают интерьер и вид снаружи.
Убедительная техника!
Чтобы материалы в их энергоэффективном доме были одинаковыми, а также чтобы возвестить о соседней Черной стране и ее местных ремесленниках, эти домовладельцы решили включить в индустриальный стиль семь резных панелей из мягкого стали, которые украшают лестницу сверху донизу, и поразительное входное крыльцо с перголой.
Изящный дизайн и окрашенное покрытие придают интерьеру и экстерьеру «вау» эффект, превращая вход и лестничный пролет в нечто совершенно неординарное.
Этот яркий дом во внутреннем дворе, состоящий из ряда связанных павильонов, расположен вокруг тихого бассейна в самом центре Лондона в сад и залить пространство светом. В частности, в одноэтажных домах эта идея дизайна дома позволяет избежать необходимости в глубоких планах этажей, которые часто могут страдать от недостатка естественного света.( ПОДРОБНЕЕ: 5 способов переделать бунгало)
4.
Текстурированная отделка стен«Мы обнаруживаем повышенный интерес к «настоящим» материалам: стенам и поверхностям, которые изготавливаются самостоятельно, а не покрыты гипсокартоном, шпаклевкой и краской», — сообщает архитектор Пол Теста.
«Березовая ламинированная фанера – обычный выбор; он плотный, прочный и добавляет пространству естественную текстуру и тепло. Традиционно он использовался в качестве недорогой отделки стен, но купить его недешево, а его установка и качественная отделка требуют больших затрат времени. Это также выбор с более низким содержанием углерода, чем гипсокартон».
5. Постройте большую практичную кладовую
Хорошее освещение в кладовой необходимо, чтобы показать вашу замечательную множество вин и еды во всей красе (Изображение предоставлено Мартином Муром) Дизайнерская идея, набирающая популярность, кладовая также увеличилась с точки зрения размера комнаты. Домовладельцы выбирают большие помещения полезного размера, а не шкаф, освобождая кухню для жизни и развлечений.
6. Выберите универсальный комплект напольных покрытий
(Изображение предоставлено Junkers)Обычно вам приходится заказывать пол с подогревом (UFH) и систему выравнивания отдельно от массивного деревянного пола, но компания Junckers, производящая деревянные полы, запускает Leveldek, полностью интегрированный пакет для полов из массивной древесины, выравнивание и система теплых полов, поэтому не нужно заказывать детали у отдельных поставщиков — отличная идея!
Этот бассейн расположен в небольшом заднем дворе лондонского Passivhaus. Покрытие удваивается как настил, когда бассейн не используется, благодаря чему двор можно использовать круглый год (Изображение предоставлено Саймоном Максвеллом) Открытый бассейн является частью более широкой идеи дизайна дома, чтобы сделать дом местом, где мы сохраняем здоровье и хорошее самочувствие, а также местом для отдыха и развлечений. Популярность домашних тренажерных залов — еще один показательный пример.
Tadelakt — это марокканская гипсовая отделка, существует уже много столетий, но в 2020 году она окажет влияние на наши дома. И не зря: эта штукатурка на известковой основе устойчива к воде и плесени, что делает ее идеальной для ванных комнат. Более того, он не требует особого ухода — в поле зрения нет ни одной линии затирки — и эстетичен.
9. Стирание границ между внутренней и наружной жизнью
Хотя идея «открыть дом для сада» не является новой дизайнерской идеей для вашего дома, в настоящее время все больше внимания уделяется продуманному использованию материалов как в интерьере, так и в интерьере. прилегающая внешняя среда.
В настоящее время делается толчок к созданию «комнаты на открытом воздухе» и уменьшению ощутимых границ между внутренним и наружным пространством.
Солнечные фотоэлектрические (фотоэлектрические) панели в последнее время привлекали к себе внимание, но в апреле 2019 года было прекращено действие льготных тарифов и появился здоровый стимул, предлагаемый домовладельцам и арендодателям.возможно, убрал блеск, указав эту технологию производства электроэнергии из возобновляемых источников.
Однако это еще не все плохие новости, так как наше внимание постепенно возвращается к солнечному теплу. Может ли 2020 год принести ренессанс этой устойчивой технологии?
11. Спальни с балконами
(Изображение предоставлено Джереми Филлипсом) В последние годы как самостоятельные строители, так и ремонтники в равной степени включают открытые пространства, ведущие из их спален. Независимо от того, расположены ли они на первом этаже, откуда открывается панорамный вид, или включены в планировку «вверх ногами», со спальнями, выходящими на террасы, добавление ощущения свежести в спальные места является отличной дизайнерской особенностью.
«Жизнь с нарушенным планом» стала большой новостью в мире дизайна в последние годы и будет продолжать влиять на наши планы этажей в 2020 году. Так что же это такое?
Сломанный план — это уход от пещерных жилых помещений открытой планировки (которые многие из нас считают непрактичными) и использование определенных устройств для создания пространств, которые кажутся общительными и связанными, но имеют определенную степень разделения и уединения. К таким устройствам относятся:
- книжные шкафы
- частичные перегородки
- раздвижные двери
- внутренние «окна»
- камины. 13. Используйте бетон для создания современного образа кредит: c/o Gresford Architects)
Если вы хотите построить свою пристройку в чем-то немного другом, не отказывайтесь от бетона. Материал больше не скрывается, а выставляется как архитектурная отделка, известная как «визуальный бетон», в жилых домах. Это хороший материал для наружного использования — он прочен, не требует особого ухода и может оставаться незащищенным.

( ПОДРОБНЕЕ : Строительство пристройки: все, что вам нужно знать)
(Изображение предоставлено LochAnna Kitchens)Яркие металлические цвета станут ключевой тенденцией дизайна кухонь в наступающем году. «2020 год станет годом золотых, медных и бронзовых акцентов», — прогнозирует Пол Дженкинсон, основатель и управляющий директор британского кухонного бренда LochAnna Kitchens.
«Однако важно, чтобы вы не переусердствовали с этими цветами и помните, что немногое имеет большое значение».
В то время как апсайклинг не является чем-то новым, количество людей, осознающих, сколько они могут сэкономить, покупая подержанную или бывшую в употреблении кухню. Появление все большего числа компаний, специализирующихся на бывших в употреблении кухнях, свидетельствует о растущей популярности этого способа покупки кухни. Кроме того, часто приходится делать какие-то сделки.
«Теперь мы все гораздо лучше осведомлены об отходах, которые мы производим в результате массового потребления», — говорит Джеймс Сайдман из The Used Kitchen Hub .
«Потребители гораздо больше осознают, что не увеличивают объем своих отходов, и хотят найти осязаемые альтернативы захоронению отходов».( БОЛЬШЕ : Новая кухня: как получить ее менее чем за 5 000 фунтов стерлингов)
16. Выберите поворотные двери для добавления вау-фактора ) (Изображение предоставлено: Urban Front)
Отодвиньте в сторону двустворчатые и раздвижные двери, новейшие застекленные двери патио не складываются и не сдвигаются назад, а деликатно поворачиваются, обеспечивая большую площадь остекления в сочетании с минимальными рамками в качестве дополнительного преимущества.
Естественный свет и вид будут максимальными.
( ДОПОЛНИТЕЛЬНО : Поворотные двери)
(Изображение предоставлено IQ Glass)Использование пространства на потолке для обеспечения дополнительных жилых помещений имеет смысл — оно позволяет использовать каждый последний сантиметр пространства в доме без необходимости для новых фондов или разрешения на строительство.

От «плавающих» спальных капсул до домашних офисов или неформальных жилых помещений, мезонины обеспечивают тихие места вдали от шума и суеты остального дома, не будучи отрезанными от действия. Они также не должны быть дорогим дополнением — некоторые из самых инновационных антресолей созданы из недорогих материалов и доступны через простые лестничные пролеты.
18. Сделайте акцент на товарах для дождевой воды
Выделение ваших товаров для дождевой воды — хорошая идея на менее заметных фасадах, которые нуждаются в здоровой доле архитектурного интереса (как в этом проекте, разработанном Francesco Pierazzi Architects
Скрытые предметы для дождевой воды стали популярной дизайнерской идеей в последние годы. Тем не менее, сделать особенность этого элемента здания коренастыми, эстетически привлекательными желобами, воронками и водосточными трубами — другое (более дешевое и, возможно, менее сложное) решение.
Выбор материала важен — забудьте о ПВХ, сделайте выбор в пользу обтекаемой стали от таких производителей, как Lindab и Alumasc.
19. Встроенные карманные двери
(Изображение предоставлено Саймоном Максвеллом)Несмотря на то, что жилые помещения открытой планировки по-прежнему являются фаворитом в самостоятельных и отремонтированных домах, мы наблюдаем сдвиг в сторону создания пространств, которые можно приспособить для обслуживания как для интимных будней, так и для случаев, когда члены семьи и друзья собираются вместе.
Один из элегантных и незаметных способов добиться этого — установить карманные двери — когда они не используются (как здесь), они сдвигаются обратно в полость в соседних стенах, открывая комнаты друг для друга.
20. Установка скрытого освещения
Чтобы создать иллюзию застекленного моста (соединяющего две половины лондонской постройки Джейка Эджли), плавающего при ночном освещении, он прикрепил полоски светодиодов к алюминиевой фольге, прикрепленной к край потолка (Изображение предоставлено Джеком Хобхаусом c/o Edgley Architects) В то время как естественное освещение дома является повторяющейся темой, легко забыть, насколько важным может быть достижение хорошо сбалансированной схемы дизайна искусственного освещения — многие рассматривая этот элемент дизайна как запоздалую мысль, размещая несколько подвесок и потолочных светильников везде, где есть место.
Освещение вашего дома следует планировать заранее.
( БОЛЬШЕ : Умные идеи дизайна освещения для вашего дома)
(Изображение предоставлено архитектором Кейт Стоддард) создание большего чувства связи с садом.Тем не менее, этот дизайнерский мотив также может помочь уменьшить массу, делая здание прозрачным и менее «громоздким».
22. Подумайте о двухуровневой планировке
Если учесть, что участки становится все труднее отследить, а также тот факт, что некоторые из самых красивых из этих участков расположены на наклонных участках, становится все более популярным макеты начинают обретать смысл.
В то время как двухуровневая планировка часто может быть рождена по необходимости, она часто в конечном итоге приносит тепло и характер в дома. Изменения уровня действуют как способ определения отдельных областей в пространствах с открытой планировкой. Например, в больших домах они разбивают огромные пространства, чтобы они не становились слишком больными, а в небольших помещениях они разбивают комнаты без стен.
23. Приспособьте внешние пространства к британской погоде
Этот современный вариант лоджии в сочетании с перевернутым расположением жилых зон на первом этаже позволяет максимально насладиться невероятным видом на остров Харрис. Пейзаж (Изображение предоставлено Крисом Хамфрисом)Крытые открытые пространства позволяют наслаждаться британским летом в любую погоду, а также дают возможность заявить о своем дизайне.
Однако мы хотим создавать такие пространства уже не только на первом этаже, но и на втором, где крытые балконы или лоджии, ведущие, например, из главной спальни, доставляют удовольствие.
24. Модульные ванные комнаты
(Изображение предоставлено Романом)Модульными становятся не только строительные системы; наши светильники и фитинги тоже. Новинкой от Roman 2020 года является раковина и туалетный столик, соединенные непосредственно с душевой кабиной. Этот цельный элемент точно скрепляется вместе, что означает, что больше не нужно ставить раковины впритык к стеклянным панелям и больше не нужно чистить труднодоступные места!
Изогнутый потолок в этом традиционном стиле новой постройки отличается облицовкой из выбеленного дерева, что придает уют Скандинавский прикоснуться к интерьеру (Изображение предоставлено Дэвидом Барбуром) Мы привыкли видеть плоские потолки в наших домах, но если вы расширяете или строите с нуля, это отличная возможность мыслить нестандартно, когда это касается вашего дизайна потолка.
Сводчатые потолки — отличный способ добавить интереса и объема любому пространству, они хорошо вписываются как в современный, так и в традиционный дизайн дома.
26. Используйте деревянную облицовку
Верхние этажи дома на дереве, сертифицированного Passivhaus, обшиты необработанной лиственницей. свои проекты — как внутри, так и снаружи.Будь то темная сосна, чтобы добавить контраста и помочь дому слиться с окружающей средой, необработанный дуб, оставленный для выветривания, или серебристо-серый, береза, западный красный кедр, лиственница или фанера, облицовка стен, потолков и полов, Обеспечить теплое и уютное пространство, деревянная облицовка — популярная идея дизайна дома.
27. Остекление внутри помещений для дополнительного архитектурного интереса
(Изображение предоставлено Mailen Design) Внутреннее остекление ни в коем случае не является архитектурной инновацией — это устройство уже много лет используется в коммерческих и офисных помещениях.
Тем не менее, самостоятельные строители теперь начинают видеть преимущества внутреннего остекления в новых домах: оно может позволить естественному свету и видам «делиться» между соседними комнатами, при этом обеспечивая определенную степень звукоизоляции.
Позволяя свету проникать даже в самые центральные части помещения, внутреннее остекление позволяет увидеть соседние комнаты и создать иллюзию пространства и объема.
( ДОПОЛНИТЕЛЬНО: Руководство по проектированию внутреннего остекления)
В этом расширенном коттедже есть веранда, которая хорошо сочетается как с современными, так и с традиционными элементами собственности (Изображение предоставлено Саймоном Максвеллом) Ключевой элемент традиционной архитектуры , веранда, кажется, возвращается. От окантовки в стиле Новой Англии до защищенных дополнений из деревянного каркаса, позволяющих домовладельцам наслаждаться отдыхом на свежем воздухе даже в зимние дни, веранда зарекомендовала себя как идеальный аксессуар для дома, как современного, так и классического.
29. Открытые потолки популярны в 2020 году.
(Изображение предоставлено NimTim Architects) -строители в 2019 году, с тканью новых крыш, которые показали очень интересные результаты.В приведенном выше проекте, разработанном дизайнерской студией NimTim, геометрическая конструкционная фанера, используемая для пристройки крыши, представляет архитектурный интерес. Деревянные конструкции придают современному интерьеру настоящее тепло и увеличивают воспринимаемую высоту головы в этой одноэтажной пристройке. Мы надеемся, что эта тенденция сохранится в следующем году.
30. Цветовые акценты в структуре
(Изображение предоставлено Selencky///Parsons Architects) Использование акцентного цвета для выделения конструкции самостоятельной постройки или пристройки становится все более популярным — вспомните розовые лестницы, ярко-оранжевые алюминиевые двери и, как в этом проекте Selencky///Parsons Architects, яркие желтые стальные балки. Обратите внимание, что открытые конструкционные балки должны быть обработаны огнезащитной краской в соответствии со строительными нормами.


Специалисты изучают рельеф местности и почву, после чего решают, возможно ли строительство.