Себестоимость дома из пеноблоков 10х10: Стоимость коробки дома из газобетона 10х10 на 2 этажа: сколько стоит построить
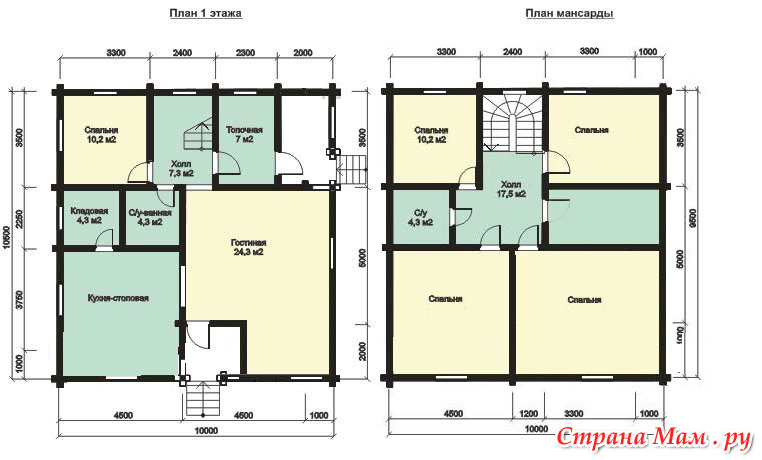
Проект дома из пеноблоков 10х10 Ю-78-514
Проект дома из пеноблоков 10х10 Ю-78-514 — строительство «под ключ»Хит продаж
Хит продаж
Базовая
Кратко о комплектациях
Коробка дома
Фундамент
Кровля
Перекрытия
Перегородки
Двери входной группы
Наружная отделка: отделка стен, отмостки, водосточная система
Внутренняя отделка: штукатурка стен и перегородок по маякам
Чистовая отделка: поклейка обоев, покраска стен, натяжные потолки, напольное покрытие, двери, установка окон
Инженерные сети: электрика, отопление, водоснабжение холодное и горячее, канализация
от 4 835 160 ₽ от 4 395 600 ₽
Цены снижены до 04.05.23
От 20 844 ₽/мес.
до 25 лет в ипотеку
Посмотреть комлектацию
Теплый контур
Кратко о комплектациях
Коробка+перегородки+окна, двери
Фундамент
Кровля
Перекрытия
Перегородки
Двери входной группы
Наружная отделка: отделка стен, отмостки, водосточная система
Внутренняя отделка: штукатурка стен и перегородок по маякам
Чистовая отделка: поклейка обоев, покраска стен, натяжные потолки, напольное покрытие, двери, установка окон
Инженерные сети: электрика, отопление, водоснабжение холодное и горячее, канализация
от 6 625 960 ₽ от 6 023 600 ₽
Цены снижены до 04.
05.23
От 28 565 ₽/мес.
до 25 лет в ипотеку
Посмотреть комлектацию
Под ключ
Кратко о комплектациях
Необходим только внутренний косметический ремонт
Фундамент
Кровля
Перекрытия
Перегородки
Двери входной группы
Внутренняя отделка: штукатурка стен и перегородок по маякам
Чистовая отделка: поклейка обоев, покраска стен, натяжные потолки, напольное покрытие, двери, установка окон
Инженерные сети: электрика, отопление, водоснабжение холодное и горячее, канализация
от 9 934 056 ₽ от 9 030 960 ₽
Цены снижены до 04.05.23
От 42 826 ₽/мес.
до 25 лет в ипотеку
Посмотреть комлектацию
Базовая
Теплый контур
Под ключ
Кратко о комплектациях
Коробка дома
Коробка+перегородки+окна, двери
Необходим только внутренний косметический ремонт
Фундамент
есть
есть
есть
Стены
есть
есть
есть
Кровля
есть
есть
есть
Перекрытия
есть
есть
есть
Перегородки
есть
есть
есть
Окна
—
есть
есть
Двери входной группы
—
есть
есть
Наружная отделка: отделка стен, отмостки, водосточная система
—
есть
есть
Внутренняя отделка: штукатурка стен и перегородок по маякам
—
—
есть
Чистовая отделка: поклейка обоев, покраска стен, натяжные потолки, напольное покрытие, двери, установка окон
—
—
есть
Инженерные сети: электрика, отопление, водоснабжение холодное и горячее, канализация
—
—
есть
Стоимость:
Цены снижены до 04.
05.23
от 4 835 160 ₽ от 4 395 600 ₽
От 20 844 ₽/мес.
до 25 лет в ипотеку
от 6 625 960 ₽ от 6 023 600 ₽
От 28 565 ₽/мес.
до 25 лет в ипотеку
от 9 934 056 ₽ от 9 030 960 ₽
От 42 826 ₽/мес.
до 25 лет в ипотеку
Наслаждайтесь
исключительным комфортом
жизни в новом доме
Представьте, какой будет Ваша жизнь в новом доме –
без соседей и городской суеты, своя личная территория, где Вы будете делать то, что хочется именно Вам, свой собственный маленький мир для Вас и Вашей семьи.
Отмечайте
новоселье в новом доме
в кругу близких
Оно будет именно таким, каким задумаете его Вы —
вкусные шашлыки в компании друзей у своего дома, любимая музыка на нужной для Вас громкости, горячий ужин на столе в большой гостиной, где будут только те, кто Вам дорог и интересен.
Вернуться назад
открытьзакрыть
Рассчитать
Антикризисный
каталог
Строительство домов из пеноблоков под ключ
по цене по площади по популярностиХит
186
«Эверетт»
Размеры: 10х10
Комнат: 5
Площадь: 174 м2
Спален: 3
- Тип дома:Пеноблок
- Срок строительства:3 месяца
Посмотреть проект
Топ 10 Акция Хит
162
«Примула»
Размеры: 17х17
Комнат: 6
Площадь: 204 м2
Спален: 5
- Тип дома:Пеноблок
- Срок строительства:3 месяца
Посмотреть проект
Хит
147
«Нордик»
Размеры: 11х9
Комнат: 4
Площадь: 74 м2
Спален: 3
- Тип дома:Пеноблок
- Срок строительства:3 месяца
Посмотреть проект
Хит
41
«Сидней»
Размеры: 9х9
Комнат: 4
Площадь: 125 м2
Спален: 3
- Тип дома:Пеноблок
- Срок строительства:3 месяца
Посмотреть проект
Топ 10 Хит
192
«Массив»
Размеры: 11х10
Комнат: 5
Площадь: 172 м2
Спален: 2
- Тип дома:
Пеноблок - Срок строительства:3 месяца
Посмотреть проект
Топ 10 Хит
198
«Сатурн»
Размеры: 25х18
Комнат: 5
Площадь: 285 м2
Спален: 4
- Тип дома:Пеноблок
- Срок строительства:3 месяца
Посмотреть проект
Топ 10 Хит
163
«Берген»
Размеры: 11х13
Комнат: 5
Площадь: 172 м2
Спален: 4
- Тип дома:Пеноблок
- Срок строительства:3 месяца
Топ 10 Хит
181
«Кижи»
Размеры: 15х10
Комнат: 6
Площадь: 179 м2
Спален: 5
- Тип дома:Пеноблок
- Срок строительства:3 месяца
Посмотреть проект
Топ 10 Хит
108
«Гляссе»
Размеры: 17х9
Комнат: 5
Площадь: 183 м2
Спален: 4
- Тип дома:Пеноблок
- Срок строительства:3 месяца
Посмотреть проект
Хит
185
«Герцог»
Размеры: 10х10
Комнат: 4
Площадь:
Спален: 3
- Тип дома:Пеноблок
- Срок строительства:3 месяца
Посмотреть проект
Хит
148
«Марика»
Размеры: 13х8
Комнат: 5
Площадь: 150 м2
Спален: 4
- Тип дома:Пеноблок
- Срок строительства:3 месяца
Посмотреть проект
Хит
35
«Дивный»
Размеры: 13х8
Комнат: 5
Площадь: 171 м2
Спален: 4
- Тип дома:Пеноблок
- Срок строительства:3 месяца
Хит
106
«Карамбола»
Размеры: 10х10
Комнат: 5
Площадь: 187 м2
Спален: 4
- Тип дома:Пеноблок
- Срок строительства:3 месяца
Посмотреть проект
Топ 10 Хит
200
«Бекли»
Размеры: 12х9
Комнат: 5
Площадь: 189 м2
Спален: 4
- Тип дома:Пеноблок
- Срок строительства:3 месяца
Посмотреть проект
Хит
80
«Каламбур»
Размеры: 8х11
Комнат: 5
Площадь: 113 м2
Спален:
- Тип дома:Пеноблок
- Срок строительства:3 месяца
Посмотреть проект
Топ 10 Хит
68
«Крит»
Размеры: 18х9
Комнат: 5
Площадь: 166 м2
Спален: 4
- Тип дома:Пеноблок
- Срок строительства:3 месяца
Посмотреть проект
Хит
108
«Раздолье»
Размеры: 12х11
Комнат: 4
Площадь: 206 м2
Спален: 4
- Тип дома:Пеноблок
- Срок строительства:3 месяца
Хит
54
«Каприз»
Размеры: 10х8
Комнат: 2
Площадь: 129 м2
Спален: 2
- Тип дома:Пеноблок
- Срок строительства:3 месяца
Посмотреть проект
Хит
107
«Юнона»
Размеры: 9х10
Комнат: 3
Площадь: 146 м2
Спален: 3
- Тип дома:Пеноблок
- Срок строительства:3 месяца
Посмотреть проект
Хит
137
«Простор»
Размеры: 11х13
Комнат: 1
Площадь: 124 м2
Спален: 1
- Тип дома:Пеноблок
- Срок строительства:3 месяца
Посмотреть проект
Хит
75
«Родина»
Размеры: 11х13
Комнат: 4
Площадь: 212 м2
Спален: 4
- Тип дома:Пеноблок
- Срок строительства:3 месяца
Посмотреть проект
Хит
59
«Марина»
Размеры: 13х13
Комнат: 4
Площадь: 193 м2
Спален: 4
- Тип дома:Пеноблок
- Срок строительства:3 месяца
Посмотреть проект
Хит
135
«Соловьи»
Размеры: 11х15
Комнат: 4
Площадь: 163 м2
Спален: 4
- Тип дома:Пеноблок
- Срок строительства:3 месяца
Посмотреть проект
Хит
129
«Рига»
Размеры: 12х14
Комнат: 4
Площадь: 204 м2
Спален: 4
- Тип дома:Пеноблок
- Срок строительства:3 месяца
Посмотреть проект
Хит
102
«Эвелина»
Размеры: 10х12
Комнат: 3
Площадь: 146 м2
Спален: 3
- Тип дома:Пеноблок
- Срок строительства:3 месяца
Посмотреть проект
Хит
80
«Форт»
Размеры: 12х17
Комнат: 6+
Площадь: 261 м2
Спален: 6+
- Тип дома:Пеноблок
- Срок строительства:3 месяца
Посмотреть проект
Хит
153
«Рубин»
Размеры: 10х10
Комнат: 3
Площадь: 136 м2
Спален: 3
- Тип дома:Пеноблок
- Срок строительства:3 месяца
Посмотреть проект
Хит
72
«Енисей»
Размеры: 14х16
Комнат: 5
Площадь: 263 м2
Спален: 5
- Тип дома:Пеноблок
- Срок строительства:3 месяца
Посмотреть проект
Хит
103
«Штиль»
Размеры: 12х12
Комнат: 5
Площадь: 177 м2
Спален: 5
- Тип дома:Пеноблок
- Срок строительства:3 месяца
Посмотреть проект
Хит
128
«Яхонт»
Размеры: 11х8
Комнат: 3
Площадь: 120 м2
Спален: 3
- Тип дома:Пеноблок
- Срок строительства:3 месяца
Посмотреть проект
Хит
67
«Леруа»
Размеры: 7х14
Комнат: 5
Площадь: 161 м2
Спален: 5
- Тип дома:Пеноблок
- Срок строительства:3 месяца
Посмотреть проект
Хит
105
«Меридиан»
Размеры: 15х17
Комнат: 4
Площадь: 228 м2
Спален: 4
- Тип дома:Пеноблок
- Срок строительства:3 месяца
Посмотреть проект
Хит
119
«Шафран»
Размеры: 7х8
Комнат: 1
Площадь: 53 м2
Спален: 1
- Тип дома:Пеноблок
- Срок строительства:3 месяца
Посмотреть проект
Хит
2
«Заря»
Размеры: 7х9
Комнат: 1
Площадь: 51 м2
Спален: 1
- Тип дома:Пеноблок
- Срок строительства:3 месяца
Посмотреть проект
Хит
70
«Мичиган»
Размеры: 12х9
Комнат: 4
Площадь: 140 м2
Спален: 4
- Тип дома:Пеноблок
- Срок строительства:3 месяца
Посмотреть проект
Хит
139
«Прованс»
Размеры: 7х8
Комнат: 2
Площадь: 89 м2
Спален: 2
- Тип дома:Пеноблок
- Срок строительства:3 месяца
Посмотреть проект
Хит
1
«Дубрава»
Размеры: 11х12
Комнат: 5
Площадь: 176 м2
Спален: 5
- Тип дома:Пеноблок
- Срок строительства:3 месяца
Посмотреть проект
Хит
50
«Олива»
Размеры: 11х9
Комнат: 2
Площадь: 81 м2
Спален: 2
- Тип дома:Пеноблок
- Срок строительства:3 месяца
Посмотреть проект
Хит
77
«Исток»
Размеры: 17х21
Комнат: 3
Площадь: 274 м2
Спален: 3
- Тип дома:Пеноблок
- Срок строительства:3 месяца
Посмотреть проект
Хит
151
«Тарлок»
Размеры: 15х16
Комнат: 4
Площадь: 300 м2
Спален: 4
- Тип дома:Пеноблок
- Срок строительства:3 месяца
Посмотреть проект
Хит
75
«Павлин»
Размеры: 18х15
Комнат: 4
Площадь: 274 м2
Спален: 4
- Тип дома:Пеноблок
- Срок строительства:3 месяца
Посмотреть проект
Хит
110
«Персей»
Размеры: 11х13
Комнат: 5
Площадь: 214 м2
Спален: 5
- Тип дома:Пеноблок
- Срок строительства:3 месяца
Посмотреть проект
Хит
75
«Скарлетт»
Размеры: 14х17
Комнат: 5
Площадь: 278 м2
Спален: 5
- Тип дома:Пеноблок
- Срок строительства:3 месяца
Посмотреть проект
Хит
114
«Искра»
Размеры: 10х9
Комнат: 3
Площадь: 118 м2
Спален: 3
- Тип дома:Пеноблок
- Срок строительства:3 месяца
Посмотреть проект
Хит
102
«Дубровник»
Размеры: 11х9
Комнат: 3
Площадь: 163 м2
Спален: 3
- Тип дома:Пеноблок
- Срок строительства:3 месяца
Посмотреть проект
Хит
120
«Надежда»
Размеры: 11х11
Комнат: 2
Площадь: 94 м2
Спален: 2
- Тип дома:Пеноблок
- Срок строительства:3 месяца
Посмотреть проект
Хит
107
«Талица»
Размеры: 11х14
Комнат: 5
Площадь: 199 м2
Спален: 5
- Тип дома:Пеноблок
- Срок строительства:3 месяца
Посмотреть проект
Хит
78
«Марианна»
Размеры: 10х11
Комнат: 4
Площадь: 150 м2
Спален: 4
- Тип дома:Пеноблок
- Срок строительства:3 месяца
Посмотреть проект
Хит
116
«Терек»
Размеры: 16х14
Комнат: 5
Площадь: 258 м2
Спален: 5
- Тип дома:Пеноблок
- Срок строительства:3 месяца
Посмотреть проект
Хит
64
«Полёт»
Размеры: 10х9
Комнат: 4
Площадь: 143 м2
Спален: 4
- Тип дома:Пеноблок
- Срок строительства:3 месяца
Посмотреть проект
Хит
142
«Хуторок»
Размеры: 10х12
Комнат: 6+
Площадь: 171 м2
Спален: 6+
- Тип дома:Пеноблок
- Срок строительства:3 месяца
Посмотреть проект
Хит
119
«Мечта»
Размеры: 10х13
Комнат: 4
Площадь: 184 м2
Спален: 4
- Тип дома:Пеноблок
- Срок строительства:3 месяца
Посмотреть проект
Хит
87
«Терса»
Размеры: 8х14
Комнат: 4
Площадь: 132 м2
Спален: 4
- Тип дома:Пеноблок
- Срок строительства:3 месяца
Посмотреть проект
Хит
96
«Фортуна»
Размеры: 10х10
Комнат: 2
Площадь: 80 м2
Спален: 2
- Тип дома:Пеноблок
- Срок строительства:3 месяца
Посмотреть проект
Хит
91
«Шарм»
Размеры: 11х12
Комнат: 3
Площадь: 110 м2
Спален: 3
- Тип дома:Пеноблок
- Срок строительства:3 месяца
Посмотреть проект
Хит
80
«Элен»
Размеры: 14х11
Комнат: 3
Площадь: 125 м2
Спален: 3
- Тип дома:Пеноблок
- Срок строительства:3 месяца
Посмотреть проект
85
«Экстра»
Размеры: 12х9
Комнат: 7
Площадь: 216 м2
Спален: 5
- Тип дома:Пеноблок
- Срок строительства:3 месяца
Посмотреть проект
199
«Бьянка»
Размеры: 25х12
Комнат: 4
Площадь: 600 м2
Спален: 3
- Тип дома:Пеноблок
- Срок строительства:3 месяца
Посмотреть проект
99
«Верона»
Размеры: 12х15
Комнат: 6
Площадь: 176 м2
Спален: 5
- Тип дома:Пеноблок
- Срок строительства:3 месяца
Посмотреть проект
41
«Онега»
Размеры: 17х15
Комнат: 4
Площадь: 255 м2
Спален: 3
- Тип дома:Пеноблок
- Срок строительства:3 месяца
Посмотреть проект
Показать ещё
Скачайте каталог
топовых проектов
для Челябинску
Скачайте каталог
топовых проектов
для Челябинску
Мы вышлем подборку
вам в мессенджер
Топ 50
Самых популярных
проектов домов
100%
Найдётся
хороший вариант
С нами, за прошлый год въехали в новый дом 257 семей
Это лишь несколько
домов, построенных
в прошлом году
Карта объектов
Дом в стиле хай-тек 123 кв.
м
Построили под ключ за 60 дней
Стоимость
строительства
5 990 100
руб
В стоимость вошли работа и материалы:
— Разработка индивидуального проекта — УШП-фундамент — Коробка дома из блоков — Организация инженерных коммуникаций (электричество, канализация, водопровод, газ) — Установка окон и входной двери — Фасадные работы — Внутренняя отделка
Смотреть все
Дом из клееного бруса 82 м2
Построили под ключ за 60 дней
Стоимость
строительства
5 051 200
руб
В стоимость вошли работа и материалы:
— Выравнивание участка — Монолитный фундамент — Коробка дома из бруса — Инженерные коммуникации — Фасадные работы — Кровельные работы — Внутренняя отделка
Смотреть все
Дом из теплоблоков 112 кв.м.
Построили под ключ за 60 дней
Стоимость
строительства
4 838 400
руб
В стоимость вошли работа и материалы:
— Выравнивание участка — Ленточный фундамент — Коробка дома из теплоблоков — Фасадные и кровельные работы — Внутренняя отделка
Смотреть все
Вы получите на руки договор, в котором будут прописаны ваши гарантии и окончательная стоимость строительства
Гарантия 5 лет по договору
В договоре четко фиксируется список работ, гарантия и ответственности сторон
Фиксированная стоимость в смете
Под каждый этап работ мы разрабатываем точную смету, на которой Вы увидите из чего складывается стоимость
Сроки строительства и оплаты прописаны
На этапе подписания договора составляется план-график работ и их финансирования
Фото и видеоотчет
Отправляем фото и видеоотчет о проделанной работе, если у вас нет возможности подъехать на объект
Здравствуйте, я Ермаков Василий, директор и основатель компании.
Здравствуйте, я Ермаков Василий, директор и основатель компании.
На рынке строительных услуг мы уже 12 лет. За это время нам удалось сформировать сплоченный коллектив специалистов с более чем двадцатилетним стажем. Вместе с тем я слежу за тем, чтобы наши специалисты оставались в курсе последних технологий, совершенствовали свои навыки. За счет этого мы можем гарантировать долговечность выполненных нами проектов.
Факты в цифрах
- 12 лет
компания на рынке - 300+
объектов построено - 5 лет
гарантии на работы
Вопросы и ответы по домам из пеноблокам
На строительство дома, площадь которого не превышает 150 квадратных метров обычно уходит до двух месяцев — от момента приезда бригады, до ее отъезда. Это без учета отделки и возведения фундамента.
Лесстрой74Блоки из пенополистирола — Radiation Products Design, Inc. Продукты и аксессуары для блочных помещений
Сколько стоит утеплить комнату?
Сколько стоит утеплить комнату?
1200 долларов США
Узнайте стоимость в вашем городе
Выполните свою работу в 3 простых шага
1
Howmuch.
net находит лучших подрядчиков с самым высоким рейтингом в вашем районе
2
Подрядчики дают вам бесплатные индивидуальные оценки
2
Сравните оценки и наймите подрядчика, который наилучшим образом соответствует вашим потребностям
Руководство по стоимости в помещении Подрядчики по изоляции Расходы на изоляцию помещения
Изоляция помещения — один из лучших способов повысить энергоэффективность вашего дома и защитить его от сквозняков. Доступные типы изоляции включают в себя: вдуваемую, ватин из стекловолокна, напыляемую пену, а также излучающие или отражающие барьеры. В большинстве домов используется вдувная изоляция из-за ее экономичности и долговечности. Требуемый тип изоляции, а также площадь помещения будут влиять на общую стоимость.
Не только размер комнаты влияет на стоимость изоляции, но и тип помещения также влияет на то, сколько вы тратите на отдельную площадь.
Например, изоляция стен в одной спальне может быть намного дешевле, чем утепление всей крыши распылением. Это связано со сложностью и местом работы, а также с типом изоляции и необходимыми инструментами. Последним фактором затрат на изоляцию будет R-значение используемых материалов. Строительные стандарты требуют R49изоляция для чердачных и потолочных пространств и, например, от R15 до R18 для стен.
Изоляция помещения : по материалам, включая цену за квадратный фут и исходя из коэффициента сопротивления теплоизоляции, при этом общие затраты рассчитаны для помещения средней площади 200 квадратных футов.
| Товар | Стоимость единицы | Количество | Стоимость линии |
|---|---|---|---|
| Изоляция R49 | 1,00–1,50 долл. США за кв. фут. | 200 | 200-300 долларов |
| Изоляция R15-R18 | 0,73–0,95 долл. США за кв. фут. | 200 | $146-$190 |
| Изоляция R19 | 0,95 $ за кв. фут. | 200 | $190 |
| Вдуваемая изоляция | 2,00–3,00 долл. США за кв. фут. | 200 | 400-600 долларов |
| Изоляция из распыляемой пены | 0,50–2,00 долл. США за кв. фут. | 200 | 100-400 долларов |
| Стоимость материалов | 0,50–3 долл. США за кв. фут. | 200 | 100-600 долларов |
| Стоимость рабочей силы | 180-300 долларов в час | 3-4 | 540-1200 долларов |
| Общая стоимость | $3,20–$9 за кв. фут. | 200 | 640–1800 долларов |
Другие соображения и расходы
- Ваш поставщик энергии или другая компания могут предоставлять скидки на улучшение теплоизоляции вашего дома. Обязательно проведите энергоаудит дома, прежде чем вносить какие-либо улучшения в области энергетики.
Большинство энергетических компаний предлагают их по цене от 20 до 50 долларов 90 103, а иногда доступны купоны. Кроме того, вы часто можете сэкономить до 10 раз больше на скидках, в зависимости от вашего местоположения. - Эта оценка не включает налоги и стоимость оборудования.
- Дешевле установить изоляцию в новостройке, чем добавлять ее в существующую конструкцию. Когда стены и потолки открыты, все можно сделать легко. Вы можете доплатить за изоляцию труднодоступных мест или за переустановку гипсокартона и последующий необходимый ремонт.
- Изоляция из вспененного и напыляемого пеноматериала стоит значительно дороже, но может предложить больше в плане экономии энергии и повышения стоимости дома в будущем.
Советы по самостоятельному выполнению работ
- Хотя укладка обычных листов изоляции может быть выполнимой задачей для среднего мастера, нанесение пены вдуванием и распылением всегда должно выполняться опытным профессионалом. Образующиеся пары и частицы опасны для дыхания, а методы нанесения требуют навыков.


фут.
Большинство энергетических компаний предлагают их по цене от 20 до 50 долларов 90 103, а иногда доступны купоны. Кроме того, вы часто можете сэкономить до 10 раз больше на скидках, в зависимости от вашего местоположения.